賃貸マンション
モダンパラッツォ博多デュオグランデウエストの賃貸物件情報(2LDK/7階)
| 家賃 | 管理費等 | 敷金 | 礼金 | 間取り | 専有面積 |
|---|---|---|---|---|---|
| 17.4万円 | 5,000円 | なし | なし | 2LDK | 53.06m2 |
入居決定でお祝い金最大100,000円
- 保証金
- -
- 償却・敷引
- -
- 築年数
- 築1年
- 所在階
- 7階
- 向き
- 南東
Point
福岡の物件は全て取り扱いしております!他社様がインターネットに掲載している物件も当店で内見・お申込が可能です!複数のお部屋を効率よく内見できます!当店HPには載せきれなかった写真が沢山ございます!
提供:(株)栄信不動産博多駅前店(SUUMO経由)

詳細情報 モダンパラッツォ博多デュオグランデウエスト
物件紹介
モダンパラッツォ博多デュオグランデウエストはJR鹿児島本線博多駅から徒歩14分にあるマンションです。
このお部屋は2階以上に位置しているので、通行人や周囲の住人からの視線が気になりにくく、防犯面でも安心。建物のエントランスはオートロックがついており、インターホンにはTVモニタもついているため、相手の顔を確認してから来客対応することができます。
おしゃれなデザイナーズ物件!人気の南向き・フローリングのお部屋。室内にはウォークインクローゼットがありますので、たくさんの荷物も効率的に収納ができます。キッチンはシステムキッチン仕様になっていますので、お料理好きの方にもぴったり。バス・トイレは別なので、のんびりお風呂タイムも楽しめるでしょう。また、雨の日でも浴室乾燥機を使えば、お洗濯も問題ありません。
通信設備面では、インターネットが無料で使えるので、月々の出費を抑えられるのも魅力です。また、BSアンテナ・CSアンテナもありますので、おうち時間も充実するでしょう(別途工事、BS・CSの契約料等が必要な場合あり)。
建物にはエレベーターがついているので、重い荷物があっても安心。共用部には宅配ボックスが設定されているので、不在の時にも荷物を受け取ることができます。また、ペット飼育の相談ができますので、あなたの大切な家族の一員も快適に暮らせるか、ぜひ確認してみてください。
このお部屋は2階以上に位置しているので、通行人や周囲の住人からの視線が気になりにくく、防犯面でも安心。建物のエントランスはオートロックがついており、インターホンにはTVモニタもついているため、相手の顔を確認してから来客対応することができます。
おしゃれなデザイナーズ物件!人気の南向き・フローリングのお部屋。室内にはウォークインクローゼットがありますので、たくさんの荷物も効率的に収納ができます。キッチンはシステムキッチン仕様になっていますので、お料理好きの方にもぴったり。バス・トイレは別なので、のんびりお風呂タイムも楽しめるでしょう。また、雨の日でも浴室乾燥機を使えば、お洗濯も問題ありません。
通信設備面では、インターネットが無料で使えるので、月々の出費を抑えられるのも魅力です。また、BSアンテナ・CSアンテナもありますので、おうち時間も充実するでしょう(別途工事、BS・CSの契約料等が必要な場合あり)。
建物にはエレベーターがついているので、重い荷物があっても安心。共用部には宅配ボックスが設定されているので、不在の時にも荷物を受け取ることができます。また、ペット飼育の相談ができますので、あなたの大切な家族の一員も快適に暮らせるか、ぜひ確認してみてください。
お金・契約の情報
※「-」と表示されているものは、実際は料金が発生するものもございます。詳細はお問い合わせください。
| 家賃 | 17.4万円 | 管理費・共益費 | 5,000円 |
|---|---|---|---|
| 敷金 | なし | 礼金 | なし |
| フリーレント | あり | ||
| 入居決定でお祝い金最大100,000円 | |||
| 保証金 | - | 償却・敷引 | - |
| 住宅保険料 | - | 更新料 | - |
| 保証会社利用 | 必須 | 保証会社名 | - |
| 保証会社費用 | - | 保証会社備考 | 保証会社利用必 初回保証料家賃総額の60%・月額保証料家賃総額の1.5% |
| 契約形態 | - | 契約期間 | - |
| 入居・引渡期間 | 即時 | 現況 | - |
| 入居可能条件 | ペット相談 | ||
| 契約備考 | 巡回管理/当店では全物件初期費用クレジット決済可能です!インターネットに掲載している物件はごく一部ですが店頭ではたくさんの物件をご用意しております!他社様の掲載物件も当店で取り扱いしておりますので一日で何件も内見に行けます!公式LINEでカンタンお部屋探しも可能です!HPよりLINE追加バナーもございます! 合計4.18万円(内訳:24時間サポート年会費1.65万円24時間サポート登録料0.33万円室内消毒代2.2万円) 町会費 月額350円 2LDK ペット相談/フリーレント1ヶ月 普通借家2年 損保【1.8万円2年】 バストイレ別、バルコニー、エアコン、ガスコンロ対応、クロゼット、フローリング、シャワー付洗面台、TVインターホン、浴室乾燥機、オートロック、室内洗濯置、シューズボックス、システムキッチン、追焚機能浴室、温水洗浄便座、脱衣所、エレベーター、洗面所独立、洗面化粧台、駐輪場、宅配ボックス、即入居可、礼金不要、敷金不要、3口以上コンロ、対面式キッチン、ペット相談、グリル付、全居室洋室、ウォークインクロゼット、全居室フローリング、デザイナーズ、2沿線利用可、CS、ネット専用回線、ネット使用料不要、フリーレント、築2年以内、24時間換気システム、平坦地、2駅利用可、3駅以上利用可、敷地内ごみ置き場、東南向き、LDK12畳以上、洗面所にドア、三面鏡付洗面化粧台、玄関収納、BS、高速ネット対応、敷金・礼金不要、保証会社利用可、IT重説対応物件、初期費用カード決済可 | ||
部屋の情報
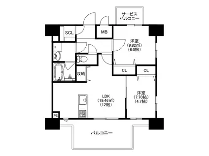
| 間取り | 2LDK | 専有面積 | 53.06m2 |
|---|---|---|---|
| 所在階 / 向き | 7階 / 南東 | バルコニー面積 | - |
| 水道 / ガス | - | ||
| 設備 | バス・トイレ別、2階以上、オートロック、テレビドアホン、宅配ボックス、浴室乾燥機、ウォークインクローゼット、追い焚き、インターネット対応、システムキッチン、エアコン、エレベーター、温水洗浄便座、南向き、バルコニー、フローリング、洗髪洗面化粧台、2口コンロ、コンロ:ガス、デザイナーズ、CSアンテナ、BSアンテナ、インターネット使用料無料、洗濯機:室内 | ||
| 当社物件ID | 160246687 | ||
建物の情報
| 建物名 | モダンパラッツォ博多デュオグランデウエスト | ||
|---|---|---|---|
| 所在地 | 福岡県福岡市博多区美野島 | ||
| 交通 | JR鹿児島本線 博多駅 徒歩14分 地下鉄七隈線 渡辺通駅 徒歩19分 | ||
| 階数 | 12階建 | 総戸数 | - |
| 築年月 | 2025年05月 / 築1年 | エレベーター | あり |
| 駐車場 | 空有 19800円 | バイク置き場 | - |
| 駐輪場 | あり | 管理人/管理会社 | - |
| 周辺環境 | その他 セブン イレブン 博多美野島1丁目店(コンビニ)まで21m その他 ローソン 美野島一丁目店(コンビニ)まで80m その他 ファミリーマート博多美野島一丁目店(コンビニ)まで278m その他 マックスバリュエクスプレス博多消防署通り店(スーパー)まで250m その他 ニューヨークストア住吉店(スーパー)まで306m その他 ほっともっと美野島店(飲食店)まで386m | ||
| 建物種別 | マンション | 建物構造 | RC(鉄筋コンクリート) |
この部屋の取扱い不動産会社
| 会社名 | (株)栄信不動産(SUUMO経由) | ||
|---|---|---|---|
| 所在地 | 福岡県福岡市博多区博多駅南1-3-8 博多パールビル805 | 交通 | - |
| 営業時間 | 10:00~19:00 | 定休日 | 毎週水曜日 |
| 免許番号 | 福岡県知事18594 | 取引態様 | 仲介 |
| 不動産会社管理番号 | 100483858169 | 当社管理番号 | 89 |
| 所属団体 | (公社)全日本不動産協会福岡県本部会員 | ||
| 公正取引協議会 | (一社)九州不動産公正取引協議会加盟 | ||
| 取扱い物件情報 | 物件詳細へ | ||
※各種情報と現状に差異がある場合は、現状優先となります。問い合わせをすることで、より詳しい条件、情報を確認する事ができます。
提供:(株)栄信不動産(SUUMO経由)
この物件が気になったら掲載期限まであと11日
モダンパラッツォ博多デュオグランデウエストに条件(家賃・エリア)が近い物件一覧
| 写真 | 家賃 管理費等 | 敷金 礼金 | 間取り 専有面積 | 築年数 | 最寄り駅 所在地 | キープ | 詳細 |
|---|---|---|---|---|---|---|---|
アパート ISOLA板付(2LDK/1階) | |||||||
![]() | 11.6万円 6,500円 | 5.8万円 11.6万円 | 2LDK 57.37m2 | 築1年 | 鹿児島本線 笹原駅 徒歩20分 西鉄天神大牟田線 井尻駅 徒歩20分 西鉄天神大牟田線 雑餉隈駅 徒歩26分 福岡県福岡市博多区 | 詳細を見る | |
マンション ETERUNO(2SLDK/3階) | |||||||
![]() | 10.9万円 6,500円 | なし 21.8万円 | 2SLDK 60.96m2 | 新築 | 西鉄天神大牟田線 雑餉隈駅 徒歩16分 JR鹿児島本線 笹原駅 徒歩22分 福岡県福岡市博多区麦野 | 詳細を見る | |
タウンハウス 春日市伯玄町ヘーベルメゾン(3LDK) | |||||||
![]() | 12.4万円 なし | なし 24.8万円 | 3LDK 55.09m2 | 築1年 | 鹿児島本線 南福岡駅 徒歩17分 鹿児島本線 春日駅(福岡) 徒歩18分 西鉄天神大牟田線 桜並木駅 徒歩23分 福岡県春日市伯玄町2丁目 | 詳細を見る | |
マンション MODERN PALAZZO 博多デュオグランデイースト(2LDK/7階) | |||||||
| 17.4万円 5,000円 | なし なし | 2LDK 53.06m2 | 築1年 | 福岡市空港線 博多駅 徒歩12分 福岡市七隈線 渡辺通駅 徒歩18分 福岡市空港線 祇園駅(福岡) 徒歩19分 福岡県福岡市博多区美野島1丁目5-1 | 詳細を見る | ||
マンション FMTレジデンス博多(2LDK/10階) | |||||||
| 19.9万円 8,500円 | なし 29.85万円 | 2LDK 79.55m2 | 築2年 | 西鉄天神大牟田線 西鉄平尾駅 徒歩16分 西鉄天神大牟田線 高宮駅(福岡) 徒歩19分 福岡市空港線 博多駅 徒歩20分 福岡県福岡市博多区美野島3丁目 | 詳細を見る | ||
マンション エクセレンテシャルム(2LDK/1階) | |||||||
![]() | 10.5万円 5,000円 | 5.25万円 26.25万円 | 2LDK 59.74m2 | 築15年 | 鹿児島本線 笹原駅 徒歩16分 西鉄天神大牟田線 井尻駅 徒歩16分 鹿児島本線 竹下駅 徒歩21分 福岡県福岡市博多区諸岡3丁目 | 詳細を見る | |
マンション アプローズ諸岡(4LDK/6階) | |||||||
![]() | 23万円 なし | なし 46万円 | 4LDK 94.23m2 | 築25年 | 鹿児島本線 笹原駅 徒歩16分 西鉄天神大牟田線 井尻駅 徒歩16分 鹿児島本線 竹下駅 徒歩20分 福岡県福岡市博多区諸岡3丁目 | 詳細を見る | |





