賃貸マンション
ベルシード板橋ノースの賃貸物件情報(1K/2階)
| 家賃 | 管理費等 | 敷金 | 礼金 | 間取り | 専有面積 |
|---|---|---|---|---|---|
| 8.95万円 | 1万円 | なし | 8.95万円 | 1K | 25.5m2 |
入居決定でお祝い金最大100,000円
- 保証金
- 9.95万円
- 償却・敷引
- 9.95万円
- 築年数
- 築5年
- 所在階
- 2階
- 向き
- 南
Point
契約金のお見積もりや室内写真のご希望など、ご質問・ご要望はお気軽にお問い合わせください。【初期費用の分割・クレジットカード決済可能です】
提供:(株)ウチミツカル新宿店(SUUMO経由)

詳細情報 ベルシード板橋ノース
物件紹介
ベルシード板橋ノースは都営三田線蓮根駅から徒歩9分にあり、駅近で通勤通学に便利なマンションです。
このお部屋は2階以上に位置しているので、通行人や周囲の住人からの視線が気になりにくく、防犯面でも安心。建物のエントランスはオートロックがついており、インターホンにはTVモニタもついているため、相手の顔を確認してから来客対応することができます。
人気の南向きのお部屋。また、フローリングなのでお掃除もラクラク。キッチンはシステムキッチン仕様になっていますので、お料理好きの方にもぴったり。バス・トイレは別なので、のんびりお風呂タイムも楽しめるでしょう。また、雨の日でも浴室乾燥機を使えば、お洗濯も問題ありません。
通信設備面では、インターネットが無料で使えるので、月々の出費を抑えられるのも魅力です(別途工事等が必要な場合あり)。
建物にはエレベーターがついているので、重い荷物があっても安心。共用部には宅配ボックスが設定されているので、不在の時にも荷物を受け取ることができます。
このお部屋は2階以上に位置しているので、通行人や周囲の住人からの視線が気になりにくく、防犯面でも安心。建物のエントランスはオートロックがついており、インターホンにはTVモニタもついているため、相手の顔を確認してから来客対応することができます。
人気の南向きのお部屋。また、フローリングなのでお掃除もラクラク。キッチンはシステムキッチン仕様になっていますので、お料理好きの方にもぴったり。バス・トイレは別なので、のんびりお風呂タイムも楽しめるでしょう。また、雨の日でも浴室乾燥機を使えば、お洗濯も問題ありません。
通信設備面では、インターネットが無料で使えるので、月々の出費を抑えられるのも魅力です(別途工事等が必要な場合あり)。
建物にはエレベーターがついているので、重い荷物があっても安心。共用部には宅配ボックスが設定されているので、不在の時にも荷物を受け取ることができます。
お金・契約の情報
※「-」と表示されているものは、実際は料金が発生するものもございます。詳細はお問い合わせください。
| 家賃 | 8.95万円 | 管理費・共益費 | 1万円 |
|---|---|---|---|
| 敷金 | なし | 礼金 | 8.95万円 |
| 入居決定でお祝い金最大100,000円 | |||
| 保証金 | 9.95万円 | 償却・敷引 | 9.95万円 |
| 住宅保険料 | - | 更新料 | - |
| 保証会社利用 | 必須 | 保証会社名 | - |
| 保証会社費用 | - | 保証会社備考 | 保証会社利用必 初回保証料:総賃料50% 月額保証料:770円 |
| 契約形態 | - | 契約期間 | - |
| 入居・引渡期間 | - | 現況 | - |
| 契約備考 | 初期費用の分割・クレジットカード決済可能です。お気軽にご相談下さい。退去時精算:エアコン清掃費16500円。 合計2.75万円(内訳:鍵交換代2.75万円) 更新料 新賃料1.00ヶ月分 24時間サポート 月額800円 1K 普通借家2年 損保【2万円2年】 バストイレ別、バルコニー、エアコン、ガスコンロ対応、クロゼット、フローリング、TVインターホン、浴室乾燥機、オートロック、室内洗濯置、陽当り良好、シューズボックス、システムキッチン、南向き、温水洗浄便座、脱衣所、エレベーター、洗面所独立、洗面化粧台、2口コンロ、駐輪場、宅配ボックス、光ファイバー、外壁タイル張り、敷金不要、防犯カメラ、照明付、分譲賃貸、保証人不要、バイク置場、24時間緊急通報システム、2沿線利用可、ネット専用回線、24時間換気システム、耐火構造、2駅利用可、3駅以上利用可、3沿線以上利用可、駅徒歩10分以内、24時間ゴミ出し可、敷地内ごみ置き場、築5年以内、都市ガス、洗面所にドア、南面バルコニー、玄関収納、年度内入居可、礼金1ヶ月、IT重説対応物件、初期費用カード決済可 入居日:'26年2月中旬 | ||
部屋の情報
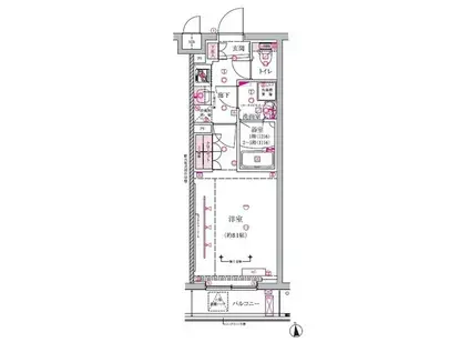
| 間取り | 1K | 専有面積 | 25.5m2 |
|---|---|---|---|
| 所在階 / 向き | 2階 / 南 | バルコニー面積 | - |
| 水道 / ガス | - | ||
| 設備 | バス・トイレ別、2階以上、オートロック、テレビドアホン、宅配ボックス、浴室乾燥機、インターネット対応、システムキッチン、エアコン、エレベーター、温水洗浄便座、南向き、バルコニー、フローリング、洗髪洗面化粧台、2口コンロ、コンロ:ガス、洗濯機:室内 | ||
| 当社物件ID | 47112710 | ||
建物の情報
| 建物名 | ベルシード板橋ノース | ||
|---|---|---|---|
| 所在地 | 東京都板橋区蓮根 | ||
| 交通 | 都営三田線 蓮根駅 徒歩9分 都営三田線 西台駅 徒歩10分 JR埼京線 浮間舟渡駅 徒歩19分 | ||
| 階数 | 5階建 | 総戸数 | - |
| 築年月 | 2021年02月 / 築5年 | エレベーター | あり |
| 駐車場 | なし | バイク置き場 | あり |
| 駐輪場 | あり | 管理人/管理会社 | - |
| 周辺環境 | その他 西台駅(その他)まで807m その他 蓮根駅(その他)まで745m その他 浮間舟渡駅(その他)まで1562m その他 志村三丁目駅(その他)まで1828m その他 高島平駅(その他)まで1756m その他 戸田公園駅(その他)まで2888m | ||
| 建物種別 | マンション | 建物構造 | RC(鉄筋コンクリート) |
この部屋の取扱い不動産会社
| 会社名 | (株)ルームワン上野店(SUUMO経由) | ||
|---|---|---|---|
| 所在地 | 東京都台東区上野6-16-16 黒田ビル3階 | 交通 | - |
| 営業時間 | 10:00~19:00 | 定休日 | 水曜日 |
| 免許番号 | 東京都知事106608 | 取引態様 | 仲介 |
| 不動産会社管理番号 | 100475874539 | 当社管理番号 | 89 |
| 所属団体 | (公社)全日本不動産協会東京都本部会員 | ||
| 公正取引協議会 | (公社)首都圏不動産公正取引協議会加盟 | ||
| 取扱い物件情報 | 物件詳細へ | ||
※各種情報と現状に差異がある場合は、現状優先となります。問い合わせをすることで、より詳しい条件、情報を確認する事ができます。
提供:(株)ルームワン上野店(SUUMO経由)
この物件が気になったら掲載期限まであと10日
ベルシード板橋ノースに条件(家賃・エリア)が近い物件一覧
| 写真 | 家賃 管理費等 | 敷金 礼金 | 間取り 専有面積 | 築年数 | 最寄り駅 所在地 | キープ | 詳細 |
|---|---|---|---|---|---|---|---|
マンション コンフォート東十条(1K/4階) | |||||||
![]() | 5.5万円 5,000円 | なし なし | 1K 19.06m2 | 築36年 | JR京浜東北線 東十条駅 徒歩2分 JR埼京線 十条駅(東京) 徒歩10分 東京メトロ南北線 王子神谷駅 徒歩10分 東京都北区東十条 | 詳細を見る | |
マンション アイビー千川(1K/3階) | |||||||
![]() | 7.5万円 なし | 7.5万円 7.5万円 | 1K 19.97m2 | 築29年 | 東京メトロ有楽町線 千川駅 徒歩2分 東京メトロ副都心線 千川駅 徒歩2分 西武池袋線 東長崎駅 徒歩15分 東京都豊島区要町 | 詳細を見る | |
アパート ワイズワン(1K/1階) | |||||||
![]() | 5.5万円 3,000円 | 5.5万円 5.5万円 | 1K 17m2 | 築66年 | 東京メトロ副都心線 池袋駅 徒歩8分 JR山手線 池袋駅 徒歩10分 東京メトロ有楽町線 要町駅 徒歩12分 東京都豊島区池袋 | 詳細を見る | |
マンション サニーガーデン(1K/2階) | |||||||
![]() | 7.8万円 2,000円 | 7.8万円 7.8万円 | 1K 21.93m2 | 築16年 | 東武東上線 上板橋駅 徒歩7分 東武東上線 東武練馬駅 徒歩15分 都営三田線 志村三丁目駅 徒歩22分 東京都板橋区若木 | 詳細を見る | |
マンション 高島平THEGARDENレジデンス(1K/10階) | |||||||
![]() | 8.25万円 1.5万円 | なし 8.25万円 | 1K 21.99m2 | 築1年 | 東京都三田線 高島平駅 徒歩3分 東京都板橋区高島平8丁目 | 詳細を見る | |
マンション シャンボール大和郷(1DK/6階) | |||||||
![]() | 8万円 5,000円 | 8万円 8万円 | 1DK 30m2 | 築53年 | JR山手線 田端駅 徒歩8分 JR山手線 駒込駅 徒歩10分 JR高崎線 尾久駅 徒歩25分 東京都北区田端 | 詳細を見る | |
マンション ARKMARK志茂STA(1DK/5階) | |||||||
![]() | 9.7万円 1.8万円 | なし なし | 1DK 25.57m2 | 築5年 | 東京メトロ南北線 志茂駅 徒歩1分 東京都北区志茂 | 詳細を見る | |
アパート プレシャスガーデン(ワンルーム/1階) | |||||||
![]() | 7万円 4,100円 | なし 7万円 | ワンルーム 28.31m2 | 築17年 | 西武新宿線 武蔵関駅 徒歩20分 西武新宿線 上石神井駅 徒歩22分 西武池袋線 大泉学園駅 徒歩22分 東京都練馬区石神井台 | 詳細を見る | |






