賃貸マンション
メゾンドインペリアルIの賃貸物件情報(2LDK/3階)
| 家賃 | 管理費等 | 敷金 | 礼金 | 間取り | 専有面積 |
|---|---|---|---|---|---|
| 4.5万円 | 3,000円 | 4.5万円 | なし | 2LDK | 51.17m2 |
入居決定でお祝い金最大100,000円
- 保証金
- -
- 償却・敷引
- -
- 築年数
- 築31年
- 所在階
- 3階
- 向き
- 南
- 交通
- 函館本線 白石駅(JR北海道) バス乗車時間:9分 菊水元町9−2バス停で下車 徒歩3分
- 所在地
- 北海道札幌市白石区菊水元町八条2丁目
メゾンドインペリアルI
[地図を表示]
Point
まずはお問い合わせ!
不動産会社は街のプロ、あなたに合った物件がきっと見つかります。
提供:アパマンショップひばりヶ丘駅前店

詳細情報 メゾンドインペリアルI
物件紹介
このお部屋は2階以上に位置しているので、通行人や周囲の住人からの視線が気になりにくく、防犯面でも安心。インターホンにはTVモニタもついているため、相手の顔を確認してから来客対応することができます。
人気の南向きのお部屋。バス・トイレ別の仕様で、のんびりお風呂タイムも楽しめます。
通信設備面では、インターネットが無料で使えるので、月々の出費を抑えられるのも魅力です(別途工事等が必要な場合あり)。
人気の南向きのお部屋。バス・トイレ別の仕様で、のんびりお風呂タイムも楽しめます。
通信設備面では、インターネットが無料で使えるので、月々の出費を抑えられるのも魅力です(別途工事等が必要な場合あり)。
お金・契約の情報
※「-」と表示されているものは、実際は料金が発生するものもございます。詳細はお問い合わせください。
| 家賃 | 4.5万円 | 管理費・共益費 | 3,000円 |
|---|---|---|---|
| 敷金 | 4.5万円 | 礼金 | なし |
| 入居決定でお祝い金最大100,000円 | |||
| 保証金 | - | 償却・敷引 | - |
| 住宅保険料 | - | 更新料 | - |
| 保証会社利用 | 必須 | 保証会社名 | セーフティー・CIZ |
| 保証会社費用 | - | 保証会社備考 | CIZ 初回保証料 月額賃料の90% 更新料無しセーフティー 初回保証料 月額賃料の60% 更新料12,000円/年 |
| 契約形態 | - | 契約期間 | 2年 |
| 入居・引渡期間 | 相談 | 現況 | - |
| 契約備考 | 24時間管理費 550円/口座振替手数料 220円/室内清掃費用 33000円 | ||
部屋の情報
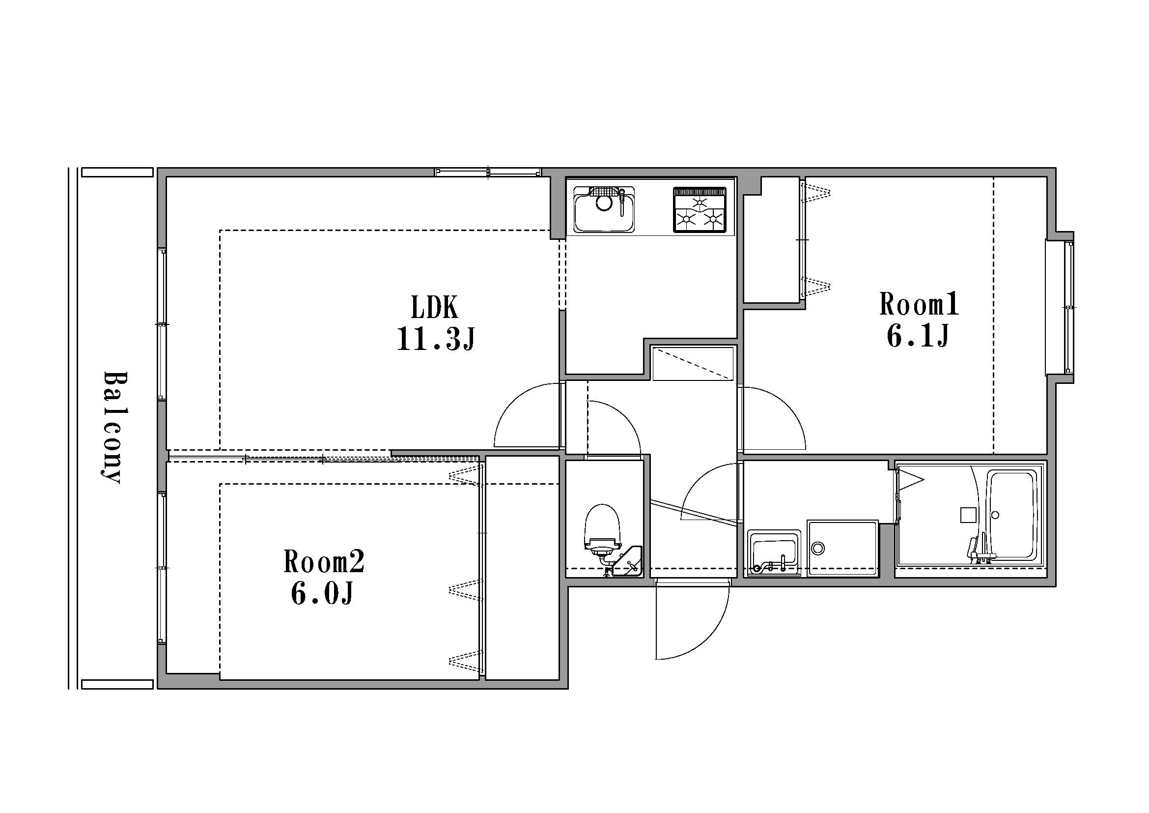
| 間取り | 2LDK | 専有面積 | 51.17m2 |
|---|---|---|---|
| 間取り詳細 | LD(8.5帖)、K(2.5帖)、洋室(7.5帖)、和室(6帖) | ||
| 所在階 / 向き | 3階 / 南 | バルコニー面積 | - |
| 水道 / ガス | ガス【プロパン】 | ||
| 設備 | バス・トイレ別、テレビドアホン、インターネット対応、バルコニー、インターネット使用料無料、洗濯機:室内 | ||
| 当社物件ID | 19799694 | ||
建物の情報
| 建物名 | メゾンドインペリアルI | ||
|---|---|---|---|
| 所在地 | 北海道札幌市白石区菊水元町八条2丁目 | ||
| 交通 | 函館本線 白石駅(JR北海道) バス乗車時間:9分 菊水元町9−2バス停で下車 徒歩3分 | ||
| 階数 | 4階建 | 総戸数 | 16戸 |
| 築年月 | 1995年10月 / 築31年 | エレベーター | - |
| 駐車場 | 空有 7,700円/月 4番 東側、ブロック塀から3台目 | バイク置き場 | - |
| 駐輪場 | - | 管理人/管理会社 | - |
| 建物種別 | マンション | 建物構造 | RC(鉄筋コンクリート) |
この部屋の取扱い不動産会社
| 会社名 | アパマンショップ南平岸店 | ||
|---|---|---|---|
| 所在地 | 北海道札幌市豊平区平岸3条14丁目 3-3紅桜観光ビル1F | 交通 | 札幌市南北線南平岸から徒歩1分 |
| 営業時間 | 09:00〜19:00(2019年2月より移転しました) | 定休日 | - |
| 免許番号 | 北海道知事石狩(5)6754 | 取引態様 | 仲介 |
| 不動産会社管理番号 | 103359853 | 当社管理番号 | 4 |
| 所属団体 | (公社) 全日本不動産協会北海道本部 | ||
| 公正取引協議会 | (一社) 北海道不動産公正取引協議会加盟 | ||
| 取扱い物件情報 | 物件詳細へ | ||
※各種情報と現状に差異がある場合は、現状優先となります。問い合わせをすることで、より詳しい条件、情報を確認する事ができます。
提供:アパマンショップ南平岸店
この物件が気になったら掲載期限まであと10日
メゾンドインペリアルIに条件(家賃・エリア)が近い物件一覧
| 写真 | 家賃 管理費等 | 敷金 礼金 | 間取り 専有面積 | 築年数 | 最寄り駅 所在地 | キープ | 詳細 |
|---|---|---|---|---|---|---|---|
マンション WINNIE LOURSON(1DK/4階) | |||||||
![]() | 4.7万円 3,000円 | なし なし | 1DK 27.23m2 | 築14年 | 地下鉄東西線 菊水駅 徒歩2分 地下鉄東西線 バスセンター前駅 徒歩16分 地下鉄東豊線 学園前駅(札幌) 徒歩19分 北海道札幌市白石区菊水三条 | 詳細を見る | |
アパート グリーンコーポⅡ(2DK/2階) | |||||||
![]() | 3.4万円 なし | なし 3.4万円 | 2DK 46.2m2 | 築113年 | 函館本線 南小樽駅 徒歩28分 北海道小樽市松ケ枝1丁目 | 詳細を見る | |
アパート レオパレス グレイスポプラ(1K/2階) | |||||||
![]() | 4.8万円 6,500円 | なし なし | 1K 23.18m2 | 築18年 | 北海道江別市大麻扇町 | 詳細を見る | |
アパート レオパレス千(1K/1階) | |||||||
![]() | 5.8万円 6,500円 | なし 11.6万円 | 1K 23.18m2 | 築22年 | 北海道石狩市花川南十条1丁目 | 詳細を見る | |
マンション グローリー菊水上町(1LDK/2階) | |||||||
![]() | 4.1万円 3,000円 | なし なし | 1LDK 36.78m2 | 築22年 | 千歳線 苗穂駅 徒歩13分 北海道札幌市白石区菊水上町一条2丁目 | 詳細を見る | |
アパート レオパレス南郷7丁目第14(1K/2階) | |||||||
![]() | 4.9万円 4,000円 | なし 4.9万円 | 1K 19.04m2 | 築37年 | 札幌市東西線 南郷7丁目駅 徒歩3分 北海道札幌市白石区本郷通7丁目南 | 詳細を見る | |
マンション プランドール大地(1LDK/2階) | |||||||
![]() | 5.4万円 3,000円 | 5.4万円 なし | 1LDK 34.52m2 | 築11年 | 地下鉄東西線 南郷18丁目駅 徒歩8分 地下鉄東西線 大谷地駅 徒歩12分 地下鉄東西線 南郷13丁目駅 徒歩23分 北海道札幌市白石区南郷通21丁目南 | 詳細を見る | |
アパート オタモイ1丁目一棟二戸(2LDK/1階) | |||||||
![]() | 5万円 なし | 5万円 なし | 2LDK 57.82m2 | 築38年 | JR函館本線 小樽駅 徒歩45分 JR函館本線 塩谷駅 徒歩61分 北海道小樽市オタモイ | 詳細を見る | |








