賃貸マンション
アルテシモ ピトレの賃貸物件情報(1K/2階)
| 家賃 | 管理費等 | 敷金 | 礼金 | 間取り | 専有面積 |
|---|---|---|---|---|---|
| 11.5万円 | 1万円 | なし | 11.5万円 | 1K | 24.02m2 |
入居決定でお祝い金最大100,000円
- 保証金
- -
- 償却・敷引
- -
- 築年数
- 築9年
- 所在階
- 2階
- 向き
- 南西
Point
《創業30年・東急沿線中心に10店舗・宅建保有率80%超》経験×エリア×スキルが強みの不動産会社です!【未公開情報多数】【初期費用分割払い可能】様々な角度からご提案致します★お気軽にお問合せください★
提供:Balleggs (株)バレッグス品川駅前支店(SUUMO経由)

詳細情報 アルテシモ ピトレ
物件紹介
アルテシモ ピトレはJR山手線五反田駅から徒歩8分にあり、駅近で通勤通学に便利なマンションです。
このお部屋は2階以上に位置しているので、通行人や周囲の住人からの視線が気になりにくく、防犯面でも安心。建物のエントランスはオートロックがついており、インターホンにはTVモニタもついているため、相手の顔を確認してから来客対応することができます。
おしゃれなデザイナーズ物件!人気の南向き・フローリングのお部屋。角部屋でもあるため、周囲の居住者の生活音も気になりにくい場所です。室内にはウォークインクローゼットがありますので、たくさんの荷物も効率的に収納ができます。キッチンはシステムキッチン仕様になっていますので、お料理好きの方にもぴったり。バス・トイレは別なので、のんびりお風呂タイムも楽しめるでしょう。また、雨の日でも浴室乾燥機を使えば、お洗濯も問題ありません。
通信設備面では、インターネットが無料で使えるので、月々の出費を抑えられるのも魅力です。また、BSアンテナ・CSアンテナがありCATVにも対応しているので、おうち時間も充実するでしょう(別途工事、BS・CS・CATVの契約料等が必要な場合あり)。
建物にはエレベーターがついているので、重い荷物があっても安心。共用部には宅配ボックスが設定されているので、不在の時にも荷物を受け取ることができます。また、ペット飼育の相談ができますので、あなたの大切な家族の一員も快適に暮らせるか、ぜひ確認してみてください。
このお部屋は2階以上に位置しているので、通行人や周囲の住人からの視線が気になりにくく、防犯面でも安心。建物のエントランスはオートロックがついており、インターホンにはTVモニタもついているため、相手の顔を確認してから来客対応することができます。
おしゃれなデザイナーズ物件!人気の南向き・フローリングのお部屋。角部屋でもあるため、周囲の居住者の生活音も気になりにくい場所です。室内にはウォークインクローゼットがありますので、たくさんの荷物も効率的に収納ができます。キッチンはシステムキッチン仕様になっていますので、お料理好きの方にもぴったり。バス・トイレは別なので、のんびりお風呂タイムも楽しめるでしょう。また、雨の日でも浴室乾燥機を使えば、お洗濯も問題ありません。
通信設備面では、インターネットが無料で使えるので、月々の出費を抑えられるのも魅力です。また、BSアンテナ・CSアンテナがありCATVにも対応しているので、おうち時間も充実するでしょう(別途工事、BS・CS・CATVの契約料等が必要な場合あり)。
建物にはエレベーターがついているので、重い荷物があっても安心。共用部には宅配ボックスが設定されているので、不在の時にも荷物を受け取ることができます。また、ペット飼育の相談ができますので、あなたの大切な家族の一員も快適に暮らせるか、ぜひ確認してみてください。
お金・契約の情報
※「-」と表示されているものは、実際は料金が発生するものもございます。詳細はお問い合わせください。
| 家賃 | 11.5万円 | 管理費・共益費 | 1万円 |
|---|---|---|---|
| 敷金 | なし | 礼金 | 11.5万円 |
| 入居決定でお祝い金最大100,000円 | |||
| 保証金 | - | 償却・敷引 | - |
| 住宅保険料 | - | 更新料 | - |
| 保証会社利用 | 必須 | 保証会社名 | - |
| 保証会社費用 | - | 保証会社備考 | 保証会社利用必 ≪エポス≫初回保証料50%(月額保証料総賃料1%)≪ジェイリース≫初回保証料50%(月額保証料総賃料1%)※外国籍プラン:初回保証料100% |
| 契約形態 | - | 契約期間 | - |
| 入居・引渡期間 | - | 現況 | - |
| 入居可能条件 | ペット相談 | ||
| 契約備考 | 合計6.5万円(内訳:事務手数料20000円/24時間緊急駆けつけ対応20000円/鍵交換代25000円) 1K 二人入居可/ペット相談/事務所利用不可 普通借家2年 損保【2万円2年】 バストイレ別、バルコニー、エアコン、ガスコンロ対応、クロゼット、フローリング、浴室乾燥機、オートロック、室内洗濯置、シューズボックス、システムキッチン、角住戸、温水洗浄便座、エレベーター、洗面所独立、洗面化粧台、2口コンロ、駐輪場、宅配ボックス、外壁タイル張り、BS・CS、敷金不要、防犯カメラ、ペット相談、ウォークインクロゼット、デザイナーズ、2沿線利用可、ディンプルキー、ネット使用料不要、ダブルロックキー、保証金不要、24時間換気システム、3駅以上利用可、駅徒歩10分以内、南西向き、都市ガス、礼金1ヶ月、IT重説対応物件、家賃カード決済可 入居日:'26年4月上旬 | ||
部屋の情報
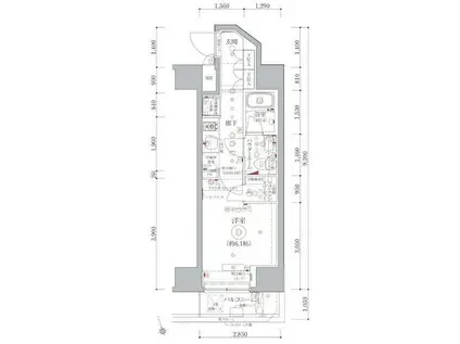
| 間取り | 1K | 専有面積 | 24.02m2 |
|---|---|---|---|
| 所在階 / 向き | 2階 / 南西 | バルコニー面積 | 2m2 |
| 水道 / ガス | - | ||
| 設備 | バス・トイレ別、2階以上、オートロック、宅配ボックス、浴室乾燥機、ウォークインクローゼット、インターネット対応、システムキッチン、エアコン、エレベーター、温水洗浄便座、南向き、角部屋、バルコニー、フローリング、洗髪洗面化粧台、2口コンロ、コンロ:ガス、デザイナーズ、CSアンテナ、BSアンテナ、インターネット使用料無料、洗濯機:室内 | ||
| 当社物件ID | 25748100 | ||
建物の情報
| 建物名 | アルテシモ ピトレ | ||
|---|---|---|---|
| 所在地 | 東京都品川区東五反田 | ||
| 交通 | JR山手線 五反田駅 徒歩8分 JR山手線 大崎駅 徒歩10分 都営浅草線 高輪台駅 徒歩12分 | ||
| 階数 | 14階建 | 総戸数 | - |
| 築年月 | 2017年11月 / 築9年 | エレベーター | あり |
| 駐車場 | なし | バイク置き場 | - |
| 駐輪場 | あり | 管理人/管理会社 | - |
| 周辺環境 | その他 五反田駅(その他)まで689m | ||
| 建物種別 | マンション | 建物構造 | RC(鉄筋コンクリート) |
この部屋の取扱い不動産会社
| 会社名 | Balleggs (株)バレッグス自由が丘支店(SUUMO経由) | ||
|---|---|---|---|
| 所在地 | 東京都目黒区自由が丘1-8-23 栗山ビル2階 | 交通 | - |
| 営業時間 | 10時~18時(電話受付は12時~13時以外) | 定休日 | 火曜日、水曜日 |
| 免許番号 | 東京都知事62730 | 取引態様 | 仲介 |
| 不動産会社管理番号 | 100484518494 | 当社管理番号 | 89 |
| 所属団体 | (公社)東京都宅地建物取引業協会会員 | ||
| 公正取引協議会 | (公社)首都圏不動産公正取引協議会加盟 | ||
| 取扱い物件情報 | 物件詳細へ | ||
※各種情報と現状に差異がある場合は、現状優先となります。問い合わせをすることで、より詳しい条件、情報を確認する事ができます。
提供:Balleggs (株)バレッグス自由が丘支店(SUUMO経由)
この物件が気になったら掲載期限まであと11日
アルテシモ ピトレに条件(家賃・エリア)が近い物件一覧
| 写真 | 家賃 管理費等 | 敷金 礼金 | 間取り 専有面積 | 築年数 | 最寄り駅 所在地 | キープ | 詳細 |
|---|---|---|---|---|---|---|---|
マンション シャルマンドミール(2LDK/2階) | |||||||
![]() | 17.6万円 3,000円 | 17.6万円 35.2万円 | 2LDK 57.22m2 | 築11年 | 京浜急行電鉄本線 大森町駅 徒歩14分 京浜急行電鉄本線 梅屋敷駅(東京) 徒歩15分 東京都大田区大森南1丁目 | 詳細を見る | |
マンション 品川シーサイドビュータワー2(1K/17階) | |||||||
![]() | 15.1万円 1万円 | なし 22.65万円 | 1K 42.38m2 | 築23年 | 東京臨海高速鉄道 品川シーサイド駅 徒歩2分 東京都品川区東品川4丁目 | 詳細を見る | |
アパート エトワール(1LDK/2階) | |||||||
![]() | 12.9万円 6,000円 | なし 12.9万円 | 1LDK 32.59m2 | 築14年 | JR京浜東北線 大森駅(東京) 徒歩20分 都営浅草線 西馬込駅 徒歩21分 東急池上線 池上駅 徒歩21分 東京都大田区中央 | 詳細を見る | |
マンション ジェノヴィア蒲田3スカイガーデン(1K/4階) | |||||||
![]() | 12万円 1.5万円 | なし なし | 1K 25.41m2 | 築5年 | 京浜急行電鉄本線 京急蒲田駅 徒歩6分 京浜急行電鉄空港線 糀谷駅 徒歩10分 京浜東北・根岸線 蒲田駅 徒歩15分 東京都大田区南蒲田2丁目 | 詳細を見る | |
マンション レジディア大井町Ⅱ(ワンルーム/9階) | |||||||
![]() | 15.6万円 2万円 | なし なし | ワンルーム 30.24m2 | 築19年 | 東急大井町線 大井町駅 徒歩5分 東京都品川区大井1丁目 | 詳細を見る | |
マンション ネオコート久が原(ワンルーム/1階) | |||||||
![]() | 7.8万円 4,000円 | なし 3.9万円 | ワンルーム 27.37m2 | 築29年 | 東急池上線 池上駅 徒歩13分 東急池上線 千鳥町駅 徒歩14分 東急多摩川線 武蔵新田駅 徒歩20分 東京都大田区久が原 | 詳細を見る | |
マンション パラスト蒲田(1LDK/12階) | |||||||
![]() | 16万円 1万円 | 16万円 16万円 | 1LDK 46.25m2 | 築48年 | JR京浜東北線 蒲田駅 徒歩4分 京急本線 京急蒲田駅 徒歩10分 東急池上線 蓮沼駅 徒歩16分 東京都大田区蒲田 | 詳細を見る | |







