賃貸アパート
グロリアスコートの賃貸物件情報(ワンルーム/2階)
| 家賃 | 管理費等 | 敷金 | 礼金 | 間取り | 専有面積 |
|---|---|---|---|---|---|
| 5.65万円 | 3,500円 | 5.65万円 | 5.65万円 | ワンルーム | 11.01m2 |
入居決定でお祝い金最大100,000円
- 保証金
- -
- 償却・敷引
- -
- 築年数
- 築20年
- 所在階
- 2階
- 向き
- 南東
Point
水曜日営業しております♪初期費用分割、現金・クレジットカード決済可能です♪他社様の取扱い物件も全て一括してご紹介可能・他社さんに行かなくても当社でご紹介いたします♪
提供:Home Agent新宿本店(株)ジャパンリアルエステート(SUUMO経由)

詳細情報 グロリアスコート
物件紹介
グロリアスコートは西武有楽町線新桜台駅から徒歩3分にあり、駅近で通勤通学に便利なアパートです。
このお部屋は2階以上に位置しているので、通行人や周囲の住人からの視線が気になりにくく、防犯面でも安心です。
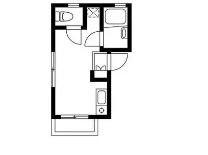
おしゃれなデザイナーズ物件!人気の南向き・フローリングのお部屋。角部屋でもあるため、周囲の居住者の生活音も気になりにくい場所です。キッチンはシステムキッチン仕様になっていますので、お料理好きの方にもぴったり。また、バス・トイレは別で、のんびりお風呂タイムも楽しめるでしょう。
通信設備面では、インターネットが無料で使えるので、月々の出費を抑えられるのも魅力です(別途工事等が必要な場合あり)。
床暖房があり、冬も足元から暖かく快適に過ごすことができます。
このお部屋は2階以上に位置しているので、通行人や周囲の住人からの視線が気になりにくく、防犯面でも安心です。
おしゃれなデザイナーズ物件!人気の南向き・フローリングのお部屋。角部屋でもあるため、周囲の居住者の生活音も気になりにくい場所です。キッチンはシステムキッチン仕様になっていますので、お料理好きの方にもぴったり。また、バス・トイレは別で、のんびりお風呂タイムも楽しめるでしょう。
通信設備面では、インターネットが無料で使えるので、月々の出費を抑えられるのも魅力です(別途工事等が必要な場合あり)。
床暖房があり、冬も足元から暖かく快適に過ごすことができます。
お金・契約の情報
※「-」と表示されているものは、実際は料金が発生するものもございます。詳細はお問い合わせください。
| 家賃 | 5.65万円 | 管理費・共益費 | 3,500円 |
|---|---|---|---|
| 敷金 | 5.65万円 | 礼金 | 5.65万円 |
| 入居決定でお祝い金最大100,000円 | |||
| 保証金 | - | 償却・敷引 | - |
| 住宅保険料 | - | 更新料 | - |
| 保証会社利用 | 必須 | 保証会社名 | - |
| 保証会社費用 | - | 保証会社備考 | 保証会社利用必 【初回】賃料+管理費の総額の50%【月額】賃料+管理費の総額の1% |
| 契約形態 | - | 契約期間 | - |
| 入居・引渡期間 | 即時 | 現況 | - |
| 契約備考 | 巡回管理/他社様掲載物件又はご紹介されたすべてのお部屋、通常お家賃の1ヶ月分かかる仲介手数料を半額無料紹介中!初期費用クレジットカードで支払いたい・・・初期費用が少し足りない・・・迷ったらまずはホームエージェントへご相談ください!費用条件が現況状況、契約、サービスの内容に応じて変動する場合がございます。 合計4.86万円(内訳:24時間安心サービス1.62万円鍵交換代1.62万円鍵交換代1.62万円) 更新料 賃料1.00ヶ月分 ワンルーム ルームシェア相談 普通借家2年 損保【2.2万円2年】 バストイレ別、バルコニー、エアコン、フローリング、室内洗濯置、陽当り良好、シューズボックス、システムキッチン、角住戸、温水洗浄便座、光ファイバー、即入居可、閑静な住宅地、IHクッキングヒーター、照明付、保証人不要、カードキー、デザイナーズ、2沿線利用可、仲手0.55ヶ月、ネット専用回線、ネット使用料不要、内装リフォーム済、眺望良好、24時間換気システム、平坦地、ルームシェア相談、2駅利用可、3駅以上利用可、3沿線以上利用可、駅徒歩10分以内、都市ガス、玄関収納、保証会社利用可、IT重説対応物件、LGBTフレンドリー、通風良好 | ||
部屋の情報
| 間取り | ワンルーム | 専有面積 | 11.01m2 |
|---|---|---|---|
| 所在階 / 向き | 2階 / 南東 | バルコニー面積 | - |
| 水道 / ガス | - | ||
| 設備 | バス・トイレ別、2階以上、インターネット対応、システムキッチン、エアコン、温水洗浄便座、南向き、角部屋、バルコニー、フローリング、コンロ:IH、デザイナーズ、インターネット使用料無料、洗濯機:室内 | ||
| 当社物件ID | 2314768 | ||
建物の情報
| 建物名 | グロリアスコート | ||
|---|---|---|---|
| 所在地 | 東京都練馬区羽沢 | ||
| 交通 | 西武有楽町線 新桜台駅 徒歩3分 東京メトロ有楽町線 小竹向原駅 徒歩10分 西武池袋線 江古田駅 徒歩12分 | ||
| 階数 | 3階建 | 総戸数 | - |
| 築年月 | 2006年11月 / 築20年 | エレベーター | - |
| 駐車場 | なし | バイク置き場 | - |
| 駐輪場 | - | 管理人/管理会社 | - |
| 周辺環境 | その他 オリンピック小竹向原店(スーパー)まで523m その他 アコレ 氷川台4丁目店(スーパー)まで1410m その他 まいばすけっと 練馬駅北口店(スーパー)まで1508m その他 ファミリーマート 練馬桜台店(コンビニ)まで759m その他 ローソン 練馬桜台二丁目店(コンビニ)まで1159m その他 ファミリーマート 練馬氷川台店(コンビニ)まで1218m | ||
| 建物種別 | アパート | 建物構造 | 木造 |
この部屋の取扱い不動産会社
| 会社名 | Home Agent新宿本店(株)ジャパンリアルエステート(SUUMO経由) | ||
|---|---|---|---|
| 所在地 | 東京都新宿区西新宿1-14-15-803 | 交通 | - |
| 営業時間 | OP10:00~CL19:00(19時以降 要予約 | 定休日 | 無 |
| 免許番号 | 東京都知事106820 | 取引態様 | 仲介 |
| 不動産会社管理番号 | 100477520776 | 当社管理番号 | 89 |
| 所属団体 | (公社)全日本不動産協会東京都本部会員 | ||
| 公正取引協議会 | (公社)首都圏不動産公正取引協議会加盟 | ||
| 取扱い物件情報 | 物件詳細へ | ||
※各種情報と現状に差異がある場合は、現状優先となります。問い合わせをすることで、より詳しい条件、情報を確認する事ができます。
提供:Home Agent新宿本店(株)ジャパンリアルエステート(SUUMO経由)
この物件が気になったら掲載期限まであと10日
グロリアスコートに条件(家賃・エリア)が近い物件一覧
| 写真 | 家賃 管理費等 | 敷金 礼金 | 間取り 専有面積 | 築年数 | 最寄り駅 所在地 | キープ | 詳細 |
|---|---|---|---|---|---|---|---|
マンション レオパレスチェリーガーデンA(1K/2階) | |||||||
![]() | 8.1万円 5,000円 | なし なし | 1K 19.87m2 | 築24年 | 西武池袋線 保谷駅 徒歩14分 西武新宿線 東伏見駅 徒歩18分 西武新宿線 武蔵関駅 徒歩24分 東京都西東京市東町 | 詳細を見る | |
アパート パークサイド富士見台(1K/2階) | |||||||
![]() | 5.5万円 なし | なし なし | 1K 19.53m2 | 築50年 | 西武池袋線 富士見台駅 徒歩7分 西武池袋線 中村橋駅 徒歩12分 西武池袋線 練馬高野台駅 徒歩19分 東京都練馬区貫井 | 詳細を見る | |
アパート サニネス阿佐ヶ谷A(1DK/1階) | |||||||
![]() | 6.4万円 4,000円 | 6.4万円 6.4万円 | 1DK 23.19m2 | 築61年 | JR総武線 阿佐ケ谷駅 徒歩14分 JR中央線 阿佐ケ谷駅 徒歩14分 JR総武線 高円寺駅 徒歩15分 東京都杉並区阿佐谷北 | 詳細を見る | |
アパート ハーモニーテラス・エーデルシュタイン上板橋(ワンルーム/2階) | |||||||
![]() | 6.5万円 4,000円 | なし 6.5万円 | ワンルーム 12.1m2 | 築3年 | 東武東上線 上板橋駅 徒歩8分 東武東上線 ときわ台駅(東京) 徒歩20分 都営三田線 志村三丁目駅 徒歩21分 東京都板橋区中台 | 詳細を見る | |
アパート ラークネストA(ワンルーム/1階) | |||||||
![]() | 7.6万円 3,000円 | 7.6万円 7.6万円 | ワンルーム 25.03m2 | 築2年 | 西武池袋線 ひばりケ丘駅(東京) 徒歩2分 西武池袋線 東久留米駅 徒歩25分 西武池袋線 保谷駅 徒歩29分 東京都西東京市ひばりが丘北 | 詳細を見る | |
アパート グランエッグス杉並松庵(ワンルーム/1階) | |||||||
![]() | 8.3万円 4,000円 | 8.3万円 8.3万円 | ワンルーム 18.72m2 | 築4年 | 京王井の頭線 三鷹台駅 徒歩8分 京王井の頭線 久我山駅 徒歩12分 京王井の頭線 吉祥寺駅 徒歩27分 東京都杉並区松庵 | 詳細を見る | |
アパート キャッスル東大泉(ワンルーム/1階) | |||||||
![]() | 5万円 3,000円 | 5万円 なし | ワンルーム 13.65m2 | 築35年 | 西武池袋線 大泉学園駅 徒歩10分 西武池袋線 石神井公園駅 徒歩24分 東京都練馬区東大泉 | 詳細を見る | |








