賃貸マンション
ALIVIS放出の賃貸物件情報(1DK/4階)
| 家賃 | 管理費等 | 敷金 | 礼金 | 間取り | 専有面積 |
|---|---|---|---|---|---|
| 6.8万円 | 1万円 | なし | 6.8万円 | 1DK | 25.08m2 |
入居決定でお祝い金最大100,000円
Point
まずはお問い合わせ!
不動産会社は街のプロ、あなたに合った物件がきっと見つかります。
提供:アパマンショップ天王寺駅前店

詳細情報 ALIVIS放出
物件紹介
ALIVIS放出はおおさか東線放出駅から徒歩6分にあり、駅近で通勤通学に便利なマンションです。
このお部屋は2階以上に位置しているので、通行人や周囲の住人からの視線が気になりにくく、防犯面でも安心。建物のエントランスはオートロックがついており、インターホンにはTVモニタもついているため、相手の顔を確認してから来客対応することができます。
おしゃれなデザイナーズ物件!フローリングのお部屋なのでお掃除もラクラク。キッチンはシステムキッチン仕様になっていますので、お料理好きの方にもぴったり。バス・トイレは別なので、のんびりお風呂タイムも楽しめるでしょう。また、雨の日でも浴室乾燥機を使えば、お洗濯も問題ありません。
通信設備面では、インターネットが無料で使えるので、月々の出費を抑えられるのも魅力です。また、CATVにも対応しているので、おうち時間も充実するでしょう(別途工事、CATVの契約料等が必要な場合あり)。
建物にはエレベーターがついているので、重い荷物があっても安心。共用部には宅配ボックスが設定されているので、不在の時にも荷物を受け取ることができます。また、ペット飼育の相談ができますので、あなたの大切な家族の一員も快適に暮らせるか、ぜひ確認してみてください。
このお部屋は2階以上に位置しているので、通行人や周囲の住人からの視線が気になりにくく、防犯面でも安心。建物のエントランスはオートロックがついており、インターホンにはTVモニタもついているため、相手の顔を確認してから来客対応することができます。
おしゃれなデザイナーズ物件!フローリングのお部屋なのでお掃除もラクラク。キッチンはシステムキッチン仕様になっていますので、お料理好きの方にもぴったり。バス・トイレは別なので、のんびりお風呂タイムも楽しめるでしょう。また、雨の日でも浴室乾燥機を使えば、お洗濯も問題ありません。
通信設備面では、インターネットが無料で使えるので、月々の出費を抑えられるのも魅力です。また、CATVにも対応しているので、おうち時間も充実するでしょう(別途工事、CATVの契約料等が必要な場合あり)。
建物にはエレベーターがついているので、重い荷物があっても安心。共用部には宅配ボックスが設定されているので、不在の時にも荷物を受け取ることができます。また、ペット飼育の相談ができますので、あなたの大切な家族の一員も快適に暮らせるか、ぜひ確認してみてください。
お金・契約の情報
※「-」と表示されているものは、実際は料金が発生するものもございます。詳細はお問い合わせください。
| 家賃 | 6.8万円 | 管理費・共益費 | 1万円 |
|---|---|---|---|
| 敷金 | なし | 礼金 | 6.8万円 |
| 入居決定でお祝い金最大100,000円 | |||
| 保証金 | - | 償却・敷引 | - |
| 住宅保険料 | - | 更新料 | - |
| 保証会社利用 | 必須 | 保証会社名 | ジェイリース |
| 保証会社費用 | - | 保証会社備考 | 【JWF 保なし 住居 30】初回保証料30%・更新料1万円/年、口振手数料330円(税込) |
| 契約形態 | - | 契約期間 | 2年 |
| 入居・引渡期間 | 2025年12月下旬 | 現況 | - |
| 入居可能条件 | 2人入居可、ペット可 | ||
| 契約備考 | 事務所:不可/小型犬:相談可/猫:相談可/ルームシェア:不可【退去時費用(税込)】1LDK清掃代3.85万円、1K・1DK3.3万円、鍵交換代2.75万円、AC清掃代1.65万円/台【違約金】1年未満総賃料1ヶ月(FRは別途規定有) 【ペット】礼金 | ||
部屋の情報
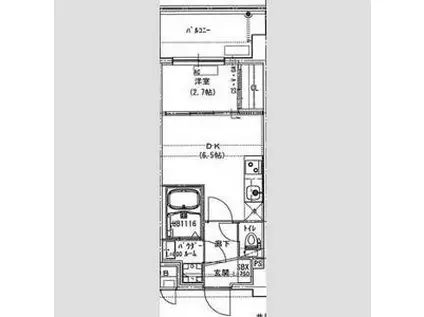
| 間取り | 1DK | 専有面積 | 25.08m2 |
|---|---|---|---|
| 所在階 / 向き | 4階 / 東 | バルコニー面積 | - |
| 水道 / ガス | ガス【都市】 | ||
| 設備 | バス・トイレ別、オートロック、テレビドアホン、宅配ボックス、浴室乾燥機、インターネット対応、システムキッチン、エレベーター、温水洗浄便座、バルコニー、フローリング、コンロ:IH、インターネット使用料無料、冷房 | ||
| 当社物件ID | 160098020 | ||
建物の情報
| 建物名 | ALIVIS放出 | ||
|---|---|---|---|
| 所在地 | 大阪府大阪市城東区放出西3丁目 | ||
| 交通 | おおさか東線 放出駅 徒歩6分 | ||
| 階数 | 11階建 | 総戸数 | 90戸 |
| 築年月 | 2025年12月 / 築1年 | エレベーター | あり |
| 駐車場 | - | バイク置き場 | - |
| 駐輪場 | - | 管理人/管理会社 | - |
| 建物種別 | マンション | 建物構造 | RC(鉄筋コンクリート) |
この部屋の取扱い不動産会社
| 会社名 | アパマンショップ千林店 | ||
|---|---|---|---|
| 所在地 | 大阪府大阪市旭区大宮3丁目 19-12高山ビル | 交通 | 大阪市谷町線千林大宮から徒歩1分 |
| 営業時間 | 10:00〜18:00 | 定休日 | - |
| 免許番号 | 大阪府知事(1)64088 | 取引態様 | 仲介 |
| 不動産会社管理番号 | 111505782 | 当社管理番号 | 4 |
| 所属団体 | 全国宅地建物取引業保証協会大阪本部 | ||
| 公正取引協議会 | (公社) 全国宅地建物取引業協会連合会加盟 | ||
| 取扱い物件情報 | 物件詳細へ | ||
※各種情報と現状に差異がある場合は、現状優先となります。問い合わせをすることで、より詳しい条件、情報を確認する事ができます。
提供:アパマンショップ千林店
この物件が気になったら掲載期限まであと11日
ALIVIS放出の空き部屋一覧
全部で54の空き部屋があります。
ALIVIS放出に条件(家賃・エリア)が近い物件一覧
| 写真 | 家賃 管理費等 | 敷金 礼金 | 間取り 専有面積 | 築年数 | 最寄り駅 所在地 | キープ | 詳細 |
|---|---|---|---|---|---|---|---|
マンション アミニティーハイツ田村(1K/2階) | |||||||
| 4.4万円 3,000円 | なし なし | 1K 25.9m2 | 築37年 | 阪急電鉄千里線 豊津駅(大阪) 徒歩2分 東海道本線 吹田駅(JR) 徒歩20分 北大阪急行南北線 江坂駅 徒歩20分 大阪府吹田市泉町5丁目25-9 | 詳細を見る | ||
アパート レオパレスミレア千里(1K/2階) | |||||||
| 7万円 5,000円 | なし 7万円 | 1K 19.87m2 | 築20年 | 東海道本線 千里丘駅 徒歩8分 阪急電鉄京都線 摂津市駅 徒歩14分 東海道本線 岸辺駅 徒歩25分 大阪府摂津市千里丘2丁目15-47 | 詳細を見る | ||
マンション 豊中ガーデンズコート(ワンルーム/3階) | |||||||
![]() | 7.7万円 8,000円 | なし なし | ワンルーム 41.58m2 | 築39年 | 阪急電鉄宝塚線 岡町駅 徒歩8分 阪急電鉄宝塚線 曽根駅(大阪) 徒歩13分 大阪府豊中市岡町南2丁目 | 詳細を見る | |
アパート レオパレスMARUTO澤田(1K/2階) | |||||||
![]() | 8万円 5,000円 | なし 8万円 | 1K 20.28m2 | 築20年 | 大阪市谷町線 大日駅 徒歩8分 大阪府守口市八雲東町2丁目 | 詳細を見る | |
マンション クレストコート江坂垂水町(1DK/8階) | |||||||
| 9.4万円 8,000円 | なし なし | 1DK 25.32m2 | 新築 | 北大阪急行南北線 江坂駅 徒歩10分 阪急電鉄千里線 豊津駅(大阪) 徒歩10分 阪急電鉄千里線 吹田駅(阪急) 徒歩20分 大阪府吹田市垂水町3丁目16以下 | 詳細を見る | ||
一戸建て 京阪電気鉄道京阪線 西三荘駅 徒歩1分 築32年(3DK) | |||||||
![]() | 6.5万円 なし | 13万円 13万円 | 3DK 53.64m2 | 築32年 | 京阪電気鉄道京阪線 西三荘駅 徒歩1分 京阪電気鉄道京阪線 門真市駅 徒歩5分 大阪市谷町線 大日駅 徒歩19分 大阪府門真市本町 | 詳細を見る | |
アパート プチ・ロワイヤル(2LDK/3階) | |||||||
| 9.6万円 7,500円 | なし 15万円 | 2LDK 65.33m2 | 築28年 | 阪急電鉄京都線 摂津市駅 徒歩8分 大阪モノレール本線 摂津駅 徒歩14分 東海道本線 千里丘駅 徒歩17分 大阪府摂津市東正雀19-20 | 詳細を見る | ||
マンション ファーストフィオーレ吹田レガーメ(1K/7階) | |||||||
| 6.729万円 5,510円 | なし 13.458万円 | 1K 22.05m2 | 築1年 | 東海道本線 岸辺駅 徒歩3分 阪急電鉄京都線 正雀駅 徒歩6分 阪急電鉄京都線 摂津市駅 徒歩26分 大阪府吹田市岸部南1丁目18-3 | 詳細を見る | ||



