賃貸マンション
パークアクシス代官山の賃貸物件情報(1LDK/4階)
| 家賃 | 管理費等 | 敷金 | 礼金 | 間取り | 専有面積 |
|---|---|---|---|---|---|
| 43万円 | 1.5万円 | 43万円 | 43万円 | 1LDK | 58.77m2 |
入居決定でお祝い金最大100,000円
Point
まずはお問い合わせ!
不動産会社は街のプロ、あなたに合った物件がきっと見つかります。
提供:アパマンショップ新宿東口店
/424x317-f1-q70-wp1)
詳細情報 パークアクシス代官山
物件紹介
パークアクシス代官山は東急東横線代官山駅から徒歩5分にあり、駅近で通勤通学に便利なマンションです。
このお部屋は2階以上に位置しているので、通行人や周囲の住人からの視線が気になりにくく、防犯面でも安心。建物のエントランスはオートロックがついており、インターホンにはTVモニタもついているため、相手の顔を確認してから来客対応することができます。
おしゃれなデザイナーズ物件!また、楽器相談が可能な物件となっているので、楽器演奏をお考えの方はぜひ相談してみてください。人気の南向き・フローリングのお部屋。角部屋でもあるため、周囲の居住者の生活音も気になりにくい場所です。室内にはウォークインクローゼットがありますので、たくさんの荷物も効率的に収納ができます。キッチンはシステムキッチン仕様になっていますので、お料理好きの方にもぴったり。バス・トイレは別なので、のんびりお風呂タイムも楽しめるでしょう。また、雨の日でも浴室乾燥機を使えば、お洗濯も問題ありません。
通信設備面では、インターネット接続が可能です。また、BSアンテナ・CSアンテナがありCATVにも対応しているので、おうち時間も充実するでしょう(別途工事、契約料が必要な場合あり)。
床暖房があり、冬も足元から暖かく快適に過ごすことができます。建物にはエレベーターがついているので、重い荷物があっても安心。共用部には宅配ボックスが設定されているので、不在の時にも荷物を受け取ることができます。また、ペット飼育の相談ができますので、あなたの大切な家族の一員も快適に暮らせるか、ぜひ確認してみてください。
このお部屋は2階以上に位置しているので、通行人や周囲の住人からの視線が気になりにくく、防犯面でも安心。建物のエントランスはオートロックがついており、インターホンにはTVモニタもついているため、相手の顔を確認してから来客対応することができます。
おしゃれなデザイナーズ物件!また、楽器相談が可能な物件となっているので、楽器演奏をお考えの方はぜひ相談してみてください。人気の南向き・フローリングのお部屋。角部屋でもあるため、周囲の居住者の生活音も気になりにくい場所です。室内にはウォークインクローゼットがありますので、たくさんの荷物も効率的に収納ができます。キッチンはシステムキッチン仕様になっていますので、お料理好きの方にもぴったり。バス・トイレは別なので、のんびりお風呂タイムも楽しめるでしょう。また、雨の日でも浴室乾燥機を使えば、お洗濯も問題ありません。
通信設備面では、インターネット接続が可能です。また、BSアンテナ・CSアンテナがありCATVにも対応しているので、おうち時間も充実するでしょう(別途工事、契約料が必要な場合あり)。
床暖房があり、冬も足元から暖かく快適に過ごすことができます。建物にはエレベーターがついているので、重い荷物があっても安心。共用部には宅配ボックスが設定されているので、不在の時にも荷物を受け取ることができます。また、ペット飼育の相談ができますので、あなたの大切な家族の一員も快適に暮らせるか、ぜひ確認してみてください。
お金・契約の情報
※「-」と表示されているものは、実際は料金が発生するものもございます。詳細はお問い合わせください。
| 家賃 | 43万円 | 管理費・共益費 | 1.5万円 |
|---|---|---|---|
| 敷金 | 43万円 | 礼金 | 43万円 |
| 入居決定でお祝い金最大100,000円 | |||
| 保証金 | - | 償却・敷引 | - |
| 住宅保険料 | - | 更新料 | - |
| 保証会社利用 | 利用可 | 保証会社名 | レジデントアシスタント |
| 保証会社費用 | - | 保証会社備考 | 初回:月額賃料(共益費・駐車場料金含む)の50%、年間:9,600円 |
| 契約形態 | - | 契約期間 | 2年 |
| 入居・引渡期間 | 2026年04月中旬 | 現況 | - |
| 入居可能条件 | 楽器可、ペット可 | ||
| 契約備考 | 口座振替事務手数料 110円/鍵交換費 22000円、[退去時費用:室内清掃費 109,899円 ※故意・過失等別途実費] | ||
部屋の情報
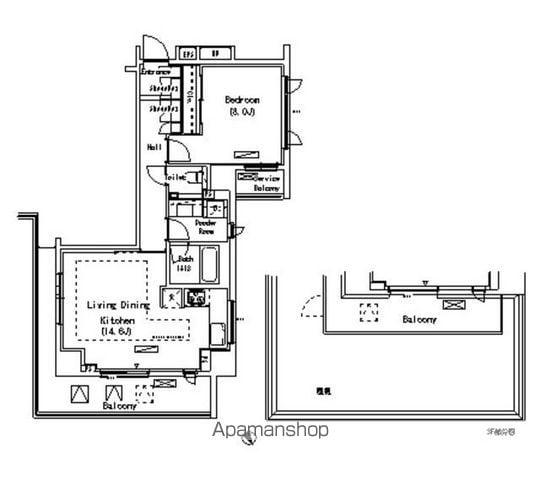
| 間取り | 1LDK | 専有面積 | 58.77m2 |
|---|---|---|---|
| 所在階 / 向き | 4階 / 北 | バルコニー面積 | 15m2 |
| 水道 / ガス | - | ||
| 設備 | バス・トイレ別、オートロック、宅配ボックス、浴室乾燥機、追い焚き、インターネット対応、エレベーター、バルコニー、フローリング、床暖房、CATV、CSアンテナ、BSアンテナ、洗濯機:室内、有線放送 | ||
| 当社物件ID | 2770601 | ||
建物の情報
| 建物名 | パークアクシス代官山 | ||
|---|---|---|---|
| 所在地 | 東京都渋谷区恵比寿西2丁目 | ||
| 交通 | 東急東横線 代官山駅 徒歩5分 | ||
| 階数 | 11階建 | 総戸数 | - |
| 築年月 | 2008年10月 / 築18年 | エレベーター | あり |
| 駐車場 | - | バイク置き場 | あり |
| 駐輪場 | - | 管理人/管理会社 | - |
| 周辺環境 | その他 恵比寿駅 徒歩10分(749m) その他 Shibuya Sakura Stage 徒歩14分(1111m) その他 渋谷駅 徒歩17分(1324m) その他 渋谷区立臨川みんなの図書館 徒歩17分(1283m) その他 SHIBUYA109店内案内ぽこ・あ・ぽこ 徒歩21分(1662m) その他 まいばすけっと 広尾5丁目店 徒歩18分(1415m) その他 西武百貨店渋谷店 徒歩22分(1713m) その他 まいばすけっと神泉駅前店 徒歩22分(1710m) | ||
| 建物種別 | マンション | 建物構造 | RC(鉄筋コンクリート) |
この部屋の取扱い不動産会社
| 会社名 | アパマンショップ代々木北口店 | ||
|---|---|---|---|
| 所在地 | 東京都渋谷区代々木1丁目 54−2小林ビル3F | 交通 | 山手線代々木から徒歩2分 |
| 営業時間 | 10:00〜19:00(時間外もお部屋探しのご相談受付) | 定休日 | - |
| 免許番号 | 東京都知事(3)94865 | 取引態様 | 仲介 |
| 不動産会社管理番号 | 89045949 | 当社管理番号 | 4 |
| 所属団体 | (公社)全日本不動産協会東京都本部 | ||
| 公正取引協議会 | (公社) 首都圏不動産公正取引協議会加盟 | ||
| 取扱い物件情報 | 物件詳細へ | ||
※各種情報と現状に差異がある場合は、現状優先となります。問い合わせをすることで、より詳しい条件、情報を確認する事ができます。
提供:アパマンショップ代々木北口店
この物件が気になったら掲載期限まであと13日
パークアクシス代官山に条件(家賃・エリア)が近い物件一覧
| 写真 | 家賃 管理費等 | 敷金 礼金 | 間取り 専有面積 | 築年数 | 最寄り駅 所在地 | キープ | 詳細 |
|---|---|---|---|---|---|---|---|
マンション SーRESIDENCE富士見ヶ丘AFFORD(3LDK/2階) | |||||||
![]() | 28.4万円 1.5万円 | なし なし | 3LDK 68.15m2 | 築1年 | 京王井の頭線 富士見ケ丘駅 徒歩13分 京王井の頭線 久我山駅 徒歩16分 JR総武線 西荻窪駅 徒歩21分 東京都杉並区宮前 | 詳細を見る | |
マンション レフィールオーブ代々木(2LDK/6階) | |||||||
![]() | 34.9万円 1.5万円 | 34.9万円 34.9万円 | 2LDK 50.86m2 | 築3年 | 都営大江戸線 新宿駅 徒歩4分 JR山手線 代々木駅 徒歩4分 小田急線 南新宿駅 徒歩4分 東京都渋谷区代々木 | 詳細を見る | |
マンション プライムパークス品川シーサイド ザ・タワー(2LDK/9階) | |||||||
![]() | 36万円 2万円 | 72万円 36万円 | 2LDK 85.68m2 | 築8年 | りんかい線 品川シーサイド駅 徒歩3分 京急本線 青物横丁駅 徒歩9分 京急本線 鮫洲駅 徒歩12分 東京都品川区東品川 | 詳細を見る | |
マンション LEGALAND芝公園(1LDK/4階) | |||||||
![]() | 27万円 2万円 | なし 27万円 | 1LDK 50.85m2 | 築5年 | 都営三田線 芝公園駅 徒歩3分 都営浅草線 三田駅(東京) 徒歩6分 都営大江戸線 大門駅(東京) 徒歩10分 東京都港区芝 | 詳細を見る | |
アパート リナリア白金台(2LDK/3階) | |||||||
![]() | 26.4万円 5,000円 | 26.4万円 26.4万円 | 2LDK 68.54m2 | 築6年 | 東京メトロ南北線 白金台駅 徒歩4分 都営浅草線 高輪台駅 徒歩9分 JR山手線 目黒駅 徒歩17分 東京都港区白金台 | 詳細を見る | |
マンション レジディア目黒II(1LDK/1階) | |||||||
![]() | 27.5万円 2.5万円 | 27.5万円 27.5万円 | 1LDK 64.88m2 | 築21年 | JR山手線 目黒駅 徒歩7分 JR山手線 恵比寿駅 徒歩17分 東京メトロ南北線 白金台駅 徒歩20分 東京都目黒区目黒 | 詳細を見る | |
マンション URBAN BREEZE 恵比寿(2LDK/10階) | |||||||
![]() | 36.1万円 2万円 | 36.1万円 なし | 2LDK 51.6m2 | 新築 | JR山手線 恵比寿駅 徒歩7分 東急東横線 代官山駅 徒歩9分 JR山手線 渋谷駅 徒歩10分 東京都渋谷区東 | 詳細を見る | |
マンション イゾラセレーナ目黒(2LDK/2階) | |||||||
![]() | 28.4万円 1.5万円 | 28.4万円 28.4万円 | 2LDK 50.73m2 | 築1年 | JR山手線 目黒駅 徒歩11分 東急東横線 中目黒駅 徒歩17分 東京都目黒区目黒 | 詳細を見る | |








