賃貸マンション
RELUXIA成増Ⅱの賃貸物件情報(1K/1階)
| 家賃 | 管理費等 | 敷金 | 礼金 | 間取り | 専有面積 |
|---|---|---|---|---|---|
| 8.4万円 | 1万円 | なし | 8.4万円 | 1K | 21.6m2 |
入居決定でお祝い金最大100,000円
- 保証金
- -
- 償却・敷引
- -
- 築年数
- 新築(築1年)
- 所在階
- 1階
- 向き
- 北西
Point
室内設備は浴室乾燥機・洗面所独立などが揃っているので、快適に過ごしやすいお部屋になります。
提供:ハウスコム埼玉株式会社 志木店

詳細情報 RELUXIA成増Ⅱ
物件紹介
RELUXIA成増Ⅱは東京地下鉄有楽町線地下鉄成増駅から徒歩10分にあり、駅近で通勤通学に便利なマンションです。
建物のエントランスはオートロックがついており、インターホンにはTVモニタもついているため、相手の顔を確認してから来客対応することができます。
人気の角部屋で周囲の居住者の生活音も気になりにくく、また、フローリングのお部屋なのでお掃除もラクラク。キッチンはシステムキッチン仕様になっていますので、お料理好きの方にもぴったり。バス・トイレは別なので、のんびりお風呂タイムも楽しめるでしょう。また、雨の日でも浴室乾燥機を使えば、お洗濯も問題ありません。
通信設備面では、インターネットが無料で使えるので、月々の出費を抑えられるのも魅力です。また、BSアンテナ・CSアンテナもありますので、おうち時間も充実するでしょう(別途工事、BS・CSの契約料等が必要な場合あり)。
建物にはエレベーターがついているので、重い荷物があっても安心。共用部には宅配ボックスが設定されているので、不在の時にも荷物を受け取ることができます。また、ペット飼育の相談ができますので、あなたの大切な家族の一員も快適に暮らせるか、ぜひ確認してみてください。
建物のエントランスはオートロックがついており、インターホンにはTVモニタもついているため、相手の顔を確認してから来客対応することができます。
人気の角部屋で周囲の居住者の生活音も気になりにくく、また、フローリングのお部屋なのでお掃除もラクラク。キッチンはシステムキッチン仕様になっていますので、お料理好きの方にもぴったり。バス・トイレは別なので、のんびりお風呂タイムも楽しめるでしょう。また、雨の日でも浴室乾燥機を使えば、お洗濯も問題ありません。
通信設備面では、インターネットが無料で使えるので、月々の出費を抑えられるのも魅力です。また、BSアンテナ・CSアンテナもありますので、おうち時間も充実するでしょう(別途工事、BS・CSの契約料等が必要な場合あり)。
建物にはエレベーターがついているので、重い荷物があっても安心。共用部には宅配ボックスが設定されているので、不在の時にも荷物を受け取ることができます。また、ペット飼育の相談ができますので、あなたの大切な家族の一員も快適に暮らせるか、ぜひ確認してみてください。
お金・契約の情報
※「-」と表示されているものは、実際は料金が発生するものもございます。詳細はお問い合わせください。
| 家賃 | 8.4万円 | 管理費・共益費 | 1万円 |
|---|---|---|---|
| 敷金 | なし | 礼金 | 8.4万円 |
| 入居決定でお祝い金最大100,000円 | |||
| 保証金 | - | 償却・敷引 | - |
| 住宅保険料 | 1円 | 更新料 | - |
| その他費用 | 安心入居サポート:1.76万円、5500円:、火災保険:2万円 | ||
| 保証会社利用 | 必須 | 保証会社名 | - |
| 保証会社費用 | - | 保証会社備考 | 初回保証料50%〜 |
| 契約形態 | - | 契約期間 | 2年 |
| 入居・引渡期間 | 即時 | 現況 | - |
| 入居可能条件 | ペット相談 | ||
| 契約備考 | ペット飼育時敷金1か月増額 バイク置き場:有料 駐輪場:有料 短期違約金あり(1年未満で1カ月) その他設備/条件:室内洗濯機置き場、ごみ出し24時間OK、独立洗面台、防犯カメラ、クローゼット、シューズボックス、オートバス | ||
部屋の情報
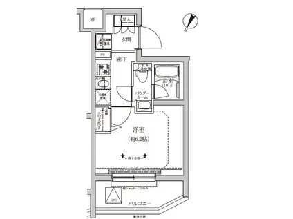
| 間取り | 1K | 専有面積 | 21.6m2 |
|---|---|---|---|
| 間取り詳細 | 洋室(6.2帖) | ||
| 所在階 / 向き | 1階 / 北西 | バルコニー面積 | - |
| 水道 / ガス | 水道【公営】、ガス【都市】 | ||
| 設備 | バス・トイレ別、オートロック、テレビドアホン、宅配ボックス、浴室乾燥機、追い焚き、光ファイバー対応、システムキッチン、エアコン、エレベーター、温水洗浄便座、角部屋、バルコニー、フローリング、2口コンロ、コンロ:ガス、CSアンテナ、BSアンテナ、インターネット使用料無料、シャワー、給湯、タイル張り | ||
| 当社物件ID | 159460642 | ||
建物の情報
| 建物名 | RELUXIA成増Ⅱ | ||
|---|---|---|---|
| 所在地 | 埼玉県和光市白子2丁目 | ||
| 交通 | 東京地下鉄有楽町線 地下鉄成増駅 徒歩10分 東武鉄道東上線 成増駅 徒歩13分 | ||
| 階数 | 5階建 | 総戸数 | - |
| 築年月 | 2025年09月 / 新築(築1年) | エレベーター | あり |
| 駐車場 | - | バイク置き場 | あり |
| 駐輪場 | あり | 管理人/管理会社 | - |
| 周辺環境 | 販売店 徒歩9分(657m) その他 ドラッグストア その他 公園 その他 銀行 その他 * | ||
| 建物種別 | マンション | 建物構造 | RC(鉄筋コンクリート) |
この部屋の取扱い不動産会社
| 会社名 | ハウスコム西東京株式会社 ひばりヶ丘店 | ||
|---|---|---|---|
| 所在地 | 東京都西東京市27-9JCビルⅡ1階 | 交通 | - |
| 営業時間 | 10:00~18:00 | 定休日 | - |
| 免許番号 | 東京都知事(1)第108225号 | 取引態様 | 仲介 |
| 不動産会社管理番号 | HC2-5114687-105-0264 | 当社管理番号 | 468 |
| 所属団体 | 、 | ||
| 取扱い物件情報 | 物件詳細へ | ||
※各種情報と現状に差異がある場合は、現状優先となります。問い合わせをすることで、より詳しい条件、情報を確認する事ができます。
提供:ハウスコム西東京株式会社 ひばりヶ丘店
この物件が気になったら掲載期限まであと4日
RELUXIA成増Ⅱの空き部屋一覧
全部で26の空き部屋があります。
RELUXIA成増Ⅱに条件(家賃・エリア)が近い物件一覧
| 写真 | 家賃 管理費等 | 敷金 礼金 | 間取り 専有面積 | 築年数 | 最寄り駅 所在地 | キープ | 詳細 |
|---|---|---|---|---|---|---|---|
マンション BEVERLY HOMES赤塚公園II(1K/6階) | |||||||
![]() | 7.9万円 1.5万円 | なし 7.9万円 | 1K 26.35m2 | 築7年 | 都営三田線 西高島平駅 徒歩14分 都営三田線 新高島平駅 徒歩18分 東武東上線 成増駅 徒歩21分 東京都板橋区赤塚 | 詳細を見る | |
アパート NEST成増(1SK/2階) | |||||||
![]() | 7.4万円 3,000円 | 7.4万円 7.4万円 | 1SK 19.87m2 | 築1年 | 東武東上線 成増駅 徒歩11分 東京メトロ有楽町線 地下鉄成増駅 徒歩14分 東京メトロ副都心線 地下鉄成増駅 徒歩14分 東京都板橋区成増 | 詳細を見る | |
マンション コンフォートサイト(1K/1階) | |||||||
![]() | 7.3万円 9,000円 | なし 7.3万円 | 1K 23.39m2 | 築21年 | 東武東上線 下赤塚駅 徒歩10分 東京メトロ副都心線 地下鉄赤塚駅 徒歩11分 東京メトロ有楽町線 地下鉄赤塚駅 徒歩13分 東京都板橋区赤塚 | 詳細を見る | |
マンション ステージファースト成増(1K/3階) | |||||||
![]() | 9.8万円 5,000円 | 9.8万円 19.6万円 | 1K 25.65m2 | 築5年 | 東武鉄道東上線 成増駅 徒歩7分 東京地下鉄有楽町線 地下鉄成増駅 徒歩8分 東京都板橋区成増3丁目 | 詳細を見る | |
マンション サンテラス司(2DK/1階) | |||||||
![]() | 8.5万円 4,500円 | 8.5万円 なし | 2DK 48.86m2 | 築37年 | 東京地下鉄有楽町線 地下鉄成増駅 徒歩14分 東武鉄道東上線 成増駅 徒歩17分 埼玉県和光市白子2丁目 | 詳細を見る | |
マンション あさかヴィレッジ パティオ棟(3LDK/4階) | |||||||
![]() | 12.3万円 7,000円 | 12.3万円 なし | 3LDK 100.69m2 | 築34年 | 東武東上線 朝霞駅 徒歩20分 東京メトロ有楽町線 和光市駅 徒歩34分 東武東上線 朝霞台駅 徒歩35分 埼玉県朝霞市根岸台 | 詳細を見る | |
アパート セレネ セブン(ワンルーム/1階) | |||||||
![]() | 5.6万円 2,000円 | 5.6万円 なし | ワンルーム 17.12m2 | 築15年 | 武蔵野線 北朝霞駅 徒歩6分 埼玉県朝霞市三原3丁目 | 詳細を見る | |
マンション エレガンス旭町マンション(2DK/2階) | |||||||
![]() | 7万円 3,000円 | 7万円 なし | 2DK 30.29m2 | 築52年 | 東京メトロ有楽町線 地下鉄成増駅 徒歩6分 東武東上線 成増駅 徒歩8分 東京メトロ有楽町線 地下鉄赤塚駅 徒歩20分 東京都練馬区旭町 | 詳細を見る | |









