賃貸マンション
プレジオ永和EUROの賃貸物件情報(1LDK/7階)
| 家賃 | 管理費等 | 敷金 | 礼金 | 間取り | 専有面積 |
|---|---|---|---|---|---|
| 10.4万円 | 1万円 | なし | なし | 1LDK | 35.61m2 |
入居決定でお祝い金最大100,000円
- 保証金
- -
- 償却・敷引
- -
- 築年数
- 築1年
- 所在階
- 7階
- 向き
- 南
Point
セキュリティ面は、TVインターホン・オートロックなど充実しているので安心して生活できます。室内設備は洗面所独立・浴室乾燥機などが揃っており、とても充実しています。敷地内ごみ置き場がある物件です。
提供:(有)ホームライク(SUUMO経由)

詳細情報 プレジオ永和EURO
物件紹介
プレジオ永和EUROは近鉄奈良線河内永和駅から徒歩2分にあり、駅近で通勤通学に便利なマンションです。
このお部屋は2階以上に位置しているので、通行人や周囲の住人からの視線が気になりにくく、防犯面でも安心。建物のエントランスはオートロックがついており、インターホンにはTVモニタもついているため、相手の顔を確認してから来客対応することができます。
人気の南向きのお部屋。キッチンはシステムキッチン仕様になっていますので、お料理好きの方にもぴったり。バス・トイレは別なので、のんびりお風呂タイムも楽しめるでしょう。また、雨の日でも浴室乾燥機を使えば、お洗濯も問題ありません。
通信設備面では、インターネットが無料で使えるので、月々の出費を抑えられるのも魅力です。また、BSアンテナ・CSアンテナがありCATVにも対応しているので、おうち時間も充実するでしょう(別途工事、BS・CS・CATVの契約料等が必要な場合あり)。
建物にはエレベーターがついているので、重い荷物があっても安心。共用部には宅配ボックスが設定されているので、不在の時にも荷物を受け取ることができます。また、ペット飼育の相談ができますので、あなたの大切な家族の一員も快適に暮らせるか、ぜひ確認してみてください。
このお部屋は2階以上に位置しているので、通行人や周囲の住人からの視線が気になりにくく、防犯面でも安心。建物のエントランスはオートロックがついており、インターホンにはTVモニタもついているため、相手の顔を確認してから来客対応することができます。
人気の南向きのお部屋。キッチンはシステムキッチン仕様になっていますので、お料理好きの方にもぴったり。バス・トイレは別なので、のんびりお風呂タイムも楽しめるでしょう。また、雨の日でも浴室乾燥機を使えば、お洗濯も問題ありません。
通信設備面では、インターネットが無料で使えるので、月々の出費を抑えられるのも魅力です。また、BSアンテナ・CSアンテナがありCATVにも対応しているので、おうち時間も充実するでしょう(別途工事、BS・CS・CATVの契約料等が必要な場合あり)。
建物にはエレベーターがついているので、重い荷物があっても安心。共用部には宅配ボックスが設定されているので、不在の時にも荷物を受け取ることができます。また、ペット飼育の相談ができますので、あなたの大切な家族の一員も快適に暮らせるか、ぜひ確認してみてください。
お金・契約の情報
※「-」と表示されているものは、実際は料金が発生するものもございます。詳細はお問い合わせください。
| 家賃 | 10.4万円 | 管理費・共益費 | 1万円 |
|---|---|---|---|
| 敷金 | なし | 礼金 | なし |
| 入居決定でお祝い金最大100,000円 | |||
| 保証金 | - | 償却・敷引 | - |
| 住宅保険料 | - | 更新料 | - |
| 保証会社利用 | 必須 | 保証会社名 | - |
| 保証会社費用 | - | 保証会社備考 | 保証会社利用必 個人初回20% 更新料1%/月 |
| 契約形態 | - | 契約期間 | - |
| 入居・引渡期間 | 即時 | 現況 | - |
| 入居可能条件 | ペット相談 | ||
| 契約備考 | 合計5.3万円(内訳:退去時クリーニング3.3万円PREGIOCLB24/2年2万円) 水道代 月額2750円 1LDK 単身者可/二人入居可/子供不可/ペット相談/事務所利用不可/ルームシェア不可 普通借家2年 損保【1.8万円2年】 バストイレ別、バルコニー、エアコン、クロゼット、シャワー付洗面台、TVインターホン、浴室乾燥機、オートロック、室内洗濯置、陽当り良好、システムキッチン、南向き、追焚機能浴室、温水洗浄便座、脱衣所、エレベーター、洗面所独立、2口コンロ、駐輪場、宅配ボックス、CATV、即入居可、礼金不要、敷金不要、対面式キッチン、防犯カメラ、ペット相談、全居室洋室、単身者相談、二人入居相談、2沿線利用可、CS、ネット使用料不要、築2年以内、TV付浴室、クロゼット2ヶ所、築3年以内、浴室未使用、トイレ未使用、未入居、2駅利用可、3駅以上利用可、駅徒歩5分以内、駅徒歩10分以内、敷地内ごみ置き場、築5年以内、キッチン未使用、都市ガス、BS、敷金・礼金不要、IT重説対応物件、通風良好 | ||
部屋の情報
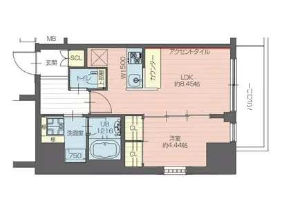
| 間取り | 1LDK | 専有面積 | 35.61m2 |
|---|---|---|---|
| 所在階 / 向き | 7階 / 南 | バルコニー面積 | - |
| 水道 / ガス | - | ||
| 設備 | バス・トイレ別、2階以上、オートロック、テレビドアホン、宅配ボックス、浴室乾燥機、追い焚き、インターネット対応、システムキッチン、エアコン、エレベーター、温水洗浄便座、南向き、バルコニー、洗髪洗面化粧台、2口コンロ、CATV、CSアンテナ、BSアンテナ、インターネット使用料無料、洗濯機:室内 | ||
| 当社物件ID | 158237627 | ||
建物の情報
| 建物名 | プレジオ永和EURO | ||
|---|---|---|---|
| 所在地 | 大阪府東大阪市長栄寺 | ||
| 交通 | 近鉄奈良線 河内永和駅 徒歩2分 JRおおさか東線 JR河内永和駅 徒歩2分 JRおおさか東線 JR俊徳道駅 徒歩10分 | ||
| 階数 | 15階建 | 総戸数 | - |
| 築年月 | 2025年03月 / 築1年 | エレベーター | あり |
| 駐車場 | 空有 19250円 | バイク置き場 | - |
| 駐輪場 | あり | 管理人/管理会社 | - |
| 周辺環境 | その他 大阪信用金庫永和支店(銀行)まで93m その他 シミズメガネ本店(その他)まで129m その他 セブンイレブン 近鉄河内永和駅前店(コンビニ)まで127m その他 関西みらい銀行 東大阪支店(銀行)まで196m その他 ローソン 東大阪高井田元町店(コンビニ)まで318m その他 布施郵便局(郵便局)まで406m | ||
| 建物種別 | マンション | 建物構造 | RC(鉄筋コンクリート) |
この部屋の取扱い不動産会社
| 会社名 | (有)ホームライク(SUUMO経由) | ||
|---|---|---|---|
| 所在地 | 大阪府東大阪市小阪2-14-15 | 交通 | - |
| 営業時間 | 10:00~19:30 | 定休日 | なし |
| 免許番号 | 大阪府知事46681 | 取引態様 | 仲介 |
| 不動産会社管理番号 | 100455633378 | 当社管理番号 | 89 |
| 所属団体 | (公社)全日本不動産協会大阪府本部会員 | ||
| 公正取引協議会 | (公社)近畿地区不動産公正取引協議会加盟 | ||
| 取扱い物件情報 | 物件詳細へ | ||
※各種情報と現状に差異がある場合は、現状優先となります。問い合わせをすることで、より詳しい条件、情報を確認する事ができます。
提供:(有)ホームライク(SUUMO経由)
この物件が気になったら掲載期限まであと10日
プレジオ永和EUROの空き部屋一覧
全部で24の空き部屋があります。
プレジオ永和EUROに条件(家賃・エリア)が近い物件一覧
| 写真 | 家賃 管理費等 | 敷金 礼金 | 間取り 専有面積 | 築年数 | 最寄り駅 所在地 | キープ | 詳細 |
|---|---|---|---|---|---|---|---|
アパート STABLE SHOJIHIGASHI(1DK/2階) | |||||||
![]() | 6.5万円 4,000円 | なし 13万円 | 1DK 30.56m2 | 築1年 | 地下鉄千日前線 小路駅(大阪メトロ) 徒歩5分 近鉄奈良線 布施駅 徒歩7分 近鉄大阪線 布施駅 徒歩7分 大阪府大阪市生野区小路東 | 詳細を見る | |
マンション スプランディッド新大阪III(1K/11階) | |||||||
| 7.5万円 8,000円 | なし 7.5万円 | 1K 27.84m2 | 築11年 | 阪急電鉄京都線 南方駅(大阪) 徒歩7分 大阪市御堂筋線 西中島南方駅 徒歩8分 大阪市御堂筋線 新大阪駅 徒歩16分 大阪府大阪市東淀川区東中島2丁目1-11 | 詳細を見る | ||
マンション セレニテ東梅田アリエ(1LDK/2階) | |||||||
| 12.1万円 1.01万円 | なし なし | 1LDK 33.38m2 | 新築 | 大阪市谷町線 東梅田駅 徒歩8分 大阪市堺筋線 南森町駅 徒歩11分 JR東西線 北新地駅 徒歩12分 大阪府大阪市北区兎我野町6 | 詳細を見る | ||
マンション グランフェル八尾(2LDK/6階) | |||||||
![]() | 6.5万円 5,000円 | なし 15万円 | 2LDK 48m2 | 築37年 | 近鉄大阪線 近鉄八尾駅 徒歩5分 近鉄大阪線 久宝寺口駅 徒歩15分 JR関西本線 八尾駅 徒歩17分 大阪府八尾市本町 | 詳細を見る | |
アパート AVANTIO CLAIR(2LDK/2階) | |||||||
![]() | 8.9万円 6,000円 | なし なし | 2LDK 44.73m2 | 築1年 | 近鉄難波・奈良線 若江岩田駅 徒歩8分 大阪府東大阪市若江本町1丁目 | 詳細を見る | |
マンション プレサンス天神橋筋六丁目ヴォワール(1DK/3階) | |||||||
| 8.66万円 8,400円 | なし 10万円 | 1DK 25.84m2 | 築5年 | 大阪市堺筋線 天神橋筋六丁目駅 徒歩7分 大阪市谷町線 天神橋筋六丁目駅 徒歩7分 大阪環状線 天満駅 徒歩16分 大阪府大阪市北区本庄東3丁目2-17 | 詳細を見る | ||
アパート パークテラス淡路(1LDK/3階) | |||||||
![]() | 7.7万円 4,000円 | なし 8.1万円 | 1LDK 30.03m2 | 築1年 | おおさか東線 JR淡路駅 徒歩9分 阪急電鉄千里線 下新庄駅 徒歩9分 阪急電鉄京都線 淡路駅 徒歩10分 大阪府大阪市東淀川区淡路5丁目 | 詳細を見る | |
マンション S-RESIDENCE天満橋AR(1LDK/3階) | |||||||
| 12.1万円 2万円 | なし なし | 1LDK 31.7m2 | 築1年 | JR東西線 大阪天満宮駅 徒歩6分 京阪電気鉄道京阪線 天満橋駅 徒歩7分 大阪市谷町線 天満橋駅 徒歩8分 大阪府大阪市北区天満1丁目21-8 | 詳細を見る | ||
東大阪市の町名から探す
東大阪市の部屋を間取りから探す
東大阪市の駅から探す
東大阪市と隣接している市区町村から探す
- 東大阪市(7,995)
- 大阪市都島区(1,764)
- 大阪市福島区(2,054)
- 大阪市此花区(444)
- 大阪市西区(4,137)
- 大阪市港区(1,311)
- 大阪市大正区(890)
- 大阪市天王寺区(1,320)
- 大阪市浪速区(3,290)
- 大阪市西淀川区(1,867)
- 大阪市東淀川区(5,116)
- 大阪市東成区(2,223)
- 大阪市生野区(1,652)
- 大阪市旭区(1,717)
- 大阪市城東区(1,989)
- 大阪市阿倍野区(1,387)
- 大阪市住吉区(1,924)
- 大阪市東住吉区(2,021)
- 大阪市西成区(869)
- 大阪市淀川区(5,360)
- 大阪市鶴見区(1,080)
- 大阪市住之江区(1,153)
- 大阪市平野区(2,030)
- 大阪市北区(5,504)
- 大阪市中央区(4,383)
- 八尾市(2,296)
- 大東市(1,333)





