賃貸マンション
ザ・パークハビオ西大井の賃貸物件情報(ワンルーム/4階)
| 家賃 | 管理費等 | 敷金 | 礼金 | 間取り | 専有面積 |
|---|---|---|---|---|---|
| 11.4万円 | 1万円 | 11.4万円 | 11.4万円 | ワンルーム | 23.98m2 |
入居決定でお祝い金最大100,000円
Point
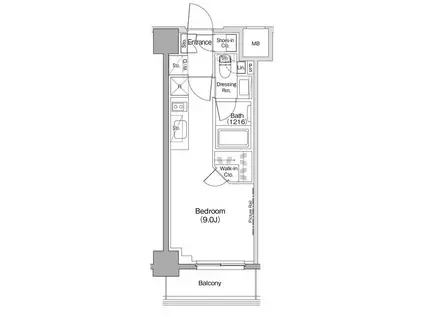
収納はウォークインクロゼット・シューズWICなど豊富なので、衣類や履き物の整理がしやすく便利です。
提供:センチュリー21(株)トーコー開発(SUUMO経由)

詳細情報 ザ・パークハビオ西大井
物件紹介
ザ・パークハビオ西大井はJR横須賀線西大井駅から徒歩7分にあり、駅近で通勤通学に便利なマンションです。
このお部屋は2階以上に位置しているので、通行人や周囲の住人からの視線が気になりにくく、防犯面でも安心。建物のエントランスはオートロックがついており、インターホンにはTVモニタもついているため、相手の顔を確認してから来客対応することができます。
おしゃれなデザイナーズ物件!また、楽器相談が可能な物件となっているので、楽器演奏をお考えの方はぜひ相談してみてください。フローリングのお部屋なのでお掃除もラクラク。室内には人気のウォークインクローゼットがありますので、たくさんの荷物も効率的に収納ができます。キッチンはシステムキッチン仕様になっていますので、お料理好きの方にもぴったり。バス・トイレは別なので、のんびりお風呂タイムも楽しめるでしょう。また、雨の日でも浴室乾燥機を使えば、お洗濯も問題ありません。
通信設備面では、インターネットが無料で使えるので、月々の出費を抑えられるのも魅力です。また、BSアンテナ・CSアンテナがありCATVにも対応しているので、おうち時間も充実するでしょう(別途工事、BS・CS・CATVの契約料等が必要な場合あり)。
床暖房があり、冬も足元から暖かく快適に過ごすことができます。建物にはエレベーターがついているので、重い荷物があっても安心。共用部には宅配ボックスが設定されているので、不在の時にも荷物を受け取ることができます。また、ペット飼育の相談ができますので、あなたの大切な家族の一員も快適に暮らせるか、ぜひ確認してみてください。
コンビニまで徒歩15分の場所にあり、日用品や食料品のお買い物にも便利です。
このお部屋は2階以上に位置しているので、通行人や周囲の住人からの視線が気になりにくく、防犯面でも安心。建物のエントランスはオートロックがついており、インターホンにはTVモニタもついているため、相手の顔を確認してから来客対応することができます。
おしゃれなデザイナーズ物件!また、楽器相談が可能な物件となっているので、楽器演奏をお考えの方はぜひ相談してみてください。フローリングのお部屋なのでお掃除もラクラク。室内には人気のウォークインクローゼットがありますので、たくさんの荷物も効率的に収納ができます。キッチンはシステムキッチン仕様になっていますので、お料理好きの方にもぴったり。バス・トイレは別なので、のんびりお風呂タイムも楽しめるでしょう。また、雨の日でも浴室乾燥機を使えば、お洗濯も問題ありません。
通信設備面では、インターネットが無料で使えるので、月々の出費を抑えられるのも魅力です。また、BSアンテナ・CSアンテナがありCATVにも対応しているので、おうち時間も充実するでしょう(別途工事、BS・CS・CATVの契約料等が必要な場合あり)。
床暖房があり、冬も足元から暖かく快適に過ごすことができます。建物にはエレベーターがついているので、重い荷物があっても安心。共用部には宅配ボックスが設定されているので、不在の時にも荷物を受け取ることができます。また、ペット飼育の相談ができますので、あなたの大切な家族の一員も快適に暮らせるか、ぜひ確認してみてください。
コンビニまで徒歩15分の場所にあり、日用品や食料品のお買い物にも便利です。
お金・契約の情報
※「-」と表示されているものは、実際は料金が発生するものもございます。詳細はお問い合わせください。
| 家賃 | 11.4万円 | 管理費・共益費 | 1万円 |
|---|---|---|---|
| 敷金 | 11.4万円 | 礼金 | 11.4万円 |
| 入居決定でお祝い金最大100,000円 | |||
| 保証金 | - | 償却・敷引 | - |
| 住宅保険料 | 1円 | 更新料 | - |
| 保証会社利用 | 必須 | 保証会社名 | - |
| 保証会社費用 | - | 保証会社備考 | 【初年度保証料:賃料合計額の50%(最低保証料2万円)2年目以降:1年毎1万円】 |
| 契約形態 | - | 契約期間 | 2年 |
| 入居・引渡期間 | 2026年01月中旬 | 現況 | - |
| 入居可能条件 | 楽器可、ペット相談 | ||
| 契約備考 | 火災保険要加入 その他設備/条件:室内洗濯機置き場、独立洗面台、防犯カメラ、シューズインクローゼット、照明器具付き | ||
部屋の情報
| 間取り | ワンルーム | 専有面積 | 23.98m2 |
|---|---|---|---|
| 間取り詳細 | 洋室(9帖) | ||
| 所在階 / 向き | 4階 / 東 | バルコニー面積 | - |
| 水道 / ガス | ガス【都市】 | ||
| 設備 | バス・トイレ別、オートロック、テレビドアホン、宅配ボックス、浴室乾燥機、ウォークインクローゼット、追い焚き、インターネット対応、システムキッチン、エアコン、エレベーター、温水洗浄便座、バルコニー、フローリング、2口コンロ、CSアンテナ、BSアンテナ、シャワー、給湯 | ||
| 当社物件ID | 39717603 | ||
建物の情報
| 建物名 | ザ・パークハビオ西大井 | ||
|---|---|---|---|
| 所在地 | 東京都品川区西大井1丁目 | ||
| 交通 | 横須賀線 西大井駅 徒歩7分 京浜東北・根岸線 大井町駅 徒歩16分 | ||
| 階数 | 7階建 | 総戸数 | 85戸 |
| 築年月 | 2020年03月 / 築6年 | エレベーター | あり |
| 駐車場 | 空有 3.85万円/月 | バイク置き場 | - |
| 駐輪場 | - | 管理人/管理会社 | - |
| 周辺環境 | コンビニ 徒歩15分(1122m) 販売店 徒歩13分(973m) その他 ドラッグストア その他 公園 その他 銀行 その他 * | ||
| 建物種別 | マンション | 建物構造 | RC(鉄筋コンクリート) |
この部屋の取扱い不動産会社
| 会社名 | ハウスコム西東京株式会社 大井町店 | ||
|---|---|---|---|
| 所在地 | 東京都品川区2-19 | 交通 | - |
| 営業時間 | 10:00~18:00 | 定休日 | 水曜定休 |
| 免許番号 | 東京都知事(1)第108225号 | 取引態様 | 仲介 |
| 不動産会社管理番号 | HC5-90178-407-0268 | 当社管理番号 | 468 |
| 所属団体 | 、 | ||
| 取扱い物件情報 | 物件詳細へ | ||
※各種情報と現状に差異がある場合は、現状優先となります。問い合わせをすることで、より詳しい条件、情報を確認する事ができます。
提供:ハウスコム西東京株式会社 大井町店
この物件が気になったら掲載期限まであと5日
ザ・パークハビオ西大井に条件(家賃・エリア)が近い物件一覧
| 写真 | 家賃 管理費等 | 敷金 礼金 | 間取り 専有面積 | 築年数 | 最寄り駅 所在地 | キープ | 詳細 |
|---|---|---|---|---|---|---|---|
アパート SEED SAVE PETIRASU Ⅲ(1DK/1階) | |||||||
![]() | 8.5万円 1万円 | 17万円 8.5万円 | 1DK 25.36m2 | 新築 | 東京モノレール羽田 昭和島駅 徒歩12分 京浜急行電鉄本線 大森町駅 徒歩18分 東京都大田区大森東5丁目 | 詳細を見る | |
マンション エスティメゾン大島(1LDK/15階) | |||||||
![]() | 17.7万円 1.2万円 | 17.7万円 17.7万円 | 1LDK 44.4m2 | 築19年 | 都営新宿線 大島駅(東京) 徒歩2分 都営新宿線 西大島駅 徒歩12分 都営新宿線 東大島駅 徒歩15分 東京都江東区大島 | 詳細を見る | |
タウンハウス 大田菜園長屋(2LDK) | |||||||
![]() | 15.4万円 5,000円 | 15.4万円 23.1万円 | 2LDK 52.17m2 | 築9年 | 京浜急行電鉄本線 雑色駅 徒歩8分 京浜急行電鉄本線 六郷土手駅 徒歩13分 東京都大田区東六郷3丁目 | 詳細を見る | |
アパート M SONIA KUGAHARA(ワンルーム/1階) | |||||||
![]() | 9.3万円 3,000円 | 9.3万円 13.95万円 | ワンルーム 24.57m2 | 築1年 | 東急池上線 久が原駅 徒歩8分 東急池上線 御嶽山駅 徒歩9分 東急多摩川線 鵜の木駅 徒歩13分 東京都大田区西嶺町 | 詳細を見る | |
マンション メイクスデザイン門前仲町2(1K/5階) | |||||||
![]() | 11万円 1.2万円 | なし 11万円 | 1K 25.58m2 | 築12年 | 東京都大江戸線 門前仲町駅 徒歩1分 東京地下鉄東西線 門前仲町駅 徒歩1分 東京都江東区深川2丁目 | 詳細を見る | |
マンション RJRプレシア千鳥(1K/2階) | |||||||
![]() | 9.7万円 1万円 | 9.7万円 9.7万円 | 1K 25.46m2 | 築2年 | 東急多摩川線 武蔵新田駅 徒歩5分 東急池上線 千鳥町駅 徒歩11分 東急多摩川線 矢口渡駅 徒歩12分 東京都大田区千鳥 | 詳細を見る | |







