賃貸マンション
ガーラ・グランディ品川の賃貸物件情報(1K/12階)
| 家賃 | 管理費等 | 敷金 | 礼金 | 間取り | 専有面積 |
|---|---|---|---|---|---|
| 11.1万円 | 9,000円 | 11.1万円 | 22.2万円 | 1K | 20.44m2 |
入居決定でお祝い金最大100,000円
- 保証金
- -
- 償却・敷引
- -
- 築年数
- 築10年
- 所在階
- 12階
- 向き
- -
Point
品川区エリアで新たな生活を始めたいとお考えの方。賃貸情報のことなら当社にお任せ下さい。地域に密着しておりますので、確かな地域情報と賃貸情報をご紹介いたします。お気軽にお問い合わせ下さい。
提供:NAVI HOME(株)目黒店(SUUMO経由)

詳細情報 ガーラ・グランディ品川
物件紹介
ガーラ・グランディ品川はりんかい線天王洲アイル駅から徒歩8分にあり、駅近で通勤通学に便利なマンションです。
このお部屋は2階以上に位置しているので、通行人や周囲の住人からの視線が気になりにくく、防犯面でも安心。建物のエントランスはオートロックがついており、インターホンにはTVモニタもついているため、相手の顔を確認してから来客対応することができます。
フローリングのお部屋なのでお掃除もラクラク。キッチンはシステムキッチン仕様になっていますので、お料理好きの方にもぴったり。バス・トイレは別なので、のんびりお風呂タイムも楽しめるでしょう。また、雨の日でも浴室乾燥機を使えば、お洗濯も問題ありません。
通信設備面では、インターネットが無料で使えるので、月々の出費を抑えられるのも魅力です。また、BSアンテナ・CSアンテナもありますので、おうち時間も充実するでしょう(別途工事、BS・CSの契約料等が必要な場合あり)。
建物にはエレベーターがついているので、重い荷物があっても安心。共用部には宅配ボックスが設定されているので、不在の時にも荷物を受け取ることができます。
このお部屋は2階以上に位置しているので、通行人や周囲の住人からの視線が気になりにくく、防犯面でも安心。建物のエントランスはオートロックがついており、インターホンにはTVモニタもついているため、相手の顔を確認してから来客対応することができます。
フローリングのお部屋なのでお掃除もラクラク。キッチンはシステムキッチン仕様になっていますので、お料理好きの方にもぴったり。バス・トイレは別なので、のんびりお風呂タイムも楽しめるでしょう。また、雨の日でも浴室乾燥機を使えば、お洗濯も問題ありません。
通信設備面では、インターネットが無料で使えるので、月々の出費を抑えられるのも魅力です。また、BSアンテナ・CSアンテナもありますので、おうち時間も充実するでしょう(別途工事、BS・CSの契約料等が必要な場合あり)。
建物にはエレベーターがついているので、重い荷物があっても安心。共用部には宅配ボックスが設定されているので、不在の時にも荷物を受け取ることができます。
お金・契約の情報
※「-」と表示されているものは、実際は料金が発生するものもございます。詳細はお問い合わせください。
| 家賃 | 11.1万円 | 管理費・共益費 | 9,000円 |
|---|---|---|---|
| 敷金 | 11.1万円 | 礼金 | 22.2万円 |
| 入居決定でお祝い金最大100,000円 | |||
| 保証金 | - | 償却・敷引 | - |
| 住宅保険料 | - | 更新料 | - |
| 保証会社利用 | 必須 | 保証会社名 | - |
| 保証会社費用 | - | 保証会社備考 | 保証会社利用必 初回:総賃料の50%、月額:総賃料の1.2% |
| 契約形態 | - | 契約期間 | - |
| 入居・引渡期間 | 即時 | 現況 | - |
| 契約備考 | ■隣地解体及び新築工事あり※R7/9/1R9/8/末予定 合計3.63万円(内訳:エアコンクリーニング費用1.32万円鍵交換代2.31万円) 更新料 新賃料1.00ヶ月分 室内清掃費用 38500円 1K 普通借家2年 損保【2万円2年】 バストイレ別、バルコニー、エアコン、ガスコンロ対応、クロゼット、フローリング、TVインターホン、浴室乾燥機、オートロック、室内洗濯置、シューズボックス、システムキッチン、温水洗浄便座、エレベーター、洗面所独立、洗面化粧台、2口コンロ、駐輪場、宅配ボックス、外壁タイル張り、即入居可、BS・CS、防犯カメラ、全居室収納、分譲賃貸、全居室洋室、保証人不要、敷金1ヶ月、バイク置場、24時間緊急通報システム、全居室フローリング、2沿線利用可、CS、ネット専用回線、ネット使用料不要、眺望良好、エアコン全室、24時間換気システム、人感照明センサー、耐震構造、2駅利用可、3駅以上利用可、3沿線以上利用可、駅徒歩10分以内、高層階、24時間ゴミ出し可、敷地内ごみ置き場、全居室6畳以上、都市ガス、洗面所にドア、玄関収納、BS、年内入居可、年度内入居可、通風良好 | ||
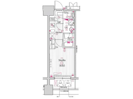
部屋の情報
| 間取り | 1K | 専有面積 | 20.44m2 |
|---|---|---|---|
| 所在階 / 向き | 12階 / - | バルコニー面積 | - |
| 水道 / ガス | - | ||
| 設備 | バス・トイレ別、2階以上、オートロック、テレビドアホン、宅配ボックス、浴室乾燥機、インターネット対応、システムキッチン、エアコン、エレベーター、温水洗浄便座、バルコニー、フローリング、洗髪洗面化粧台、2口コンロ、コンロ:ガス、CSアンテナ、BSアンテナ、インターネット使用料無料、洗濯機:室内 | ||
| 当社物件ID | 160718804 | ||
建物の情報
| 建物名 | ガーラ・グランディ品川 | ||
|---|---|---|---|
| 所在地 | 東京都品川区東品川 | ||
| 交通 | りんかい線 天王洲アイル駅 徒歩8分 京急本線 新馬場駅 徒歩9分 JR山手線 品川駅 徒歩16分 | ||
| 階数 | 14階建 | 総戸数 | - |
| 築年月 | 2016年11月 / 築10年 | エレベーター | あり |
| 駐車場 | なし | バイク置き場 | あり |
| 駐輪場 | あり | 管理人/管理会社 | - |
| 周辺環境 | その他 まいばすけっと 東品川1丁目店(スーパー)まで326m その他 ファミリーマート 東品川店(コンビニ)まで76m その他 セブンイレブン 東品川1丁目店(コンビニ)まで215m その他 ローソンサテライト 東品川一丁目店(コンビニ)まで288m その他 マツモトキヨシ 天王洲アイル店(ドラッグストア)まで785m その他 maruetsu(マルエツ) プチ 北品川一丁目店(スーパー)まで714m | ||
| 建物種別 | マンション | 建物構造 | RC(鉄筋コンクリート) |
この部屋の取扱い不動産会社
| 会社名 | NAVI HOME(株)恵比寿2nd(SUUMO経由) | ||
|---|---|---|---|
| 所在地 | 東京都渋谷区広尾1-1-39 恵比寿プライムスクエアタワー3階 | 交通 | - |
| 営業時間 | 9:00~21:00 | 定休日 | 定休日なし |
| 免許番号 | 東京都知事107196 | 取引態様 | 仲介 |
| 不動産会社管理番号 | 100500006263 | 当社管理番号 | 89 |
| 所属団体 | (公社)東京都宅地建物取引業協会会員 | ||
| 公正取引協議会 | (公社)首都圏不動産公正取引協議会加盟 | ||
| 取扱い物件情報 | 物件詳細へ | ||
※各種情報と現状に差異がある場合は、現状優先となります。問い合わせをすることで、より詳しい条件、情報を確認する事ができます。
提供:NAVI HOME(株)恵比寿2nd(SUUMO経由)
この物件が気になったら掲載期限まであと11日
ガーラ・グランディ品川に条件(家賃・エリア)が近い物件一覧
| 写真 | 家賃 管理費等 | 敷金 礼金 | 間取り 専有面積 | 築年数 | 最寄り駅 所在地 | キープ | 詳細 |
|---|---|---|---|---|---|---|---|
タウンハウス 大田菜園長屋(2LDK) | |||||||
![]() | 15.2万円 5,000円 | 15.2万円 15.2万円 | 2LDK 52.17m2 | 築10年 | 京浜急行電鉄本線 雑色駅 徒歩8分 京浜急行電鉄本線 六郷土手駅 徒歩13分 東京都大田区東六郷3丁目 | 詳細を見る | |
アパート アートヒルズ大森中(ワンルーム/1階) | |||||||
![]() | 7.2万円 2,000円 | 7.2万円 なし | ワンルーム 15.45m2 | 築12年 | 京浜急行電鉄本線 大森町駅 徒歩4分 京浜急行電鉄本線 梅屋敷駅(東京) 徒歩8分 東京都大田区大森中1丁目 | 詳細を見る | |
アパート 京浜急行電鉄空港線 糀谷駅 徒歩5分 築25年(1K/1階) | |||||||
![]() | 8.1万円 2,000円 | 8.1万円 8.1万円 | 1K 24.28m2 | 築25年 | 京浜急行電鉄空港線 糀谷駅 徒歩5分 京浜急行電鉄本線 京急蒲田駅 徒歩9分 東京都大田区西糀谷4丁目 | 詳細を見る | |
マンション メゾン 3E(2DK/1階) | |||||||
![]() | 15.2万円 3,000円 | 15.2万円 15.2万円 | 2DK 50.69m2 | 築35年 | 東急多摩川線 下丸子駅 徒歩2分 東急多摩川線 鵜の木駅 徒歩10分 東京都大田区下丸子3丁目 | 詳細を見る | |
マンション エクセルⅡ(1K/8階) | |||||||
![]() | 8.3万円 4,000円 | 8.3万円 16.6万円 | 1K 19.37m2 | 築18年 | 京浜急行電鉄本線 梅屋敷駅(東京) 徒歩15分 京浜急行電鉄空港線 大鳥居駅 徒歩19分 東京都大田区北糀谷1丁目 | 詳細を見る | |
マンション メゾンプロスパ-(2DK/4階) | |||||||
![]() | 10万円 1万円 | 10万円 10万円 | 2DK 43.98m2 | 築36年 | 東京モノレール 昭和島駅 徒歩20分 京急空港線 穴守稲荷駅 徒歩21分 京急空港線 大鳥居駅 徒歩23分 東京都大田区大森南 | 詳細を見る | |
マンション メゾンドボナール(1DK/4階) | |||||||
![]() | 12万円 3,000円 | 12万円 なし | 1DK 32.48m2 | 築30年 | 京浜東北・根岸線 蒲田駅 徒歩10分 京浜急行電鉄本線 京急蒲田駅 徒歩10分 東京都大田区蒲田3丁目 | 詳細を見る | |







