賃貸マンション
ガーラ・プライム川崎西口の賃貸物件情報(2K/4階)
| 家賃 | 管理費等 | 敷金 | 礼金 | 間取り | 専有面積 |
|---|---|---|---|---|---|
| 9.8万円 | 9,000円 | 9.8万円 | 14.7万円 | 2K | 25.72m2 |
入居決定でお祝い金最大100,000円
- 保証金
- -
- 償却・敷引
- -
- 築年数
- 新築
- 所在階
- 4階
- 向き
- 北
Point
★24時間ゴミ出し可能★インターネット無料★追焚機能に浴室乾燥機、温水洗浄便座に独立洗面台と設備充実★オートロック&モニタ付きインターホンでセキュリティ面も安心★2口ガスコンロでお料理沢山出来ます★
提供:エキマエホーム武蔵小杉駅前不動産(株)(SUUMO経由)

詳細情報 ガーラ・プライム川崎西口
物件紹介
ガーラ・プライム川崎西口はJR京浜東北線川崎駅から徒歩9分にあり、駅近で通勤通学に便利なマンションです。
このお部屋は2階以上に位置しているので、通行人や周囲の住人からの視線が気になりにくく、防犯面でも安心。建物のエントランスはオートロックがついており、インターホンにはTVモニタもついているため、相手の顔を確認してから来客対応することができます。
フローリングのお部屋なのでお掃除もラクラク。キッチンはシステムキッチン仕様になっていますので、お料理好きの方にもぴったり。バス・トイレは別なので、のんびりお風呂タイムも楽しめるでしょう。また、雨の日でも浴室乾燥機を使えば、お洗濯も問題ありません。
通信設備面では、インターネットが無料で使えるので、月々の出費を抑えられるのも魅力です(別途工事等が必要な場合あり)。
建物にはエレベーターがついているので、重い荷物があっても安心。共用部には宅配ボックスが設定されているので、不在の時にも荷物を受け取ることができます。
このお部屋は2階以上に位置しているので、通行人や周囲の住人からの視線が気になりにくく、防犯面でも安心。建物のエントランスはオートロックがついており、インターホンにはTVモニタもついているため、相手の顔を確認してから来客対応することができます。
フローリングのお部屋なのでお掃除もラクラク。キッチンはシステムキッチン仕様になっていますので、お料理好きの方にもぴったり。バス・トイレは別なので、のんびりお風呂タイムも楽しめるでしょう。また、雨の日でも浴室乾燥機を使えば、お洗濯も問題ありません。
通信設備面では、インターネットが無料で使えるので、月々の出費を抑えられるのも魅力です(別途工事等が必要な場合あり)。
建物にはエレベーターがついているので、重い荷物があっても安心。共用部には宅配ボックスが設定されているので、不在の時にも荷物を受け取ることができます。
お金・契約の情報
※「-」と表示されているものは、実際は料金が発生するものもございます。詳細はお問い合わせください。
| 家賃 | 9.8万円 | 管理費・共益費 | 9,000円 |
|---|---|---|---|
| 敷金 | 9.8万円 | 礼金 | 14.7万円 |
| 入居決定でお祝い金最大100,000円 | |||
| 保証金 | - | 償却・敷引 | - |
| 住宅保険料 | - | 更新料 | - |
| 保証会社利用 | 必須 | 保証会社名 | - |
| 保証会社費用 | - | 保証会社備考 | 保証会社利用必 初回:月額総賃料の50% 月額:総賃料の1.2% |
| 契約形態 | - | 契約期間 | - |
| 入居・引渡期間 | - | 現況 | - |
| 契約備考 | ★お客様の気持ちに寄り添い、素敵なお部屋が見つかるようにお手伝いさせて頂きます♪★お気軽にお問い合わせください★ 更新料 新賃料1.00ヶ月分 2K 二人入居可 普通借家2年 損保【2万円2年】 バストイレ別、バルコニー、エアコン、ガスコンロ対応、クロゼット、フローリング、シャワー付洗面台、TVインターホン、浴室乾燥機、オートロック、室内洗濯置、シューズボックス、システムキッチン、追焚機能浴室、温水洗浄便座、脱衣所、エレベーター、洗面所独立、洗面化粧台、駐輪場、宅配ボックス、防犯カメラ、照明付、グリル付、全居室洋室、保証人不要、二人入居相談、カードキー、全居室フローリング、駅まで平坦、ネット使用料不要、築2年以内、平坦地、学生相談、人感照明センサー、2駅利用可、3駅以上利用可、3沿線以上利用可、敷地内ごみ置き場、都市ガス、洗面所にドア、高速ネット対応、IT重説対応物件、全室照明付、通風良好 入居日:'26年3月下旬 | ||
部屋の情報
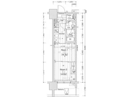
| 間取り | 2K | 専有面積 | 25.72m2 |
|---|---|---|---|
| 所在階 / 向き | 4階 / 北 | バルコニー面積 | - |
| 水道 / ガス | - | ||
| 設備 | バス・トイレ別、2階以上、オートロック、テレビドアホン、宅配ボックス、浴室乾燥機、追い焚き、インターネット対応、システムキッチン、エアコン、エレベーター、温水洗浄便座、バルコニー、フローリング、洗髪洗面化粧台、コンロ:ガス、インターネット使用料無料、洗濯機:室内 | ||
| 当社物件ID | 160216053 | ||
建物の情報
| 建物名 | ガーラ・プライム川崎西口 | ||
|---|---|---|---|
| 所在地 | 神奈川県川崎市幸区南幸町 | ||
| 交通 | JR京浜東北線 川崎駅 徒歩9分 JR南武線 尻手駅 徒歩9分 京急本線 京急川崎駅 徒歩14分 | ||
| 階数 | 14階建 | 総戸数 | - |
| 築年月 | 2026年03月 / 新築 | エレベーター | あり |
| 駐車場 | なし | バイク置き場 | - |
| 駐輪場 | あり | 管理人/管理会社 | - |
| 周辺環境 | その他 フレッシュフードストア 文化堂 川崎店(スーパー)まで217m その他 ローソン・スリーエフ 川崎南河原店(コンビニ)まで304m その他 まいばすけっと 川崎中幸町3丁目店(スーパー)まで613m その他 ココカラファイン南幸町店(ドラッグストア)まで489m その他 サミットストア 尻手駅前店(スーパー)まで571m その他 ラゾーナ川崎プラザ(ショッピングセンター)まで731m | ||
| 建物種別 | マンション | 建物構造 | RC(鉄筋コンクリート) |
この部屋の取扱い不動産会社
| 会社名 | エキマエホーム武蔵小杉駅前不動産(株)(SUUMO経由) | ||
|---|---|---|---|
| 所在地 | 神奈川県川崎市中原区小杉町3-430-19 KFBビル3階 | 交通 | - |
| 営業時間 | 10:00~19:00 | 定休日 | 年末年始 |
| 免許番号 | 神奈川県知事29474 | 取引態様 | 仲介 |
| 不動産会社管理番号 | 100482975017 | 当社管理番号 | 89 |
| 所属団体 | (公社)全日本不動産協会神奈川県本部会員 | ||
| 公正取引協議会 | (公社)首都圏不動産公正取引協議会加盟 | ||
| 取扱い物件情報 | 物件詳細へ | ||
※各種情報と現状に差異がある場合は、現状優先となります。問い合わせをすることで、より詳しい条件、情報を確認する事ができます。
提供:エキマエホーム武蔵小杉駅前不動産(株)(SUUMO経由)
この物件が気になったら掲載期限まであと11日
ガーラ・プライム川崎西口の空き部屋一覧
全部で29の空き部屋があります。
ガーラ・プライム川崎西口に条件(家賃・エリア)が近い物件一覧
| 写真 | 家賃 管理費等 | 敷金 礼金 | 間取り 専有面積 | 築年数 | 最寄り駅 所在地 | キープ | 詳細 |
|---|---|---|---|---|---|---|---|
マンション YOKOHAMA BAY KING PRINCESS(1K/3階) | |||||||
![]() | 6.5万円 6,000円 | 6.5万円 6.5万円 | 1K 18.53m2 | 築25年 | ブルーライン 片倉町駅 徒歩3分 ブルーライン 三ツ沢上町駅 徒歩20分 ブルーライン 岸根公園駅 徒歩22分 神奈川県横浜市神奈川区片倉 | 詳細を見る | |
アパート アヴニール(1K/2階) | |||||||
![]() | 7.3万円 5,000円 | なし 7.3万円 | 1K 25.3m2 | 築13年 | 京急本線 金沢八景駅 徒歩10分 京急逗子線 金沢八景駅 徒歩10分 京急逗子線 六浦駅 徒歩13分 神奈川県横浜市金沢区六浦 | 詳細を見る | |
アパート トレビ・フォンタナ(2LDK/2階) | |||||||
![]() | 15.6万円 5,500円 | なし 31.2万円 | 2LDK 57.16m2 | 築1年 | 東急田園都市線 あざみ野駅 徒歩16分 横浜市ブルーライン あざみ野駅 徒歩16分 神奈川県横浜市青葉区荏田町 | 詳細を見る | |
アパート リブリ・旭ハイム(2LDK/2階) | |||||||
![]() | 13.4万円 4,000円 | なし 26.8万円 | 2LDK 62.1m2 | 築11年 | 京浜急行電鉄大師線 港町駅 徒歩5分 京浜急行電鉄本線 京急川崎駅 徒歩14分 神奈川県川崎市川崎区旭町1丁目 | 詳細を見る | |
マンション 三ッ境グリーンハイム1号棟(3LDK/5階) | |||||||
![]() | 8.9万円 5,000円 | 8.9万円 8.9万円 | 3LDK 58.6m2 | 築51年 | 相鉄本線 三ツ境駅 徒歩15分 相鉄本線 希望ケ丘駅 徒歩18分 相鉄本線 瀬谷駅 徒歩36分 神奈川県横浜市瀬谷区三ツ境 | 詳細を見る | |
マンション トキワハイム(2DK/3階) | |||||||
![]() | 9.7万円 3,000円 | 9.7万円 なし | 2DK 40m2 | 築36年 | JR横浜線 大口駅 徒歩4分 京急本線 子安駅 徒歩16分 JR京浜東北線 新子安駅 徒歩17分 神奈川県横浜市神奈川区神之木町 | 詳細を見る | |
アパート TS CUORE三ツ境Ⅰ(1K/3階) | |||||||
![]() | 8.4万円 5,000円 | 8.4万円 なし | 1K 20.54m2 | 築1年 | 相鉄本線 三ツ境駅 徒歩2分 相鉄本線 希望ケ丘駅 徒歩20分 相鉄本線 瀬谷駅 徒歩30分 神奈川県横浜市瀬谷区三ツ境 | 詳細を見る | |
アパート エバークレストA棟(2DK/2階) | |||||||
![]() | 8万円 なし | 8万円 なし | 2DK 43m2 | 築34年 | 東急東横線 菊名駅 徒歩13分 東急東横線 妙蓮寺駅 徒歩14分 JR横浜線 新横浜駅 徒歩14分 神奈川県横浜市港北区富士塚 | 詳細を見る | |









