賃貸マンション
レジディア日本橋馬喰町の賃貸物件情報(3LDK/12階)
| 家賃 | 管理費等 | 敷金 | 礼金 | 間取り | 専有面積 |
|---|---|---|---|---|---|
| 46.5万円 | 2.5万円 | 46.5万円 | 46.5万円 | 3LDK | 85.41m2 |
入居決定でお祝い金最大100,000円
- 保証金
- -
- 償却・敷引
- -
- 築年数
- 築19年
- 所在階
- 12階
- 向き
- 北東
Point
中央区の賃貸マンションは、地域密着の不動産会社カンフィーへお任せ下さい!
提供:(株)カンフィー茅場町店(SUUMO経由)

詳細情報 レジディア日本橋馬喰町
物件紹介
レジディア日本橋馬喰町はJR総武線快速馬喰町駅から徒歩1分にあり、駅近で通勤通学に便利なマンションです。
このお部屋は2階以上に位置しているので、通行人や周囲の住人からの視線が気になりにくく、防犯面でも安心。建物のエントランスはオートロックがついており、インターホンにはTVモニタもついているため、相手の顔を確認してから来客対応することができます。
おしゃれなデザイナーズ物件!また、楽器相談が可能な物件となっているので、楽器演奏をお考えの方はぜひ相談してみてください。人気の南向き・フローリングのお部屋。角部屋でもあるため、周囲の居住者の生活音も気になりにくい場所です。室内にはウォークインクローゼットがありますので、たくさんの荷物も効率的に収納ができます。キッチンはシステムキッチン仕様になっていますので、お料理好きの方にもぴったり。バス・トイレは別なので、のんびりお風呂タイムも楽しめるでしょう。また、雨の日でも浴室乾燥機を使えば、お洗濯も問題ありません。
通信設備面では、インターネット接続が可能です。また、BSアンテナ・CSアンテナがありCATVにも対応しているので、おうち時間も充実するでしょう(別途工事、契約料が必要な場合あり)。
建物にはエレベーターがついているので、重い荷物があっても安心。共用部には宅配ボックスが設定されているので、不在の時にも荷物を受け取ることができます。また、ペット飼育の相談ができますので、あなたの大切な家族の一員も快適に暮らせるか、ぜひ確認してみてください。
このお部屋は2階以上に位置しているので、通行人や周囲の住人からの視線が気になりにくく、防犯面でも安心。建物のエントランスはオートロックがついており、インターホンにはTVモニタもついているため、相手の顔を確認してから来客対応することができます。
おしゃれなデザイナーズ物件!また、楽器相談が可能な物件となっているので、楽器演奏をお考えの方はぜひ相談してみてください。人気の南向き・フローリングのお部屋。角部屋でもあるため、周囲の居住者の生活音も気になりにくい場所です。室内にはウォークインクローゼットがありますので、たくさんの荷物も効率的に収納ができます。キッチンはシステムキッチン仕様になっていますので、お料理好きの方にもぴったり。バス・トイレは別なので、のんびりお風呂タイムも楽しめるでしょう。また、雨の日でも浴室乾燥機を使えば、お洗濯も問題ありません。
通信設備面では、インターネット接続が可能です。また、BSアンテナ・CSアンテナがありCATVにも対応しているので、おうち時間も充実するでしょう(別途工事、契約料が必要な場合あり)。
建物にはエレベーターがついているので、重い荷物があっても安心。共用部には宅配ボックスが設定されているので、不在の時にも荷物を受け取ることができます。また、ペット飼育の相談ができますので、あなたの大切な家族の一員も快適に暮らせるか、ぜひ確認してみてください。
お金・契約の情報
※「-」と表示されているものは、実際は料金が発生するものもございます。詳細はお問い合わせください。
| 家賃 | 46.5万円 | 管理費・共益費 | 2.5万円 |
|---|---|---|---|
| 敷金 | 46.5万円 | 礼金 | 46.5万円 |
| 入居決定でお祝い金最大100,000円 | |||
| 保証金 | - | 償却・敷引 | - |
| 住宅保険料 | - | 更新料 | - |
| 保証会社利用 | 必須 | 保証会社名 | - |
| 保証会社費用 | - | 保証会社備考 | 保証会社利用必 初回契約時:40%、更新時:10,000円、月額:1,000円 |
| 契約形態 | - | 契約期間 | - |
| 入居・引渡期間 | 相談 | 現況 | - |
| 入居可能条件 | 楽器相談、ペット相談 | ||
| 契約備考 | 東京メトロ日比谷線小伝馬町駅徒歩5分/通勤管理 合計3.3万円(内訳:入居者限定会員サービス会費 11000円税込 鍵交換代 22000円税込) インターネット利用料 1650円/月額 更新料 1ヶ月 3LDK 二人入居可/子供可/ペット相談/楽器相談 普通借家2年 損保【2.15万円2年】 バストイレ別、バルコニー、エアコン、ガスコンロ対応、クロゼット、フローリング、TVインターホン、浴室乾燥機、オートロック、室内洗濯置、シューズボックス、システムキッチン、追焚機能浴室、角住戸、温水洗浄便座、脱衣所、エレベーター、洗面所独立、駐輪場、宅配ボックス、CATV、光ファイバー、外壁タイル張り、2面採光、BS・CS、3口以上コンロ、対面式キッチン、防犯カメラ、独立型キッチン、ペット相談、全居室収納、分譲賃貸、オートバス、グリル付、振分、二人入居相談、バイク置場、全居室フローリング、2面バルコニー、3面採光、LDK15畳以上、CS、ダブルロックキー、楽器相談、南面2室、エレベーター2基、3方角住戸、3駅以上利用可、3沿線以上利用可、駅徒歩5分以内、24時間ゴミ出し可、敷地内ごみ置き場、専有面積25坪以上、日勤管理、都市ガス、洗面所にドア、シューズWIC、BS、高速ネット対応、通風良好 敷金積み増し【ペット飼育の場合敷金2ヶ月(総額)】 | ||
部屋の情報
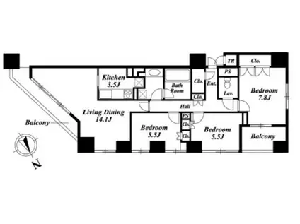
| 間取り | 3LDK | 専有面積 | 85.41m2 |
|---|---|---|---|
| 所在階 / 向き | 12階 / 北東 | バルコニー面積 | - |
| 水道 / ガス | - | ||
| 設備 | バス・トイレ別、2階以上、オートロック、テレビドアホン、宅配ボックス、浴室乾燥機、追い焚き、インターネット対応、システムキッチン、エアコン、エレベーター、温水洗浄便座、南向き、角部屋、バルコニー、フローリング、洗髪洗面化粧台、2口コンロ、コンロ:ガス、CATV、CSアンテナ、BSアンテナ、洗濯機:室内 | ||
| 当社物件ID | 1742573 | ||
建物の情報
| 建物名 | レジディア日本橋馬喰町 | ||
|---|---|---|---|
| 所在地 | 東京都中央区日本橋馬喰町 | ||
| 交通 | JR総武線快速 馬喰町駅 徒歩1分 都営新宿線 馬喰横山駅 徒歩2分 都営浅草線 東日本橋駅 徒歩4分 | ||
| 階数 | 17階建 | 総戸数 | - |
| 築年月 | 2007年03月 / 築19年 | エレベーター | あり |
| 駐車場 | なし | バイク置き場 | あり |
| 駐輪場 | あり | 管理人/管理会社 | - |
| 周辺環境 | その他 マルマンストア日本橋馬喰町店(スーパー)まで45m その他 マルエツプチ小伝馬町駅前店(スーパー)まで305m その他 スギ薬局日本橋横山町店(ドラッグストア)まで99m その他 東日本橋ドラッグ(ドラッグストア)まで342m その他 社会福祉法人三井記念病院(病院)まで756m その他 ドン・キホーテ秋葉原店(ホームセンター)まで1230m | ||
| 建物種別 | マンション | 建物構造 | RC(鉄筋コンクリート) |
この部屋の取扱い不動産会社
| 会社名 | (株)カンフィー茅場町店(SUUMO経由) | ||
|---|---|---|---|
| 所在地 | 東京都中央区新川1-3-2 新東京ビル2階 | 交通 | - |
| 営業時間 | 10:00~19:00 | 定休日 | 水曜日 |
| 免許番号 | 東京都知事89740 | 取引態様 | 仲介 |
| 不動産会社管理番号 | 100490891789 | 当社管理番号 | 89 |
| 所属団体 | (公社)全日本不動産協会東京都本部会員 | ||
| 公正取引協議会 | (公社)首都圏不動産公正取引協議会加盟 | ||
| 取扱い物件情報 | 物件詳細へ | ||
※各種情報と現状に差異がある場合は、現状優先となります。問い合わせをすることで、より詳しい条件、情報を確認する事ができます。
提供:(株)カンフィー茅場町店(SUUMO経由)
この物件が気になったら掲載期限まであと12日
レジディア日本橋馬喰町に条件(家賃・エリア)が近い物件一覧
| 写真 | 家賃 管理費等 | 敷金 礼金 | 間取り 専有面積 | 築年数 | 最寄り駅 所在地 | キープ | 詳細 |
|---|---|---|---|---|---|---|---|
マンション ライオンズマンション乃木坂(2LDK/2階) | |||||||
![]() | 37万円 1.7万円 | 37万円 37万円 | 2LDK 74.18m2 | 築28年 | 東京メトロ千代田線 乃木坂駅 徒歩3分 東京メトロ千代田線 赤坂駅(東京) 徒歩8分 東京メトロ銀座線 青山一丁目駅 徒歩10分 東京都港区赤坂 | 詳細を見る | |
マンション 東麻布 平成レジデンス(1LDK/2階) | |||||||
![]() | 30万円 1万円 | なし 30万円 | 1LDK 40m2 | 築1年 | 東京都大江戸線 赤羽橋駅 徒歩3分 東京都港区東麻布1丁目 | 詳細を見る | |
マンション セルリアンホームズ勝どき(3LDK/19階) | |||||||
![]() | 31万円 なし | 31万円 54.25万円 | 3LDK 72.82m2 | 築26年 | 都営大江戸線 勝どき駅 徒歩3分 都営大江戸線 築地市場駅 徒歩16分 東京メトロ日比谷線 築地駅 徒歩19分 東京都中央区勝どき | 詳細を見る | |
マンション ロイジェントパークス押上錦糸町(2LDK/6階) | |||||||
![]() | 34.7万円 2万円 | 34.7万円 なし | 2LDK 70.73m2 | 築2年 | 東京メトロ半蔵門線 押上駅 徒歩10分 東京メトロ半蔵門線 錦糸町駅 徒歩13分 東京都墨田区横川 | 詳細を見る | |
マンション パークホームズ南麻布 ザ レジデンス(2LDK/2階) | |||||||
![]() | 40万円 なし | 80万円 40万円 | 2LDK 58.08m2 | 築13年 | 都営大江戸線 麻布十番駅 徒歩7分 東京メトロ南北線 白金高輪駅 徒歩9分 都営三田線 三田駅(東京) 徒歩15分 東京都港区南麻布 | 詳細を見る | |
マンション フロンティアレジデンス錦糸公園(2LDK/2階) | |||||||
![]() | 31.8万円 1.5万円 | 31.8万円 なし | 2LDK 57.51m2 | 築2年 | 東京メトロ半蔵門線 押上駅 徒歩10分 東京メトロ半蔵門線 錦糸町駅 徒歩13分 東京都墨田区横川 | 詳細を見る | |
マンション BRILLIA IST 上野稲荷町(2LDK/13階) | |||||||
![]() | 32万円 2万円 | 32万円 なし | 2LDK 56.61m2 | 築3年 | 東京メトロ銀座線 稲荷町駅(東京) 徒歩7分 東京メトロ日比谷線 入谷駅(東京) 徒歩8分 JR山手線 上野駅 徒歩9分 東京都台東区北上野 | 詳細を見る | |
マンション プライマル月島(2LDK/9階) | |||||||
![]() | 30.6万円 1.5万円 | 30.6万円 30.6万円 | 2LDK 52.88m2 | 築5年 | 東京メトロ有楽町線 月島駅 徒歩3分 東京メトロ日比谷線 築地駅 徒歩16分 都営大江戸線 勝どき駅 徒歩16分 東京都中央区月島 | 詳細を見る | |








