賃貸アパート
エクシア平成の賃貸物件情報(1K/2階)
| 家賃 | 管理費等 | 敷金 | 礼金 | 間取り | 専有面積 |
|---|---|---|---|---|---|
| 5.6万円 | 2,000円 | なし | なし | 1K | 25.97m2 |
入居決定でお祝い金最大100,000円
- 保証金
- -
- 償却・敷引
- -
- 築年数
- 築8年
- 所在階
- 2階
- 向き
- 南東
Point
ご来店不要でオンライン内見・オンライン契約も可★全物件の初期費用クレジット払いも承ります★費用を抑えたい方、仙台市のお部屋探しのことは仙台駅近くのハウスコムFC仙台東口店へお気軽にご相談ください♪
提供:ハウスコムFC仙台東口店(株)Ys8(SUUMO経由)

詳細情報 エクシア平成
物件紹介
エクシア平成はJR仙石線苦竹駅から徒歩7分にあり、駅近で通勤通学に便利なアパートです。
このお部屋は2階以上に位置しているので、通行人や周囲の住人からの視線が気になりにくく、防犯面でも安心。インターホンにはTVモニタもついているため、相手の顔を確認してから来客対応することができます。
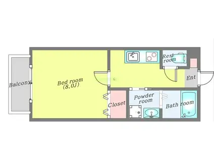
人気の南向きのお部屋。また、フローリングなのでお掃除もラクラク。バス・トイレ別の仕様で、のんびりお風呂タイムも楽しめます。
共用部には宅配ボックスが設定されているので、不在の時にも荷物を受け取ることができます。また、ペット飼育の相談ができますので、あなたの大切な家族の一員も快適に暮らせるか、ぜひ確認してみてください。
このお部屋は2階以上に位置しているので、通行人や周囲の住人からの視線が気になりにくく、防犯面でも安心。インターホンにはTVモニタもついているため、相手の顔を確認してから来客対応することができます。
人気の南向きのお部屋。また、フローリングなのでお掃除もラクラク。バス・トイレ別の仕様で、のんびりお風呂タイムも楽しめます。
共用部には宅配ボックスが設定されているので、不在の時にも荷物を受け取ることができます。また、ペット飼育の相談ができますので、あなたの大切な家族の一員も快適に暮らせるか、ぜひ確認してみてください。
お金・契約の情報
※「-」と表示されているものは、実際は料金が発生するものもございます。詳細はお問い合わせください。
| 家賃 | 5.6万円 | 管理費・共益費 | 2,000円 |
|---|---|---|---|
| 敷金 | なし | 礼金 | なし |
| フリーレント | あり | ||
| 入居決定でお祝い金最大100,000円 | |||
| 保証金 | - | 償却・敷引 | - |
| 住宅保険料 | - | 更新料 | - |
| 保証会社利用 | 必須 | 保証会社名 | - |
| 保証会社費用 | - | 保証会社備考 | 保証会社利用必 その他総賃料の50%~ |
| 契約形態 | - | 契約期間 | - |
| 入居・引渡期間 | 即時 | 現況 | - |
| 入居可能条件 | ペット相談 | ||
| 契約備考 | 巡回管理 1K ペット相談/フリーレント1ヶ月 普通借家2年 損保【1.6万円2年】 バストイレ別、エアコン、クロゼット、フローリング、シャワー付洗面台、TVインターホン、室内洗濯置、追焚機能浴室、温水洗浄便座、脱衣所、洗面所独立、2口コンロ、宅配ボックス、即入居可、最上階、ペット相談、IHクッキングヒーター、全居室収納、2沿線利用可、フリーレント、24時間換気システム、3駅以上利用可、駅徒歩10分以内、東南向き、全居室6畳以上、全居室8畳以上、プロパンガス、敷金・礼金不要、IT重説対応物件、初期費用カード決済可 | ||
部屋の情報
| 間取り | 1K | 専有面積 | 25.97m2 |
|---|---|---|---|
| 所在階 / 向き | 2階 / 南東 | バルコニー面積 | - |
| 水道 / ガス | - | ||
| 設備 | バス・トイレ別、2階以上、テレビドアホン、宅配ボックス、追い焚き、エアコン、温水洗浄便座、南向き、フローリング、洗髪洗面化粧台、2口コンロ、コンロ:IH、洗濯機:室内 | ||
| 当社物件ID | 99726816 | ||
建物の情報
| 建物名 | エクシア平成 | ||
|---|---|---|---|
| 所在地 | 宮城県仙台市宮城野区平成 | ||
| 交通 | JR仙石線 苦竹駅 徒歩7分 JR仙石線 陸前原ノ町駅 徒歩8分 JR東北本線 東仙台駅 徒歩17分 | ||
| 階数 | 2階建 | 総戸数 | 9戸 |
| 築年月 | 2018年03月 / 築8年 | エレベーター | - |
| 駐車場 | なし | バイク置き場 | - |
| 駐輪場 | - | 管理人/管理会社 | - |
| 周辺環境 | その他 仙台東郵便局(郵便局)(郵便局)まで398m その他 セブンイレブン仙台原町5丁目店(コンビニ)(コンビニ)まで483m その他 イオンエクスプレス 仙台平成店(スーパー)まで500m その他 仙台市宮城野区役所(役所)(役所)まで557m その他 ファミリーマート宮城野原町店(コンビニ)(コンビニ)(コンビニ)まで607m | ||
| 建物種別 | アパート | 建物構造 | 木造 |
この部屋の取扱い不動産会社
| 会社名 | ハウスコムFC仙台東口店(株)Ys8(SUUMO経由) | ||
|---|---|---|---|
| 所在地 | 宮城県仙台市宮城野区榴岡4-12-2オダシマビル3F | 交通 | - |
| 営業時間 | 10:00~18:00 | 定休日 | 水曜日 |
| 免許番号 | 宮城県知事7082 | 取引態様 | 仲介 |
| 不動産会社管理番号 | 100474226644 | 当社管理番号 | 89 |
| 取扱い物件情報 | 物件詳細へ | ||
※各種情報と現状に差異がある場合は、現状優先となります。問い合わせをすることで、より詳しい条件、情報を確認する事ができます。
提供:ハウスコムFC仙台東口店(株)Ys8(SUUMO経由)
この物件が気になったら掲載期限まであと10日
エクシア平成に条件(家賃・エリア)が近い物件一覧
| 写真 | 家賃 管理費等 | 敷金 礼金 | 間取り 専有面積 | 築年数 | 最寄り駅 所在地 | キープ | 詳細 |
|---|---|---|---|---|---|---|---|
アパート SKYアーク(2LDK/1階) | |||||||
![]() | 6.8万円 3,500円 | 6.8万円 6.8万円 | 2LDK 61.94m2 | 築19年 | JR東北本線 名取駅 徒歩18分 JR東北本線 南仙台駅 徒歩22分 宮城県名取市上余田市坪 | 詳細を見る | |
マンション 第三木皿ハイツ(2LDK/4階) | |||||||
![]() | 5.9万円 2,000円 | 5.9万円 なし | 2LDK 58m2 | 築40年 | JR東北本線 東仙台駅 徒歩21分 JR仙石線 苦竹駅 徒歩29分 JR仙石線 陸前原ノ町駅 徒歩31分 宮城県仙台市宮城野区枡江 | 詳細を見る | |
マンション イースト PAL(1K/3階) | |||||||
![]() | 5.2万円 3,000円 | 5.2万円 なし | 1K 25.92m2 | 築24年 | JR仙石線 小鶴新田駅 徒歩10分 JR東北本線 東仙台駅 徒歩18分 JR仙石線 苦竹駅 徒歩23分 宮城県仙台市宮城野区新田 | 詳細を見る | |
マンション グランシャリオ(2LDK/2階) | |||||||
![]() | 6.8万円 2,000円 | 6.8万円 なし | 2LDK 68.03m2 | 築21年 | 宮城県黒川郡大和町吉岡古館 | 詳細を見る | |
マンション ソレイユ宮城野Ⅰ(1K/1階) | |||||||
![]() | 4.1万円 2,000円 | なし なし | 1K 20.5m2 | 築38年 | 仙石線 榴ケ岡駅 徒歩8分 宮城県仙台市宮城野区宮城野1丁目 | 詳細を見る | |
アパート レオパレスみえ(1K/2階) | |||||||
![]() | 5.6万円 4,000円 | なし 5.6万円 | 1K 21.81m2 | 築21年 | 仙石線 多賀城駅 徒歩16分 宮城県多賀城市明月2丁目 | 詳細を見る | |
マンション APPLEみやぎの(1K/5階) | |||||||
![]() | 6.7万円 7,000円 | なし 6.7万円 | 1K 24.9m2 | 築2年 | 仙台市地下鉄東西線 薬師堂駅(宮城) 徒歩11分 JR仙石線 榴ケ岡駅 徒歩13分 仙台市地下鉄東西線 連坊駅 徒歩14分 宮城県仙台市宮城野区宮城野 | 詳細を見る | |
アパート ガス割 第九弾 ESCONDITE卸町II(1LDK/1階) | |||||||
![]() | 6.6万円 3,000円 | なし なし | 1LDK 27.94m2 | 新築 | 仙台市地下鉄東西線 卸町駅(宮城) 徒歩10分 仙台市地下鉄東西線 薬師堂駅(宮城) 徒歩13分 JR仙石線 宮城野原駅 徒歩18分 宮城県仙台市宮城野区宮千代 | 詳細を見る | |









