賃貸マンション
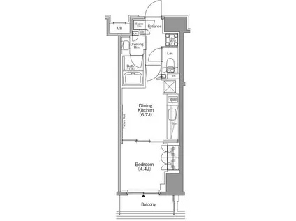
ザ・パークハビオ本所吾妻橋の賃貸物件情報(1DK/5階)
| 家賃 | 管理費等 | 敷金 | 礼金 | 間取り | 専有面積 |
|---|---|---|---|---|---|
| 14.4万円 | 1.5万円 | 14.4万円 | なし | 1DK | 30.48m2 |
入居決定でお祝い金最大100,000円
Point
まずはお問い合わせ!
不動産会社は街のプロ、あなたに合った物件がきっと見つかります。
提供:三菱地所ハウスネット(株)首都圏リーシング部(SUUMO経由)

詳細情報 ザ・パークハビオ本所吾妻橋
物件紹介
ザ・パークハビオ本所吾妻橋は都営浅草線本所吾妻橋駅から徒歩5分にあり、駅近で通勤通学に便利なマンションです。
このお部屋は2階以上に位置しているので、通行人や周囲の住人からの視線が気になりにくく、防犯面でも安心。建物のエントランスはオートロックがついており、インターホンにはTVモニタもついているため、相手の顔を確認してから来客対応することができます。
こちらは楽器相談が可能な物件。楽器演奏をお考えの方はぜひ相談してみてください。フローリングのお部屋なのでお掃除もラクラク。バス・トイレ別の仕様で、のんびりお風呂タイムも楽しめます。また、浴室乾燥機を使えば、雨の日でもお洗濯は問題ありません。
通信設備面では、インターネット接続が可能です。また、BSアンテナ・CSアンテナがありCATVにも対応しているので、おうち時間も充実するでしょう(別途工事、契約料が必要な場合あり)。
建物にはエレベーターがついているので、重い荷物があっても安心。共用部には宅配ボックスが設定されているので、不在の時にも荷物を受け取ることができます。また、ペット飼育の相談ができますので、あなたの大切な家族の一員も快適に暮らせるか、ぜひ確認してみてください。
このお部屋は2階以上に位置しているので、通行人や周囲の住人からの視線が気になりにくく、防犯面でも安心。建物のエントランスはオートロックがついており、インターホンにはTVモニタもついているため、相手の顔を確認してから来客対応することができます。
こちらは楽器相談が可能な物件。楽器演奏をお考えの方はぜひ相談してみてください。フローリングのお部屋なのでお掃除もラクラク。バス・トイレ別の仕様で、のんびりお風呂タイムも楽しめます。また、浴室乾燥機を使えば、雨の日でもお洗濯は問題ありません。
通信設備面では、インターネット接続が可能です。また、BSアンテナ・CSアンテナがありCATVにも対応しているので、おうち時間も充実するでしょう(別途工事、契約料が必要な場合あり)。
建物にはエレベーターがついているので、重い荷物があっても安心。共用部には宅配ボックスが設定されているので、不在の時にも荷物を受け取ることができます。また、ペット飼育の相談ができますので、あなたの大切な家族の一員も快適に暮らせるか、ぜひ確認してみてください。
お金・契約の情報
※「-」と表示されているものは、実際は料金が発生するものもございます。詳細はお問い合わせください。
| 家賃 | 14.4万円 | 管理費・共益費 | 1.5万円 |
|---|---|---|---|
| 敷金 | 14.4万円 | 礼金 | なし |
| 入居決定でお祝い金最大100,000円 | |||
| 保証金 | - | 償却・敷引 | - |
| 住宅保険料 | - | 更新料 | - |
| 保証会社利用 | 必須 | 保証会社名 | - |
| 保証会社費用 | - | 保証会社備考 | 保証会社利用必 ジェイリース・ウェルオンソリューションズ 初年度保証料:賃料等合計額の50% 2年目以降:1年毎1万 |
| 契約形態 | - | 契約期間 | - |
| 入居・引渡期間 | - | 現況 | - |
| 入居可能条件 | 楽器相談、ペット相談 | ||
| 契約備考 | 礼金無(1年未満解約時、賃料1か月分の違約金有) 引越日は引越幹事会社へ要相談 ダイニングへのエアコン設置不可 法人契約保証会社要確認 駆付けサポート24借主加入 保証会社未使用時敷金2か月 ペット・楽器相談(諸条件弊社募集図面要確認) SOHO使用応相談 (敷金1か月積増/保証料要確認) 民泊不可 退去時:室内清掃・エアコン洗浄費借主負担 付属施設空状況要確認 1DK ペット相談/楽器相談/ルームシェア不可 損保【要】 バストイレ別、バルコニー、エアコン、ガスコンロ対応、フローリング、TVインターホン、浴室乾燥機、オートロック、室内洗濯置、追焚機能浴室、温水洗浄便座、エレベーター、2口コンロ、宅配ボックス、CATV、光ファイバー、礼金不要、防犯カメラ、ペット相談、CS、築2年以内、楽器相談、駅徒歩5分以内、敷地内ごみ置き場、BS、LGBTフレンドリー 入居日:'26年2月上旬 | ||
部屋の情報
| 間取り | 1DK | 専有面積 | 30.48m2 |
|---|---|---|---|
| 所在階 / 向き | 5階 / 北 | バルコニー面積 | 3m2 |
| 水道 / ガス | - | ||
| 設備 | バス・トイレ別、2階以上、オートロック、テレビドアホン、宅配ボックス、浴室乾燥機、追い焚き、インターネット対応、エアコン、エレベーター、温水洗浄便座、バルコニー、フローリング、2口コンロ、コンロ:ガス、CATV、CSアンテナ、BSアンテナ、洗濯機:室内 | ||
| 当社物件ID | 160050266 | ||
建物の情報
| 建物名 | ザ・パークハビオ本所吾妻橋 | ||
|---|---|---|---|
| 所在地 | 東京都墨田区本所 | ||
| 交通 | 都営浅草線 本所吾妻橋駅 徒歩5分 | ||
| 階数 | 11階建 | 総戸数 | 29戸 |
| 築年月 | 2026年02月 / 新築 | エレベーター | あり |
| 駐車場 | なし | バイク置き場 | - |
| 駐輪場 | - | 管理人/管理会社 | - |
| 周辺環境 | その他 マルエツプチ本所四丁目店(スーパー)まで70m その他 まいばすけっと本所3丁目店(スーパー)まで130m その他 Santoku石原店(スーパー)まで560m その他 セブンイレブン墨田東駒形3丁目店(コンビニ)まで160m その他 ローソン本所吾妻橋駅南店(コンビニ)まで270m その他 サファイアドラッグ(ドラッグストア)まで120m | ||
| 建物種別 | マンション | 建物構造 | RC(鉄筋コンクリート) |
この部屋の取扱い不動産会社
| 会社名 | 三菱地所ハウスネット(株)首都圏リーシング部(SUUMO経由) | ||
|---|---|---|---|
| 所在地 | 東京都新宿区北新宿2-21-1 新宿フロントタワー32階 | 交通 | - |
| 営業時間 | 午前10時~午後5時 | 定休日 | 毎週水日曜日 |
| 免許番号 | 国土交通大臣6019 | 取引態様 | 貸主 |
| 不動産会社管理番号 | 100480253262 | 当社管理番号 | 89 |
| 所属団体 | (一社)不動産流通経営協会会員 | ||
| 公正取引協議会 | (公社)首都圏不動産公正取引協議会加盟 | ||
| 取扱い物件情報 | 物件詳細へ | ||
※各種情報と現状に差異がある場合は、現状優先となります。問い合わせをすることで、より詳しい条件、情報を確認する事ができます。
提供:三菱地所ハウスネット(株)首都圏リーシング部(SUUMO経由)
この物件が気になったら掲載期限まであと11日
ザ・パークハビオ本所吾妻橋に条件(家賃・エリア)が近い物件一覧
| 写真 | 家賃 管理費等 | 敷金 礼金 | 間取り 専有面積 | 築年数 | 最寄り駅 所在地 | キープ | 詳細 |
|---|---|---|---|---|---|---|---|
マンション プレサンスブルーム浅草(1LDK/5階) | |||||||
![]() | 18.1万円 1.5万円 | なし なし | 1LDK 43m2 | 築4年 | 東武伊勢崎・大師線 浅草駅(東武・都営・メトロ) 徒歩8分 東京地下鉄銀座線 浅草駅(東武・都営・メトロ) 徒歩8分 東京都浅草線 浅草駅(東武・都営・メトロ) 徒歩8分 東京都台東区浅草6丁目 | 詳細を見る | |
マンション ニューシティアパートメンツ亀戸(1K/2階) | |||||||
![]() | 9.9万円 8,000円 | 9.9万円 なし | 1K 27.26m2 | 築20年 | JR総武線 亀戸駅 徒歩3分 都営新宿線 大島駅(東京) 徒歩15分 都営新宿線 西大島駅 徒歩17分 東京都江東区亀戸 | 詳細を見る | |
マンション グランデュール富士(1LDK/3階) | |||||||
![]() | 15万円 6,000円 | 15万円 15万円 | 1LDK 35.05m2 | 築6年 | 東京地下鉄千代田線 西日暮里駅 徒歩3分 山手線 西日暮里駅 徒歩4分 京浜東北・根岸線 日暮里駅 徒歩6分 東京都荒川区西日暮里2丁目 | 詳細を見る | |
マンション ヴェルステージ秋葉原イースト(1K/2階) | |||||||
![]() | 9万円 1万円 | 9万円 9万円 | 1K 25.5m2 | 築18年 | 総武・中央緩行線 浅草橋駅 徒歩7分 東京都浅草線 蔵前駅 徒歩9分 山手線 秋葉原駅 徒歩14分 東京都台東区鳥越2丁目 | 詳細を見る | |
マンション シーズンフラッツ押上サウス(1K/11階) | |||||||
![]() | 12.5万円 1万円 | なし なし | 1K 25.11m2 | 築4年 | 東京地下鉄半蔵門線 押上駅 徒歩4分 総武・中央緩行線 錦糸町駅 徒歩14分 東京都墨田区業平4丁目 | 詳細を見る | |
マンション プラウドフラット浅草(ワンルーム/7階) | |||||||
![]() | 12.8万円 1万円 | 12.8万円 12.8万円 | ワンルーム 25.11m2 | 築6年 | 東武伊勢崎・大師線 浅草駅(東武・都営・メトロ) 徒歩9分 東京地下鉄銀座線 浅草駅(東武・都営・メトロ) 徒歩10分 東京都台東区浅草6丁目 | 詳細を見る | |
マンション オーキッドレジデンス上野稲荷町2(1LDK/2階) | |||||||
![]() | 18.4万円 1.02万円 | なし なし | 1LDK 41m2 | 築8年 | 東京地下鉄銀座線 稲荷町駅(東京) 徒歩4分 山手線 上野駅 徒歩10分 つくばエクスプレス 浅草駅(つくばEXP) 徒歩10分 東京都台東区松が谷1丁目 | 詳細を見る | |
マンション ルフォンプログレ浅草入谷(1LDK/14階) | |||||||
![]() | 16.8万円 2万円 | 16.8万円 なし | 1LDK 40.59m2 | 築4年 | 東京地下鉄日比谷線 入谷駅(東京) 徒歩8分 つくばエクスプレス 浅草駅(つくばEXP) 徒歩11分 東京都台東区千束2丁目 | 詳細を見る | |









