賃貸マンション
ロイジェント志村坂上の賃貸物件情報(1K/2階)
| 家賃 | 管理費等 | 敷金 | 礼金 | 間取り | 専有面積 |
|---|---|---|---|---|---|
| 8.4万円 | 1.5万円 | 8.4万円 | 8.4万円 | 1K | 25.84m2 |
入居決定でお祝い金最大100,000円
- 保証金
- -
- 償却・敷引
- -
- 築年数
- 築5年
- 所在階
- 2階
- 向き
- 北東
Point
オーナー様と直接取引している物件を10万戸以上保有しているため、賃料、初期費用、賃料発生日など諸条件を何でもご相談くださいませ。
提供:ハウス・トゥ・ハウス・ネットサービス(株)志村坂上店(SUUMO経由)

詳細情報 ロイジェント志村坂上
物件紹介
ロイジェント志村坂上は都営三田線志村三丁目駅から徒歩11分にあるマンションです。
このお部屋は2階以上に位置しているので、通行人や周囲の住人からの視線が気になりにくく、防犯面でも安心。建物のエントランスはオートロックがついており、インターホンにはTVモニタもついているため、相手の顔を確認してから来客対応することができます。
フローリングのお部屋なのでお掃除もラクラク。キッチンはシステムキッチン仕様になっていますので、お料理好きの方にもぴったり。バス・トイレは別なので、のんびりお風呂タイムも楽しめるでしょう。また、雨の日でも浴室乾燥機を使えば、お洗濯も問題ありません。
通信設備面では、インターネット接続が可能です。また、BSアンテナ・CSアンテナもありますので、おうち時間も充実するでしょう(別途工事、契約料が必要な場合あり)。
建物にはエレベーターがついているので、重い荷物があっても安心。共用部には宅配ボックスが設定されているので、不在の時にも荷物を受け取ることができます。
このお部屋は2階以上に位置しているので、通行人や周囲の住人からの視線が気になりにくく、防犯面でも安心。建物のエントランスはオートロックがついており、インターホンにはTVモニタもついているため、相手の顔を確認してから来客対応することができます。
フローリングのお部屋なのでお掃除もラクラク。キッチンはシステムキッチン仕様になっていますので、お料理好きの方にもぴったり。バス・トイレは別なので、のんびりお風呂タイムも楽しめるでしょう。また、雨の日でも浴室乾燥機を使えば、お洗濯も問題ありません。
通信設備面では、インターネット接続が可能です。また、BSアンテナ・CSアンテナもありますので、おうち時間も充実するでしょう(別途工事、契約料が必要な場合あり)。
建物にはエレベーターがついているので、重い荷物があっても安心。共用部には宅配ボックスが設定されているので、不在の時にも荷物を受け取ることができます。
お金・契約の情報
※「-」と表示されているものは、実際は料金が発生するものもございます。詳細はお問い合わせください。
| 家賃 | 8.4万円 | 管理費・共益費 | 1.5万円 |
|---|---|---|---|
| 敷金 | 8.4万円 | 礼金 | 8.4万円 |
| 入居決定でお祝い金最大100,000円 | |||
| 保証金 | - | 償却・敷引 | - |
| 住宅保険料 | - | 更新料 | - |
| 保証会社利用 | 必須 | 保証会社名 | - |
| 保証会社費用 | - | 保証会社備考 | 保証会社利用必 賃料等の50% 年間保証委託料10000円/年 毎月支払委託料賃料等の1% |
| 契約形態 | - | 契約期間 | - |
| 入居・引渡期間 | - | 現況 | - |
| 契約備考 | 普通借家3年:3年未満の解約の場合、賃料2ヶ月分相当額の違約金あり。解約予告2ヶ月前。 合計2.2万円(内訳:鍵交換代2.2万円) 更新料 新賃料1.00ヶ月分 1K 普通借家3年 損保【2.2万円2年】 バストイレ別、バルコニー、エアコン、ガスコンロ対応、クロゼット、フローリング、TVインターホン、浴室乾燥機、オートロック、室内洗濯置、シューズボックス、システムキッチン、追焚機能浴室、温水洗浄便座、脱衣所、エレベーター、洗面所独立、駐輪場、宅配ボックス、3口以上コンロ、防犯カメラ、独立型キッチン、照明付、グリル付、2沿線利用可、ディンプルキー、CS、ダブルロックキー、3駅以上利用可、敷地内ごみ置き場、都市ガス、玄関収納、BS、保証会社利用可、IT重説対応物件、初期費用カード決済可 入居日:'26年5月下旬 | ||
部屋の情報
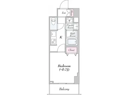
| 間取り | 1K | 専有面積 | 25.84m2 |
|---|---|---|---|
| 所在階 / 向き | 2階 / 北東 | バルコニー面積 | - |
| 水道 / ガス | - | ||
| 設備 | バス・トイレ別、2階以上、オートロック、テレビドアホン、宅配ボックス、浴室乾燥機、追い焚き、システムキッチン、エアコン、エレベーター、温水洗浄便座、バルコニー、フローリング、洗髪洗面化粧台、2口コンロ、コンロ:ガス、CSアンテナ、BSアンテナ、洗濯機:室内 | ||
| 当社物件ID | 102714942 | ||
建物の情報
| 建物名 | ロイジェント志村坂上 | ||
|---|---|---|---|
| 所在地 | 東京都板橋区東坂下 | ||
| 交通 | 都営三田線 志村坂上駅 徒歩13分 都営三田線 志村三丁目駅 徒歩13分 JR埼京線 浮間舟渡駅 徒歩17分 | ||
| 階数 | 7階建 | 総戸数 | 159戸 |
| 築年月 | 2022年03月 / 築5年 | エレベーター | あり |
| 駐車場 | 空有 25300円 | バイク置き場 | - |
| 駐輪場 | あり | 管理人/管理会社 | - |
| 周辺環境 | その他 ローソン 板橋東坂下一丁目店(コンビニ)まで194m その他 板橋中央総合病院(病院)まで1148m その他 Olympicおりーぶ志村坂下店(スーパー)まで504m その他 西友 蓮根坂下店(スーパー)まで479m その他 志村ショッピングセンター(ショッピングセンター)まで629m その他 Seven Town(セブン タウン) 小豆沢(ショッピングセンター)まで824m | ||
| 建物種別 | マンション | 建物構造 | RC(鉄筋コンクリート) |
この部屋の取扱い不動産会社
| 会社名 | ハウス・トゥ・ハウス・ネットサービス(株)板橋区役所前店(SUUMO経由) | ||
|---|---|---|---|
| 所在地 | 東京都板橋区仲宿 46-12 | 交通 | - |
| 営業時間 | 10:00~18:30(1月~3月は9:30~) | 定休日 | 水曜日 |
| 免許番号 | 国土交通大臣7400 | 取引態様 | 仲介 |
| 不動産会社管理番号 | 100492496121 | 当社管理番号 | 89 |
| 所属団体 | (公社)全日本不動産協会東京都本部会員 | ||
| 公正取引協議会 | (公社)首都圏不動産公正取引協議会加盟 | ||
| 取扱い物件情報 | 物件詳細へ | ||
※各種情報と現状に差異がある場合は、現状優先となります。問い合わせをすることで、より詳しい条件、情報を確認する事ができます。
提供:ハウス・トゥ・ハウス・ネットサービス(株)板橋区役所前店(SUUMO経由)
この物件が気になったら掲載期限まであと12日
ロイジェント志村坂上に条件(家賃・エリア)が近い物件一覧
| 写真 | 家賃 管理費等 | 敷金 礼金 | 間取り 専有面積 | 築年数 | 最寄り駅 所在地 | キープ | 詳細 |
|---|---|---|---|---|---|---|---|
マンション パークハイム(ワンルーム/1階) | |||||||
![]() | 6.3万円 なし | 6.3万円 6.3万円 | ワンルーム 16m2 | 築38年 | JR京浜東北線 王子駅 徒歩7分 JR京浜東北線 東十条駅 徒歩10分 東京メトロ南北線 王子神谷駅 徒歩11分 東京都北区岸町 | 詳細を見る | |
アパート プルクワ(ワンルーム/2階) | |||||||
![]() | 8.2万円 3,000円 | 8.2万円 8.2万円 | ワンルーム 32m2 | 築17年 | 東武東上線 成増駅 徒歩7分 東京メトロ有楽町線 地下鉄成増駅 徒歩10分 東武東上線 下赤塚駅 徒歩15分 東京都板橋区赤塚 | 詳細を見る | |
マンション フレクション光が丘(1K/1階) | |||||||
![]() | 5.8万円 4,000円 | なし 5.8万円 | 1K 22.43m2 | 築38年 | 都営大江戸線 練馬春日町駅 徒歩15分 都営大江戸線 光が丘駅 徒歩15分 東京都練馬区高松 | 詳細を見る | |
マンション スパシエロッサ池袋(1K/9階) | |||||||
![]() | 10.5万円 2万円 | 10.5万円 15.75万円 | 1K 20.7m2 | 築12年 | 東京メトロ有楽町線 東池袋駅 徒歩3分 東京メトロ副都心線 雑司が谷駅(東京メトロ) 徒歩11分 東京メトロ丸ノ内線 池袋駅 徒歩18分 東京都豊島区南池袋 | 詳細を見る | |
マンション エスペランサ板橋(1K/5階) | |||||||
![]() | 7.5万円 5,000円 | なし 7.5万円 | 1K 21.84m2 | 築28年 | 東武東上線 下板橋駅 徒歩5分 都営三田線 板橋区役所前駅 徒歩8分 JR埼京線 板橋駅 徒歩9分 東京都板橋区板橋 | 詳細を見る | |
マンション COCOFLAT大山(ワンルーム/2階) | |||||||
![]() | 8.2万円 5,000円 | 8.2万円 なし | ワンルーム 20.07m2 | 築6年 | 東武東上線 大山駅(東京) 徒歩8分 東武東上線 下板橋駅 徒歩15分 都営三田線 板橋区役所前駅 徒歩17分 東京都板橋区熊野町 | 詳細を見る | |
マンション メゾンドソレイユ(ワンルーム/3階) | |||||||
![]() | 5.2万円 4,000円 | 5.2万円 なし | ワンルーム 18.9m2 | 築35年 | 西武池袋線 富士見台駅 徒歩8分 西武池袋線 練馬高野台駅 徒歩15分 西武池袋線 中村橋駅 徒歩18分 東京都練馬区貫井 | 詳細を見る | |
マンション BPRレジデンス王子イースト(2K/4階) | |||||||
![]() | 11.6万円 1万円 | 11.6万円 なし | 2K 25.24m2 | 築3年 | 東京メトロ南北線 王子駅 徒歩6分 JR京浜東北線 王子駅 徒歩8分 東京メトロ南北線 王子神谷駅 徒歩12分 東京都北区豊島 | 詳細を見る | |








