賃貸マンション
プレサンス名駅南ブリエの賃貸物件情報(1LDK/10階)
| 家賃 | 管理費等 | 敷金 | 礼金 | 間取り | 専有面積 |
|---|---|---|---|---|---|
| 9.0399万円 | 7,920円 | なし | なし | 1LDK | 33.26m2 |
入居決定でお祝い金最大100,000円
- 保証金
- -
- 償却・敷引
- -
- 築年数
- 築1年
- 所在階
- 10階
- 向き
- 西
Point
セキュリティ面は、TVインターホン・オートロックなど充実しているので、防犯対策もばっちりです。空き家の物件です。気になるイチオシ物件情報:「プレサンス名駅南ブリエ」。
提供:(株)プレサンスコーポレーション大阪支店(SUUMO経由)

詳細情報 プレサンス名駅南ブリエ
物件紹介
プレサンス名駅南ブリエはあおなみ線ささしまライブ駅から徒歩9分にあり、駅近で通勤通学に便利なマンションです。
このお部屋は2階以上に位置しているので、通行人や周囲の住人からの視線が気になりにくく、防犯面でも安心。建物のエントランスはオートロックがついており、インターホンにはTVモニタもついているため、相手の顔を確認してから来客対応することができます。
おしゃれなデザイナーズ物件!フローリングのお部屋なのでお掃除もラクラク。室内には人気のウォークインクローゼットがありますので、たくさんの荷物も効率的に収納ができます。キッチンはシステムキッチン仕様になっていますので、お料理好きの方にもぴったり。バス・トイレは別なので、のんびりお風呂タイムも楽しめるでしょう。また、雨の日でも浴室乾燥機を使えば、お洗濯も問題ありません。
通信設備面では、インターネットが無料で使えるので、月々の出費を抑えられるのも魅力です。また、BSアンテナ・CSアンテナがありCATVにも対応しているので、おうち時間も充実するでしょう(別途工事、BS・CS・CATVの契約料等が必要な場合あり)。
建物にはエレベーターがついているので、重い荷物があっても安心。共用部には宅配ボックスが設定されているので、不在の時にも荷物を受け取ることができます。また、ペット飼育の相談ができますので、あなたの大切な家族の一員も快適に暮らせるか、ぜひ確認してみてください。
このお部屋は2階以上に位置しているので、通行人や周囲の住人からの視線が気になりにくく、防犯面でも安心。建物のエントランスはオートロックがついており、インターホンにはTVモニタもついているため、相手の顔を確認してから来客対応することができます。
おしゃれなデザイナーズ物件!フローリングのお部屋なのでお掃除もラクラク。室内には人気のウォークインクローゼットがありますので、たくさんの荷物も効率的に収納ができます。キッチンはシステムキッチン仕様になっていますので、お料理好きの方にもぴったり。バス・トイレは別なので、のんびりお風呂タイムも楽しめるでしょう。また、雨の日でも浴室乾燥機を使えば、お洗濯も問題ありません。
通信設備面では、インターネットが無料で使えるので、月々の出費を抑えられるのも魅力です。また、BSアンテナ・CSアンテナがありCATVにも対応しているので、おうち時間も充実するでしょう(別途工事、BS・CS・CATVの契約料等が必要な場合あり)。
建物にはエレベーターがついているので、重い荷物があっても安心。共用部には宅配ボックスが設定されているので、不在の時にも荷物を受け取ることができます。また、ペット飼育の相談ができますので、あなたの大切な家族の一員も快適に暮らせるか、ぜひ確認してみてください。
お金・契約の情報
※「-」と表示されているものは、実際は料金が発生するものもございます。詳細はお問い合わせください。
| 家賃 | 9.0399万円 | 管理費・共益費 | 7,920円 |
|---|---|---|---|
| 敷金 | なし | 礼金 | なし |
| 入居決定でお祝い金最大100,000円 | |||
| 保証金 | - | 償却・敷引 | - |
| 住宅保険料 | - | 更新料 | - |
| 保証会社利用 | 必須 | 保証会社名 | - |
| 保証会社費用 | - | 保証会社備考 | 保証会社利用必 株式会社プレサンスギャランティ保証契約必須 株式会社プレサンスギャランティ保証契約必須 |
| 契約形態 | - | 契約期間 | - |
| 入居・引渡期間 | 即時 | 現況 | - |
| 入居可能条件 | ペット相談 | ||
| 契約備考 | 更新料 11000円 プレサポ24 月額990円 1LDK ペット相談 普通借家1年 損保【1.1万円1年】 バストイレ別、バルコニー、エアコン、ガスコンロ対応、クロゼット、フローリング、TVインターホン、浴室乾燥機、オートロック、室内洗濯置、シューズボックス、システムキッチン、温水洗浄便座、エレベーター、洗面所独立、洗面化粧台、2口コンロ、駐輪場、宅配ボックス、光ファイバー、即入居可、礼金不要、敷金不要、対面式キッチン、防犯カメラ、ペット相談、分譲賃貸、全居室洋室、保証人不要、全居室フローリング、ガスレンジ付、デザイナーズ、2沿線利用可、ネット使用料不要、保証金不要、築2年以内、24時間換気システム、築3年以内、人感照明センサー、2駅利用可、3駅以上利用可、3沿線以上利用可、敷地内ごみ置き場、築5年以内、都市ガス、シューズWIC、玄関収納、ダウンライト、BS、LAN、年内入居可、年度内入居可、敷金・礼金不要、保証会社利用可、IT重説対応物件、初期費用カード決済可 | ||
部屋の情報
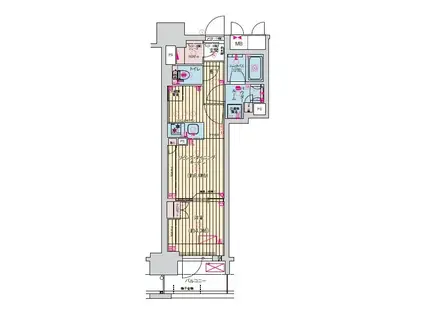
| 間取り | 1LDK | 専有面積 | 33.26m2 |
|---|---|---|---|
| 所在階 / 向き | 10階 / 西 | バルコニー面積 | - |
| 水道 / ガス | - | ||
| 設備 | バス・トイレ別、2階以上、オートロック、テレビドアホン、宅配ボックス、浴室乾燥機、インターネット対応、システムキッチン、エアコン、エレベーター、温水洗浄便座、バルコニー、フローリング、洗髪洗面化粧台、2口コンロ、コンロ:ガス、デザイナーズ、BSアンテナ、インターネット使用料無料、洗濯機:室内 | ||
| 当社物件ID | 159183386 | ||
建物の情報
| 建物名 | プレサンス名駅南ブリエ | ||
|---|---|---|---|
| 所在地 | 愛知県名古屋市中村区名駅南 | ||
| 交通 | あおなみ線 ささしまライブ駅 徒歩9分 近鉄名古屋線 米野駅 徒歩13分 地下鉄鶴舞線 大須観音駅 徒歩14分 | ||
| 階数 | 14階建 | 総戸数 | 130戸 |
| 築年月 | 2025年09月 / 築1年 | エレベーター | あり |
| 駐車場 | なし | バイク置き場 | - |
| 駐輪場 | あり | 管理人/管理会社 | - |
| 周辺環境 | その他 コスモス調剤薬局 かこまち店(ドラッグストア)まで481m その他 かっぱ寿司 水主町店(飲食店)まで497m その他 荒川医院(病院)まで523m その他 セブンイレブン 名古屋名駅南2丁目店(コンビニ)まで457m その他 ローソン 名駅南2丁目店(コンビニ)まで541m その他 住友生命名古屋ビル内郵便局(郵便局)まで553m | ||
| 建物種別 | マンション | 建物構造 | RC(鉄筋コンクリート) |
この部屋の取扱い不動産会社
| 会社名 | (株)Nタウン不動産Ntown栄店(SUUMO経由) | ||
|---|---|---|---|
| 所在地 | 愛知県名古屋市中区錦3-14-22 ミヤキビル2G | 交通 | - |
| 営業時間 | 10:00~19:00 | 定休日 | 水曜日 |
| 免許番号 | 愛知県知事24292 | 取引態様 | 仲介 |
| 不動産会社管理番号 | 100481184426 | 当社管理番号 | 89 |
| 所属団体 | (公社)愛知県宅地建物取引業協会会員 | ||
| 公正取引協議会 | 東海不動産公正取引協議会加盟 | ||
| 取扱い物件情報 | 物件詳細へ | ||
※各種情報と現状に差異がある場合は、現状優先となります。問い合わせをすることで、より詳しい条件、情報を確認する事ができます。
提供:(株)Nタウン不動産Ntown栄店(SUUMO経由)
この物件が気になったら掲載期限まであと10日
プレサンス名駅南ブリエの空き部屋一覧
全部で63の空き部屋があります。
プレサンス名駅南ブリエに条件(家賃・エリア)が近い物件一覧
| 写真 | 家賃 管理費等 | 敷金 礼金 | 間取り 専有面積 | 築年数 | 最寄り駅 所在地 | キープ | 詳細 |
|---|---|---|---|---|---|---|---|
マンション プレシャス名駅(1K/5階) | |||||||
![]() | 7.05万円 1万円 | なし なし | 1K 26.64m2 | 築5年 | 名古屋市桜通線 太閤通駅 徒歩5分 東海道本線 名古屋駅 徒歩7分 中央本線 名古屋駅 徒歩10分 愛知県名古屋市中村区竹橋町 | 詳細を見る | |
マンション プレサンス上前津ディアシス(1K/4階) | |||||||
![]() | 5.9万円 6,180円 | なし なし | 1K 21.66m2 | 築1年 | 地下鉄鶴舞線 上前津駅 徒歩4分 地下鉄名城線 東別院駅 徒歩8分 地下鉄鶴舞線 鶴舞駅 徒歩15分 愛知県名古屋市中区上前津 | 詳細を見る | |
マンション メイクスアート名駅南Ⅳ(1LDK/3階) | |||||||
![]() | 7.9万円 8,000円 | なし なし | 1LDK 29.91m2 | 築1年 | 名古屋臨海高速鉄道 ささしまライブ駅 徒歩12分 名古屋市鶴舞線 大須観音駅 徒歩13分 名鉄名古屋本線 山王駅(愛知) 徒歩13分 愛知県名古屋市中村区名駅南3丁目 | 詳細を見る | |
マンション MAXIV大須観音(2LDK/13階) | |||||||
![]() | 12.15万円 1.2万円 | なし なし | 2LDK 43.29m2 | 築1年 | 名鉄名古屋本線 山王駅(愛知) 徒歩11分 名古屋市鶴舞線 大須観音駅 徒歩15分 東海道本線 尾頭橋駅 徒歩15分 愛知県名古屋市中区松原3丁目 | 詳細を見る | |
アパート STAGE名駅(1SK/1階) | |||||||
![]() | 5.75万円 4,000円 | なし なし | 1SK 21.51m2 | 築10年 | 地下鉄東山線 亀島駅 徒歩7分 地下鉄東山線 名古屋駅 徒歩9分 地下鉄桜通線 太閤通駅 徒歩10分 愛知県名古屋市中村区則武 | 詳細を見る | |
マンション SHOKEN RESIDENCE名古屋(ワンルーム/10階) | |||||||
![]() | 6.6万円 1万円 | なし なし | ワンルーム 25.51m2 | 築1年 | 名古屋市桜通線 太閤通駅 徒歩8分 近鉄名古屋線 黄金駅(愛知) 徒歩10分 愛知県名古屋市中村区黄金通3丁目 | 詳細を見る | |
マンション S-RESIDENCE名駅ウエスト(1K/13階) | |||||||
![]() | 7.7万円 8,500円 | なし なし | 1K 26.13m2 | 築4年 | 名古屋市東山線 亀島駅 徒歩1分 名鉄名古屋本線 栄生駅 徒歩11分 東海道本線 名古屋駅 徒歩12分 愛知県名古屋市中村区亀島1丁目 | 詳細を見る | |







