賃貸マンション
北花田庭園都市・グランアヴェニューはな・スカイタワーの賃貸物件情報(4LDK/21階)
| 家賃 | 管理費等 | 敷金 | 礼金 | 間取り | 専有面積 |
|---|---|---|---|---|---|
| 17万円 | なし | 17万円 | 34万円 | 4LDK | 98.39m2 |
入居決定でお祝い金最大100,000円
Point
定期賃貸借5年 駐車場有:月額14500円(不課税)※車種による 楽器演奏可(規約による制限有)
提供:住友不動産ステップ(株)大阪本町賃貸センター(SUUMO経由)

詳細情報 北花田庭園都市・グランアヴェニューはな・スカイタワー
物件紹介
北花田庭園都市・グランアヴェニューはな・スカイタワーは地下鉄御堂筋線北花田駅から徒歩8分にあり、駅近で通勤通学に便利なマンションです。
このお部屋は2階以上に位置しているので通行人や周囲の住人からの視線が気になりにくく、建物のエントランスはオートロックがついているので防犯性が高くなっています。
こちらは楽器相談が可能な物件。楽器演奏をお考えの方はぜひ相談してみてください。人気の南向きのお部屋。角部屋でもあるため、周囲の居住者の生活音も気になりにくい場所です。室内にはウォークインクローゼットがありますので、たくさんの荷物も効率的に収納ができます。キッチンはシステムキッチン仕様になっていますので、お料理好きの方にもぴったり。バス・トイレは別なので、のんびりお風呂タイムも楽しめるでしょう。また、雨の日でも浴室乾燥機を使えば、お洗濯も問題ありません。
建物にはエレベーターがついているので、重い荷物があっても安心。共用部には宅配ボックスが設定されているので、不在の時にも荷物を受け取ることができます。
このお部屋は2階以上に位置しているので通行人や周囲の住人からの視線が気になりにくく、建物のエントランスはオートロックがついているので防犯性が高くなっています。
こちらは楽器相談が可能な物件。楽器演奏をお考えの方はぜひ相談してみてください。人気の南向きのお部屋。角部屋でもあるため、周囲の居住者の生活音も気になりにくい場所です。室内にはウォークインクローゼットがありますので、たくさんの荷物も効率的に収納ができます。キッチンはシステムキッチン仕様になっていますので、お料理好きの方にもぴったり。バス・トイレは別なので、のんびりお風呂タイムも楽しめるでしょう。また、雨の日でも浴室乾燥機を使えば、お洗濯も問題ありません。
建物にはエレベーターがついているので、重い荷物があっても安心。共用部には宅配ボックスが設定されているので、不在の時にも荷物を受け取ることができます。
お金・契約の情報
※「-」と表示されているものは、実際は料金が発生するものもございます。詳細はお問い合わせください。
| 家賃 | 17万円 | 管理費・共益費 | なし |
|---|---|---|---|
| 敷金 | 17万円 | 礼金 | 34万円 |
| 入居決定でお祝い金最大100,000円 | |||
| 保証金 | - | 償却・敷引 | - |
| 住宅保険料 | - | 更新料 | - |
| 契約形態 | 定期借家 | 契約期間 | 5年 |
| 入居・引渡期間 | - | 現況 | - |
| 入居可能条件 | 楽器相談 | ||
| 契約備考 | 保証会社利用必須(エルズサポート株式会社)/初回保証委託料:月額賃料等の40%、月額保証委託料1000円(口座振替事務手数料250円(税込)含む) 成約時に仲介手数料(税込)を申し受けます ペット飼育・事務所利用・喫煙不可 建物構造:RC・S造 4LDK 定期借家5年 損保【1.23万円1年】 バストイレ別、バルコニー、ガスコンロ対応、シャワー付洗面台、浴室乾燥機、オートロック、室内洗濯置、システムキッチン、南向き、角住戸、温水洗浄便座、エレベーター、洗面所独立、宅配ボックス、3口以上コンロ、分譲賃貸、ウォークインクロゼット、LDK15畳以上、眺望良好、楽器相談、3面バルコニー、駅徒歩10分以内、専有面積25坪以上、都市ガス、IT重説対応物件 入居日:'26年4月中旬 | ||
部屋の情報
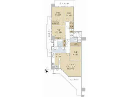
| 間取り | 4LDK | 専有面積 | 98.39m2 |
|---|---|---|---|
| 所在階 / 向き | 21階 / 南 | バルコニー面積 | 33m2 |
| 水道 / ガス | - | ||
| 設備 | バス・トイレ別、2階以上、オートロック、宅配ボックス、浴室乾燥機、ウォークインクローゼット、システムキッチン、エレベーター、温水洗浄便座、南向き、角部屋、バルコニー、洗髪洗面化粧台、2口コンロ、コンロ:ガス、洗濯機:室内 | ||
| 当社物件ID | 101045145 | ||
建物の情報
| 建物名 | 北花田庭園都市・グランアヴェニューはな・スカイタワー | ||
|---|---|---|---|
| 所在地 | 大阪府堺市北区東浅香山町 | ||
| 交通 | 地下鉄御堂筋線 北花田駅 徒歩8分 | ||
| 階数 | 地下1地上26階建 | 総戸数 | 122戸 |
| 築年月 | 2003年10月 / 築23年 | エレベーター | あり |
| 駐車場 | 空有 14500円 | バイク置き場 | - |
| 駐輪場 | - | 管理人/管理会社 | - |
| 建物種別 | マンション | 建物構造 | RC(鉄筋コンクリート) |
この部屋の取扱い不動産会社
| 会社名 | 住友不動産ステップ(株)大阪本町賃貸センター(SUUMO経由) | ||
|---|---|---|---|
| 所在地 | 大阪府大阪市中央区南本町1-8-14 堺筋本町ビル1階 | 交通 | - |
| 営業時間 | 10:00~18:00 | 定休日 | - |
| 免許番号 | 国土交通大臣2077 | 取引態様 | 仲介 |
| 不動産会社管理番号 | 100492296400 | 当社管理番号 | 89 |
| 所属団体 | (一社)不動産流通経営協会会員 | ||
| 公正取引協議会 | (公社)首都圏不動産公正取引協議会加盟 | ||
| 取扱い物件情報 | 物件詳細へ | ||
※各種情報と現状に差異がある場合は、現状優先となります。問い合わせをすることで、より詳しい条件、情報を確認する事ができます。
提供:住友不動産ステップ(株)大阪本町賃貸センター(SUUMO経由)
この物件が気になったら掲載期限まであと11日
北花田庭園都市・グランアヴェニューはな・スカイタワーに条件(家賃・エリア)が近い物件一覧
| 写真 | 家賃 管理費等 | 敷金 礼金 | 間取り 専有面積 | 築年数 | 最寄り駅 所在地 | キープ | 詳細 |
|---|---|---|---|---|---|---|---|
マンション リビオメゾン新大阪(2LDK/8階) | |||||||
| 15.1万円 1.2万円 | なし なし | 2LDK 41.2m2 | 築2年 | 大阪市御堂筋線 新大阪駅 徒歩8分 東海道本線 東淀川駅 徒歩8分 大阪市御堂筋線 東三国駅 徒歩13分 大阪府大阪市淀川区宮原1丁目16-31 | 詳細を見る | ||
マンション エスリードレジデンス ザ・グラン 梅田イースト(1DK/6階) | |||||||
| 10.25万円 1.5万円 | なし なし | 1DK 27.21m2 | 築1年 | 大阪市堺筋線 天神橋筋六丁目駅 徒歩3分 阪急電鉄千里線 天神橋筋六丁目駅 徒歩3分 大阪市谷町線 天神橋筋六丁目駅 徒歩3分 大阪府大阪市北区浮田1丁目4-17 | 詳細を見る | ||
マンション CREST TAPP新大阪(1DK/8階) | |||||||
| 10.65万円 1万円 | なし なし | 1DK 32.52m2 | 築2年 | 阪急電鉄京都線 崇禅寺駅 徒歩6分 阪急電鉄千里線 柴島駅 徒歩9分 阪急電鉄京都線 南方駅(大阪) 徒歩9分 大阪府大阪市東淀川区東中島2丁目6-8 | 詳細を見る | ||
マンション アーバネックス梅田中崎町Ⅱ(1LDK/8階) | |||||||
| 13万円 1.3万円 | なし 13万円 | 1LDK 32.85m2 | 築2年 | 大阪市谷町線 中崎町駅 徒歩3分 大阪市堺筋線 扇町駅(大阪) 徒歩9分 大阪市谷町線 東梅田駅 徒歩10分 大阪府大阪市北区堂山町14-24 | 詳細を見る | ||
アパート パサログランデ羽衣(2LDK/1階) | |||||||
![]() | 13.4万円 8,000円 | なし 25万円 | 2LDK 65m2 | 築1年 | 南海電鉄南海本線 羽衣駅 徒歩2分 阪和線 東羽衣駅 徒歩4分 南海電鉄南海本線 浜寺公園駅 徒歩11分 大阪府高石市 | 詳細を見る | |
マンション サンシャイン淡路(2LDK/6階) | |||||||
![]() | 11万円 1万円 | 11万円 33万円 | 2LDK 54.9m2 | 築27年 | 阪急電鉄京都線 淡路駅 徒歩2分 おおさか東線 JR淡路駅 徒歩8分 阪急電鉄千里線 下新庄駅 徒歩14分 大阪府大阪市東淀川区淡路4丁目 | 詳細を見る | |
マンション グレンパーク梅田北(1LDK/7階) | |||||||
| 16.8万円 1万円 | 16.8万円 16.8万円 | 1LDK 56.41m2 | 築19年 | 大阪市谷町線 中崎町駅 徒歩4分 大阪市谷町線 天神橋筋六丁目駅 徒歩9分 東海道本線 大阪駅 徒歩16分 大阪府大阪市北区中崎3丁目4-22 | 詳細を見る | ||
マンション アプリーレ中之島(1LDK/13階) | |||||||
| 13.2万円 9,000円 | なし 14.1万円 | 1LDK 34.36m2 | 築6年 | 京阪電鉄中之島線 中之島駅 徒歩4分 京阪電鉄中之島線 渡辺橋駅 徒歩6分 大阪市四つ橋線 肥後橋駅 徒歩10分 大阪府大阪市北区中之島4丁目2-39 | 詳細を見る | ||
堺市北区の町名から探す
堺市北区の部屋を間取りから探す
堺市北区の駅から探す
堺市北区と隣接している市区町村から探す
- 堺市北区(1,932)
- 大阪市都島区(1,699)
- 大阪市福島区(2,369)
- 大阪市此花区(380)
- 大阪市西区(4,914)
- 大阪市港区(1,311)
- 大阪市大正区(577)
- 大阪市天王寺区(1,616)
- 大阪市浪速区(3,683)
- 大阪市西淀川区(1,853)
- 大阪市東淀川区(4,479)
- 大阪市東成区(2,361)
- 大阪市生野区(1,702)
- 大阪市旭区(2,170)
- 大阪市城東区(2,259)
- 大阪市阿倍野区(1,324)
- 大阪市住吉区(2,201)
- 大阪市東住吉区(1,877)
- 大阪市西成区(658)
- 大阪市淀川区(4,751)
- 大阪市鶴見区(1,022)
- 大阪市住之江区(993)
- 大阪市平野区(1,691)
- 大阪市北区(5,321)
- 大阪市中央区(5,772)
- 富田林市(1,136)
- 河内長野市(677)
- 松原市(949)
- 和泉市(1,009)
- 羽曳野市(1,183)
- 高石市(836)
- 大阪狭山市(839)



