賃貸マンション
AILE岡場IIIの賃貸物件情報(1K/3階)
| 家賃 | 管理費等 | 敷金 | 礼金 | 間取り | 専有面積 |
|---|---|---|---|---|---|
| 5.9万円 | 5,000円 | なし | 5.9万円 | 1K | 23.1m2 |
入居決定でお祝い金最大100,000円
Point
スタッフ一同、お客様のご来店をこころよりお待ちしております!
提供:ピタットハウス三宮店(株)ライブデザイン(SUUMO経由)

詳細情報 AILE岡場III
物件紹介
AILE岡場IIIは神戸電鉄三田線田尾寺駅から徒歩10分にあり、駅近で通勤通学に便利なマンションです。
このお部屋は2階以上に位置しているので、通行人や周囲の住人からの視線が気になりにくく、防犯面でも安心。建物のエントランスはオートロックがついており、インターホンにはTVモニタもついているため、相手の顔を確認してから来客対応することができます。
おしゃれなデザイナーズ物件!人気の角部屋で周囲の居住者の生活音も気になりにくく、また、フローリングのお部屋なのでお掃除もラクラク。キッチンはシステムキッチン仕様になっていますので、お料理好きの方にもぴったり。バス・トイレは別なので、のんびりお風呂タイムも楽しめるでしょう。また、雨の日でも浴室乾燥機を使えば、お洗濯も問題ありません。
通信設備面では、インターネットが無料で使えるので、月々の出費を抑えられるのも魅力です(別途工事等が必要な場合あり)。
共用部には宅配ボックスが設定されているので、不在の時にも荷物を受け取ることができます。また、ペット飼育の相談ができますので、あなたの大切な家族の一員も快適に暮らせるか、ぜひ確認してみてください。
このお部屋は2階以上に位置しているので、通行人や周囲の住人からの視線が気になりにくく、防犯面でも安心。建物のエントランスはオートロックがついており、インターホンにはTVモニタもついているため、相手の顔を確認してから来客対応することができます。
おしゃれなデザイナーズ物件!人気の角部屋で周囲の居住者の生活音も気になりにくく、また、フローリングのお部屋なのでお掃除もラクラク。キッチンはシステムキッチン仕様になっていますので、お料理好きの方にもぴったり。バス・トイレは別なので、のんびりお風呂タイムも楽しめるでしょう。また、雨の日でも浴室乾燥機を使えば、お洗濯も問題ありません。
通信設備面では、インターネットが無料で使えるので、月々の出費を抑えられるのも魅力です(別途工事等が必要な場合あり)。
共用部には宅配ボックスが設定されているので、不在の時にも荷物を受け取ることができます。また、ペット飼育の相談ができますので、あなたの大切な家族の一員も快適に暮らせるか、ぜひ確認してみてください。
お金・契約の情報
※「-」と表示されているものは、実際は料金が発生するものもございます。詳細はお問い合わせください。
| 家賃 | 5.9万円 | 管理費・共益費 | 5,000円 |
|---|---|---|---|
| 敷金 | なし | 礼金 | 5.9万円 |
| 入居決定でお祝い金最大100,000円 | |||
| 保証金 | - | 償却・敷引 | - |
| 住宅保険料 | - | 更新料 | - |
| 保証会社利用 | 必須 | 保証会社名 | - |
| 保証会社費用 | - | 保証会社備考 | 保証会社利用必 初回保証料:月家賃合計の50%または60%、年更新10000円 |
| 契約形態 | - | 契約期間 | - |
| 入居・引渡期間 | - | 現況 | - |
| 入居可能条件 | ペット相談 | ||
| 契約備考 | ペット飼育時(小型犬・猫):小型犬賃料2000円と敷金1ヶ月プラス、猫賃料3000円と敷金2か月プラス。退去時鍵交換代22000円。半年間解約不可。短期解約違約金:1年未満で月家賃合計の1か月。 合計1.65万円(内訳:あんしんかけつけサービス1.65万円) 室内清掃費用 33000円 口座振替手数料 330円() バイク置場3300円 1K ペット相談 損保【1.8万円2年】 バストイレ別、バルコニー、エアコン、クロゼット、フローリング、TVインターホン、浴室乾燥機、オートロック、室内洗濯置、シューズボックス、システムキッチン、角住戸、温水洗浄便座、脱衣所、洗面所独立、洗面化粧台、2口コンロ、宅配ボックス、最上階、ペット相談、IHクッキングヒーター、ネット使用料不要、24時間換気システム、都市ガス、IT重説対応物件、初期費用カード決済可 入居日:'26年1月中旬 | ||
部屋の情報
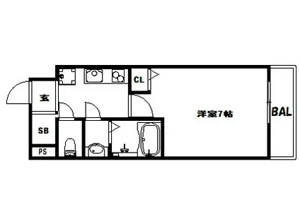
| 間取り | 1K | 専有面積 | 23.1m2 |
|---|---|---|---|
| 所在階 / 向き | 3階 / 東 | バルコニー面積 | - |
| 水道 / ガス | - | ||
| 設備 | バス・トイレ別、2階以上、オートロック、テレビドアホン、宅配ボックス、浴室乾燥機、インターネット対応、システムキッチン、エアコン、温水洗浄便座、角部屋、バルコニー、フローリング、洗髪洗面化粧台、2口コンロ、コンロ:IH、インターネット使用料無料、洗濯機:室内 | ||
| 当社物件ID | 159888457 | ||
建物の情報
| 建物名 | AILE岡場III | ||
|---|---|---|---|
| 所在地 | 兵庫県神戸市北区有野中町 | ||
| 交通 | 神戸電鉄三田線 田尾寺駅 徒歩10分 神戸電鉄三田線 岡場駅 徒歩14分 | ||
| 階数 | 3階建 | 総戸数 | 24戸 |
| 築年月 | 2026年01月 / 新築 | エレベーター | - |
| 駐車場 | 空有 16500円 | バイク置き場 | - |
| 駐輪場 | - | 管理人/管理会社 | - |
| 周辺環境 | その他 ikari(いかり) 有野店(スーパー)まで453m その他 ローソン 神戸有野中町三丁目店(コンビニ)まで154m その他 宮脇書店 神戸北店(その他)まで327m その他 有馬警察署(警察署・交番)まで563m その他 甲北病院(病院)まで694m その他 ホームセンターコーナン 藤原台(住まい館)2号館店(ホームセンター)まで788m | ||
| 建物種別 | マンション | 建物構造 | 鉄骨造 |
この部屋の取扱い不動産会社
| 会社名 | いい部屋ネット大東建託リーシング(株)福知山店(SUUMO経由) | ||
|---|---|---|---|
| 所在地 | 京都府福知山市篠尾新町1-77-1 橋工ビル3 1階 | 交通 | - |
| 営業時間 | 10:00~12:30 13:30~18:00 | 定休日 | 火曜日・水曜日 12/11 |
| 免許番号 | 国土交通大臣9120 | 取引態様 | 仲介 |
| 不動産会社管理番号 | 100474567275 | 当社管理番号 | 89 |
| 所属団体 | (公財)日本賃貸住宅管理協会会員 | ||
| 公正取引協議会 | (公社)首都圏不動産公正取引協議会加盟 | ||
| 取扱い物件情報 | 物件詳細へ | ||
※各種情報と現状に差異がある場合は、現状優先となります。問い合わせをすることで、より詳しい条件、情報を確認する事ができます。
提供:いい部屋ネット大東建託リーシング(株)福知山店(SUUMO経由)
この物件が気になったら掲載期限まであと10日
AILE岡場IIIの空き部屋一覧
全部で21の空き部屋があります。
AILE岡場IIIに条件(家賃・エリア)が近い物件一覧
| 写真 | 家賃 管理費等 | 敷金 礼金 | 間取り 専有面積 | 築年数 | 最寄り駅 所在地 | キープ | 詳細 |
|---|---|---|---|---|---|---|---|
アパート ヒカルサ稲美天満Ⅱ(2LDK/1階) | |||||||
![]() | 8.35万円 3,900円 | なし 8.35万円 | 2LDK 56.48m2 | 新築 | 兵庫県加古郡稲美町六分一 | 詳細を見る | |
アパート プラティークレーブⅣ(1LDK/2階) | |||||||
![]() | 5.9万円 2,200円 | なし 5.9万円 | 1LDK 47.7m2 | 築22年 | 神戸電鉄粟生線 大村駅(兵庫) 徒歩11分 兵庫県三木市大村 | 詳細を見る | |
マンション エビスマンション(2DK/2階) | |||||||
![]() | 5.8万円 なし | 5.8万円 5.8万円 | 2DK 43.99m2 | 築50年 | 神戸電鉄粟生線 恵比須駅 徒歩5分 神戸電鉄粟生線 三木上の丸駅 徒歩8分 神戸電鉄粟生線 三木駅(神戸電鉄) 徒歩16分 兵庫県三木市大塚2 | 詳細を見る | |
アパート サニーコート加佐 A棟(2LDK/2階) | |||||||
![]() | 8.6万円 5,000円 | 2万円 13万円 | 2LDK 64.9m2 | 築11年 | 神戸電鉄粟生線 三木上の丸駅 徒歩11分 神戸電鉄粟生線 三木駅(神戸電鉄) 徒歩13分 神戸電鉄粟生線 恵比須駅 徒歩19分 兵庫県三木市加佐 | 詳細を見る | |
マンション 兵庫県神戸市北区 築48年(3K/4階) | |||||||
![]() | 4.28万円 5,200円 | 8.56万円 なし | 3K 47m2 | 築48年 | 兵庫県神戸市北区ひよどり台1丁目 | 詳細を見る | |
アパート ラフィーネ緑が丘(1K/2階) | |||||||
![]() | 4.8万円 4,000円 | なし なし | 1K 29m2 | 築18年 | 神戸電鉄粟生線 緑が丘駅(兵庫) 徒歩13分 神戸電鉄粟生線 広野ゴルフ場前駅 徒歩20分 神戸電鉄粟生線 押部谷駅 徒歩22分 兵庫県三木市緑が丘町東 | 詳細を見る | |
マンション 神戸電鉄粟生線 西鈴蘭台駅 徒歩8分 築56年(3DK/4階) | |||||||
![]() | 4.82万円 3,500円 | 9.64万円 なし | 3DK 52m2 | 築56年 | 神戸電鉄粟生線 西鈴蘭台駅 徒歩8分 神戸電鉄有馬線 鈴蘭台駅 徒歩21分 兵庫県神戸市北区南五葉2丁目 | 詳細を見る | |
アパート ヒカルサ稲美天満Ⅰ(1LDK/1階) | |||||||
![]() | 7.55万円 3,900円 | なし 7.55万円 | 1LDK 44.7m2 | 新築 | 兵庫県加古郡稲美町六分一 | 詳細を見る | |








