賃貸マンション
プレサンス栄ブリオの賃貸物件情報(1K/5階)
| 家賃 | 管理費等 | 敷金 | 礼金 | 間取り | 専有面積 |
|---|---|---|---|---|---|
| 5.65万円 | 9,360円 | なし | 6.6万円 | 1K | 23.2m2 |
入居決定でお祝い金最大100,000円
- 保証金
- -
- 償却・敷引
- -
- 築年数
- 築12年
- 所在階
- 5階
- 向き
- -
Point
名古屋で一人暮らし、同棲などを検討中のお客様に納得のいくお部屋探しをサポートします♪是非お気軽にご相談ください!!
提供:(株)Nexsum(SUUMO経由)

詳細情報 プレサンス栄ブリオ
物件紹介
プレサンス栄ブリオは地下鉄名城線矢場町駅から徒歩6分にあり、駅近で通勤通学に便利なマンションです。
このお部屋は2階以上に位置しているので、通行人や周囲の住人からの視線が気になりにくく、防犯面でも安心。建物のエントランスはオートロックがついており、インターホンにはTVモニタもついているため、相手の顔を確認してから来客対応することができます。
おしゃれなデザイナーズ物件!フローリングのお部屋なのでお掃除もラクラク。キッチンはシステムキッチン仕様になっていますので、お料理好きの方にもぴったり。バス・トイレは別なので、のんびりお風呂タイムも楽しめるでしょう。また、雨の日でも浴室乾燥機を使えば、お洗濯も問題ありません。
通信設備面では、インターネットが無料で使えるので、月々の出費を抑えられるのも魅力です。また、BSアンテナもありますので、おうち時間も充実するでしょう(別途工事、BSの契約料等が必要な場合あり)。
建物にはエレベーターがついているので、重い荷物があっても安心。共用部には宅配ボックスが設定されているので、不在の時にも荷物を受け取ることができます。
このお部屋は2階以上に位置しているので、通行人や周囲の住人からの視線が気になりにくく、防犯面でも安心。建物のエントランスはオートロックがついており、インターホンにはTVモニタもついているため、相手の顔を確認してから来客対応することができます。
おしゃれなデザイナーズ物件!フローリングのお部屋なのでお掃除もラクラク。キッチンはシステムキッチン仕様になっていますので、お料理好きの方にもぴったり。バス・トイレは別なので、のんびりお風呂タイムも楽しめるでしょう。また、雨の日でも浴室乾燥機を使えば、お洗濯も問題ありません。
通信設備面では、インターネットが無料で使えるので、月々の出費を抑えられるのも魅力です。また、BSアンテナもありますので、おうち時間も充実するでしょう(別途工事、BSの契約料等が必要な場合あり)。
建物にはエレベーターがついているので、重い荷物があっても安心。共用部には宅配ボックスが設定されているので、不在の時にも荷物を受け取ることができます。
お金・契約の情報
※「-」と表示されているものは、実際は料金が発生するものもございます。詳細はお問い合わせください。
| 家賃 | 5.65万円 | 管理費・共益費 | 9,360円 |
|---|---|---|---|
| 敷金 | なし | 礼金 | 6.6万円 |
| 入居決定でお祝い金最大100,000円 | |||
| 保証金 | - | 償却・敷引 | - |
| 住宅保険料 | - | 更新料 | - |
| 保証会社利用 | 必須 | 保証会社名 | 日本セーフティー |
| 保証会社費用 | - | 保証会社備考 | 日本セーフティー利用必 初回50% 月1.5% |
| 契約形態 | - | 契約期間 | - |
| 入居・引渡期間 | 即時 | 現況 | - |
| 契約備考 | 合計2.97万円(内訳:鍵交換代2.97万円) 1K 普通借家1年 損保【2万円1年】 バストイレ別、バルコニー、エアコン、ガスコンロ対応、クロゼット、フローリング、TVインターホン、浴室乾燥機、オートロック、室内洗濯置、シューズボックス、システムキッチン、温水洗浄便座、脱衣所、エレベーター、洗面所独立、洗面化粧台、2口コンロ、宅配ボックス、即入居可、敷金不要、防犯カメラ、照明付、全居室洋室、全居室フローリング、デザイナーズ、2沿線利用可、ネット使用料不要、耐火構造、耐震構造、2駅利用可、3駅以上利用可、駅徒歩10分以内、敷地内ごみ置き場、都市ガス、BS、年内入居可、年度内入居可 | ||
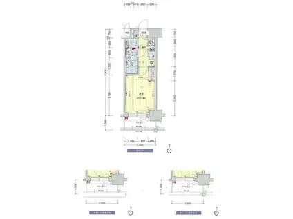
部屋の情報
| 間取り | 1K | 専有面積 | 23.2m2 |
|---|---|---|---|
| 所在階 / 向き | 5階 / - | バルコニー面積 | - |
| 水道 / ガス | - | ||
| 設備 | バス・トイレ別、2階以上、オートロック、テレビドアホン、宅配ボックス、浴室乾燥機、インターネット対応、システムキッチン、エアコン、エレベーター、温水洗浄便座、バルコニー、フローリング、洗髪洗面化粧台、2口コンロ、コンロ:ガス、デザイナーズ、BSアンテナ、インターネット使用料無料、洗濯機:室内 | ||
| 当社物件ID | 15606978 | ||
建物の情報
| 建物名 | プレサンス栄ブリオ | ||
|---|---|---|---|
| 所在地 | 愛知県名古屋市中区栄 | ||
| 交通 | 地下鉄名城線 矢場町駅 徒歩6分 地下鉄東山線 栄駅(名古屋) 徒歩9分 地下鉄名城線 栄駅(名古屋) 徒歩9分 | ||
| 階数 | 10階建 | 総戸数 | - |
| 築年月 | 2015年02月 / 築12年 | エレベーター | あり |
| 駐車場 | なし | バイク置き場 | - |
| 駐輪場 | - | 管理人/管理会社 | - |
| 周辺環境 | その他 栄エンゼルクリニック(病院)まで83m その他 ファミリーマート 栄瓦通店(コンビニ)まで220m その他 セブンイレブン 名古屋新栄1瓦町店(コンビニ)まで281m その他 ローソン 中区瓦町店(コンビニ)まで288m その他 スギドラッグ 伏見西店(ドラッグストア)まで339m その他 スシロー 名古屋新栄店(飲食店)まで406m | ||
| 建物種別 | マンション | 建物構造 | RC(鉄筋コンクリート) |
この部屋の取扱い不動産会社
| 会社名 | (株)Nexsum(SUUMO経由) | ||
|---|---|---|---|
| 所在地 | 愛知県名古屋市東区東桜1-9-29 オアシス栄ビル8B | 交通 | - |
| 営業時間 | 9:00-18:00 | 定休日 | 年末年始 |
| 免許番号 | 愛知県知事25784 | 取引態様 | 仲介 |
| 不動産会社管理番号 | 100429555422 | 当社管理番号 | 89 |
| 所属団体 | (公社)愛知県宅地建物取引業協会会員 | ||
| 公正取引協議会 | 東海不動産公正取引協議会加盟 | ||
| 取扱い物件情報 | 物件詳細へ | ||
※各種情報と現状に差異がある場合は、現状優先となります。問い合わせをすることで、より詳しい条件、情報を確認する事ができます。
提供:(株)Nexsum(SUUMO経由)
この物件が気になったら掲載期限まであと10日
プレサンス栄ブリオに条件(家賃・エリア)が近い物件一覧
| 写真 | 家賃 管理費等 | 敷金 礼金 | 間取り 専有面積 | 築年数 | 最寄り駅 所在地 | キープ | 詳細 |
|---|---|---|---|---|---|---|---|
マンション 新日本ビル(2DK/6階) | |||||||
| 4.3万円 8,500円 | なし なし | 2DK 41.25m2 | 築49年 | 名古屋市鶴舞線 大須観音駅 徒歩2分 愛知県名古屋市中区大須二丁目27番40号 | 詳細を見る | ||
マンション エステムコート名古屋上前津(1DK/5階) | |||||||
![]() | 7.55万円 5,340円 | なし なし | 1DK 28m2 | 築1年 | 地下鉄名城線 東別院駅 徒歩5分 地下鉄鶴舞線 上前津駅 徒歩6分 地下鉄名城線 上前津駅 徒歩9分 愛知県名古屋市中区富士見町 | 詳細を見る | |
マンション エスリード新栄マルス(1K/14階) | |||||||
![]() | 6.18万円 8,000円 | なし なし | 1K 25.31m2 | 築5年 | 中央本線 鶴舞駅 徒歩8分 愛知県名古屋市中区新栄2丁目 | 詳細を見る | |
マンション プレサンス新栄アーバンフロー(1K/10階) | |||||||
![]() | 6.217万円 6,830円 | なし 6.9万円 | 1K 22.04m2 | 築4年 | 名古屋市東山線 新栄町駅(愛知) 徒歩5分 名古屋市桜通線 高岳駅 徒歩16分 中央本線 千種駅 徒歩18分 愛知県名古屋市中区新栄2丁目 | 詳細を見る | |
マンション プレサンス大須観音フィエスタ(1K/5階) | |||||||
![]() | 5.973万円 7,270円 | なし 6.7万円 | 1K 22.04m2 | 築3年 | 名古屋市鶴舞線 大須観音駅 徒歩4分 名古屋市東山線 伏見駅(愛知) 徒歩15分 名古屋市鶴舞線 上前津駅 徒歩18分 愛知県名古屋市中区大須1丁目 | 詳細を見る | |
マンション メゾンドエトワール(1K/3階) | |||||||
![]() | 4.2万円 6,000円 | なし なし | 1K 21m2 | 築38年 | 名古屋市名城線 矢場町駅 徒歩8分 愛知県名古屋市中区栄3丁目 | 詳細を見る | |
アパート ESPRESSO 清須(ワンルーム/1階) | |||||||
![]() | 6.5万円 4,000円 | 6.5万円 6.5万円 | ワンルーム 34.3m2 | 築8年 | JR東海交通城北線 尾張星の宮駅 徒歩3分 東海道本線 枇杷島駅 徒歩20分 名鉄名古屋本線 丸ノ内駅 徒歩23分 愛知県清須市寺野美鈴 | 詳細を見る | |



/105x80-f1-q70-wp1)


/105x80-f1-q70-wp1)
