賃貸マンション
エスティメゾン中野の賃貸物件情報(1LDK/5階)
| 家賃 | 管理費等 | 敷金 | 礼金 | 間取り | 専有面積 |
|---|---|---|---|---|---|
| 19.3万円 | 1.2万円 | 19.3万円 | 19.3万円 | 1LDK | 37.74m2 |
入居決定でお祝い金最大100,000円
Point
共用部には宅配ボックス・ゴミ出し24時間OKなどが揃っており、とても充実しています。
提供:(株)アブレイズ・コーポレーション東京駅本店(SUUMO経由)

詳細情報 エスティメゾン中野
物件紹介
エスティメゾン中野はJR総武線中野駅から徒歩6分にあり、駅近で通勤通学に便利なマンションです。
このお部屋は2階以上に位置しているので、通行人や周囲の住人からの視線が気になりにくく、防犯面でも安心。建物のエントランスはオートロックがついており、インターホンにはTVモニタもついているため、相手の顔を確認してから来客対応することができます。
おしゃれなデザイナーズ物件!人気の角部屋で周囲の居住者の生活音も気になりにくく、また、フローリングのお部屋なのでお掃除もラクラク。キッチンはシステムキッチン仕様になっていますので、お料理好きの方にもぴったり。バス・トイレは別なので、のんびりお風呂タイムも楽しめるでしょう。また、雨の日でも浴室乾燥機を使えば、お洗濯も問題ありません。
通信設備面では、インターネット接続が可能です。また、BSアンテナ・CSアンテナもありますので、おうち時間も充実するでしょう(別途工事、契約料が必要な場合あり)。
建物にはエレベーターがついているので、重い荷物があっても安心。共用部には宅配ボックスが設定されているので、不在の時にも荷物を受け取ることができます。
このお部屋は2階以上に位置しているので、通行人や周囲の住人からの視線が気になりにくく、防犯面でも安心。建物のエントランスはオートロックがついており、インターホンにはTVモニタもついているため、相手の顔を確認してから来客対応することができます。
おしゃれなデザイナーズ物件!人気の角部屋で周囲の居住者の生活音も気になりにくく、また、フローリングのお部屋なのでお掃除もラクラク。キッチンはシステムキッチン仕様になっていますので、お料理好きの方にもぴったり。バス・トイレは別なので、のんびりお風呂タイムも楽しめるでしょう。また、雨の日でも浴室乾燥機を使えば、お洗濯も問題ありません。
通信設備面では、インターネット接続が可能です。また、BSアンテナ・CSアンテナもありますので、おうち時間も充実するでしょう(別途工事、契約料が必要な場合あり)。
建物にはエレベーターがついているので、重い荷物があっても安心。共用部には宅配ボックスが設定されているので、不在の時にも荷物を受け取ることができます。
お金・契約の情報
※「-」と表示されているものは、実際は料金が発生するものもございます。詳細はお問い合わせください。
| 家賃 | 19.3万円 | 管理費・共益費 | 1.2万円 |
|---|---|---|---|
| 敷金 | 19.3万円 | 礼金 | 19.3万円 |
| 入居決定でお祝い金最大100,000円 | |||
| 保証金 | - | 償却・敷引 | - |
| 住宅保険料 | 1円 | 更新料 | - |
| その他費用 | くらしのサポートサービス:1.65万円 | ||
| 保証会社利用 | 必須 | 保証会社名 | - |
| 保証会社費用 | - | 保証会社備考 | 初回保証料:賃料+管理費の20%〜、月々1% |
| 契約形態 | - | 契約期間 | 2年 |
| 入居・引渡期間 | 2026年03月下旬 | 現況 | - |
| 入居可能条件 | 2人入居可 | ||
| 契約備考 | 駐輪場:有料 鍵交換費用:33000 その他設備/条件:室内洗濯機置き場、ごみ出し24時間OK、独立洗面台、クローゼット、シューズボックス | ||
部屋の情報
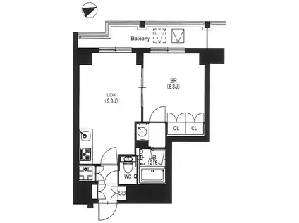
| 間取り | 1LDK | 専有面積 | 37.74m2 |
|---|---|---|---|
| 間取り詳細 | LDK(9.9帖)、洋室(6.3帖) | ||
| 所在階 / 向き | 5階 / 北西 | バルコニー面積 | - |
| 水道 / ガス | 水道【公営】、ガス【都市】 | ||
| 設備 | バス・トイレ別、オートロック、テレビドアホン、宅配ボックス、浴室乾燥機、インターネット対応、システムキッチン、エアコン、エレベーター、温水洗浄便座、角部屋、バルコニー、フローリング、2口コンロ、コンロ:ガス、CSアンテナ、給湯、タイル張り | ||
| 当社物件ID | 15517426 | ||
建物の情報
| 建物名 | エスティメゾン中野 | ||
|---|---|---|---|
| 所在地 | 東京都中野区中央5丁目 | ||
| 交通 | 中央本線 中野駅(東京) 徒歩6分 東京地下鉄丸ノ内線 新中野駅 徒歩10分 | ||
| 階数 | 10階建 | 総戸数 | - |
| 築年月 | 2009年06月 / 築17年 | エレベーター | あり |
| 駐車場 | 空有 3.4万円/月 | バイク置き場 | - |
| 駐輪場 | あり | 管理人/管理会社 | - |
| 周辺環境 | 販売店 徒歩27分(2111m) その他 ドラッグストア その他 公園 その他 銀行 その他 * | ||
| 建物種別 | マンション | 建物構造 | RC(鉄筋コンクリート) |
この部屋の取扱い不動産会社
| 会社名 | ハウスコム東東京株式会社 高田馬場店 | ||
|---|---|---|---|
| 所在地 | 東京都新宿区17-18マルシメビル1階 | 交通 | - |
| 営業時間 | 10:00~18:00 | 定休日 | 水曜定休 |
| 免許番号 | 東京都知事(1)第108283号 | 取引態様 | 仲介 |
| 不動産会社管理番号 | HC2-820229-501-0227 | 当社管理番号 | 468 |
| 所属団体 | 、 | ||
| 取扱い物件情報 | 物件詳細へ | ||
※各種情報と現状に差異がある場合は、現状優先となります。問い合わせをすることで、より詳しい条件、情報を確認する事ができます。
提供:ハウスコム東東京株式会社 高田馬場店
この物件が気になったら掲載期限まであと5日
エスティメゾン中野に条件(家賃・エリア)が近い物件一覧
| 写真 | 家賃 管理費等 | 敷金 礼金 | 間取り 専有面積 | 築年数 | 最寄り駅 所在地 | キープ | 詳細 |
|---|---|---|---|---|---|---|---|
マンション エスセナーリオ市谷薬王寺(1DK/1階) | |||||||
![]() | 20.5万円 1.5万円 | 20.5万円 なし | 1DK 48.04m2 | 築1年 | 都営大江戸線 牛込柳町駅 徒歩5分 都営新宿線 曙橋駅 徒歩8分 東京都新宿区市谷薬王寺町 | 詳細を見る | |
マンション エルファーロ明大前III(1LDK/4階) | |||||||
![]() | 15.6万円 1.5万円 | なし なし | 1LDK 30.12m2 | 築1年 | 京王線 代田橋駅 徒歩10分 東京メトロ丸ノ内線 方南町駅 徒歩13分 京王線 明大前駅 徒歩14分 東京都杉並区和泉 | 詳細を見る | |
マンション アジールコート練馬中村橋(3LDK/2階) | |||||||
![]() | 23.2万円 2万円 | なし なし | 3LDK 61.18m2 | 築1年 | 西武池袋線 中村橋駅 徒歩7分 西武新宿線 鷺ノ宮駅 徒歩19分 西武新宿線 下井草駅 徒歩25分 東京都練馬区中村 | 詳細を見る | |
アパート CLAIRE MUSASHI(2SLDK/3階) | |||||||
![]() | 18万円 なし | 18万円 18万円 | 2SLDK 64.7m2 | 築1年 | 西武新宿線 武蔵関駅 徒歩4分 西武新宿線 東伏見駅 徒歩18分 JR中央線 吉祥寺駅 徒歩39分 東京都練馬区関町北 | 詳細を見る | |
マンション ソルナクレイシア練馬(1LDK/2階) | |||||||
![]() | 12万円 1.5万円 | なし なし | 1LDK 34.78m2 | 築2年 | 西武池袋線 桜台駅(東京) 徒歩5分 西武池袋線 練馬駅 徒歩7分 西武有楽町線 新桜台駅 徒歩12分 東京都練馬区桜台 | 詳細を見る | |
マンション PONANT IKEBUKURO(1LDK/2階) | |||||||
![]() | 13.2万円 1.8万円 | なし なし | 1LDK 30.09m2 | 築8年 | 山手線 池袋駅 徒歩13分 東武鉄道東上線 北池袋駅 徒歩13分 東京都豊島区池袋4丁目 | 詳細を見る | |
マンション レジディア目白(ワンルーム/7階) | |||||||
![]() | 12.8万円 2万円 | なし なし | ワンルーム 33m2 | 築28年 | 東京メトロ副都心線 雑司が谷駅(東京メトロ) 徒歩7分 JR山手線 高田馬場駅 徒歩12分 JR山手線 目白駅 徒歩15分 東京都豊島区高田 | 詳細を見る | |
マンション SOLASIA RESIDENCE 駒込(1SLDK/1階) | |||||||
![]() | 13.5万円 7,000円 | なし なし | 1SLDK 35.66m2 | 築6年 | 東京メトロ南北線 駒込駅 徒歩4分 JR山手線 巣鴨駅 徒歩8分 東京メトロ南北線 西ケ原駅 徒歩16分 東京都豊島区駒込 | 詳細を見る | |








