賃貸マンション
CREVISTA中板橋の賃貸物件情報(1K/7階)
| 家賃 | 管理費等 | 敷金 | 礼金 | 間取り | 専有面積 |
|---|---|---|---|---|---|
| 11.3万円 | 1.1万円 | なし | 11.3万円 | 1K | 25.26m2 |
入居決定でお祝い金最大100,000円
- 保証金
- -
- 償却・敷引
- -
- 築年数
- 築10年
- 所在階
- 7階
- 向き
- 西
Point
初期費用の一部クレジットカード決済可!IT重説もできます、ご相談ください。オンライン内見相談可能!
提供:(株)タウンハウジング東京 池袋西口店(SUUMO経由)

詳細情報 CREVISTA中板橋
物件紹介
CREVISTA中板橋は東武東上線中板橋駅から徒歩3分にあり、駅近で通勤通学に便利なマンションです。
このお部屋は2階以上に位置しているので、通行人や周囲の住人からの視線が気になりにくく、防犯面でも安心。建物のエントランスはオートロックがついており、インターホンにはTVモニタもついているため、相手の顔を確認してから来客対応することができます。
おしゃれなデザイナーズ物件!フローリングのお部屋なのでお掃除もラクラク。キッチンはシステムキッチン仕様になっていますので、お料理好きの方にもぴったり。バス・トイレは別なので、のんびりお風呂タイムも楽しめるでしょう。また、雨の日でも浴室乾燥機を使えば、お洗濯も問題ありません。
通信設備面では、インターネットが無料で使えるので、月々の出費を抑えられるのも魅力です。また、BSアンテナ・CSアンテナもありますので、おうち時間も充実するでしょう(別途工事、BS・CSの契約料等が必要な場合あり)。
建物にはエレベーターがついているので、重い荷物があっても安心。共用部には宅配ボックスが設定されているので、不在の時にも荷物を受け取ることができます。また、ペット飼育の相談ができますので、あなたの大切な家族の一員も快適に暮らせるか、ぜひ確認してみてください。
このお部屋は2階以上に位置しているので、通行人や周囲の住人からの視線が気になりにくく、防犯面でも安心。建物のエントランスはオートロックがついており、インターホンにはTVモニタもついているため、相手の顔を確認してから来客対応することができます。
おしゃれなデザイナーズ物件!フローリングのお部屋なのでお掃除もラクラク。キッチンはシステムキッチン仕様になっていますので、お料理好きの方にもぴったり。バス・トイレは別なので、のんびりお風呂タイムも楽しめるでしょう。また、雨の日でも浴室乾燥機を使えば、お洗濯も問題ありません。
通信設備面では、インターネットが無料で使えるので、月々の出費を抑えられるのも魅力です。また、BSアンテナ・CSアンテナもありますので、おうち時間も充実するでしょう(別途工事、BS・CSの契約料等が必要な場合あり)。
建物にはエレベーターがついているので、重い荷物があっても安心。共用部には宅配ボックスが設定されているので、不在の時にも荷物を受け取ることができます。また、ペット飼育の相談ができますので、あなたの大切な家族の一員も快適に暮らせるか、ぜひ確認してみてください。
お金・契約の情報
※「-」と表示されているものは、実際は料金が発生するものもございます。詳細はお問い合わせください。
| 家賃 | 11.3万円 | 管理費・共益費 | 1.1万円 |
|---|---|---|---|
| 敷金 | なし | 礼金 | 11.3万円 |
| 入居決定でお祝い金最大100,000円 | |||
| 保証金 | - | 償却・敷引 | - |
| 住宅保険料 | - | 更新料 | - |
| 保証会社利用 | 必須 | 保証会社名 | - |
| 保証会社費用 | - | 保証会社備考 | 保証会社利用必 賃貸保証料:0.40ヶ月 エポスカード利用料:緊急連絡先40%詳細:緊急連絡先40% |
| 契約形態 | - | 契約期間 | - |
| 入居・引渡期間 | 即時 | 現況 | - |
| 入居可能条件 | ペット相談 | ||
| 契約備考 | 都営三田線板橋本町駅徒歩16分/豊島区・板橋区・北区でのお部屋探しはタウンハウジングにお任せください。 合計11万円(内訳:鍵交換代:44000円/室内清掃費用:55000円/書類作成代:11000円) 更新料新賃料(ヶ月):1.00ヶ月、レジデンシャルサポート:800円/月 1K 二人入居可/ペット相談 普通借家2年 損保【要】 バストイレ別、バルコニー、エアコン、ガスコンロ対応、クロゼット、フローリング、シャワー付洗面台、TVインターホン、浴室乾燥機、オートロック、室内洗濯置、シューズボックス、システムキッチン、温水洗浄便座、脱衣所、エレベーター、洗面所独立、洗面化粧台、2口コンロ、駐輪場、宅配ボックス、即入居可、BS・CS、敷金不要、防犯カメラ、ペット相談、分譲賃貸、保証人不要、二人入居相談、デザイナーズ、2沿線利用可、駅まで平坦、ネット使用料不要、ダブルロックキー、保証金不要、24時間換気システム、平坦地、電子ロック、人感照明センサー、2駅利用可、3駅以上利用可、駅徒歩5分以内、駅徒歩10分以内、24時間ゴミ出し可、敷地内ごみ置き場、セキュリティ会社加入済、都市ガス、洗面所にドア、マルチメディアコンセント、礼金1ヶ月、IT重説対応物件、初期費用カード決済可 敷金積み増し【ペット飼育の場合敷金1.5ヶ月(総額)】 | ||
部屋の情報
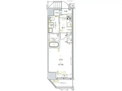
| 間取り | 1K | 専有面積 | 25.26m2 |
|---|---|---|---|
| 所在階 / 向き | 7階 / 西 | バルコニー面積 | - |
| 水道 / ガス | - | ||
| 設備 | バス・トイレ別、2階以上、オートロック、テレビドアホン、宅配ボックス、浴室乾燥機、インターネット対応、システムキッチン、エアコン、エレベーター、温水洗浄便座、バルコニー、フローリング、洗髪洗面化粧台、2口コンロ、コンロ:ガス、デザイナーズ、CSアンテナ、BSアンテナ、インターネット使用料無料、洗濯機:室内 | ||
| 当社物件ID | 20198348 | ||
建物の情報
| 建物名 | CREVISTA中板橋 | ||
|---|---|---|---|
| 所在地 | 東京都板橋区中板橋 | ||
| 交通 | 東武東上線 中板橋駅 徒歩3分 東武東上線 大山駅(東京) 徒歩12分 東武東上線 ときわ台駅(東京) 徒歩14分 | ||
| 階数 | 11階建 | 総戸数 | 39戸 |
| 築年月 | 2016年03月 / 築10年 | エレベーター | あり |
| 駐車場 | なし | バイク置き場 | - |
| 駐輪場 | あり | 管理人/管理会社 | - |
| 周辺環境 | その他 まいばすけっと中板橋駅前店(スーパー)まで161m その他 サンクス中板橋北口店(コンビニ)まで92m その他 どらっぐぱぱす中板橋店(ドラッグストア)まで245m その他 中板橋郵便局(郵便局)まで78m その他 よしや中板橋本店(スーパー)まで240m その他 セブンイレブン中板店(コンビニ)まで300m | ||
| 建物種別 | マンション | 建物構造 | RC(鉄筋コンクリート) |
この部屋の取扱い不動産会社
| 会社名 | (株)タウンハウジング東京 板橋店(SUUMO経由) | ||
|---|---|---|---|
| 所在地 | 東京都北区滝野川7-9-7 西田ビル1階 | 交通 | - |
| 営業時間 | AM10:00~PM7:00 | 定休日 | 水曜日 |
| 免許番号 | 国土交通大臣9926 | 取引態様 | 仲介 |
| 不動産会社管理番号 | 100467624057 | 当社管理番号 | 89 |
| 所属団体 | (公社)東京都宅地建物取引業協会会員 | ||
| 公正取引協議会 | (公社)首都圏不動産公正取引協議会加盟 | ||
| 取扱い物件情報 | 物件詳細へ | ||
※各種情報と現状に差異がある場合は、現状優先となります。問い合わせをすることで、より詳しい条件、情報を確認する事ができます。
提供:(株)タウンハウジング東京 板橋店(SUUMO経由)
この物件が気になったら掲載期限まであと10日
CREVISTA中板橋に条件(家賃・エリア)が近い物件一覧
| 写真 | 家賃 管理費等 | 敷金 礼金 | 間取り 専有面積 | 築年数 | 最寄り駅 所在地 | キープ | 詳細 |
|---|---|---|---|---|---|---|---|
マンション 大山いずみ(1K/3階) | |||||||
![]() | 7.8万円 なし | 7.8万円 7.8万円 | 1K 25m2 | 築38年 | 都営三田線 板橋区役所前駅 徒歩5分 東武東上線 下板橋駅 徒歩5分 JR埼京線 板橋駅 徒歩10分 東京都板橋区板橋 | 詳細を見る | |
アパート 大津ハウス(2DK/2階) | |||||||
![]() | 7.5万円 2,000円 | 7.5万円 15万円 | 2DK 43m2 | 築39年 | 西武池袋線 大泉学園駅 徒歩32分 都営大江戸線 光が丘駅 徒歩35分 東京都練馬区大泉町 | 詳細を見る | |
マンション ウィンレックス赤羽二丁目(1K/2階) | |||||||
![]() | 7.4万円 5,000円 | なし 7.4万円 | 1K 16m2 | 築9年 | 東京メトロ南北線 赤羽岩淵駅 徒歩3分 JR埼京線 赤羽駅 徒歩7分 JR京浜東北線 赤羽駅 徒歩7分 東京都北区赤羽 | 詳細を見る | |
マンション INFINA志村三丁目(ワンルーム/3階) | |||||||
![]() | 9.3万円 1.5万円 | なし なし | ワンルーム 25.89m2 | 築1年 | 都営三田線 志村三丁目駅 徒歩6分 都営三田線 蓮根駅 徒歩13分 都営三田線 志村坂上駅 徒歩15分 東京都板橋区坂下 | 詳細を見る | |
マンション プラウドフラット王子神谷(1K/2階) | |||||||
![]() | 9万円 1万円 | 9万円 9万円 | 1K 20.43m2 | 築17年 | 東京メトロ南北線 王子神谷駅 徒歩4分 東京メトロ南北線 志茂駅 徒歩12分 JR京浜東北線 東十条駅 徒歩14分 東京都北区神谷 | 詳細を見る | |
マンション サクセス西高島平(3LDK/5階) | |||||||
![]() | 16万円 8,000円 | 32万円 なし | 3LDK 60.53m2 | 築21年 | 都営三田線 西高島平駅 徒歩8分 都営三田線 新高島平駅 徒歩21分 東武東上線 成増駅 徒歩28分 東京都板橋区三園 | 詳細を見る | |
アパート プラージュ王子神谷(1K/1階) | |||||||
![]() | 8.5万円 4,000円 | 4.25万円 12.75万円 | 1K 24.75m2 | 築6年 | 東京メトロ南北線 王子神谷駅 徒歩13分 JR京浜東北線 王子駅 徒歩19分 東京都北区豊島 | 詳細を見る | |
マンション アイル グランデ赤羽(1LDK/3階) | |||||||
![]() | 13.9万円 2.5万円 | 13.9万円 13.9万円 | 1LDK 34.2m2 | 築1年 | JR京浜東北線 赤羽駅 徒歩8分 東京メトロ南北線 志茂駅 徒歩8分 JR京浜東北線 東十条駅 徒歩22分 東京都北区志茂 | 詳細を見る | |








