賃貸マンション
アスヴェル神戸ハーバーサイドの賃貸物件情報(1K/9階)
| 家賃 | 管理費等 | 敷金 | 礼金 | 間取り | 専有面積 |
|---|---|---|---|---|---|
| 5.4万円 | 1万円 | なし | なし | 1K | 24.21m2 |
入居決定でお祝い金最大100,000円
- 保証金
- -
- 償却・敷引
- -
- 築年数
- 築20年
- 所在階
- 9階
- 向き
- 北東
Point
JR神戸駅徒歩圏内でとても便利な立地です。分譲マンションなので設備充実・安心のオートロックセキュリティー☆女性の方でも安心してお住まい頂けますね!
提供:センチュリー21 (株)リライフ神戸三宮店(SUUMO経由)

詳細情報 アスヴェル神戸ハーバーサイド
物件紹介
アスヴェル神戸ハーバーサイドは神戸高速鉄道東西線高速神戸駅から徒歩7分にあり、駅近で通勤通学に便利なマンションです。
このお部屋は2階以上に位置しているので、通行人や周囲の住人からの視線が気になりにくく、防犯面でも安心。建物のエントランスはオートロックがついており、インターホンにはTVモニタもついているため、相手の顔を確認してから来客対応することができます。
おしゃれなデザイナーズ物件!また、楽器相談が可能な物件となっているので、楽器演奏をお考えの方はぜひ相談してみてください。人気の南向き・フローリングのお部屋。角部屋でもあるため、周囲の居住者の生活音も気になりにくい場所です。キッチンはシステムキッチン仕様になっていますので、お料理好きの方にもぴったり。バス・トイレは別なので、のんびりお風呂タイムも楽しめるでしょう。また、雨の日でも浴室乾燥機を使えば、お洗濯も問題ありません。
通信設備面では、インターネットが無料で使えるので、月々の出費を抑えられるのも魅力です。また、BSアンテナ・CSアンテナがありCATVにも対応しているので、おうち時間も充実するでしょう(別途工事、BS・CS・CATVの契約料等が必要な場合あり)。
建物にはエレベーターがついているので、重い荷物があっても安心。共用部には宅配ボックスが設定されているので、不在の時にも荷物を受け取ることができます。
このお部屋は2階以上に位置しているので、通行人や周囲の住人からの視線が気になりにくく、防犯面でも安心。建物のエントランスはオートロックがついており、インターホンにはTVモニタもついているため、相手の顔を確認してから来客対応することができます。
おしゃれなデザイナーズ物件!また、楽器相談が可能な物件となっているので、楽器演奏をお考えの方はぜひ相談してみてください。人気の南向き・フローリングのお部屋。角部屋でもあるため、周囲の居住者の生活音も気になりにくい場所です。キッチンはシステムキッチン仕様になっていますので、お料理好きの方にもぴったり。バス・トイレは別なので、のんびりお風呂タイムも楽しめるでしょう。また、雨の日でも浴室乾燥機を使えば、お洗濯も問題ありません。
通信設備面では、インターネットが無料で使えるので、月々の出費を抑えられるのも魅力です。また、BSアンテナ・CSアンテナがありCATVにも対応しているので、おうち時間も充実するでしょう(別途工事、BS・CS・CATVの契約料等が必要な場合あり)。
建物にはエレベーターがついているので、重い荷物があっても安心。共用部には宅配ボックスが設定されているので、不在の時にも荷物を受け取ることができます。
お金・契約の情報
※「-」と表示されているものは、実際は料金が発生するものもございます。詳細はお問い合わせください。
| 家賃 | 5.4万円 | 管理費・共益費 | 1万円 |
|---|---|---|---|
| 敷金 | なし | 礼金 | なし |
| 入居決定でお祝い金最大100,000円 | |||
| 保証金 | - | 償却・敷引 | - |
| 住宅保険料 | - | 更新料 | - |
| 契約形態 | - | 契約期間 | - |
| 入居・引渡期間 | 相談 | 現況 | - |
| 契約備考 | 合計2.5万円(内訳:鍵交換代2.5万円) 1K 普通借家2年 損保【要】 バストイレ別、バルコニー、エアコン、ガスコンロ対応、クロゼット、フローリング、シャワー付洗面台、TVインターホン、浴室乾燥機、オートロック、室内洗濯置、陽当り良好、システムキッチン、エレベーター、洗面所独立、洗面化粧台、2口コンロ、駐輪場、CATV、光ファイバー、礼金不要、閑静な住宅地、BS・CS、敷金不要、防犯カメラ、照明付、分譲賃貸、全居室洋室、振分、バイク置場、24時間緊急通報システム、ディンプルキー、CS、ネット専用回線、24時間換気システム、平坦地、耐火構造、耐震構造、3駅以上利用可、3沿線以上利用可、駅徒歩10分以内、日勤管理、全居室6畳以上、都市ガス、洗面所にドア、玄関収納、BS、敷金・礼金不要、通風良好 | ||
部屋の情報
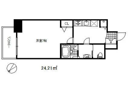
| 間取り | 1K | 専有面積 | 24.21m2 |
|---|---|---|---|
| 所在階 / 向き | 9階 / 北東 | バルコニー面積 | 3m2 |
| 水道 / ガス | - | ||
| 設備 | バス・トイレ別、2階以上、オートロック、テレビドアホン、浴室乾燥機、インターネット対応、システムキッチン、エアコン、エレベーター、バルコニー、フローリング、洗髪洗面化粧台、2口コンロ、コンロ:ガス、CATV、CSアンテナ、BSアンテナ、洗濯機:室内 | ||
| 当社物件ID | 3615264 | ||
建物の情報
| 建物名 | アスヴェル神戸ハーバーサイド | ||
|---|---|---|---|
| 所在地 | 兵庫県神戸市兵庫区湊町 | ||
| 交通 | 神戸高速鉄道東西線 高速神戸駅 徒歩7分 JR東海道本線 神戸駅(兵庫) 徒歩10分 | ||
| 階数 | 10階建 | 総戸数 | 45戸 |
| 築年月 | 2006年09月 / 築20年 | エレベーター | あり |
| 駐車場 | 近隣 50m20000円 | バイク置き場 | あり |
| 駐輪場 | あり | 管理人/管理会社 | - |
| 周辺環境 | その他 ライフ神戸駅前店(スーパー)まで515m その他 トーホー・ストア湊川公園店(スーパー)まで693m その他 ファミリーマート神戸湊町店(コンビニ)まで209m その他 ローソン LS 新開地駅前(コンビニ)まで459m その他 洋服の青山神戸駅前本店(ショッピングセンター)まで646m その他 小原病院(病院)まで1052m | ||
| 建物種別 | マンション | 建物構造 | RC(鉄筋コンクリート) |
この部屋の取扱い不動産会社
| 会社名 | (株)abir神戸店(SUUMO経由) | ||
|---|---|---|---|
| 所在地 | 兵庫県神戸市中央区多聞通3-2-9 甲南スカイビル105 | 交通 | - |
| 営業時間 | 10:00~19:00 | 定休日 | なし |
| 免許番号 | 兵庫県知事11706 | 取引態様 | 仲介 |
| 不動産会社管理番号 | 100496189748 | 当社管理番号 | 89 |
| 所属団体 | (公社)全日本不動産協会兵庫県本部会員 | ||
| 公正取引協議会 | (公社)近畿地区不動産公正取引協議会加盟 | ||
| 取扱い物件情報 | 物件詳細へ | ||
※各種情報と現状に差異がある場合は、現状優先となります。問い合わせをすることで、より詳しい条件、情報を確認する事ができます。
提供:(株)abir神戸店(SUUMO経由)
この物件が気になったら掲載期限まであと10日
アスヴェル神戸ハーバーサイドに条件(家賃・エリア)が近い物件一覧
| 写真 | 家賃 管理費等 | 敷金 礼金 | 間取り 専有面積 | 築年数 | 最寄り駅 所在地 | キープ | 詳細 |
|---|---|---|---|---|---|---|---|
アパート フジパレス西宮春風公園Ⅱ番館(1LDK/2階) | |||||||
![]() | 8.2万円 4,800円 | なし 8万円 | 1LDK 35.46m2 | 築2年 | 阪神本線 久寿川駅 徒歩8分 阪急今津線 今津駅(阪急) 徒歩12分 阪神本線 甲子園駅 徒歩17分 兵庫県西宮市今津野田町 | 詳細を見る | |
マンション グラントゥール西宮北口(1DK/1階) | |||||||
![]() | 7.5万円 6,000円 | なし 15万円 | 1DK 31.82m2 | 築43年 | 阪急今津線 門戸厄神駅 徒歩16分 阪急神戸線 西宮北口駅 徒歩22分 JR東海道本線 甲子園口駅 徒歩26分 兵庫県西宮市上之町 | 詳細を見る | |
アパート ビビエンタ甲東園(2DK/1階) | |||||||
![]() | 6.6万円 3,000円 | なし なし | 2DK 39.74m2 | 築31年 | 阪急電鉄今津線 甲東園駅 徒歩9分 阪急電鉄今津線 門戸厄神駅 徒歩11分 兵庫県西宮市上甲東園6丁目 | 詳細を見る | |
マンション N-CUBE TARUYAMACHI(ワンルーム/6階) | |||||||
![]() | 4.5万円 1万円 | なし なし | ワンルーム 20m2 | 築40年 | 山陽本線 明石駅 徒歩5分 山陽電気鉄道本線 西新町駅 徒歩9分 山陽電気鉄道本線 人丸前駅 徒歩18分 兵庫県明石市樽屋町 | 詳細を見る | |
アパート ヒカルサ稲美天満Ⅰ(1LDK/1階) | |||||||
![]() | 7.35万円 3,900円 | なし 7.35万円 | 1LDK 44.7m2 | 築1年 | 兵庫県加古郡稲美町六分一 | 詳細を見る | |
マンション コリーヌ(ワンルーム/3階) | |||||||
![]() | 5.2万円 5,000円 | なし 8万円 | ワンルーム 28.98m2 | 築22年 | 神戸電鉄粟生線 緑が丘駅(兵庫) 徒歩3分 神戸電鉄粟生線 広野ゴルフ場前駅 徒歩10分 神戸電鉄粟生線 押部谷駅 徒歩24分 兵庫県三木市緑が丘町本町 | 詳細を見る | |
マンション グロース西宮北口(ワンルーム/2階) | |||||||
![]() | 5.1万円 4,000円 | なし なし | ワンルーム 20.25m2 | 築19年 | 阪急神戸線 西宮北口駅 徒歩19分 阪急今津線 門戸厄神駅 徒歩22分 JR東海道本線 甲子園口駅 徒歩27分 兵庫県西宮市大森町 | 詳細を見る | |
マンション 阪神電鉄本線 元町駅(阪神) 徒歩4分 築30年(1K/2階) | |||||||
![]() | 5.1万円 5,000円 | なし なし | 1K 25.4m2 | 築30年 | 阪神電鉄本線 元町駅(阪神) 徒歩4分 山陽本線 神戸駅(兵庫) 徒歩7分 神戸高速鉄道東西線 花隈駅 徒歩10分 兵庫県神戸市中央区元町通6丁目 | 詳細を見る | |








