賃貸マンション
ライオンズマンション相模大野第6の賃貸物件情報(1K/8階)
| 家賃 | 管理費等 | 敷金 | 礼金 | 間取り | 専有面積 |
|---|---|---|---|---|---|
| 4.5万円 | 5,000円 | なし | なし | 1K | 18.15m2 |
入居決定でお祝い金最大100,000円
- 保証金
- -
- 償却・敷引
- -
- 築年数
- 築36年
- 所在階
- 8階
- 向き
- 南東
Point
オンラインにて申込みから契約までのお手続きも可能です。入居日が合わずにお悩みの方、契約金のお見積もりや室内写真のご要望などお気軽にお問い合わせください。初期費用の分割払いも承ります。
提供:エールーム 町田店(株)ライフアシスト(SUUMO経由)

詳細情報 ライオンズマンション相模大野第6
物件紹介
ライオンズマンション相模大野第6は小田急線相模大野駅から徒歩7分にあり、駅近で通勤通学に便利なマンションです。
このお部屋は2階以上に位置しているので通行人や周囲の住人からの視線が気になりにくく、建物のエントランスはオートロックがついているので防犯性が高くなっています。
人気の南向きのお部屋。また、フローリングなのでお掃除もラクラク。
建物にはエレベーターがついているので、重い荷物があっても安心。共用部には宅配ボックスが設定されているので、不在の時にも荷物を受け取ることができます。
このお部屋は2階以上に位置しているので通行人や周囲の住人からの視線が気になりにくく、建物のエントランスはオートロックがついているので防犯性が高くなっています。
人気の南向きのお部屋。また、フローリングなのでお掃除もラクラク。
建物にはエレベーターがついているので、重い荷物があっても安心。共用部には宅配ボックスが設定されているので、不在の時にも荷物を受け取ることができます。
お金・契約の情報
※「-」と表示されているものは、実際は料金が発生するものもございます。詳細はお問い合わせください。
| 家賃 | 4.5万円 | 管理費・共益費 | 5,000円 |
|---|---|---|---|
| 敷金 | なし | 礼金 | なし |
| 入居決定でお祝い金最大100,000円 | |||
| 保証金 | - | 償却・敷引 | - |
| 住宅保険料 | - | 更新料 | - |
| 保証会社利用 | 必須 | 保証会社名 | - |
| 保証会社費用 | - | 保証会社備考 | 保証会社利用必 初回保証料:賃料・管理費の50パーセント 1年毎の更新料10000円 |
| 契約形態 | - | 契約期間 | - |
| 入居・引渡期間 | 即時 | 現況 | - |
| 契約備考 | 初期費用の分割・クレジットカード決済可能です!お気軽にご相談下さい。短期違約金として、1年以内の解約は賃料の1ヶ月となります。 合計1.65万円(内訳:24時間緊急サポート1.65万円) 更新料 新賃料1.00ヶ月分 室内清掃費用 38500円 1K 普通借家2年 損保【1.5万円2年】 バルコニー、エアコン、クロゼット、フローリング、オートロック、室内洗濯置、シューズボックス、エレベーター、駐輪場、宅配ボックス、即入居可、礼金不要、敷金不要、IHクッキングヒーター、保証人不要、バイク置場、2沿線利用可、保証金不要、始発駅、2駅利用可、3駅以上利用可、3沿線以上利用可、駅徒歩10分以内、東南向き、都市ガス、敷金・礼金不要、保証会社利用可、初期費用カード決済可 | ||
部屋の情報
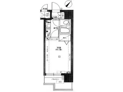
| 間取り | 1K | 専有面積 | 18.15m2 |
|---|---|---|---|
| 所在階 / 向き | 8階 / 南東 | バルコニー面積 | - |
| 水道 / ガス | - | ||
| 設備 | 2階以上、オートロック、宅配ボックス、エアコン、エレベーター、南向き、バルコニー、フローリング、コンロ:IH、洗濯機:室内 | ||
| 当社物件ID | 5205539 | ||
建物の情報
| 建物名 | ライオンズマンション相模大野第6 | ||
|---|---|---|---|
| 所在地 | 神奈川県相模原市南区相模大野 | ||
| 交通 | 小田急線 相模大野駅 徒歩7分 JR横浜線 町田駅 徒歩19分 小田急江ノ島線 東林間駅 徒歩26分 | ||
| 階数 | 12階建 | 総戸数 | - |
| 築年月 | 1990年11月 / 築36年 | エレベーター | あり |
| 駐車場 | 近隣 258m16500円 | バイク置き場 | あり |
| 駐輪場 | あり | 管理人/管理会社 | - |
| 周辺環境 | その他 相模大野駅(その他)まで694m その他 小田急線 町田駅(その他)まで1552m その他 町田駅(その他)まで1866m その他 ライフ 相模大野駅前店(スーパー)まで753m その他 スーパー三和 相模大野店(スーパー)まで974m その他 ファミリーマート よろづや相模大野北口店(コンビニ)まで513m | ||
| 建物種別 | マンション | 建物構造 | SRC(鉄骨鉄筋コンクリート) |
この部屋の取扱い不動産会社
| 会社名 | エールーム 町田店(株)ライフアシスト(SUUMO経由) | ||
|---|---|---|---|
| 所在地 | 東京都町田市中町1-1-4 No.R町田北501 | 交通 | - |
| 営業時間 | 10:00~19:00 | 定休日 | 毎週水曜日(祝日の場合は営業) |
| 免許番号 | 東京都知事100327 | 取引態様 | 仲介 |
| 不動産会社管理番号 | 100469643899 | 当社管理番号 | 89 |
| 所属団体 | (公社)全日本不動産協会東京都本部会員 | ||
| 公正取引協議会 | (公社)首都圏不動産公正取引協議会加盟 | ||
| 取扱い物件情報 | 物件詳細へ | ||
※各種情報と現状に差異がある場合は、現状優先となります。問い合わせをすることで、より詳しい条件、情報を確認する事ができます。
提供:エールーム 町田店(株)ライフアシスト(SUUMO経由)
この物件が気になったら掲載期限まであと10日
ライオンズマンション相模大野第6に条件(家賃・エリア)が近い物件一覧
| 写真 | 家賃 管理費等 | 敷金 礼金 | 間取り 専有面積 | 築年数 | 最寄り駅 所在地 | キープ | 詳細 |
|---|---|---|---|---|---|---|---|
アパート パティオ桔梗(2DK/1階) | |||||||
![]() | 5.6万円 3,000円 | なし なし | 2DK 41.31m2 | 築40年 | 横浜線 淵野辺駅 徒歩10分 神奈川県相模原市中央区共和4丁目 | 詳細を見る | |
アパート レオパレスパストラル(1K/2階) | |||||||
![]() | 4.7万円 5,000円 | なし 4.7万円 | 1K 23.18m2 | 築24年 | 相模線 相武台下駅 徒歩11分 神奈川県座間市座間2丁目 | 詳細を見る | |
マンション ジュネパレス大和第03(2K/3階) | |||||||
![]() | 6万円 3,500円 | なし なし | 2K 29.52m2 | 築37年 | 小田急江ノ島線 中央林間駅 徒歩8分 小田急江ノ島線 南林間駅 徒歩15分 東急田園都市線 つきみ野駅 徒歩17分 神奈川県大和市中央林間 | 詳細を見る | |
マンション サンアイビル(1K/3階) | |||||||
![]() | 3.5万円 3,000円 | 3.5万円 なし | 1K 15.59m2 | 築42年 | 小田急電鉄小田原線 本厚木駅 徒歩13分 神奈川県厚木市栄町2丁目 | 詳細を見る | |
アパート サニーヒルズ(3DK/2階) | |||||||
![]() | 5.9万円 3,300円 | 11.8万円 なし | 3DK 64.97m2 | 築27年 | 神奈川県相模原市南区磯部 | 詳細を見る | |
マンション ニューアピア清水(1DK/1階) | |||||||
![]() | 4.8万円 2,000円 | 4.8万円 なし | 1DK 31.83m2 | 築39年 | 小田急電鉄江ノ島線 南林間駅 徒歩12分 神奈川県大和市南林間6丁目 | 詳細を見る | |
アパート T&Fレジデンス南林間A(1K/2階) | |||||||
![]() | 6.3万円 4,000円 | なし なし | 1K 22.61m2 | 築1年 | 小田急江ノ島線 南林間駅 徒歩10分 東急田園都市線 中央林間駅 徒歩18分 小田急江ノ島線 鶴間駅 徒歩18分 神奈川県大和市南林間 | 詳細を見る | |
アパート ドエル山際(3K/1階) | |||||||
![]() | 5.2万円 5,000円 | なし 2.6万円 | 3K 48m2 | 築35年 | 神奈川県厚木市山際 | 詳細を見る | |









