賃貸マンション
パルティール大曽根アネックスの賃貸物件情報(1K/2階)
| 家賃 | 管理費等 | 敷金 | 礼金 | 間取り | 専有面積 |
|---|---|---|---|---|---|
| 6.4万円 | 7,000円 | なし | なし | 1K | 25.12m2 |
入居決定でお祝い金最大100,000円
Point
室内設備は洗面所独立・浴室乾燥機などが揃っているので、快適に過ごしやすいお部屋になります。
提供:スタイルエステート北支店(株)エムホームエステート(SUUMO経由)

詳細情報 パルティール大曽根アネックス
物件紹介
パルティール大曽根アネックスは地下鉄名城線大曽根駅から徒歩3分にあり、駅近で通勤通学に便利なマンションです。
このお部屋は2階以上に位置しているので、通行人や周囲の住人からの視線が気になりにくく、防犯面でも安心。建物のエントランスはオートロックがついており、インターホンにはTVモニタもついているため、相手の顔を確認してから来客対応することができます。
フローリングのお部屋なのでお掃除もラクラク。キッチンはシステムキッチン仕様になっていますので、お料理好きの方にもぴったり。バス・トイレは別なので、のんびりお風呂タイムも楽しめるでしょう。また、雨の日でも浴室乾燥機を使えば、お洗濯も問題ありません。
通信設備面では、インターネットが無料で使えるので、月々の出費を抑えられるのも魅力です(別途工事等が必要な場合あり)。
建物にはエレベーターがついているので、重い荷物があっても安心。共用部には宅配ボックスが設定されているので、不在の時にも荷物を受け取ることができます。
このお部屋は2階以上に位置しているので、通行人や周囲の住人からの視線が気になりにくく、防犯面でも安心。建物のエントランスはオートロックがついており、インターホンにはTVモニタもついているため、相手の顔を確認してから来客対応することができます。
フローリングのお部屋なのでお掃除もラクラク。キッチンはシステムキッチン仕様になっていますので、お料理好きの方にもぴったり。バス・トイレは別なので、のんびりお風呂タイムも楽しめるでしょう。また、雨の日でも浴室乾燥機を使えば、お洗濯も問題ありません。
通信設備面では、インターネットが無料で使えるので、月々の出費を抑えられるのも魅力です(別途工事等が必要な場合あり)。
建物にはエレベーターがついているので、重い荷物があっても安心。共用部には宅配ボックスが設定されているので、不在の時にも荷物を受け取ることができます。
お金・契約の情報
※「-」と表示されているものは、実際は料金が発生するものもございます。詳細はお問い合わせください。
| 家賃 | 6.4万円 | 管理費・共益費 | 7,000円 |
|---|---|---|---|
| 敷金 | なし | 礼金 | なし |
| 入居決定でお祝い金最大100,000円 | |||
| 保証金 | - | 償却・敷引 | - |
| 住宅保険料 | 1円 | 更新料 | - |
| 保証会社利用 | 必須 | 保証会社名 | - |
| 保証会社費用 | - | 保証会社備考 | 初回保証料:月額支払合計の30%、月額保証料:月額支払合計の1% |
| 契約形態 | - | 契約期間 | 2年 |
| 入居・引渡期間 | 2026年04月中旬 | 現況 | - |
| 契約備考 | 火災保険要加入 短期解約違約金あり(1年未満で賃料1ヶ月分) エアコン・ハウスクリーニング費 解約時 44000円(税込) 鍵交換費用:27500 その他設備/条件:室内洗濯機置き場、独立洗面台、防犯カメラ、クローゼット、シューズボックス | ||
部屋の情報
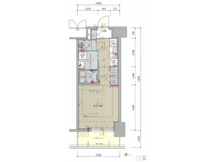
| 間取り | 1K | 専有面積 | 25.12m2 |
|---|---|---|---|
| 間取り詳細 | 洋室(7.6帖) | ||
| 所在階 / 向き | 2階 / 東 | バルコニー面積 | 4m2 |
| 水道 / ガス | ガス【プロパン】 | ||
| 設備 | バス・トイレ別、オートロック、テレビドアホン、宅配ボックス、浴室乾燥機、追い焚き、インターネット対応、システムキッチン、エアコン、エレベーター、温水洗浄便座、バルコニー、洗髪洗面化粧台、2口コンロ、コンロ:ガス、インターネット使用料無料、シャワー | ||
| 当社物件ID | 144095093 | ||
建物の情報
| 建物名 | パルティール大曽根アネックス | ||
|---|---|---|---|
| 所在地 | 愛知県名古屋市北区山田1丁目 | ||
| 交通 | 中央本線 大曽根駅 徒歩6分 名古屋市名城線 平安通駅 徒歩10分 | ||
| 階数 | 9階建 | 総戸数 | 32戸 |
| 築年月 | 2023年11月 / 築3年 | エレベーター | あり |
| 駐車場 | 空無 | バイク置き場 | あり |
| 駐輪場 | あり | 管理人/管理会社 | - |
| 周辺環境 | その他 ドラッグストア その他 公園 その他 銀行 その他 * | ||
| 建物種別 | マンション | 建物構造 | RC(鉄筋コンクリート) |
この部屋の取扱い不動産会社
| 会社名 | ハウスコム東海株式会社 大曽根店 | ||
|---|---|---|---|
| 所在地 | 愛知県名古屋市北区5-6Comfort大曽根1階 | 交通 | - |
| 営業時間 | 10:00~18:00 | 定休日 | - |
| 免許番号 | 国土交通大臣(1)第10227号 | 取引態様 | 仲介 |
| 不動産会社管理番号 | HC2-4049790-202-0171 | 当社管理番号 | 468 |
| 所属団体 | 、 | ||
| 取扱い物件情報 | 物件詳細へ | ||
※各種情報と現状に差異がある場合は、現状優先となります。問い合わせをすることで、より詳しい条件、情報を確認する事ができます。
提供:ハウスコム東海株式会社 大曽根店
この物件が気になったら掲載期限まであと5日
パルティール大曽根アネックスに条件(家賃・エリア)が近い物件一覧
| 写真 | 家賃 管理費等 | 敷金 礼金 | 間取り 専有面積 | 築年数 | 最寄り駅 所在地 | キープ | 詳細 |
|---|---|---|---|---|---|---|---|
アパート ハーモニーテラス山田Ⅱ(1K/1階) | |||||||
![]() | 5.2万円 4,000円 | なし 5.2万円 | 1K 18.92m2 | 築8年 | 中央本線 大曽根駅 徒歩6分 名古屋市名城線 平安通駅 徒歩7分 名古屋市上飯田線 平安通駅 徒歩7分 愛知県名古屋市北区山田2丁目 | 詳細を見る | |
アパート REGALEST こまどめ(1LDK/1階) | |||||||
![]() | 6.6万円 3,000円 | なし なし | 1LDK 29.08m2 | 築5年 | 地下鉄名城線 黒川駅(愛知) 徒歩8分 地下鉄名城線 名城公園駅 徒歩12分 愛知県名古屋市北区駒止町 | 詳細を見る | |
アパート オーフォレスト(1K/1階) | |||||||
![]() | 5.1万円 4,000円 | なし なし | 1K 24.47m2 | 築15年 | 名古屋市名城線 大曽根駅 徒歩9分 名古屋市名城線 平安通駅 徒歩11分 名古屋市上飯田線 上飯田駅 徒歩15分 愛知県名古屋市北区山田西町3丁目 | 詳細を見る | |
アパート ハーモニーテラス清水Ⅳ(1K/1階) | |||||||
![]() | 5.35万円 4,000円 | なし なし | 1K 20.76m2 | 築9年 | 名鉄瀬戸線 清水駅(愛知) 徒歩8分 名古屋市名城線 名城公園駅 徒歩10分 愛知県名古屋市北区清水3丁目 | 詳細を見る | |
アパート グリーンリーフ名城清水(1K/1階) | |||||||
![]() | 5.35万円 4,000円 | なし なし | 1K 20.64m2 | 築12年 | 名鉄瀬戸線 清水駅(愛知) 徒歩9分 名鉄瀬戸線 尼ケ坂駅 徒歩10分 地下鉄名城線 志賀本通駅 徒歩15分 愛知県名古屋市北区大杉町 | 詳細を見る | |
マンション INSPIRATION(ワンルーム/5階) | |||||||
![]() | 6.8万円 7,000円 | 6.8万円 なし | ワンルーム 29.38m2 | 築2年 | 名鉄瀬戸線 森下駅(愛知) 徒歩6分 名古屋市上飯田線 平安通駅 徒歩18分 名古屋市名城線 志賀本通駅 徒歩18分 愛知県名古屋市東区芳野3丁目 | 詳細を見る | |
アパート ルシエルメゾネット志賀本通(1SK/1階) | |||||||
![]() | 5.05万円 4,000円 | なし なし | 1SK 19.88m2 | 築10年 | 地下鉄名城線 志賀本通駅 徒歩4分 地下鉄名城線 平安通駅 徒歩11分 地下鉄名城線 黒川駅(愛知) 徒歩17分 愛知県名古屋市北区憧旛町 | 詳細を見る | |
アパート ORQUE(1LDK/2階) | |||||||
![]() | 6.5万円 4,000円 | なし なし | 1LDK 31.31m2 | 築10年 | 名古屋市名城線 大曽根駅 徒歩8分 中央本線 大曽根駅 徒歩8分 愛知県名古屋市北区山田西町3丁目 | 詳細を見る | |








