賃貸マンション
ハイブリッジ11の賃貸物件情報(ワンルーム/4階)
| 家賃 | 管理費等 | 敷金 | 礼金 | 間取り | 専有面積 |
|---|---|---|---|---|---|
| 4万円 | 5,000円 | なし | 8万円 | ワンルーム | 18.24m2 |
入居決定でお祝い金最大100,000円
- 保証金
- -
- 償却・敷引
- -
- 築年数
- 築8年
- 所在階
- 4階
- 向き
- 東
Point
共用施設・共用設備:食堂・カフェ、多目的ルーム、洗濯機・乾燥機、電子レンジ、ドリンクバー、プリンター・2・4階:女性専用(エレベーターロック有)
提供:(株)塚越不動産(SUUMO経由)

詳細情報 ハイブリッジ11
物件紹介
ハイブリッジ11はJR上越線群馬総社駅から徒歩50分にあるマンションです。
このお部屋は2階以上に位置しているので、通行人や周囲の住人からの視線が気になりにくく、防犯面でも安心。建物のエントランスはオートロックがついており、インターホンにはTVモニタもついているため、相手の顔を確認してから来客対応することができます。
バス・トイレ別の仕様で、のんびりお風呂タイムも楽しめます。
通信設備面では、インターネットが無料で使えるので、月々の出費を抑えられるのも魅力です(別途工事等が必要な場合あり)。
建物にはエレベーターがついているので、重い荷物があっても安心。共用部には宅配ボックスが設定されているので、不在の時にも荷物を受け取ることができます。
このお部屋は2階以上に位置しているので、通行人や周囲の住人からの視線が気になりにくく、防犯面でも安心。建物のエントランスはオートロックがついており、インターホンにはTVモニタもついているため、相手の顔を確認してから来客対応することができます。
バス・トイレ別の仕様で、のんびりお風呂タイムも楽しめます。
通信設備面では、インターネットが無料で使えるので、月々の出費を抑えられるのも魅力です(別途工事等が必要な場合あり)。
建物にはエレベーターがついているので、重い荷物があっても安心。共用部には宅配ボックスが設定されているので、不在の時にも荷物を受け取ることができます。
お金・契約の情報
※「-」と表示されているものは、実際は料金が発生するものもございます。詳細はお問い合わせください。
| 家賃 | 4万円 | 管理費・共益費 | 5,000円 |
|---|---|---|---|
| 敷金 | なし | 礼金 | 8万円 |
| 入居決定でお祝い金最大100,000円 | |||
| 保証金 | - | 償却・敷引 | - |
| 住宅保険料 | - | 更新料 | - |
| 保証会社利用 | 必須 | 保証会社名 | - |
| 保証会社費用 | - | 保証会社備考 | 保証会社利用必 ジェイリース・月額支払合計額の80% |
| 契約形態 | - | 契約期間 | - |
| 入居・引渡期間 | - | 現況 | - |
| 契約備考 | ハウスクリーニング代44000円 合計13万円(内訳:設備利用料1年間分) 食事代月額25000円(月曜日から金曜日朝食・夕食) ワンルーム 女性限定 損保【要】 バストイレ別、エアコン、クロゼット、TVインターホン、オートロック、室内洗濯置、追焚機能浴室、温水洗浄便座、エレベーター、駐輪場、宅配ボックス、最上階、ネット使用料不要、トランクルーム、敷地内ごみ置き場、プロパンガス 入居日:'26年3月末 | ||
部屋の情報
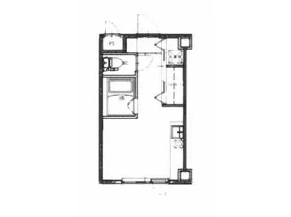
| 間取り | ワンルーム | 専有面積 | 18.24m2 |
|---|---|---|---|
| 所在階 / 向き | 4階 / 東 | バルコニー面積 | - |
| 水道 / ガス | - | ||
| 設備 | バス・トイレ別、2階以上、オートロック、テレビドアホン、宅配ボックス、追い焚き、インターネット対応、エアコン、エレベーター、温水洗浄便座、トランクルーム、インターネット使用料無料、洗濯機:室内 | ||
| 当社物件ID | 157000158 | ||
建物の情報
| 建物名 | ハイブリッジ11 | ||
|---|---|---|---|
| 所在地 | 群馬県前橋市荒牧町 | ||
| 交通 | JR上越線 群馬総社駅 徒歩50分 上毛電鉄 中央前橋駅 徒歩57分 上毛電鉄 城東駅 徒歩63分 | ||
| 階数 | 4階建 | 総戸数 | - |
| 築年月 | 2018年06月 / 築8年 | エレベーター | あり |
| 駐車場 | なし | バイク置き場 | - |
| 駐輪場 | あり | 管理人/管理会社 | - |
| 周辺環境 | その他 TSUTAYA前橋荒牧店(レンタルビデオ)まで599m その他 ウエルシア前橋荒牧店(ドラッグストア)まで713m その他 ステーキのどん荒牧店(飲食店)まで461m その他 セブンイレブン前橋荒牧町店(コンビニ)まで191m その他 ニトリ前橋店(ホームセンター)まで617m その他 フレッセイ荒牧店(スーパー)まで555m | ||
| 建物種別 | マンション | 建物構造 | 鉄骨造 |
この部屋の取扱い不動産会社
| 会社名 | (株)塚越不動産(SUUMO経由) | ||
|---|---|---|---|
| 所在地 | 群馬県前橋市関根町2-21-1 桜井貸店舗1号室 | 交通 | - |
| 営業時間 | 9:00~17:00 | 定休日 | 不定休 |
| 免許番号 | 群馬県知事7134 | 取引態様 | 仲介 |
| 不動産会社管理番号 | 100273969528 | 当社管理番号 | 89 |
| 所属団体 | (一社)群馬県宅地建物取引業協会会員 | ||
| 公正取引協議会 | (公社)首都圏不動産公正取引協議会加盟 | ||
| 取扱い物件情報 | 物件詳細へ | ||
※各種情報と現状に差異がある場合は、現状優先となります。問い合わせをすることで、より詳しい条件、情報を確認する事ができます。
提供:(株)塚越不動産(SUUMO経由)
この物件が気になったら掲載期限まであと2日
ハイブリッジ11に条件(家賃・エリア)が近い物件一覧
| 写真 | 家賃 管理費等 | 敷金 礼金 | 間取り 専有面積 | 築年数 | 最寄り駅 所在地 | キープ | 詳細 |
|---|---|---|---|---|---|---|---|
アパート K・DレジデンスI(1K/1階) | |||||||
![]() | 5.5万円 なし | 5.5万円 5.5万円 | 1K 27m2 | 築18年 | 上越新幹線 高崎駅(JR) 徒歩10分 上信電鉄 南高崎駅 徒歩26分 JR上越線 高崎問屋町駅 徒歩35分 群馬県高崎市岩押町 | 詳細を見る | |
マンション キャピタルハイツ(1K/4階) | |||||||
![]() | 2.5万円 なし | なし なし | 1K 21.38m2 | 築41年 | 上毛電鉄 西桐生駅 徒歩13分 JR両毛線 桐生駅 徒歩16分 上毛電鉄 丸山下駅 徒歩27分 群馬県桐生市仲町 | 詳細を見る | |
アパート アスナロ(2LDK/1階) | |||||||
![]() | 5.6万円 なし | 5.6万円 なし | 2LDK 50.05m2 | 築26年 | JR両毛線 駒形駅 徒歩45分 JR両毛線 伊勢崎駅 徒歩50分 東武伊勢崎線 新伊勢崎駅 徒歩56分 群馬県伊勢崎市宮子町 | 詳細を見る | |
アパート レオパレスルミエールはらだ(1K/2階) | |||||||
![]() | 5.1万円 4,000円 | なし 5.1万円 | 1K 20.28m2 | 築24年 | 湘南新宿ライン高海 井野駅(群馬) 徒歩46分 湘南新宿ライン高海 高崎駅(JR) 徒歩60分 群馬県高崎市矢島町 | 詳細を見る | |
アパート ライヴリPQR(1K/1階) | |||||||
![]() | 2.8万円 1,200円 | なし なし | 1K 22.5m2 | 築28年 | 両毛線 伊勢崎駅 徒歩50分 群馬県伊勢崎市田中島町 | 詳細を見る | |
アパート サンハイムA・B(1LDK/1階) | |||||||
![]() | 4.9万円 3,000円 | 5万円 なし | 1LDK 46.5m2 | 築14年 | 上毛電気鉄道上毛線 樋越駅 徒歩9分 群馬県前橋市樋越町 | 詳細を見る | |
アパート 曽山ハイツ(3DK/1階) | |||||||
![]() | 4.9万円 なし | 4.9万円 なし | 3DK 46.1m2 | 築39年 | JR上越線 井野駅(群馬) 徒歩23分 JR上越線 高崎問屋町駅 徒歩23分 JR信越本線 北高崎駅 徒歩52分 群馬県高崎市東貝沢町 | 詳細を見る | |
アパート マンションふじ(2DK/1階) | |||||||
![]() | 4万円 2,000円 | 4万円 なし | 2DK 42.49m2 | 築39年 | 信越本線 北高崎駅 徒歩17分 群馬県高崎市下小鳥町 | 詳細を見る | |









