賃貸マンション
コンフィール日本橋アクアシティの賃貸物件情報(2LDK/3階)
| 家賃 | 管理費等 | 敷金 | 礼金 | 間取り | 専有面積 |
|---|---|---|---|---|---|
| 23.2万円 | なし | 23.2万円 | 46.4万円 | 2LDK | 54.83m2 |
入居決定でお祝い金最大100,000円
- 保証金
- -
- 償却・敷引
- -
- 築年数
- 築27年
- 所在階
- 3階
- 向き
- 北西
Point
お一人お一人様に合ったお部屋をお探し致します。分からない事は何でもご相談下さいませ!
提供:(株)タウンハウジング東京 人形町店(SUUMO経由)

詳細情報 コンフィール日本橋アクアシティ
物件紹介
コンフィール日本橋アクアシティは都営新宿線浜町駅から徒歩5分にあり、駅近で通勤通学に便利なマンションです。
このお部屋は2階以上に位置しているので、通行人や周囲の住人からの視線が気になりにくく、防犯面でも安心。建物のエントランスはオートロックがついており、インターホンにはTVモニタもついているため、相手の顔を確認してから来客対応することができます。
こちらは楽器相談が可能な物件。楽器演奏をお考えの方はぜひ相談してみてください。人気の南向き・フローリングのお部屋。角部屋でもあるため、周囲の居住者の生活音も気になりにくい場所です。キッチンはシステムキッチン仕様になっていますので、お料理好きの方にもぴったり。バス・トイレは別なので、のんびりお風呂タイムも楽しめるでしょう。また、雨の日でも浴室乾燥機を使えば、お洗濯も問題ありません。
通信設備面では、インターネット接続が可能です。また、BSアンテナ・CSアンテナがありCATVにも対応しているので、おうち時間も充実するでしょう(別途工事、契約料が必要な場合あり)。
建物にはエレベーターがついているので、重い荷物があっても安心。共用部には宅配ボックスが設定されているので、不在の時にも荷物を受け取ることができます。
このお部屋は2階以上に位置しているので、通行人や周囲の住人からの視線が気になりにくく、防犯面でも安心。建物のエントランスはオートロックがついており、インターホンにはTVモニタもついているため、相手の顔を確認してから来客対応することができます。
こちらは楽器相談が可能な物件。楽器演奏をお考えの方はぜひ相談してみてください。人気の南向き・フローリングのお部屋。角部屋でもあるため、周囲の居住者の生活音も気になりにくい場所です。キッチンはシステムキッチン仕様になっていますので、お料理好きの方にもぴったり。バス・トイレは別なので、のんびりお風呂タイムも楽しめるでしょう。また、雨の日でも浴室乾燥機を使えば、お洗濯も問題ありません。
通信設備面では、インターネット接続が可能です。また、BSアンテナ・CSアンテナがありCATVにも対応しているので、おうち時間も充実するでしょう(別途工事、契約料が必要な場合あり)。
建物にはエレベーターがついているので、重い荷物があっても安心。共用部には宅配ボックスが設定されているので、不在の時にも荷物を受け取ることができます。
お金・契約の情報
※「-」と表示されているものは、実際は料金が発生するものもございます。詳細はお問い合わせください。
| 家賃 | 23.2万円 | 管理費・共益費 | なし |
|---|---|---|---|
| 敷金 | 23.2万円 | 礼金 | 46.4万円 |
| 入居決定でお祝い金最大100,000円 | |||
| 保証金 | - | 償却・敷引 | - |
| 住宅保険料 | - | 更新料 | - |
| 保証会社利用 | 必須 | 保証会社名 | - |
| 保証会社費用 | - | 保証会社備考 | 保証会社利用必 初回保証委託料(最低20000円):月額賃料等の50%、 2年目以降:9600円/年 |
| 契約形態 | 定期借家 | 契約期間 | 2年 |
| 入居・引渡期間 | - | 現況 | - |
| 入居可能条件 | 楽器相談 | ||
| 契約備考 | 都営大江戸線森下駅徒歩11分/通勤管理/周辺環境も詳しくご案内いたします!豊富な物件情報で楽しいお部屋探しをするならタウンハウジング秋葉原店へ! 合計13.56万円(内訳:室内清掃費用:102532円/鍵交換費:33000円) 口座振替事務手数料:110円/月 2LDK 単身者可/二人入居可/楽器相談 定期借家2年 損保【2万円2年】 バストイレ別、バルコニー、エアコン、ガスコンロ対応、クロゼット、フローリング、TVインターホン、浴室乾燥機、オートロック、室内洗濯置、陽当り良好、シューズボックス、システムキッチン、追焚機能浴室、角住戸、温水洗浄便座、脱衣所、エレベーター、洗面所独立、洗面化粧台、2口コンロ、駐輪場、宅配ボックス、外壁タイル張り、2面採光、BS・CS、3口以上コンロ、防犯カメラ、独立型キッチン、分譲賃貸、オートバス、グリル付、全居室洋室、振分、保証人不要、単身者相談、敷金1ヶ月、二人入居相談、24時間緊急通報システム、全居室フローリング、玄関ホール、2沿線利用可、保証金不要、24時間換気システム、楽器相談、平坦地、2駅利用可、3駅以上利用可、3沿線以上利用可、駅徒歩5分以内、駅徒歩10分以内、24時間ゴミ出し可、風除室、敷地内ごみ置き場、都市ガス、洗面所にドア、玄関収納、礼金2ヶ月、IT重説対応物件 入居日:'26年3月下旬 | ||
部屋の情報
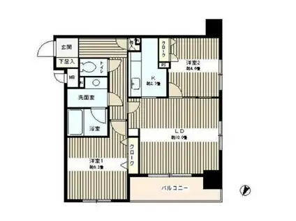
| 間取り | 2LDK | 専有面積 | 54.83m2 |
|---|---|---|---|
| 所在階 / 向き | 3階 / 北西 | バルコニー面積 | - |
| 水道 / ガス | - | ||
| 設備 | バス・トイレ別、2階以上、オートロック、テレビドアホン、宅配ボックス、浴室乾燥機、追い焚き、システムキッチン、エアコン、エレベーター、温水洗浄便座、角部屋、バルコニー、フローリング、洗髪洗面化粧台、2口コンロ、コンロ:ガス、CSアンテナ、BSアンテナ、洗濯機:室内 | ||
| 当社物件ID | 160182073 | ||
建物の情報
| 建物名 | コンフィール日本橋アクアシティ | ||
|---|---|---|---|
| 所在地 | 東京都中央区日本橋浜町 | ||
| 交通 | 都営新宿線 浜町駅 徒歩5分 東京メトロ半蔵門線 水天宮前駅 徒歩8分 東京メトロ日比谷線 人形町駅 徒歩12分 | ||
| 階数 | 地下1地上12階建 | 総戸数 | - |
| 築年月 | 2000年01月 / 築27年 | エレベーター | あり |
| 駐車場 | 近隣 300m50000円 | バイク置き場 | - |
| 駐輪場 | あり | 管理人/管理会社 | - |
| 周辺環境 | その他 ピーコックストア(スーパー)まで330m その他 まいばすけっと清洲橋西店(スーパー)まで420m その他 Olympic(スーパー)まで490m その他 ファミリーマート日本橋浜町Fタワー店(コンビニ)まで280m その他 まいばすけっと(コンビニ)まで420m その他 ローソン(コンビニ)まで480m | ||
| 建物種別 | マンション | 建物構造 | SRC(鉄骨鉄筋コンクリート) |
この部屋の取扱い不動産会社
| 会社名 | (株)タウンハウジング東京 秋葉原店(SUUMO経由) | ||
|---|---|---|---|
| 所在地 | 東京都千代田区神田岩本町 1-13 | 交通 | - |
| 営業時間 | AM10:00~PM7:00 | 定休日 | 水曜日 |
| 免許番号 | 国土交通大臣9926 | 取引態様 | 仲介 |
| 不動産会社管理番号 | 100483193662 | 当社管理番号 | 89 |
| 所属団体 | (公社)東京都宅地建物取引業協会会員 | ||
| 公正取引協議会 | (公社)首都圏不動産公正取引協議会加盟 | ||
| 取扱い物件情報 | 物件詳細へ | ||
※各種情報と現状に差異がある場合は、現状優先となります。問い合わせをすることで、より詳しい条件、情報を確認する事ができます。
提供:(株)タウンハウジング東京 秋葉原店(SUUMO経由)
この物件が気になったら掲載期限まであと11日
コンフィール日本橋アクアシティに条件(家賃・エリア)が近い物件一覧
| 写真 | 家賃 管理費等 | 敷金 礼金 | 間取り 専有面積 | 築年数 | 最寄り駅 所在地 | キープ | 詳細 |
|---|---|---|---|---|---|---|---|
マンション ルフォンプログレ門前仲町マークス(1DK/2階) | |||||||
![]() | 14.9万円 1.5万円 | 14.9万円 なし | 1DK 27.25m2 | 築5年 | 東京メトロ東西線 門前仲町駅 徒歩6分 東京メトロ半蔵門線 清澄白河駅 徒歩12分 JR京葉線 越中島駅 徒歩16分 東京都江東区深川 | 詳細を見る | |
マンション コンフォリア・リヴ豊洲キャナル(2LDK/3階) | |||||||
![]() | 20.8万円 1.2万円 | 20.8万円 なし | 2LDK 46.4m2 | 築1年 | 東京メトロ有楽町線 豊洲駅 徒歩14分 JR京葉線 潮見駅 徒歩22分 東京メトロ有楽町線 辰巳駅 徒歩32分 東京都江東区枝川 | 詳細を見る | |
マンション プレール・ドゥーク大島(2LDK/2階) | |||||||
![]() | 23.3万円 1.1万円 | なし 23.3万円 | 2LDK 53.96m2 | 築2年 | 都営新宿線 東大島駅 徒歩6分 都営新宿線 大島駅(東京) 徒歩8分 都営新宿線 西大島駅 徒歩18分 東京都江東区大島 | 詳細を見る | |
マンション ARCOBALENO OSHIAGE BLOSSOM(1LDK/2階) | |||||||
![]() | 17.3万円 2万円 | なし なし | 1LDK 40.76m2 | 築1年 | 東京メトロ半蔵門線 押上駅 徒歩11分 東武亀戸線 小村井駅 徒歩12分 東武伊勢崎線 曳舟駅 徒歩14分 東京都墨田区文花 | 詳細を見る | |
マンション SKYWOOD錦糸町(2LDK/2階) | |||||||
![]() | 28.3万円 1.5万円 | なし なし | 2LDK 59.43m2 | 築1年 | 総武・中央緩行線 錦糸町駅 徒歩7分 東京都墨田区亀沢4丁目 | 詳細を見る | |
マンション あやめガーデン(2K/10階) | |||||||
![]() | 17.5万円 1万円 | 17.5万円 17.5万円 | 2K 42.26m2 | 築13年 | 東京メトロ日比谷線 築地駅 徒歩1分 東京メトロ有楽町線 新富町駅(東京) 徒歩6分 東京メトロ日比谷線 東銀座駅 徒歩6分 東京都中央区築地 | 詳細を見る | |
一戸建て 東京都新宿線 大島駅(東京) 徒歩7分 築77年(1DK) | |||||||
![]() | 15.8万円 なし | 15.8万円 15.8万円 | 1DK 27.91m2 | 築77年 | 東京都新宿線 大島駅(東京) 徒歩7分 東京都新宿線 西大島駅 徒歩7分 総武・中央緩行線 亀戸駅 徒歩11分 東京都江東区大島3丁目 | 詳細を見る | |
マンション パートナーシップアパートメント(2LDK/4階) | |||||||
![]() | 21.9万円 1.7万円 | 21.9万円 21.9万円 | 2LDK 53.18m2 | 築21年 | 東京メトロ東西線 茅場町駅 徒歩4分 東京メトロ日比谷線 八丁堀駅(東京) 徒歩6分 東京メトロ半蔵門線 水天宮前駅 徒歩10分 東京都中央区新川 | 詳細を見る | |








