賃貸マンション
ソシアーレミラン中浦和PART-Ⅰの賃貸物件情報(ワンルーム/3階)
| 家賃 | 管理費等 | 敷金 | 礼金 | 間取り | 専有面積 |
|---|---|---|---|---|---|
| 5万円 | なし | 5万円 | 5万円 | ワンルーム | 16.67m2 |
入居決定でお祝い金最大100,000円
- 保証金
- -
- 償却・敷引
- 5万円
- 築年数
- 築36年
- 所在階
- 3階
- 向き
- 南西
Point
初期費用のクレジットカード決済や分割が可能になります。また入居審査や入居希望日、初期費用のご相談もお気軽にお問合せください。
提供:スマイファミリー 大宮店(株)セレンホーム(SUUMO経由)

詳細情報 ソシアーレミラン中浦和PART-Ⅰ
物件紹介
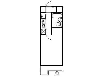
ソシアーレミラン中浦和PART-ⅠはJR埼京線中浦和駅から徒歩7分にあり、駅近で通勤通学に便利なマンションです。
このお部屋は2階以上に位置しているので、通行人や周囲の住人からの視線が気になりにくく、防犯面でも安心です。
人気の南向きのお部屋。
通信設備面では、インターネット接続が可能です。また、BSアンテナ・CSアンテナがありCATVにも対応しているので、おうち時間も充実するでしょう(別途工事、契約料が必要な場合あり)。
このお部屋は2階以上に位置しているので、通行人や周囲の住人からの視線が気になりにくく、防犯面でも安心です。
人気の南向きのお部屋。
通信設備面では、インターネット接続が可能です。また、BSアンテナ・CSアンテナがありCATVにも対応しているので、おうち時間も充実するでしょう(別途工事、契約料が必要な場合あり)。
お金・契約の情報
※「-」と表示されているものは、実際は料金が発生するものもございます。詳細はお問い合わせください。
| 家賃 | 5万円 | 管理費・共益費 | なし |
|---|---|---|---|
| 敷金 | 5万円 | 礼金 | 5万円 |
| 入居決定でお祝い金最大100,000円 | |||
| 保証金 | - | 償却・敷引 | 5万円 |
| 住宅保険料 | - | 更新料 | - |
| 保証会社利用 | 必須 | 保証会社名 | - |
| 保証会社費用 | - | 保証会社備考 | 保証会社利用必 指定の保証会社(初期費用25000円・年間更新料10000円) |
| 契約形態 | - | 契約期間 | - |
| 入居・引渡期間 | 相談 | 現況 | - |
| 契約備考 | 【仲介手数料0円】電話問合せ限定 初回来店のお客様 当物件に限る ※条件有☆求職中、生活保護、水商売、外国籍☆経年劣化による修繕などで掲載している写真や設備などと実際の設備が異なる場合があります。お問い合わせやご契約の際は、その点にご留意頂き現状優先でのお貸出しになる事をご了承ください。※退去時クリーニング費用(退去時精算・借主負担)※短期解約違約金有 更新料 新賃料1.00ヶ月分 ワンルーム 普通借家2年 損保【1.8万円2年】 バルコニー、エアコン、クロゼット、室内洗濯置、シューズボックス、駐輪場、CATV、光ファイバー、IHクッキングヒーター、全居室洋室、保証人不要、仲介手数料不要、2沿線利用可、CS、耐火構造、2駅利用可、3駅以上利用可、駅徒歩10分以内、敷地内ごみ置き場、南西向き、全居室6畳以上、BS、保証会社利用可、IT重説対応物件 | ||
部屋の情報
| 間取り | ワンルーム | 専有面積 | 16.67m2 |
|---|---|---|---|
| 所在階 / 向き | 3階 / 南西 | バルコニー面積 | - |
| 水道 / ガス | - | ||
| 設備 | 2階以上、インターネット対応、エアコン、南向き、バルコニー、コンロ:IH、CATV、CSアンテナ、BSアンテナ、洗濯機:室内 | ||
| 当社物件ID | 160659801 | ||
建物の情報
| 建物名 | ソシアーレミラン中浦和PART-Ⅰ | ||
|---|---|---|---|
| 所在地 | 埼玉県さいたま市桜区 | ||
| 交通 | JR埼京線 中浦和駅 徒歩7分 JR武蔵野線 西浦和駅 徒歩20分 JR埼京線 南与野駅 徒歩22分 | ||
| 階数 | 4階建 | 総戸数 | 31戸 |
| 築年月 | 1990年07月 / 築36年 | エレベーター | - |
| 駐車場 | 近隣 140m10000円 | バイク置き場 | - |
| 駐輪場 | あり | 管理人/管理会社 | - |
| 周辺環境 | その他 マルフク(スーパー)まで525m その他 国際医療専門学校(その他)まで1396m その他 武蔵浦和日本語学院(その他)まで1582m その他 埼玉大学(大学・短大)まで3298m その他 セブンイレブン 浦和別所沼通り店(コンビニ)まで198m | ||
| 建物種別 | マンション | 建物構造 | RC(鉄筋コンクリート) |
この部屋の取扱い不動産会社
| 会社名 | スマイファミリー 大宮店(株)セレンホーム(SUUMO経由) | ||
|---|---|---|---|
| 所在地 | 埼玉県さいたま市中央区上落合9-8-12 エクセレント与野201 | 交通 | - |
| 営業時間 | 9時~18時 | 定休日 | 水曜 第2・第4火曜日 |
| 免許番号 | 埼玉県知事25681 | 取引態様 | 仲介 |
| 不動産会社管理番号 | 100497532812 | 当社管理番号 | 89 |
| 取扱い物件情報 | 物件詳細へ | ||
※各種情報と現状に差異がある場合は、現状優先となります。問い合わせをすることで、より詳しい条件、情報を確認する事ができます。
提供:スマイファミリー 大宮店(株)セレンホーム(SUUMO経由)
この物件が気になったら掲載期限まであと11日
ソシアーレミラン中浦和PART-Ⅰに条件(家賃・エリア)が近い物件一覧
| 写真 | 家賃 管理費等 | 敷金 礼金 | 間取り 専有面積 | 築年数 | 最寄り駅 所在地 | キープ | 詳細 |
|---|---|---|---|---|---|---|---|
アパート セイントハイツ(ワンルーム/2階) | |||||||
![]() | 3.8万円 なし | なし なし | ワンルーム 20m2 | 築41年 | 埼玉県川越市 | 詳細を見る | |
アパート サンレモン(1K/2階) | |||||||
![]() | 3.1万円 3,000円 | なし なし | 1K 16.5m2 | 築39年 | 東武伊勢崎線 北春日部駅 徒歩17分 東武伊勢崎線 春日部駅 徒歩20分 東武野田線 八木崎駅 徒歩32分 埼玉県春日部市小渕 | 詳細を見る | |
アパート MELDIA桜区田島3丁目NO.2(1K/1階) | |||||||
![]() | 6.8万円 3,000円 | なし なし | 1K 21.13m2 | 築4年 | JR武蔵野線 西浦和駅 徒歩8分 JR埼京線 中浦和駅 徒歩12分 JR埼京線 武蔵浦和駅 徒歩21分 埼玉県さいたま市桜区 | 詳細を見る | |
アパート MELLAS武蔵浦和(1K/1階) | |||||||
![]() | 5.9万円 5,000円 | 5.9万円 なし | 1K 17.08m2 | 築1年 | JR埼京線 武蔵浦和駅 徒歩12分 JR武蔵野線 西浦和駅 徒歩12分 JR埼京線 中浦和駅 徒歩20分 埼玉県さいたま市南区四谷 | 詳細を見る | |
アパート レオパレス原市弐番館(1K/2階) | |||||||
![]() | 4.2万円 5,000円 | なし 4.2万円 | 1K 20.28m2 | 築28年 | 埼玉新都市交通 原市駅 徒歩4分 埼玉県上尾市原市中3丁目 | 詳細を見る | |
マンション レオパレスバーディーパレス(1K/3階) | |||||||
![]() | 6.5万円 7,000円 | なし 6.5万円 | 1K 20.81m2 | 築19年 | JR京浜東北線 西川口駅 徒歩21分 埼玉高速鉄道 南鳩ケ谷駅 徒歩23分 JR京浜東北線 川口駅 徒歩28分 埼玉県川口市中青木 | 詳細を見る | |
アパート ハーベストアベニュー(2DK/2階) | |||||||
![]() | 5.8万円 6,000円 | なし なし | 2DK 40.3m2 | 築33年 | 埼玉県川越市石原町1丁目 | 詳細を見る | |
マンション アメニティパレス B(2LDK/3階) | |||||||
![]() | 7.3万円 3,000円 | なし なし | 2LDK 50m2 | 築33年 | JR高崎線 桶川駅 徒歩22分 JR高崎線 北上尾駅 徒歩33分 JR高崎線 上尾駅 徒歩51分 埼玉県上尾市大字上 | 詳細を見る | |









