賃貸マンション
パークシティ浜田山D棟の賃貸物件情報(3LDK/1階)
| 家賃 | 管理費等 | 敷金 | 礼金 | 間取り | 専有面積 |
|---|---|---|---|---|---|
| 98万円 | 2万円 | 98万円 | 196万円 | 3LDK | 156.39m2 |
入居決定でお祝い金最大100,000円
Point
案内時から解約時まで全てお付き合いさせていただきます☆ぜひお問い合わせください☆
提供:東洋エステートサービス(株)管理部(SUUMO経由)

詳細情報 パークシティ浜田山D棟
物件紹介
パークシティ浜田山D棟は京王井の頭線浜田山駅から徒歩6分にあり、駅近で通勤通学に便利なマンションです。
建物のエントランスはオートロックがついており、インターホンにはTVモニタもついているため、相手の顔を確認してから来客対応することができます。
人気の南向きのお部屋。角部屋でもあるため、周囲の居住者の生活音も気になりにくい場所です。キッチンはシステムキッチン仕様になっていますので、お料理好きの方にもぴったり。バス・トイレは別なので、のんびりお風呂タイムも楽しめるでしょう。また、雨の日でも浴室乾燥機を使えば、お洗濯も問題ありません。
通信設備面ではBSアンテナ・CSアンテナがあり、CATVにも対応しているので、おうち時間も充実するでしょう(別途工事、契約料が必要な場合あり)。
床暖房があり、冬も足元から暖かく快適に過ごすことができます。建物にはエレベーターがついているので、重い荷物があっても安心。共用部には宅配ボックスが設定されているので、不在の時にも荷物を受け取ることができます。
建物のエントランスはオートロックがついており、インターホンにはTVモニタもついているため、相手の顔を確認してから来客対応することができます。
人気の南向きのお部屋。角部屋でもあるため、周囲の居住者の生活音も気になりにくい場所です。キッチンはシステムキッチン仕様になっていますので、お料理好きの方にもぴったり。バス・トイレは別なので、のんびりお風呂タイムも楽しめるでしょう。また、雨の日でも浴室乾燥機を使えば、お洗濯も問題ありません。
通信設備面ではBSアンテナ・CSアンテナがあり、CATVにも対応しているので、おうち時間も充実するでしょう(別途工事、契約料が必要な場合あり)。
床暖房があり、冬も足元から暖かく快適に過ごすことができます。建物にはエレベーターがついているので、重い荷物があっても安心。共用部には宅配ボックスが設定されているので、不在の時にも荷物を受け取ることができます。
お金・契約の情報
※「-」と表示されているものは、実際は料金が発生するものもございます。詳細はお問い合わせください。
| 家賃 | 98万円 | 管理費・共益費 | 2万円 |
|---|---|---|---|
| 敷金 | 98万円 | 礼金 | 196万円 |
| 入居決定でお祝い金最大100,000円 | |||
| 保証金 | - | 償却・敷引 | - |
| 住宅保険料 | - | 更新料 | - |
| 保証会社利用 | 必須 | 保証会社名 | - |
| 保証会社費用 | - | 保証会社備考 | 保証会社利用必 エポスカード 申込時必要書類・初回・月次・条件等の詳細につきましては、申し込み前にご確認ください。 |
| 契約形態 | 定期借家 | 契約期間 | 2年 |
| 入居・引渡期間 | - | 現況 | - |
| 契約備考 | 1Fペット飼育相談可です♪ 合計1.65万円(内訳:アクト安心ライフ241.65万円) 3LDK 定期借家2年 損保【2万円2年】 バストイレ別、バルコニー、エアコン、TVインターホン、浴室乾燥機、オートロック、室内洗濯置、システムキッチン、南向き、追焚機能浴室、角住戸、温水洗浄便座、エレベーター、洗面所独立、2口コンロ、宅配ボックス、CATV、2面採光、最上階、3口以上コンロ、防犯カメラ、全居室収納、分譲賃貸、グリル付、ガスレンジ付、2面バルコニー、CS、床暖房、食器洗乾燥機、エアコン全室、浴室に窓、ディスポーザー、ルーフバルコニー、トイレ2ヶ所、駅徒歩10分以内、24時間ゴミ出し可、専有面積30坪以上、当社管理物件、都市ガス、シューズWIC、BS 入居日:'26年3月上旬 | ||
部屋の情報
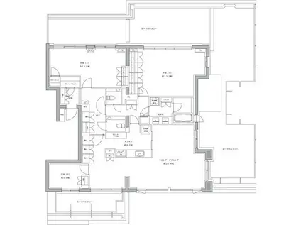
| 間取り | 3LDK | 専有面積 | 156.39m2 |
|---|---|---|---|
| 所在階 / 向き | 1階 / 南 | バルコニー面積 | - |
| 水道 / ガス | - | ||
| 設備 | バス・トイレ別、オートロック、テレビドアホン、宅配ボックス、浴室乾燥機、追い焚き、システムキッチン、エアコン、エレベーター、温水洗浄便座、南向き、角部屋、バルコニー、洗髪洗面化粧台、床暖房、2口コンロ、コンロ:ガス、CATV、CSアンテナ、BSアンテナ、洗濯機:室内 | ||
| 当社物件ID | 160415451 | ||
建物の情報
| 建物名 | パークシティ浜田山D棟 | ||
|---|---|---|---|
| 所在地 | 東京都杉並区高井戸東 | ||
| 交通 | 京王井の頭線 浜田山駅 徒歩6分 | ||
| 階数 | 地下1地上6階建 | 総戸数 | 1戸 |
| 築年月 | 2009年10月 / 築17年 | エレベーター | あり |
| 駐車場 | なし | バイク置き場 | - |
| 駐輪場 | - | 管理人/管理会社 | - |
| 周辺環境 | その他 デイリーヤマザキ(コンビニ)まで480m その他 どらっぐぱぱす(ドラッグストア)まで640m その他 ローソン(その他)まで640m その他 成城石井(スーパー)まで560m | ||
| 建物種別 | マンション | 建物構造 | RC(鉄筋コンクリート) |
この部屋の取扱い不動産会社
| 会社名 | 東洋エステートサービス(株)管理部(SUUMO経由) | ||
|---|---|---|---|
| 所在地 | 東京都調布市布田4-6-1 調布丸善ビル4階 | 交通 | - |
| 営業時間 | AM9:30~PM6:00 | 定休日 | なし |
| 免許番号 | 国土交通大臣6189 | 取引態様 | 代理 |
| 不動産会社管理番号 | 100488629953 | 当社管理番号 | 89 |
| 所属団体 | (公社)東京都宅地建物取引業協会会員 | ||
| 公正取引協議会 | (公社)首都圏不動産公正取引協議会加盟 | ||
| 取扱い物件情報 | 物件詳細へ | ||
※各種情報と現状に差異がある場合は、現状優先となります。問い合わせをすることで、より詳しい条件、情報を確認する事ができます。
提供:東洋エステートサービス(株)管理部(SUUMO経由)
この物件が気になったら掲載期限まであと11日
パークシティ浜田山D棟に条件(家賃・エリア)が近い物件一覧
| 写真 | 家賃 管理費等 | 敷金 礼金 | 間取り 専有面積 | 築年数 | 最寄り駅 所在地 | キープ | 詳細 |
|---|---|---|---|---|---|---|---|
マンション クイズ恵比寿(1LDK/9階) | |||||||
![]() | 59.5万円 1万円 | 59.5万円 なし | 1LDK 67.08m2 | 築21年 | JR山手線 恵比寿駅 徒歩1分 東急東横線 代官山駅 徒歩14分 東京メトロ日比谷線 中目黒駅 徒歩19分 東京都渋谷区恵比寿 | 詳細を見る | |
マンション パークコート渋谷 ザ タワー(2LDK/26階) | |||||||
![]() | 59万円 なし | 59万円 なし | 2LDK 61.46m2 | 築6年 | 東急田園都市線 渋谷駅 徒歩10分 東京メトロ千代田線 明治神宮前駅 徒歩11分 京王井の頭線 神泉駅 徒歩15分 東京都渋谷区宇田川町 | 詳細を見る | |
マンション フラット緑ケ岡(3LDK/1階) | |||||||
![]() | 105万円 なし | 210万円 105万円 | 3LDK 152.07m2 | 築41年 | 東京メトロ銀座線 表参道駅 徒歩9分 JR山手線 渋谷駅 徒歩14分 東京メトロ日比谷線 広尾駅 徒歩18分 東京都渋谷区渋谷 | 詳細を見る | |
マンション コート元代々木町(3LDK/3階) | |||||||
![]() | 69万円 1.5万円 | 69万円 69万円 | 3LDK 91.32m2 | 築5年 | 小田急電鉄小田原線 代々木八幡駅 徒歩6分 東京都渋谷区元代々木町 | 詳細を見る | |
マンション パークハウス広尾(3LDK/5階) | |||||||
![]() | 79万円 なし | 158万円 79万円 | 3LDK 102.43m2 | 築24年 | JR山手線 恵比寿駅 徒歩12分 東京メトロ銀座線 渋谷駅 徒歩17分 東京メトロ日比谷線 広尾駅 徒歩18分 東京都渋谷区東 | 詳細を見る | |
マンション 世田谷野毛レジデンス(3SLDK/2階) | |||||||
![]() | 59.8万円 2万円 | 59.8万円 なし | 3SLDK 141.83m2 | 築38年 | 東急大井町線 等々力駅 徒歩12分 東京都世田谷区野毛2丁目 | 詳細を見る | |
マンション グランツオーベル南平台(2SLDK/1階) | |||||||
![]() | 75万円 なし | 150万円 75万円 | 2SLDK 118.26m2 | 築18年 | 京王井の頭線 渋谷駅 徒歩9分 JR山手線 渋谷駅 徒歩10分 東京都渋谷区南平台町 | 詳細を見る | |
マンション 渋谷プロパティータワー(3LDK/1階) | |||||||
![]() | 75万円 5万円 | 75万円 75万円 | 3LDK 103.17m2 | 築36年 | JR山手線 渋谷駅 徒歩5分 東急東横線 代官山駅 徒歩10分 東京メトロ日比谷線 恵比寿駅 徒歩11分 東京都渋谷区東 | 詳細を見る | |









