賃貸マンション
レジオス用賀NCの賃貸物件情報(1K/3階)
| 家賃 | 管理費等 | 敷金 | 礼金 | 間取り | 専有面積 |
|---|---|---|---|---|---|
| 9.4万円 | 1万円 | なし | 9.4万円 | 1K | 23.73m2 |
入居決定でお祝い金最大100,000円
- 保証金
- 10.4万円
- 償却・敷引
- -
- 築年数
- 築19年
- 所在階
- 3階
- 向き
- -
Point
《創業30年・東急沿線中心に10店舗・宅建保有率80%超》経験×エリア×スキルが強みの不動産会社です!【未公開情報多数】【初期費用分割払い可能】様々な角度からご提案致します★お気軽にお問合せください★
提供:Balleggs (株)バレッグス桜新町支店(SUUMO経由)

詳細情報 レジオス用賀NC
物件紹介
レジオス用賀NCは東急田園都市線用賀駅から徒歩2分にあり、駅近で通勤通学に便利なマンションです。
このお部屋は2階以上に位置しているので、通行人や周囲の住人からの視線が気になりにくく、防犯面でも安心。建物のエントランスはオートロックがついており、インターホンにはTVモニタもついているため、相手の顔を確認してから来客対応することができます。
フローリングのお部屋なのでお掃除もラクラク。キッチンはシステムキッチン仕様になっていますので、お料理好きの方にもぴったり。バス・トイレは別なので、のんびりお風呂タイムも楽しめるでしょう。また、雨の日でも浴室乾燥機を使えば、お洗濯も問題ありません。
建物にはエレベーターがついているので、重い荷物があっても安心。共用部には宅配ボックスが設定されているので、不在の時にも荷物を受け取ることができます。
このお部屋は2階以上に位置しているので、通行人や周囲の住人からの視線が気になりにくく、防犯面でも安心。建物のエントランスはオートロックがついており、インターホンにはTVモニタもついているため、相手の顔を確認してから来客対応することができます。
フローリングのお部屋なのでお掃除もラクラク。キッチンはシステムキッチン仕様になっていますので、お料理好きの方にもぴったり。バス・トイレは別なので、のんびりお風呂タイムも楽しめるでしょう。また、雨の日でも浴室乾燥機を使えば、お洗濯も問題ありません。
建物にはエレベーターがついているので、重い荷物があっても安心。共用部には宅配ボックスが設定されているので、不在の時にも荷物を受け取ることができます。
お金・契約の情報
※「-」と表示されているものは、実際は料金が発生するものもございます。詳細はお問い合わせください。
| 家賃 | 9.4万円 | 管理費・共益費 | 1万円 |
|---|---|---|---|
| 敷金 | なし | 礼金 | 9.4万円 |
| 入居決定でお祝い金最大100,000円 | |||
| 保証金 | 10.4万円 | 償却・敷引 | - |
| 住宅保険料 | - | 更新料 | - |
| 保証会社利用 | 必須 | 保証会社名 | - |
| 保証会社費用 | - | 保証会社備考 | 保証会社利用必 株式会社エポスカード 詳細はお問い合わせください。 |
| 契約形態 | - | 契約期間 | - |
| 入居・引渡期間 | - | 現況 | - |
| 契約備考 | 合計2.75万円(内訳:鍵交換代27500円) 1K 普通借家2年 損保【2万円2年】 バストイレ別、バルコニー、エアコン、ガスコンロ対応、クロゼット、フローリング、TVインターホン、浴室乾燥機、オートロック、室内洗濯置、シューズボックス、システムキッチン、温水洗浄便座、エレベーター、洗面所独立、2口コンロ、宅配ボックス、外壁タイル張り、2面採光、敷金不要、防犯カメラ、分譲賃貸、2沿線利用可、24時間換気システム、3駅以上利用可、駅徒歩5分以内、都市ガス 入居日:'26年3月中旬 | ||
部屋の情報
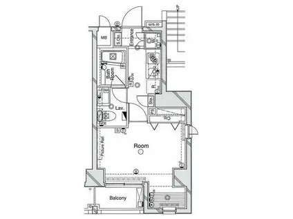
| 間取り | 1K | 専有面積 | 23.73m2 |
|---|---|---|---|
| 所在階 / 向き | 3階 / - | バルコニー面積 | 2m2 |
| 水道 / ガス | - | ||
| 設備 | バス・トイレ別、2階以上、オートロック、テレビドアホン、宅配ボックス、浴室乾燥機、システムキッチン、エアコン、エレベーター、温水洗浄便座、バルコニー、フローリング、洗髪洗面化粧台、2口コンロ、コンロ:ガス、洗濯機:室内 | ||
| 当社物件ID | 22232094 | ||
建物の情報
| 建物名 | レジオス用賀NC | ||
|---|---|---|---|
| 所在地 | 東京都世田谷区用賀 | ||
| 交通 | 東急田園都市線 用賀駅 徒歩2分 東急田園都市線 桜新町駅 徒歩12分 東急大井町線 二子玉川駅 徒歩28分 | ||
| 階数 | 7階建 | 総戸数 | 29戸 |
| 築年月 | 2007年02月 / 築19年 | エレベーター | あり |
| 駐車場 | なし | バイク置き場 | - |
| 駐輪場 | - | 管理人/管理会社 | - |
| 周辺環境 | その他 世田谷区立用賀2丁目公園(用賀)(公園)まで265m その他 用賀駅(その他)まで292m その他 玉川警察署 用賀交番(用賀)(警察署・交番)まで318m その他 世田谷区役所 用賀出張所(用賀)(役所)まで371m その他 世田谷区立京西小学校(用賀)(小学校)まで554m その他 世田谷区立用賀中学校(用賀)(中学校)まで1129m | ||
| 建物種別 | マンション | 建物構造 | RC(鉄筋コンクリート) |
この部屋の取扱い不動産会社
| 会社名 | Balleggs (株)バレッグス三軒茶屋支店(SUUMO経由) | ||
|---|---|---|---|
| 所在地 | 東京都世田谷区三軒茶屋1-33-17 | 交通 | - |
| 営業時間 | 10時~18時(電話受付は12時~13時以外) | 定休日 | 毎週火・水曜日 |
| 免許番号 | 東京都知事62730 | 取引態様 | 仲介 |
| 不動産会社管理番号 | 100481599026 | 当社管理番号 | 89 |
| 所属団体 | (公社)東京都宅地建物取引業協会会員 | ||
| 公正取引協議会 | (公社)首都圏不動産公正取引協議会加盟 | ||
| 取扱い物件情報 | 物件詳細へ | ||
※各種情報と現状に差異がある場合は、現状優先となります。問い合わせをすることで、より詳しい条件、情報を確認する事ができます。
提供:Balleggs (株)バレッグス三軒茶屋支店(SUUMO経由)
この物件が気になったら掲載期限まであと10日
レジオス用賀NCに条件(家賃・エリア)が近い物件一覧
| 写真 | 家賃 管理費等 | 敷金 礼金 | 間取り 専有面積 | 築年数 | 最寄り駅 所在地 | キープ | 詳細 |
|---|---|---|---|---|---|---|---|
アパート ZEN HOUSE蒲田(1K/1階) | |||||||
![]() | 8.1万円 4,000円 | 8.1万円 8.1万円 | 1K 20.05m2 | 築4年 | JR京浜東北線 蒲田駅 徒歩10分 京急本線 梅屋敷駅(東京) 徒歩13分 東急池上線 蓮沼駅 徒歩16分 東京都大田区西蒲田 | 詳細を見る | |
マンション トルース蒲田(ワンルーム/3階) | |||||||
![]() | 5.7万円 2,000円 | 5.7万円 5.7万円 | ワンルーム 17.85m2 | 築35年 | 京浜東北・根岸線 蒲田駅 徒歩13分 東急池上線 蓮沼駅 徒歩15分 東京都大田区西蒲田1丁目 | 詳細を見る | |
マンション コム・シェ・ソワⅡ(1K/1階) | |||||||
![]() | 9.2万円 4,000円 | なし 9.2万円 | 1K 27.71m2 | 築23年 | 東急多摩川線 矢口渡駅 徒歩8分 東京都大田区新蒲田2丁目 | 詳細を見る | |
マンション MODULOR久が原(ワンルーム/1階) | |||||||
![]() | 10.6万円 1万円 | なし なし | ワンルーム 22.41m2 | 築22年 | 東急池上線 千鳥町駅 徒歩6分 東急池上線 池上駅 徒歩10分 東京都大田区千鳥1丁目 | 詳細を見る | |
マンション パークアクシス蒲田弐番館(1K/6階) | |||||||
![]() | 10.2万円 5,000円 | 10.2万円 10.2万円 | 1K 24.17m2 | 築17年 | 京急本線 京急蒲田駅 徒歩7分 JR京浜東北線 蒲田駅 徒歩10分 京急空港線 糀谷駅 徒歩14分 東京都大田区蒲田本町 | 詳細を見る | |
マンション ジェノヴィア蒲田3スカイガーデン(1K/3階) | |||||||
![]() | 11.5万円 1.5万円 | なし なし | 1K 25.41m2 | 築5年 | 京浜急行電鉄本線 京急蒲田駅 徒歩6分 京浜急行電鉄空港線 糀谷駅 徒歩10分 京浜東北・根岸線 蒲田駅 徒歩15分 東京都大田区南蒲田2丁目 | 詳細を見る | |
マンション CREVISTA蒲田(1K/7階) | |||||||
![]() | 10.1万円 1.5万円 | なし 5.05万円 | 1K 26.04m2 | 築7年 | 東急池上線 蓮沼駅 徒歩2分 JR京浜東北線 蒲田駅 徒歩6分 東急池上線 池上駅 徒歩15分 東京都大田区西蒲田 | 詳細を見る | |
アパート SEED SAVE PETIRASU Ⅲ(2DK/2階) | |||||||
![]() | 12万円 1万円 | 24万円 12万円 | 2DK 35.83m2 | 新築 | 東京モノレール羽田 昭和島駅 徒歩12分 京浜急行電鉄本線 大森町駅 徒歩18分 東京都大田区大森東5丁目 | 詳細を見る | |








