賃貸マンション
ALIVIS都島通の賃貸物件情報(1LDK/1階)
| 家賃 | 管理費等 | 敷金 | 礼金 | 間取り | 専有面積 |
|---|---|---|---|---|---|
| 8.85万円 | 1万円 | なし | なし | 1LDK | 28.1m2 |
入居決定でお祝い金最大100,000円
Point
売買・賃貸・管理はアパマンショップ梅田東店へお任せください♪
提供:株式会社KARIRU

詳細情報 ALIVIS都島通
物件紹介
ALIVIS都島通は大阪メトロ谷町線野江内代駅から徒歩1分にあり、駅近で通勤通学に便利なマンションです。
建物のエントランスはオートロックがついており、インターホンにはTVモニタもついているため、相手の顔を確認してから来客対応することができます。
人気の角部屋で周囲の居住者の生活音も気になりにくく、また、フローリングのお部屋なのでお掃除もラクラク。室内にはウォークインクローゼットがありますので、たくさんの荷物も効率的に収納ができます。キッチンはシステムキッチン仕様になっていますので、お料理好きの方にもぴったり。バス・トイレは別なので、のんびりお風呂タイムも楽しめるでしょう。また、雨の日でも浴室乾燥機を使えば、お洗濯も問題ありません。
通信設備面では、インターネットが無料で使えるので、月々の出費を抑えられるのも魅力です。また、BSアンテナ・CSアンテナがありCATVにも対応しているので、おうち時間も充実するでしょう(別途工事、BS・CS・CATVの契約料等が必要な場合あり)。
建物にはエレベーターがついているので、重い荷物があっても安心。共用部には宅配ボックスが設定されているので、不在の時にも荷物を受け取ることができます。また、ペット飼育の相談ができますので、あなたの大切な家族の一員も快適に暮らせるか、ぜひ確認してみてください。
コンビニまで徒歩4分の場所にあり、日用品や食料品のお買い物にも便利です。
建物のエントランスはオートロックがついており、インターホンにはTVモニタもついているため、相手の顔を確認してから来客対応することができます。
人気の角部屋で周囲の居住者の生活音も気になりにくく、また、フローリングのお部屋なのでお掃除もラクラク。室内にはウォークインクローゼットがありますので、たくさんの荷物も効率的に収納ができます。キッチンはシステムキッチン仕様になっていますので、お料理好きの方にもぴったり。バス・トイレは別なので、のんびりお風呂タイムも楽しめるでしょう。また、雨の日でも浴室乾燥機を使えば、お洗濯も問題ありません。
通信設備面では、インターネットが無料で使えるので、月々の出費を抑えられるのも魅力です。また、BSアンテナ・CSアンテナがありCATVにも対応しているので、おうち時間も充実するでしょう(別途工事、BS・CS・CATVの契約料等が必要な場合あり)。
建物にはエレベーターがついているので、重い荷物があっても安心。共用部には宅配ボックスが設定されているので、不在の時にも荷物を受け取ることができます。また、ペット飼育の相談ができますので、あなたの大切な家族の一員も快適に暮らせるか、ぜひ確認してみてください。
コンビニまで徒歩4分の場所にあり、日用品や食料品のお買い物にも便利です。
お金・契約の情報
※「-」と表示されているものは、実際は料金が発生するものもございます。詳細はお問い合わせください。
| 家賃 | 8.85万円 | 管理費・共益費 | 1万円 |
|---|---|---|---|
| 敷金 | なし | 礼金 | なし |
| 入居決定でお祝い金最大100,000円 | |||
| 保証金 | - | 償却・敷引 | - |
| 住宅保険料 | - | 更新料 | - |
| 保証会社利用 | 必須 | 保証会社名 | K−net㈱ (旧㈱近畿保証サービス) |
| 保証会社費用 | - | 保証会社備考 | 【特別コースSA】初回保証料50%、更新料1.2万円/年、口振手数料330円(税込) |
| 契約形態 | - | 契約期間 | 2年 |
| 入居・引渡期間 | 相談 | 現況 | - |
| 入居可能条件 | ペット可 | ||
| 契約備考 | ・最新の空き状況とお申込は【ITANDI BB】、物件資料は【リアプロ】【リアプロBB】バイク置場の空き状況と詳細は【リアプロBB】からご確認ください。事務所:不可/二人入居:相談/小型犬:可/猫:可/ルームシェア:不可・インターネット(Wi−Fi | ||
部屋の情報
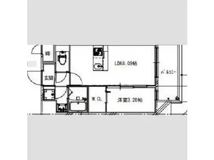
| 間取り | 1LDK | 専有面積 | 28.1m2 |
|---|---|---|---|
| 所在階 / 向き | 1階 / 東 | バルコニー面積 | - |
| 水道 / ガス | ガス【都市】 | ||
| 設備 | バス・トイレ別、オートロック、宅配ボックス、浴室乾燥機、ウォークインクローゼット、インターネット対応、システムキッチン、エレベーター、温水洗浄便座、角部屋、バルコニー、コンロ:ガス、CSアンテナ、BSアンテナ、インターネット使用料無料、冷房、洗濯機:室内 | ||
| 当社物件ID | 159961691 | ||
建物の情報
| 建物名 | ALIVIS都島通 | ||
|---|---|---|---|
| 所在地 | 大阪府大阪市城東区野江4丁目 | ||
| 交通 | 大阪メトロ谷町線 野江内代駅 徒歩2分 | ||
| 階数 | 9階建 | 総戸数 | 35戸 |
| 築年月 | 2025年06月 / 築1年 | エレベーター | あり |
| 駐車場 | - | バイク置き場 | - |
| 駐輪場 | - | 管理人/管理会社 | - |
| 建物種別 | マンション | 建物構造 | RC(鉄筋コンクリート) |
この部屋の取扱い不動産会社
| 会社名 | アパマンショップ梅田東店 | ||
|---|---|---|---|
| 所在地 | 大阪府大阪市北区堂山町 4-4阪急東ビル3F | 交通 | 大阪市谷町線東梅田から徒歩5分 |
| 営業時間 | 10:00〜18:30(泉の広場M10出口右階段すぐ!) | 定休日 | - |
| 免許番号 | 大阪府知事(6)47572 | 取引態様 | 仲介 |
| 不動産会社管理番号 | 111339852 | 当社管理番号 | 4 |
| 所属団体 | (一社)大阪府宅地建物取引業協会 | ||
| 公正取引協議会 | (公社) 近畿地区不動産公正取引協議会加盟 | ||
| 取扱い物件情報 | 物件詳細へ | ||
※各種情報と現状に差異がある場合は、現状優先となります。問い合わせをすることで、より詳しい条件、情報を確認する事ができます。
提供:アパマンショップ梅田東店
この物件が気になったら掲載期限まであと13日
ALIVIS都島通に条件(家賃・エリア)が近い物件一覧
| 写真 | 家賃 管理費等 | 敷金 礼金 | 間取り 専有面積 | 築年数 | 最寄り駅 所在地 | キープ | 詳細 |
|---|---|---|---|---|---|---|---|
マンション CASA SOLEADO(2LDK/1階) | |||||||
| 12.2万円 5,000円 | 5万円 なし | 2LDK 67.25m2 | 築14年 | 阪急電鉄千里線 千里山駅 徒歩7分 阪急電鉄千里線 南千里駅 徒歩16分 阪急電鉄千里線 関大前駅 徒歩17分 大阪府吹田市千里山西6丁目15-25 | 詳細を見る | ||
マンション セレニテ江坂ルフレ(1K/6階) | |||||||
| 8.1万円 7,000円 | なし なし | 1K 21.41m2 | 築7年 | 北大阪急行南北線 江坂駅 徒歩7分 大阪市御堂筋線 江坂駅 徒歩7分 阪急電鉄千里線 豊津駅(大阪) 徒歩12分 大阪府吹田市江坂町1丁目10-1 | 詳細を見る | ||
マンション ミューゼス上野芝(3LDK/5階) | |||||||
![]() | 7.4万円 5,000円 | なし 7.9万円 | 3LDK 70.89m2 | 築36年 | 阪和線 上野芝駅 徒歩2分 阪和線 津久野駅 徒歩17分 阪和線 百舌鳥駅 徒歩19分 大阪府堺市西区上野芝町4丁 | 詳細を見る | |
マンション グランエスポワール(3LDK/4階) | |||||||
![]() | 13.5万円 8,500円 | なし 20.25万円 | 3LDK 66.96m2 | 築26年 | 京阪電気鉄道京阪線 西三荘駅 徒歩5分 京阪電気鉄道京阪線 門真市駅 徒歩9分 大阪市谷町線 大日駅 徒歩14分 大阪府門真市元町 | 詳細を見る | |
アパート CREATION(ワンルーム/1階) | |||||||
| 5.4万円 3,000円 | なし 5.4万円 | ワンルーム 33.61m2 | 築28年 | 大阪モノレール本線 沢良宜駅 徒歩39分 大阪モノレール本線 摂津駅 徒歩47分 阪急電鉄京都線 摂津市駅 徒歩59分 大阪府摂津市鳥飼上3丁目5-25 | 詳細を見る | ||
アパート クリエオーレ原町(1LDK/3階) | |||||||
| 7.7万円 5,000円 | なし 7.7万円 | 1LDK 33.93m2 | 築1年 | 阪急電鉄千里線 千里山駅 徒歩25分 東海道本線 吹田駅(JR) 徒歩26分 阪急電鉄千里線 関大前駅 徒歩26分 大阪府吹田市原町3丁目34-13 | 詳細を見る | ||
アパート フジパレス門真本町Ⅴ番館(1K/2階) | |||||||
![]() | 6.5万円 4,500円 | なし 6万円 | 1K 31.2m2 | 築3年 | 京阪電気鉄道京阪線 西三荘駅 徒歩6分 京阪電気鉄道京阪線 門真市駅 徒歩12分 京阪電気鉄道京阪線 守口市駅 徒歩17分 大阪府門真市本町 | 詳細を見る | |
マンション カルム小西Ⅱ(1K/2階) | |||||||
| 6.9万円 6,000円 | 7.5万円 15万円 | 1K 31.16m2 | 築18年 | 北大阪急行南北線 江坂駅 徒歩7分 阪急電鉄千里線 豊津駅(大阪) 徒歩14分 阪急電鉄千里線 関大前駅 徒歩19分 大阪府吹田市垂水町3丁目23-21 | 詳細を見る | ||



