賃貸マンション
シティライフ赤塚の賃貸物件情報(2LDK/5階)
| 家賃 | 管理費等 | 敷金 | 礼金 | 間取り | 専有面積 |
|---|---|---|---|---|---|
| 18.8万円 | 1万円 | 18.8万円 | なし | 2LDK | 58.32m2 |
入居決定でお祝い金最大100,000円
- 保証金
- -
- 償却・敷引
- -
- 築年数
- 築34年
- 所在階
- 5階
- 向き
- 南西
Point
★2路線2駅利用可★1階ドラッグストアで便利です★二面採光★オートロック★エレベーター★エアコン3台★ガスコンロ設置可★洗面所独立★温水洗浄暖房便座★お気軽にお問い合わせください♪
提供:(有)板橋ハウジング板橋駅前店(SUUMO経由)

詳細情報 シティライフ赤塚
物件紹介
シティライフ赤塚は東京メトロ副都心線地下鉄赤塚駅から徒歩1分にあり、駅近で通勤通学に便利なマンションです。
このお部屋は2階以上に位置しているので通行人や周囲の住人からの視線が気になりにくく、建物のエントランスはオートロックがついているので防犯性が高くなっています。
人気の南向き・フローリングのお部屋。角部屋でもあるため、周囲の居住者の生活音も気になりにくい場所です。バス・トイレ別の仕様で、のんびりお風呂タイムも楽しめます。
建物にはエレベーターがついているので、重い荷物があっても安心。
このお部屋は2階以上に位置しているので通行人や周囲の住人からの視線が気になりにくく、建物のエントランスはオートロックがついているので防犯性が高くなっています。
人気の南向き・フローリングのお部屋。角部屋でもあるため、周囲の居住者の生活音も気になりにくい場所です。バス・トイレ別の仕様で、のんびりお風呂タイムも楽しめます。
建物にはエレベーターがついているので、重い荷物があっても安心。
お金・契約の情報
※「-」と表示されているものは、実際は料金が発生するものもございます。詳細はお問い合わせください。
| 家賃 | 18.8万円 | 管理費・共益費 | 1万円 |
|---|---|---|---|
| 敷金 | 18.8万円 | 礼金 | なし |
| フリーレント | あり | ||
| 入居決定でお祝い金最大100,000円 | |||
| 保証金 | - | 償却・敷引 | - |
| 住宅保険料 | - | 更新料 | - |
| 保証会社利用 | 必須 | 保証会社名 | - |
| 保証会社費用 | - | 保証会社備考 | 保証会社利用必 クレデンス 初回保証料:賃料等の50%、引き落とし手数料550円(税込み)1年目以降更新保証料10000円 |
| 契約形態 | - | 契約期間 | - |
| 入居・引渡期間 | 即時 | 現況 | - |
| 契約備考 | 2年未満解約時、短期解約違約金あり。※住戸により床・建具、住設備のカラー及び仕様は異なるため現況有姿となります。鍵交換費用あり。クリーニング費用退去時精算。お客様のご要望に応じてご自宅でもLINEなどのリモート内見を利用して、ご来店時と変わらずスタッフに相談しながらお部屋探しができます。またIT重説や郵送契約で、来店せずに契約手続きまでサポートすることができます。お気軽にご相談ください。 2LDK フリーレント1ヶ月詳細はお問い合わせください。 普通借家2年 損保【1.8万円2年】 バストイレ別、バルコニー、エアコン、ガスコンロ対応、クロゼット、フローリング、オートロック、室内洗濯置、陽当り良好、シューズボックス、角住戸、温水洗浄便座、脱衣所、エレベーター、洗面所独立、洗面化粧台、即入居可、礼金不要、2面採光、最上階、3口以上コンロ、全居室洋室、敷金1ヶ月、全居室フローリング、玄関ホール、2沿線利用可、駅まで平坦、フリーレント、エアコン全室、エアコン3台、クロゼット2ヶ所、平坦地、3駅以上利用可、駅徒歩5分以内、上階無し、南西向き、LDK12畳以上、都市ガス、洗面所にドア、保証会社利用可、通風良好 | ||
部屋の情報
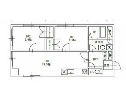
| 間取り | 2LDK | 専有面積 | 58.32m2 |
|---|---|---|---|
| 所在階 / 向き | 5階 / 南西 | バルコニー面積 | - |
| 水道 / ガス | - | ||
| 設備 | バス・トイレ別、2階以上、オートロック、エアコン、エレベーター、温水洗浄便座、南向き、角部屋、バルコニー、フローリング、洗髪洗面化粧台、2口コンロ、コンロ:ガス、洗濯機:室内 | ||
| 当社物件ID | 159783778 | ||
建物の情報
| 建物名 | シティライフ赤塚 | ||
|---|---|---|---|
| 所在地 | 東京都板橋区赤塚新町 | ||
| 交通 | 東京メトロ副都心線 地下鉄赤塚駅 徒歩1分 東京メトロ有楽町線 地下鉄赤塚駅 徒歩1分 東武東上線 下赤塚駅 徒歩4分 | ||
| 階数 | 5階建 | 総戸数 | - |
| 築年月 | 1992年07月 / 築34年 | エレベーター | あり |
| 駐車場 | なし | バイク置き場 | - |
| 駐輪場 | - | 管理人/管理会社 | - |
| 周辺環境 | その他 板橋区立赤塚小学校(小学校)まで650m その他 練馬区立光が丘第一中学校(中学校)まで2574m その他 ワークマンプラス練馬北町店(ショッピングセンター)まで1393m その他 コモディイイダ赤塚新町店(スーパー)まで371m その他 デイリーヤマザキ板橋成増店(コンビニ)まで461m その他 どらっぐぱぱす赤塚新町店(ドラッグストア)まで410m | ||
| 建物種別 | マンション | 建物構造 | RC(鉄筋コンクリート) |
この部屋の取扱い不動産会社
| 会社名 | (有)板橋ハウジング板橋駅前店(SUUMO経由) | ||
|---|---|---|---|
| 所在地 | 東京都板橋区板橋1-10-11 モリオン板橋1階 | 交通 | - |
| 営業時間 | 9:30~18:30 | 定休日 | 年末年始 |
| 免許番号 | 東京都知事80586 | 取引態様 | 仲介 |
| 不動産会社管理番号 | 100470232852 | 当社管理番号 | 89 |
| 所属団体 | (公社)全日本不動産協会東京都本部会員 | ||
| 公正取引協議会 | (公社)首都圏不動産公正取引協議会加盟 | ||
| 取扱い物件情報 | 物件詳細へ | ||
※各種情報と現状に差異がある場合は、現状優先となります。問い合わせをすることで、より詳しい条件、情報を確認する事ができます。
提供:(有)板橋ハウジング板橋駅前店(SUUMO経由)
この物件が気になったら掲載期限まであと7日
シティライフ赤塚に条件(家賃・エリア)が近い物件一覧
| 写真 | 家賃 管理費等 | 敷金 礼金 | 間取り 専有面積 | 築年数 | 最寄り駅 所在地 | キープ | 詳細 |
|---|---|---|---|---|---|---|---|
マンション WEAVE BASE ITABASHI HONCHO 板橋本(1LDK/8階) | |||||||
![]() | 18万円 1.5万円 | なし なし | 1LDK 36.73m2 | 築1年 | 東京都三田線 板橋本町駅 徒歩7分 東京都三田線 本蓮沼駅 徒歩10分 東京都板橋区清水町 | 詳細を見る | |
一戸建て 山手線 大塚駅(東京) 徒歩8分 築62年(1LDK) | |||||||
![]() | 15.8万円 なし | 15.8万円 15.8万円 | 1LDK 36.45m2 | 築62年 | 山手線 大塚駅(東京) 徒歩8分 東京都豊島区北大塚2丁目 | 詳細を見る | |
マンション コーラルハイツ蓮根II(1SLDK/1階) | |||||||
![]() | 12万円 8,000円 | 12万円 なし | 1SLDK 41.2m2 | 築46年 | 都営三田線 蓮根駅 徒歩7分 都営三田線 志村三丁目駅 徒歩10分 都営三田線 西台駅 徒歩18分 東京都板橋区坂下 | 詳細を見る | |
マンション SYFORME NEXT IKEBUKURO ウエスト(1LDK/3階) | |||||||
![]() | 23.95万円 1.2万円 | なし なし | 1LDK 39.58m2 | 築2年 | 東京メトロ有楽町線 要町駅 徒歩3分 東京メトロ副都心線 要町駅 徒歩3分 東京都豊島区要町 | 詳細を見る | |
マンション STADT NERIMA-KASUGACHO(2LDK/2階) | |||||||
![]() | 19.2万円 1.15万円 | なし 19.2万円 | 2LDK 66.54m2 | 築1年 | 都営大江戸線 練馬春日町駅 徒歩8分 西武池袋線 中村橋駅 徒歩20分 都営大江戸線 光が丘駅 徒歩21分 東京都練馬区高松 | 詳細を見る | |
マンション スターライトシティ小茂根(2DK/2階) | |||||||
![]() | 13.3万円 1.5万円 | なし なし | 2DK 38.88m2 | 築36年 | 東京メトロ有楽町線 小竹向原駅 徒歩7分 西武有楽町線 新桜台駅 徒歩15分 西武池袋線 江古田駅 徒歩19分 東京都板橋区小茂根 | 詳細を見る | |
マンション フリーダム光が丘II(2LDK/4階) | |||||||
![]() | 15万円 1万円 | なし 15万円 | 2LDK 61.1m2 | 築31年 | 都営大江戸線 光が丘駅 徒歩11分 東京メトロ有楽町線 地下鉄成増駅 徒歩33分 西武池袋線 石神井公園駅 徒歩34分 東京都練馬区高松 | 詳細を見る | |








