賃貸マンション
ルーデンス常盤台IIIの賃貸物件情報(1K/2階)
| 家賃 | 管理費等 | 敷金 | 礼金 | 間取り | 専有面積 |
|---|---|---|---|---|---|
| 10.2万円 | 1.2万円 | 10.2万円 | 20.4万円 | 1K | 21.53m2 |
入居決定でお祝い金最大100,000円
- 保証金
- -
- 償却・敷引
- -
- 築年数
- 築3年
- 所在階
- 2階
- 向き
- 南西
Point
共用部には宅配ボックスを設置しているため、急なお出かけや不在の際にも荷物を受け取ることが可能です。室内設備は浴室乾燥機・洗面化粧台など充実した設備を備え付けています。
提供:ハウス・トゥ・ハウス・ネットサービス(株)板橋区役所前店(SUUMO経由)

詳細情報 ルーデンス常盤台III
物件紹介
ルーデンス常盤台IIIは東武東上線ときわ台駅から徒歩4分にあり、駅近で通勤通学に便利なマンションです。
このお部屋は2階以上に位置しているので、通行人や周囲の住人からの視線が気になりにくく、防犯面でも安心。建物のエントランスはオートロックがついており、インターホンにはTVモニタもついているため、相手の顔を確認してから来客対応することができます。
人気の南向きのお部屋。また、フローリングなのでお掃除もラクラク。キッチンはシステムキッチン仕様になっていますので、お料理好きの方にもぴったり。バス・トイレは別なので、のんびりお風呂タイムも楽しめるでしょう。また、雨の日でも浴室乾燥機を使えば、お洗濯も問題ありません。
通信設備面では、インターネットが無料で使えるので、月々の出費を抑えられるのも魅力です(別途工事等が必要な場合あり)。
共用部には宅配ボックスが設定されているので、不在の時にも荷物を受け取ることができます。
このお部屋は2階以上に位置しているので、通行人や周囲の住人からの視線が気になりにくく、防犯面でも安心。建物のエントランスはオートロックがついており、インターホンにはTVモニタもついているため、相手の顔を確認してから来客対応することができます。
人気の南向きのお部屋。また、フローリングなのでお掃除もラクラク。キッチンはシステムキッチン仕様になっていますので、お料理好きの方にもぴったり。バス・トイレは別なので、のんびりお風呂タイムも楽しめるでしょう。また、雨の日でも浴室乾燥機を使えば、お洗濯も問題ありません。
通信設備面では、インターネットが無料で使えるので、月々の出費を抑えられるのも魅力です(別途工事等が必要な場合あり)。
共用部には宅配ボックスが設定されているので、不在の時にも荷物を受け取ることができます。
お金・契約の情報
※「-」と表示されているものは、実際は料金が発生するものもございます。詳細はお問い合わせください。
| 家賃 | 10.2万円 | 管理費・共益費 | 1.2万円 |
|---|---|---|---|
| 敷金 | 10.2万円 | 礼金 | 20.4万円 |
| 入居決定でお祝い金最大100,000円 | |||
| 保証金 | - | 償却・敷引 | - |
| 住宅保険料 | - | 更新料 | - |
| 保証会社利用 | 必須 | 保証会社名 | - |
| 保証会社費用 | - | 保証会社備考 | 保証会社利用必 月額総賃料の70%(最低保証料20 000円) 月次保証料:月額総賃料の1.5% |
| 契約形態 | 定期借家 | 契約期間 | 2年 |
| 入居・引渡期間 | - | 現況 | - |
| 契約備考 | 短期解約違約金:1年未満2ヶ月。解約予告:2ヶ月前。再契約手数料:新賃料の1.5ヶ月料理中や就寝中のように荷物を直接受け取れないときは、後で宅配ボックスから受け取ることができます。室内設備は浴室乾燥機・洗面化粧台などが揃っており、とても充実しています。日々の暮らしに安心が欲しい方には、オートロック付きの物件がおすすめです。 合計6.05万円(内訳:プレミアデスク2.2万円鍵交換代3.85万円) 1K 定期借家2年 損保【2万円2年】 バストイレ別、エアコン、クロゼット、フローリング、TVインターホン、浴室乾燥機、オートロック、シューズボックス、温水洗浄便座、脱衣所、洗面所独立、洗面化粧台、2口コンロ、駐輪場、宅配ボックス、IHクッキングヒーター、ネット使用料不要、南西向き、都市ガス、IT重説対応物件、初期費用カード決済可 入居日:'26年4月中旬 | ||
部屋の情報
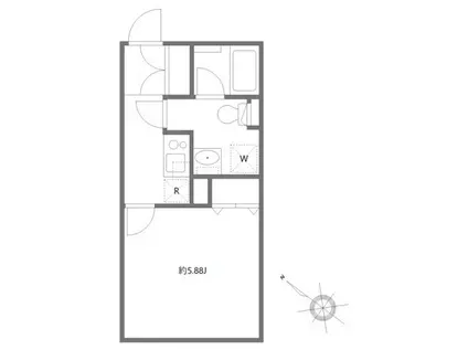
| 間取り | 1K | 専有面積 | 21.53m2 |
|---|---|---|---|
| 所在階 / 向き | 2階 / 南西 | バルコニー面積 | - |
| 水道 / ガス | - | ||
| 設備 | バス・トイレ別、2階以上、オートロック、テレビドアホン、宅配ボックス、浴室乾燥機、インターネット対応、エアコン、温水洗浄便座、南向き、フローリング、洗髪洗面化粧台、2口コンロ、コンロ:IH、インターネット使用料無料 | ||
| 当社物件ID | 156867037 | ||
建物の情報
| 建物名 | ルーデンス常盤台III | ||
|---|---|---|---|
| 所在地 | 東京都板橋区南常盤台 | ||
| 交通 | 東武東上線 ときわ台駅(東京) 徒歩4分 東武東上線 中板橋駅 徒歩14分 東京メトロ有楽町線 小竹向原駅 徒歩25分 | ||
| 階数 | 4階建 | 総戸数 | 15戸 |
| 築年月 | 2023年11月 / 築3年 | エレベーター | - |
| 駐車場 | なし | バイク置き場 | - |
| 駐輪場 | あり | 管理人/管理会社 | - |
| 周辺環境 | その他 板橋警察署 東山町交番(警察署・交番)まで194m その他 セブンイレブン 板橋南常盤台1丁目店(コンビニ)まで204m その他 よしや 常盤台店(スーパー)まで336m その他 EQUiA(エキア)ときわ台(ショッピングセンター)まで549m その他 水久保公園(公園)まで745m その他 常盤台外科病院(病院)まで944m | ||
| 建物種別 | マンション | 建物構造 | RC(鉄筋コンクリート) |
この部屋の取扱い不動産会社
| 会社名 | ハウス・トゥ・ハウス・ネットサービス(株)板橋店(SUUMO経由) | ||
|---|---|---|---|
| 所在地 | 東京都板橋区板橋1-20-8 | 交通 | - |
| 営業時間 | 10時~18時30分(1月~3月9:30~) | 定休日 | 水曜日 (1月~3月無休) |
| 免許番号 | 国土交通大臣7400 | 取引態様 | 仲介 |
| 不動産会社管理番号 | 100492147097 | 当社管理番号 | 89 |
| 所属団体 | (公社)全日本不動産協会東京都本部会員 | ||
| 公正取引協議会 | (公社)首都圏不動産公正取引協議会加盟 | ||
| 取扱い物件情報 | 物件詳細へ | ||
※各種情報と現状に差異がある場合は、現状優先となります。問い合わせをすることで、より詳しい条件、情報を確認する事ができます。
提供:ハウス・トゥ・ハウス・ネットサービス(株)板橋店(SUUMO経由)
この物件が気になったら掲載期限まであと12日
ルーデンス常盤台IIIに条件(家賃・エリア)が近い物件一覧
| 写真 | 家賃 管理費等 | 敷金 礼金 | 間取り 専有面積 | 築年数 | 最寄り駅 所在地 | キープ | 詳細 |
|---|---|---|---|---|---|---|---|
マンション ロッコーオリオン(1K/4階) | |||||||
![]() | 8.5万円 3,500円 | なし 17万円 | 1K 26.87m2 | 築14年 | 都営三田線 蓮根駅 徒歩10分 都営三田線 西台駅 徒歩12分 都営三田線 志村三丁目駅 徒歩16分 東京都板橋区蓮根 | 詳細を見る | |
マンション ワコー第三マンション(1DK/7階) | |||||||
![]() | 10.2万円 3,000円 | 10.2万円 なし | 1DK 34.56m2 | 築52年 | 東京都三田線 志村坂上駅 徒歩7分 東京都板橋区小豆沢3丁目 | 詳細を見る | |
マンション ALTERNA東池袋(2K/7階) | |||||||
![]() | 15.3万円 1万円 | なし なし | 2K 25.74m2 | 築4年 | 東京メトロ有楽町線 東池袋駅 徒歩3分 JR山手線 池袋駅 徒歩13分 西武池袋線 池袋駅 徒歩13分 東京都豊島区南池袋 | 詳細を見る | |
アパート J-ARC上石神井(1K/3階) | |||||||
![]() | 13万円 1.1万円 | なし 13万円 | 1K 26.83m2 | 築1年 | 西武新宿線 上石神井駅 徒歩4分 西武新宿線 上井草駅 徒歩16分 西武新宿線 武蔵関駅 徒歩25分 東京都練馬区上石神井 | 詳細を見る | |
マンション メゾン・ボヌール大泉学園 303(1LDK/3階) | |||||||
![]() | 9.4万円 7,000円 | 9.4万円 9.4万円 | 1LDK 41.7m2 | 築4年 | 西武池袋線 大泉学園駅 徒歩44分 東武東上線 和光市駅 徒歩46分 東京メトロ有楽町線 地下鉄成増駅 徒歩58分 東京都練馬区大泉学園町 | 詳細を見る | |
マンション GARDEN LORD(1K/1階) | |||||||
![]() | 7万円 4,000円 | 7万円 なし | 1K 21.8m2 | 築26年 | 西武池袋線 大泉学園駅 徒歩6分 西武池袋線 保谷駅 徒歩24分 西武池袋線 石神井公園駅 徒歩28分 東京都練馬区東大泉 | 詳細を見る | |
アパート ハーモニーテラス大山西町(ワンルーム/2階) | |||||||
![]() | 6.2万円 4,000円 | なし 6.2万円 | ワンルーム 11.04m2 | 築9年 | 東京メトロ有楽町線 千川駅 徒歩10分 東武東上線 大山駅(東京) 徒歩13分 東京メトロ有楽町線 小竹向原駅 徒歩17分 東京都板橋区大山西町 | 詳細を見る | |
アパート スカイノッツ北赤羽(1LDK/3階) | |||||||
![]() | 14.95万円 3,900円 | なし 14.95万円 | 1LDK 43.37m2 | 新築 | JR埼京線 浮間舟渡駅 徒歩11分 JR埼京線 北赤羽駅 徒歩15分 都営三田線 志村坂上駅 徒歩29分 東京都北区浮間 | 詳細を見る | |


/105x80-f1-q70-wp1)





