賃貸マンション
グランリーヴェル川崎ウエストの賃貸物件情報(1K/5階)
| 家賃 | 管理費等 | 敷金 | 礼金 | 間取り | 専有面積 |
|---|---|---|---|---|---|
| 8.35万円 | 1万円 | なし | 8.35万円 | 1K | 25.03m2 |
入居決定でお祝い金最大100,000円
- 保証金
- -
- 償却・敷引
- -
- 築年数
- 築18年
- 所在階
- 5階
- 向き
- 東
Point
賃貸のことなら日商ベックス川崎駅前店にご相談ください♪■非対面にて契約締結可能■非対面にてご対応可能★VR内見・セルフ内見・オンライン契約承ります♪
提供:(株)アンビション・バロー川崎店(SUUMO経由)

詳細情報 グランリーヴェル川崎ウエスト
物件紹介
グランリーヴェル川崎ウエストはJR南武線矢向駅から徒歩9分にあり、駅近で通勤通学に便利なマンションです。
このお部屋は2階以上に位置しているので、通行人や周囲の住人からの視線が気になりにくく、防犯面でも安心。建物のエントランスはオートロックがついており、インターホンにはTVモニタもついているため、相手の顔を確認してから来客対応することができます。
おしゃれなデザイナーズ物件!人気の角部屋で周囲の居住者の生活音も気になりにくく、また、フローリングのお部屋なのでお掃除もラクラク。キッチンはシステムキッチン仕様になっていますので、お料理好きの方にもぴったり。バス・トイレは別なので、のんびりお風呂タイムも楽しめるでしょう。また、雨の日でも浴室乾燥機を使えば、お洗濯も問題ありません。
通信設備面では、インターネットが無料で使えるので、月々の出費を抑えられるのも魅力です。また、BSアンテナがありCATVにも対応しているので、おうち時間も充実するでしょう(別途工事、BS・CATVの契約料等が必要な場合あり)。
建物にはエレベーターがついているので、重い荷物があっても安心。共用部には宅配ボックスが設定されているので、不在の時にも荷物を受け取ることができます。また、ペット飼育の相談ができますので、あなたの大切な家族の一員も快適に暮らせるか、ぜひ確認してみてください。
このお部屋は2階以上に位置しているので、通行人や周囲の住人からの視線が気になりにくく、防犯面でも安心。建物のエントランスはオートロックがついており、インターホンにはTVモニタもついているため、相手の顔を確認してから来客対応することができます。
おしゃれなデザイナーズ物件!人気の角部屋で周囲の居住者の生活音も気になりにくく、また、フローリングのお部屋なのでお掃除もラクラク。キッチンはシステムキッチン仕様になっていますので、お料理好きの方にもぴったり。バス・トイレは別なので、のんびりお風呂タイムも楽しめるでしょう。また、雨の日でも浴室乾燥機を使えば、お洗濯も問題ありません。
通信設備面では、インターネットが無料で使えるので、月々の出費を抑えられるのも魅力です。また、BSアンテナがありCATVにも対応しているので、おうち時間も充実するでしょう(別途工事、BS・CATVの契約料等が必要な場合あり)。
建物にはエレベーターがついているので、重い荷物があっても安心。共用部には宅配ボックスが設定されているので、不在の時にも荷物を受け取ることができます。また、ペット飼育の相談ができますので、あなたの大切な家族の一員も快適に暮らせるか、ぜひ確認してみてください。
お金・契約の情報
※「-」と表示されているものは、実際は料金が発生するものもございます。詳細はお問い合わせください。
| 家賃 | 8.35万円 | 管理費・共益費 | 1万円 |
|---|---|---|---|
| 敷金 | なし | 礼金 | 8.35万円 |
| 入居決定でお祝い金最大100,000円 | |||
| 保証金 | - | 償却・敷引 | - |
| 住宅保険料 | - | 更新料 | - |
| 保証会社利用 | 必須 | 保証会社名 | - |
| 保証会社費用 | - | 保証会社備考 | 保証会社利用必 初回契約時:80%、月額:1%、(初回)総賃料の80%~ (月額)総賃料の1%~(決済サービス料)500円(税抜)/月 |
| 契約形態 | - | 契約期間 | - |
| 入居・引渡期間 | 相談 | 現況 | - |
| 入居可能条件 | ペット相談 | ||
| 契約備考 | JR南武線川崎駅徒歩15分/短期解約違約、指定の引越業者あり。指定の電*会社あり 合計6.05万円(内訳:契約事務手数料 5500円税込 室内消毒代 16500円税込 鍵交換代 38500円税込) にじいろサポート24/保険付き 2200円/月額 更新料 1.5ヶ月/更新手数料 5500円 1K 二人入居可/ペット相談 普通借家2年 バストイレ別、バルコニー、エアコン、ガスコンロ対応、クロゼット、フローリング、TVインターホン、浴室乾燥機、オートロック、室内洗濯置、陽当り良好、シューズボックス、システムキッチン、角住戸、温水洗浄便座、脱衣所、エレベーター、洗面所独立、洗面化粧台、2口コンロ、駐輪場、宅配ボックス、CATV、敷金不要、防犯カメラ、ペット相談、分譲賃貸、保証人不要、二人入居相談、バイク置場、全居室フローリング、ディンプルキー、ネット専用回線、駅まで平坦、ネット使用料不要、眺望良好、始発駅、3駅以上利用可、3沿線以上利用可、駅徒歩10分以内、24時間ゴミ出し可、敷地内ごみ置き場、都市ガス、礼金1ヶ月、IT重説対応物件、初期費用カード決済可 | ||
部屋の情報
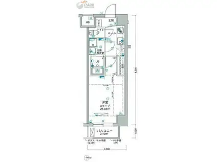
| 間取り | 1K | 専有面積 | 25.03m2 |
|---|---|---|---|
| 所在階 / 向き | 5階 / 東 | バルコニー面積 | - |
| 水道 / ガス | - | ||
| 設備 | バス・トイレ別、2階以上、オートロック、テレビドアホン、宅配ボックス、浴室乾燥機、インターネット対応、システムキッチン、エアコン、エレベーター、温水洗浄便座、角部屋、バルコニー、フローリング、洗髪洗面化粧台、2口コンロ、コンロ:ガス、CATV、インターネット使用料無料、洗濯機:室内 | ||
| 当社物件ID | 25698841 | ||
建物の情報
| 建物名 | グランリーヴェル川崎ウエスト | ||
|---|---|---|---|
| 所在地 | 神奈川県川崎市幸区神明町 | ||
| 交通 | JR南武線 矢向駅 徒歩9分 JR東海道本線 川崎駅 徒歩15分 京急本線 京急川崎駅 徒歩17分 | ||
| 階数 | 10階建 | 総戸数 | - |
| 築年月 | 2008年02月 / 築18年 | エレベーター | あり |
| 駐車場 | なし | バイク置き場 | あり |
| 駐輪場 | あり | 管理人/管理会社 | - |
| 周辺環境 | その他 パウかわさき(ショッピングセンター)まで83m その他 まいばすけっと川崎中幸町3丁目店(スーパー)まで943m その他 セブンイレブン川崎神明町店(コンビニ)まで425m その他 マツモトキヨシ尻手駅前店(ドラッグストア)まで966m | ||
| 建物種別 | マンション | 建物構造 | RC(鉄筋コンクリート) |
この部屋の取扱い不動産会社
| 会社名 | リロの不動産(株)日商ベックス川崎駅前店(SUUMO経由) | ||
|---|---|---|---|
| 所在地 | 神奈川県川崎市川崎区砂子2-3-3 KAGAYA M BLD 2階 | 交通 | - |
| 営業時間 | 9:00-18:00 | 定休日 | 水曜日 |
| 免許番号 | 国土交通大臣3273 | 取引態様 | 仲介 |
| 不動産会社管理番号 | 100484475369 | 当社管理番号 | 89 |
| 所属団体 | (一社)全国住宅産業協会会員 | ||
| 公正取引協議会 | (公社)首都圏不動産公正取引協議会加盟 | ||
| 取扱い物件情報 | 物件詳細へ | ||
※各種情報と現状に差異がある場合は、現状優先となります。問い合わせをすることで、より詳しい条件、情報を確認する事ができます。
提供:リロの不動産(株)日商ベックス川崎駅前店(SUUMO経由)
この物件が気になったら掲載期限まであと11日
グランリーヴェル川崎ウエストに条件(家賃・エリア)が近い物件一覧
| 写真 | 家賃 管理費等 | 敷金 礼金 | 間取り 専有面積 | 築年数 | 最寄り駅 所在地 | キープ | 詳細 |
|---|---|---|---|---|---|---|---|
マンション OMNIA横濱阪東橋(1K/8階) | |||||||
![]() | 8.5万円 1万円 | なし なし | 1K 20.01m2 | 築1年 | 横浜市ブルーライン 阪東橋駅 徒歩7分 神奈川県横浜市南区浦舟町5丁目 | 詳細を見る | |
マンション サンセール(ワンルーム/2階) | |||||||
![]() | 6.3万円 6,000円 | 6.3万円 なし | ワンルーム 22.5m2 | 築27年 | 東急田園都市線 長津田駅 徒歩2分 東急田園都市線 田奈駅 徒歩15分 東急田園都市線 つくし野駅 徒歩15分 神奈川県横浜市緑区長津田 | 詳細を見る | |
マンション ファーストS・S(2DK/4階) | |||||||
![]() | 7.5万円 なし | 7.5万円 なし | 2DK 37.86m2 | 築30年 | JR横浜線 十日市場駅(神奈川) 徒歩1分 東急田園都市線 青葉台駅 徒歩24分 東急田園都市線 田奈駅 徒歩25分 神奈川県横浜市緑区十日市場町 | 詳細を見る | |
マンション ヒルトップカブラギ(1K/3階) | |||||||
![]() | 6.2万円 なし | なし なし | 1K 22.68m2 | 築35年 | 東急田園都市線 市が尾駅 徒歩6分 東急田園都市線 江田駅(神奈川) 徒歩13分 神奈川県横浜市青葉区市ケ尾町 | 詳細を見る | |
マンション ヴェルト新川崎(1K/6階) | |||||||
![]() | 8.2万円 1万円 | 8.2万円 8.2万円 | 1K 22.68m2 | 築19年 | JR横須賀線 新川崎駅 徒歩3分 JR南武線 鹿島田駅 徒歩4分 東急東横線 日吉駅(神奈川) 徒歩38分 神奈川県川崎市幸区鹿島田 | 詳細を見る | |
アパート 富岡西3丁目アパート(1K/1階) | |||||||
![]() | 5.9万円 4,000円 | なし なし | 1K 22.14m2 | 新築 | 京急本線 京急富岡駅 徒歩10分 京急本線 能見台駅 徒歩21分 シーサイドライン 南部市場駅 徒歩28分 神奈川県横浜市金沢区富岡西 | 詳細を見る | |
マンション REVEL(1K/1階) | |||||||
![]() | 8.1万円 3,000円 | なし 16.2万円 | 1K 26.08m2 | 築3年 | 相鉄本線 和田町駅 徒歩8分 相鉄本線 星川駅(神奈川) 徒歩10分 相鉄本線 上星川駅 徒歩19分 神奈川県横浜市保土ケ谷区星川 | 詳細を見る | |
マンション パールハイツ菅田第2(3DK/2階) | |||||||
![]() | 7万円 なし | 7万円 なし | 3DK 54m2 | 築36年 | JR横浜線 小机駅 徒歩27分 JR横浜線 鴨居駅 徒歩32分 神奈川県横浜市神奈川区菅田町 | 詳細を見る | |

/105x80-f1-q70-wp1)






