賃貸マンション
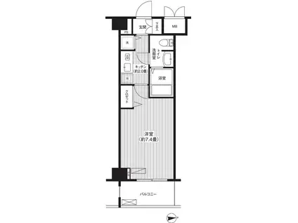
フォルマーレ新中野の賃貸物件情報(1K/2階)
| 家賃 | 管理費等 | 敷金 | 礼金 | 間取り | 専有面積 |
|---|---|---|---|---|---|
| 10.2万円 | 5,000円 | 10.2万円 | 10.2万円 | 1K | 22.9m2 |
入居決定でお祝い金最大100,000円
- 保証金
- -
- 償却・敷引
- -
- 築年数
- 築23年
- 所在階
- 2階
- 向き
- 東
Point
◯最寄り駅から徒歩2分の好立地◯JR中央線の中野駅も徒歩12分で利用可能です◯周辺コンビニ、スーパーなどが多く生活しやすい環境です
提供:(株)レオコーポレーション(SUUMO経由)

詳細情報 フォルマーレ新中野
物件紹介
フォルマーレ新中野は東京メトロ丸ノ内線新中野駅から徒歩2分にあり、駅近で通勤通学に便利なマンションです。
このお部屋は2階以上に位置しているので、通行人や周囲の住人からの視線が気になりにくく、防犯面でも安心。建物のエントランスはオートロックがついており、インターホンにはTVモニタもついているため、相手の顔を確認してから来客対応することができます。
フローリングのお部屋なのでお掃除もラクラク。キッチンはシステムキッチン仕様になっていますので、お料理好きの方にもぴったり。バス・トイレは別なので、のんびりお風呂タイムも楽しめるでしょう。また、雨の日でも浴室乾燥機を使えば、お洗濯も問題ありません。
通信設備面では、インターネット接続が可能です。また、BSアンテナ・CSアンテナがありCATVにも対応しているので、おうち時間も充実するでしょう(別途工事、契約料が必要な場合あり)。
建物にはエレベーターがついているので、重い荷物があっても安心。共用部には宅配ボックスが設定されているので、不在の時にも荷物を受け取ることができます。
このお部屋は2階以上に位置しているので、通行人や周囲の住人からの視線が気になりにくく、防犯面でも安心。建物のエントランスはオートロックがついており、インターホンにはTVモニタもついているため、相手の顔を確認してから来客対応することができます。
フローリングのお部屋なのでお掃除もラクラク。キッチンはシステムキッチン仕様になっていますので、お料理好きの方にもぴったり。バス・トイレは別なので、のんびりお風呂タイムも楽しめるでしょう。また、雨の日でも浴室乾燥機を使えば、お洗濯も問題ありません。
通信設備面では、インターネット接続が可能です。また、BSアンテナ・CSアンテナがありCATVにも対応しているので、おうち時間も充実するでしょう(別途工事、契約料が必要な場合あり)。
建物にはエレベーターがついているので、重い荷物があっても安心。共用部には宅配ボックスが設定されているので、不在の時にも荷物を受け取ることができます。
お金・契約の情報
※「-」と表示されているものは、実際は料金が発生するものもございます。詳細はお問い合わせください。
| 家賃 | 10.2万円 | 管理費・共益費 | 5,000円 |
|---|---|---|---|
| 敷金 | 10.2万円 | 礼金 | 10.2万円 |
| 入居決定でお祝い金最大100,000円 | |||
| 保証金 | - | 償却・敷引 | - |
| 住宅保険料 | - | 更新料 | - |
| 保証会社利用 | 必須 | 保証会社名 | - |
| 保証会社費用 | - | 保証会社備考 | 保証会社利用必 初回保証料:月額賃料等総額の40%~ 月次保証料:月額賃料等総額の1%/月、継続保証料:更新料の1%(更新時) |
| 契約形態 | - | 契約期間 | - |
| 入居・引渡期間 | 相談 | 現況 | - |
| 契約備考 | 合計2.75万円(内訳:鍵交換費用22000円/契約事務手数料5500円) 1K 事務所利用不可 普通借家2年 損保【2万円2年】 バストイレ別、エアコン、ガスコンロ対応、クロゼット、フローリング、TVインターホン、浴室乾燥機、オートロック、室内洗濯置、エレベーター、洗面所独立、洗面化粧台、駐輪場、宅配ボックス、CATV、BS・CS、防犯カメラ、保証人不要、敷金1ヶ月、2沿線利用可、仲手0.55ヶ月、3駅以上利用可、駅徒歩5分以内、礼金1ヶ月、IT重説対応物件 | ||
部屋の情報
| 間取り | 1K | 専有面積 | 22.9m2 |
|---|---|---|---|
| 所在階 / 向き | 2階 / 東 | バルコニー面積 | - |
| 水道 / ガス | - | ||
| 設備 | バス・トイレ別、2階以上、オートロック、テレビドアホン、宅配ボックス、浴室乾燥機、エアコン、エレベーター、フローリング、洗髪洗面化粧台、コンロ:ガス、CATV、CSアンテナ、BSアンテナ、洗濯機:室内 | ||
| 当社物件ID | 81835 | ||
建物の情報
| 建物名 | フォルマーレ新中野 | ||
|---|---|---|---|
| 所在地 | 東京都中野区中央 | ||
| 交通 | 東京メトロ丸ノ内線 新中野駅 徒歩2分 JR総武線 中野駅(東京) 徒歩12分 東京メトロ丸ノ内線 中野富士見町駅 徒歩14分 | ||
| 階数 | 9階建 | 総戸数 | 36戸 |
| 築年月 | 2004年02月 / 築23年 | エレベーター | あり |
| 駐車場 | なし | バイク置き場 | - |
| 駐輪場 | あり | 管理人/管理会社 | - |
| 周辺環境 | その他 セブンイレブン 中野中央中野通り店(コンビニ)まで58m その他 まいばすけっと 新中野駅前店(スーパー)まで130m その他 サミットストア鍋屋横丁店(スーパー)まで470m | ||
| 建物種別 | マンション | 建物構造 | RC(鉄筋コンクリート) |
この部屋の取扱い不動産会社
| 会社名 | (株)レオコーポレーション(SUUMO経由) | ||
|---|---|---|---|
| 所在地 | 東京都文京区本郷1-15-6 MKビル | 交通 | - |
| 営業時間 | AM10:00~PM6:00 | 定休日 | 毎週水曜日 |
| 免許番号 | 東京都知事37883 | 取引態様 | 仲介 |
| 不動産会社管理番号 | 100487980704 | 当社管理番号 | 89 |
| 所属団体 | (公社)全日本不動産協会東京都本部会員 | ||
| 公正取引協議会 | (公社)首都圏不動産公正取引協議会加盟 | ||
| 取扱い物件情報 | 物件詳細へ | ||
※各種情報と現状に差異がある場合は、現状優先となります。問い合わせをすることで、より詳しい条件、情報を確認する事ができます。
提供:(株)レオコーポレーション(SUUMO経由)
この物件が気になったら掲載期限まであと11日
フォルマーレ新中野に条件(家賃・エリア)が近い物件一覧
| 写真 | 家賃 管理費等 | 敷金 礼金 | 間取り 専有面積 | 築年数 | 最寄り駅 所在地 | キープ | 詳細 |
|---|---|---|---|---|---|---|---|
アパート 第2秋元荘(2DK/2階) | |||||||
![]() | 6.5万円 なし | 6.5万円 6.5万円 | 2DK 34.68m2 | 築56年 | 西武池袋線 大泉学園駅 徒歩20分 西武新宿線 武蔵関駅 徒歩20分 西武新宿線 上石神井駅 徒歩23分 東京都練馬区石神井台 | 詳細を見る | |
アパート MOK-TERRCE DIMORA 練馬(1LDK/1階) | |||||||
![]() | 11.7万円 4,000円 | 11.7万円 11.7万円 | 1LDK 34.27m2 | 築1年 | 西武池袋・豊島線 練馬高野台駅 徒歩10分 東京都練馬区南田中2丁目 | 詳細を見る | |
マンション グレース目白(ワンルーム/2階) | |||||||
![]() | 7.3万円 なし | 7.3万円 7.3万円 | ワンルーム 25.2m2 | 築36年 | 東京メトロ副都心線 雑司が谷駅(東京メトロ) 徒歩2分 都電荒川線 鬼子母神前駅 徒歩4分 都電荒川線 都電雑司ケ谷駅 徒歩6分 東京都豊島区雑司が谷 | 詳細を見る | |
アパート 南台シティホーム(2K/1階) | |||||||
![]() | 9万円 3,000円 | 9万円 9万円 | 2K 34.5m2 | 築42年 | 京王線 笹塚駅 徒歩10分 京王新線 幡ケ谷駅 徒歩15分 東京メトロ丸ノ内線 方南町駅 徒歩17分 東京都中野区南台 | 詳細を見る | |
マンション GRAND ARC笹塚(1K/6階) | |||||||
![]() | 16万円 1万円 | 16万円 16万円 | 1K 29.15m2 | 築1年 | 京王線 笹塚駅 徒歩3分 東京メトロ千代田線 代々木上原駅 徒歩22分 東京メトロ丸ノ内線 方南町駅 徒歩23分 東京都渋谷区笹塚 | 詳細を見る | |
マンション INレジデンス代々木上原(1K/2階) | |||||||
![]() | 15.6万円 7,000円 | なし なし | 1K 31.45m2 | 築3年 | 東京メトロ千代田線 代々木上原駅 徒歩2分 小田急線 代々木八幡駅 徒歩12分 東京メトロ千代田線 代々木公園駅 徒歩14分 東京都渋谷区西原 | 詳細を見る | |
アパート クレスト練馬春日町(ワンルーム/2階) | |||||||
![]() | 6.8万円 3,000円 | なし なし | ワンルーム 22.2m2 | 築10年 | 都営大江戸線 練馬春日町駅 徒歩5分 東京都練馬区春日町 | 詳細を見る | |
マンション プライムメゾン方南町(1K/5階) | |||||||
![]() | 12.9万円 1万円 | 12.9万円 なし | 1K 25.23m2 | 築5年 | 東京メトロ丸ノ内線 方南町駅 徒歩4分 東京メトロ丸ノ内線 中野富士見町駅 徒歩13分 京王線 笹塚駅 徒歩24分 東京都中野区弥生町 | 詳細を見る | |



/105x80-f1-q70-wp1)





