賃貸マンション
CREST TAPP名古屋山王の賃貸物件情報(1DK/6階)
| 家賃 | 管理費等 | 敷金 | 礼金 | 間取り | 専有面積 |
|---|---|---|---|---|---|
| 6.53万円 | 1万円 | なし | なし | 1DK | 25.95m2 |
入居決定でお祝い金最大100,000円
- 保証金
- -
- 償却・敷引
- -
- 築年数
- 新築
- 所在階
- 6階
- 向き
- 北
Point
人気設備上位にランクイン!!オートロック付き物件です♪毎日の暮らしに安心感◎
提供:ルームセレクト八田店(株)洞口(SUUMO経由)

詳細情報 CREST TAPP名古屋山王
物件紹介
CREST TAPP名古屋山王は名鉄名古屋本線山王駅から徒歩9分にあり、駅近で通勤通学に便利なマンションです。
このお部屋は2階以上に位置しているので、通行人や周囲の住人からの視線が気になりにくく、防犯面でも安心。建物のエントランスはオートロックがついており、インターホンにはTVモニタもついているため、相手の顔を確認してから来客対応することができます。
バス・トイレ別の仕様で、のんびりお風呂タイムも楽しめます。また、浴室乾燥機を使えば、雨の日でもお洗濯は問題ありません。
通信設備面では、インターネットが無料で使えるので、月々の出費を抑えられるのも魅力です。また、CATVにも対応しているので、おうち時間も充実するでしょう(別途工事、CATVの契約料等が必要な場合あり)。
建物にはエレベーターがついているので、重い荷物があっても安心。共用部には宅配ボックスが設定されているので、不在の時にも荷物を受け取ることができます。また、ペット飼育の相談ができますので、あなたの大切な家族の一員も快適に暮らせるか、ぜひ確認してみてください。
このお部屋は2階以上に位置しているので、通行人や周囲の住人からの視線が気になりにくく、防犯面でも安心。建物のエントランスはオートロックがついており、インターホンにはTVモニタもついているため、相手の顔を確認してから来客対応することができます。
バス・トイレ別の仕様で、のんびりお風呂タイムも楽しめます。また、浴室乾燥機を使えば、雨の日でもお洗濯は問題ありません。
通信設備面では、インターネットが無料で使えるので、月々の出費を抑えられるのも魅力です。また、CATVにも対応しているので、おうち時間も充実するでしょう(別途工事、CATVの契約料等が必要な場合あり)。
建物にはエレベーターがついているので、重い荷物があっても安心。共用部には宅配ボックスが設定されているので、不在の時にも荷物を受け取ることができます。また、ペット飼育の相談ができますので、あなたの大切な家族の一員も快適に暮らせるか、ぜひ確認してみてください。
お金・契約の情報
※「-」と表示されているものは、実際は料金が発生するものもございます。詳細はお問い合わせください。
| 家賃 | 6.53万円 | 管理費・共益費 | 1万円 |
|---|---|---|---|
| 敷金 | なし | 礼金 | なし |
| 入居決定でお祝い金最大100,000円 | |||
| 保証金 | - | 償却・敷引 | - |
| 住宅保険料 | - | 更新料 | - |
| 保証会社利用 | 必須 | 保証会社名 | - |
| 保証会社費用 | - | 保証会社備考 | 保証会社利用必 クレディセゾン利用必須 初回保証料 月額総賃料の30% 年間更新料10,000円 |
| 契約形態 | - | 契約期間 | - |
| 入居・引渡期間 | - | 現況 | - |
| 入居可能条件 | ペット相談 | ||
| 契約備考 | 短期解約違約金有2ヵ月(1年未満)1ヵ月(1年以上2年未満) 定額補修費38500円/退去時更新料11000円24H駆けつけサービス:990円/月エアコンクリーニング退去時16,500円ペット飼育時、1匹につき敷金1ヶ月+賃料100円UP(小型犬・猫 合計2匹まで) 1DK ペット相談 損保【1.7万円2年】 バストイレ別、バルコニー、エアコン、ガスコンロ対応、シャワー付洗面台、TVインターホン、浴室乾燥機、オートロック、シューズボックス、温水洗浄便座、エレベーター、2口コンロ、宅配ボックス、CATV、光ファイバー、防犯カメラ、ペット相談、分譲賃貸、24時間緊急通報システム、2沿線利用可、ネット使用料不要、2駅利用可、3駅以上利用可、3沿線以上利用可、敷地内ごみ置き場、都市ガス、IT重説対応物件、初期費用カード決済可 入居日:'26年3月上旬 | ||
部屋の情報
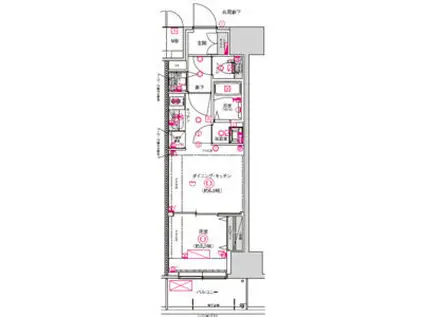
| 間取り | 1DK | 専有面積 | 25.95m2 |
|---|---|---|---|
| 所在階 / 向き | 6階 / 北 | バルコニー面積 | - |
| 水道 / ガス | - | ||
| 設備 | バス・トイレ別、2階以上、オートロック、テレビドアホン、宅配ボックス、浴室乾燥機、インターネット対応、エアコン、エレベーター、温水洗浄便座、バルコニー、2口コンロ、コンロ:ガス、CATV、インターネット使用料無料 | ||
| 当社物件ID | 160120258 | ||
建物の情報
| 建物名 | CREST TAPP名古屋山王 | ||
|---|---|---|---|
| 所在地 | 愛知県名古屋市中川区西日置 | ||
| 交通 | 名鉄名古屋本線 山王駅(愛知) 徒歩9分 あおなみ線 ささしまライブ駅 徒歩15分 地下鉄鶴舞線 大須観音駅 徒歩17分 | ||
| 階数 | 15階建 | 総戸数 | - |
| 築年月 | 2026年02月 / 新築 | エレベーター | あり |
| 駐車場 | なし | バイク置き場 | - |
| 駐輪場 | - | 管理人/管理会社 | - |
| 周辺環境 | その他 名古屋市立広見小学校(小学校)まで468m その他 名古屋市立山王中学校(中学校)まで1179m その他 ミニストップ 西日置店(コンビニ)まで293m その他 業務スーパー 福住店(スーパー)まで1121m その他 NTT西日本東海病院(病院)まで699m | ||
| 建物種別 | マンション | 建物構造 | RC(鉄筋コンクリート) |
この部屋の取扱い不動産会社
| 会社名 | ルームセレクト東別院店(株)洞口(SUUMO経由) | ||
|---|---|---|---|
| 所在地 | 愛知県名古屋市中区平和1-15-34 ヴィークブライト名古屋東別院1F | 交通 | - |
| 営業時間 | 10:00-18:30 | 定休日 | 毎週水曜日、年末年始 |
| 免許番号 | 国土交通大臣7901 | 取引態様 | 仲介 |
| 不動産会社管理番号 | 100480234367 | 当社管理番号 | 89 |
| 取扱い物件情報 | 物件詳細へ | ||
※各種情報と現状に差異がある場合は、現状優先となります。問い合わせをすることで、より詳しい条件、情報を確認する事ができます。
提供:ルームセレクト東別院店(株)洞口(SUUMO経由)
この物件が気になったら掲載期限まであと11日
CREST TAPP名古屋山王の空き部屋一覧
全部で29の空き部屋があります。
CREST TAPP名古屋山王に条件(家賃・エリア)が近い物件一覧
| 写真 | 家賃 管理費等 | 敷金 礼金 | 間取り 専有面積 | 築年数 | 最寄り駅 所在地 | キープ | 詳細 |
|---|---|---|---|---|---|---|---|
マンション メイクスWアート名駅南Ⅲ(1DK/7階) | |||||||
![]() | 6.93万円 8,000円 | なし なし | 1DK 25.9m2 | 築2年 | 名鉄名古屋本線 山王駅(愛知) 徒歩12分 名古屋市鶴舞線 大須観音駅 徒歩13分 名古屋臨海高速鉄道 ささしまライブ駅 徒歩13分 愛知県名古屋市中村区名駅南5丁目 | 詳細を見る | |
マンション 上前津寿ビル(2LDK/3階) | |||||||
![]() | 6.7万円 8,000円 | なし なし | 2LDK 44m2 | 築47年 | 地下鉄名城線 上前津駅 徒歩2分 地下鉄名城線 東別院駅 徒歩9分 地下鉄名城線 矢場町駅 徒歩12分 愛知県名古屋市中区上前津 | 詳細を見る | |
マンション メイクスアート名駅南Ⅳ(1LDK/13階) | |||||||
![]() | 8.4万円 8,000円 | なし なし | 1LDK 29.91m2 | 築1年 | 名古屋臨海高速鉄道 ささしまライブ駅 徒歩12分 名古屋市鶴舞線 大須観音駅 徒歩13分 名鉄名古屋本線 山王駅(愛知) 徒歩13分 愛知県名古屋市中村区名駅南3丁目 | 詳細を見る | |
マンション SK BUILDING10(ワンルーム/1階) | |||||||
![]() | 5.6万円 6,000円 | なし なし | ワンルーム 24.85m2 | 築14年 | 近鉄名古屋線 米野駅 徒歩3分 名古屋臨海高速鉄道 ささしまライブ駅 徒歩7分 名古屋市桜通線 太閤通駅 徒歩14分 愛知県名古屋市中村区大正町1丁目 | 詳細を見る | |
マンション プレサンス名駅南ブリエ(2K/9階) | |||||||
![]() | 9.34万円 8,340円 | なし なし | 2K 35.06m2 | 築1年 | 名古屋市東山線 名古屋駅 徒歩13分 愛知県名古屋市中村区名駅南3丁目 | 詳細を見る | |
マンション 大須寿ビル(1DK/7階) | |||||||
![]() | 4.5万円 6,500円 | なし なし | 1DK 30m2 | 築41年 | 名古屋市鶴舞線 大須観音駅 徒歩2分 愛知県名古屋市中区大須二丁目25番33号 | 詳細を見る | |
マンション シティライフ栄(1DK/7階) | |||||||
![]() | 5.3万円 8,000円 | なし なし | 1DK 35m2 | 築38年 | 地下鉄名城線 矢場町駅 徒歩7分 地下鉄東山線 栄駅(名古屋) 徒歩10分 地下鉄鶴舞線 伏見駅(愛知) 徒歩14分 愛知県名古屋市中区栄 | 詳細を見る | |
マンション エステムコート名古屋栄プレシャス(1K/9階) | |||||||
![]() | 6.55万円 8,370円 | なし なし | 1K 24m2 | 築7年 | 名古屋市鶴舞線 大須観音駅 徒歩4分 名古屋市東山線 伏見駅(愛知) 徒歩8分 名古屋市鶴舞線 上前津駅 徒歩20分 愛知県名古屋市中区栄1丁目 | 詳細を見る | |






/105x80-f1-q70-wp1)


