賃貸マンション
CREST TAPP名古屋山王の賃貸物件情報(1K/2階)
| 家賃 | 管理費等 | 敷金 | 礼金 | 間取り | 専有面積 |
|---|---|---|---|---|---|
| 6.21万円 | 1万円 | なし | なし | 1K | 25.53m2 |
入居決定でお祝い金最大100,000円
Point
名古屋市全域、周辺地域まとめてご案内いたします。お気軽にお問い合わせくださいませ!
提供:ホームメイトFC御器所駅前店エステートプラス(株)(SUUMO経由)

詳細情報 CREST TAPP名古屋山王
物件紹介
CREST TAPP名古屋山王は名鉄名古屋本線山王駅から徒歩9分にあり、駅近で通勤通学に便利なマンションです。
このお部屋は2階以上に位置しているので、通行人や周囲の住人からの視線が気になりにくく、防犯面でも安心。建物のエントランスはオートロックがついており、インターホンにはTVモニタもついているため、相手の顔を確認してから来客対応することができます。
おしゃれなデザイナーズ物件!フローリングのお部屋なのでお掃除もラクラク。室内には人気のウォークインクローゼットがありますので、たくさんの荷物も効率的に収納ができます。キッチンはシステムキッチン仕様になっていますので、お料理好きの方にもぴったり。バス・トイレは別なので、のんびりお風呂タイムも楽しめるでしょう。また、雨の日でも浴室乾燥機を使えば、お洗濯も問題ありません。
通信設備面では、インターネットが無料で使えるので、月々の出費を抑えられるのも魅力です。また、CATVにも対応しているので、おうち時間も充実するでしょう(別途工事、CATVの契約料等が必要な場合あり)。
建物にはエレベーターがついているので、重い荷物があっても安心。共用部には宅配ボックスが設定されているので、不在の時にも荷物を受け取ることができます。また、ペット飼育の相談ができますので、あなたの大切な家族の一員も快適に暮らせるか、ぜひ確認してみてください。
このお部屋は2階以上に位置しているので、通行人や周囲の住人からの視線が気になりにくく、防犯面でも安心。建物のエントランスはオートロックがついており、インターホンにはTVモニタもついているため、相手の顔を確認してから来客対応することができます。
おしゃれなデザイナーズ物件!フローリングのお部屋なのでお掃除もラクラク。室内には人気のウォークインクローゼットがありますので、たくさんの荷物も効率的に収納ができます。キッチンはシステムキッチン仕様になっていますので、お料理好きの方にもぴったり。バス・トイレは別なので、のんびりお風呂タイムも楽しめるでしょう。また、雨の日でも浴室乾燥機を使えば、お洗濯も問題ありません。
通信設備面では、インターネットが無料で使えるので、月々の出費を抑えられるのも魅力です。また、CATVにも対応しているので、おうち時間も充実するでしょう(別途工事、CATVの契約料等が必要な場合あり)。
建物にはエレベーターがついているので、重い荷物があっても安心。共用部には宅配ボックスが設定されているので、不在の時にも荷物を受け取ることができます。また、ペット飼育の相談ができますので、あなたの大切な家族の一員も快適に暮らせるか、ぜひ確認してみてください。
お金・契約の情報
※「-」と表示されているものは、実際は料金が発生するものもございます。詳細はお問い合わせください。
| 家賃 | 6.21万円 | 管理費・共益費 | 1万円 |
|---|---|---|---|
| 敷金 | なし | 礼金 | なし |
| 入居決定でお祝い金最大100,000円 | |||
| 保証金 | - | 償却・敷引 | - |
| 住宅保険料 | - | 更新料 | - |
| 保証会社利用 | 必須 | 保証会社名 | - |
| 保証会社費用 | - | 保証会社備考 | 保証会社利用必 クレディセゾン、エルサポート、他初回保証料30% 年10 000円【外国籍の方】●クレディセゾン:初回保証料30%、更新料10 000円/年※永住権なしの場合、オプション加入2 200円/月(翻訳サポート・駆けつけサービス等)、更新料10 000円/年●GTN:初回保証料100%、更新料10 000円/年 管理会社指定 |
| 契約形態 | - | 契約期間 | - |
| 入居・引渡期間 | - | 現況 | - |
| 入居可能条件 | ペット相談 | ||
| 契約備考 | 合計1.1万円(内訳:契約事務手数料契約時1.1万円) 室内清掃費用 38500円 更新事務手数料更新時 月額11000円 1K ペット相談 普通借家2年 損保【1.7万円2年】 バストイレ別、バルコニー、エアコン、TVインターホン、浴室乾燥機、オートロック、シューズボックス、温水洗浄便座、エレベーター、宅配ボックス、CATV、光ファイバー、礼金不要、敷金不要、防犯カメラ、ペット相談、分譲賃貸、ネット使用料不要、保証金不要、築2年以内、築3年以内、敷地内ごみ置き場、築5年以内、都市ガス、敷金・礼金不要 入居日:'26年3月上旬 | ||
部屋の情報
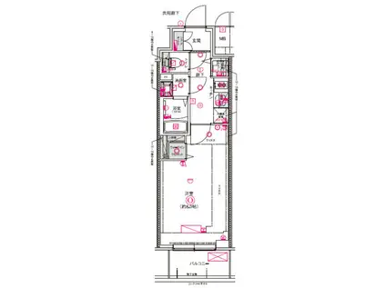
| 間取り | 1K | 専有面積 | 25.53m2 |
|---|---|---|---|
| 所在階 / 向き | 2階 / 北 | バルコニー面積 | - |
| 水道 / ガス | - | ||
| 設備 | バス・トイレ別、2階以上、オートロック、テレビドアホン、宅配ボックス、浴室乾燥機、インターネット対応、エアコン、エレベーター、温水洗浄便座、バルコニー、CATV、インターネット使用料無料 | ||
| 当社物件ID | 160109904 | ||
建物の情報
| 建物名 | CREST TAPP名古屋山王 | ||
|---|---|---|---|
| 所在地 | 愛知県名古屋市中川区西日置 | ||
| 交通 | 名鉄名古屋本線 山王駅(愛知) 徒歩9分 | ||
| 階数 | 15階建 | 総戸数 | - |
| 築年月 | 2026年02月 / 新築 | エレベーター | あり |
| 駐車場 | なし | バイク置き場 | - |
| 駐輪場 | - | 管理人/管理会社 | - |
| 周辺環境 | その他 中川区役所|名古屋市中川区(役所)まで4357m | ||
| 建物種別 | マンション | 建物構造 | RC(鉄筋コンクリート) |
この部屋の取扱い不動産会社
| 会社名 | ホームメイトFC御器所駅前店エステートプラス(株)(SUUMO経由) | ||
|---|---|---|---|
| 所在地 | 愛知県名古屋市昭和区阿由知通4-3 | 交通 | - |
| 営業時間 | 10:00~19:00(応相談) | 定休日 | 年中無休 |
| 免許番号 | 愛知県知事23084 | 取引態様 | 仲介 |
| 不動産会社管理番号 | 100479868503 | 当社管理番号 | 89 |
| 所属団体 | (公社)愛知県宅地建物取引業協会会員 | ||
| 公正取引協議会 | 東海不動産公正取引協議会加盟 | ||
| 取扱い物件情報 | 物件詳細へ | ||
※各種情報と現状に差異がある場合は、現状優先となります。問い合わせをすることで、より詳しい条件、情報を確認する事ができます。
提供:ホームメイトFC御器所駅前店エステートプラス(株)(SUUMO経由)
この物件が気になったら掲載期限まであと11日
CREST TAPP名古屋山王に条件(家賃・エリア)が近い物件一覧
| 写真 | 家賃 管理費等 | 敷金 礼金 | 間取り 専有面積 | 築年数 | 最寄り駅 所在地 | キープ | 詳細 |
|---|---|---|---|---|---|---|---|
マンション プレサンス大須観音駅前(1LDK/11階) | |||||||
![]() | 9.51万円 1.194万円 | なし 10.7万円 | 1LDK 37.33m2 | 築7年 | 地下鉄鶴舞線 大須観音駅 徒歩2分 地下鉄鶴舞線 上前津駅 徒歩13分 地下鉄東山線 伏見駅(愛知) 徒歩15分 愛知県名古屋市中区大須 | 詳細を見る | |
マンション グランシャリオ名駅南(1K/8階) | |||||||
![]() | 5.25万円 7,000円 | なし なし | 1K 33m2 | 築28年 | 地下鉄鶴舞線 大須観音駅 徒歩11分 あおなみ線 ささしまライブ駅 徒歩12分 名鉄名古屋本線 山王駅(愛知) 徒歩12分 愛知県名古屋市中村区名駅南 | 詳細を見る | |
マンション メイクスアート名駅南Ⅳ(1LDK/5階) | |||||||
![]() | 8万円 8,000円 | なし なし | 1LDK 29.91m2 | 築1年 | 名古屋臨海高速鉄道 ささしまライブ駅 徒歩12分 名古屋市鶴舞線 大須観音駅 徒歩13分 名鉄名古屋本線 山王駅(愛知) 徒歩13分 愛知県名古屋市中村区名駅南3丁目 | 詳細を見る | |
アパート ESPRESSO 清須(ワンルーム/1階) | |||||||
![]() | 6.5万円 4,000円 | 6.5万円 6.5万円 | ワンルーム 34.3m2 | 築8年 | JR東海交通城北線 尾張星の宮駅 徒歩3分 東海道本線 枇杷島駅 徒歩21分 愛知県清須市寺野美鈴 | 詳細を見る | |
マンション メイクスWアート上前津V(1DK/9階) | |||||||
![]() | 7.33万円 8,000円 | なし なし | 1DK 26.86m2 | 築2年 | 地下鉄名城線 東別院駅 徒歩9分 地下鉄鶴舞線 上前津駅 徒歩10分 名鉄名古屋本線 金山駅(愛知) 徒歩14分 愛知県名古屋市中区橘 | 詳細を見る | |
アパート ESPRESSO新清須(1SLDK/2階) | |||||||
![]() | 8.2万円 4,000円 | なし 8.2万円 | 1SLDK 50.59m2 | 築4年 | 名鉄名古屋本線 新清洲駅 徒歩4分 名鉄名古屋本線 丸ノ内駅 徒歩14分 名鉄名古屋本線 須ケ口駅 徒歩24分 愛知県清須市新清洲3丁目 | 詳細を見る | |
マンション メイクスWアート名駅南Ⅲ(1DK/10階) | |||||||
![]() | 6.92万円 8,000円 | なし なし | 1DK 25.9m2 | 築2年 | 名鉄名古屋本線 山王駅(愛知) 徒歩12分 名古屋市鶴舞線 大須観音駅 徒歩13分 名古屋臨海高速鉄道 ささしまライブ駅 徒歩13分 愛知県名古屋市中村区名駅南5丁目 | 詳細を見る | |
マンション ポルタニグラ大須(1LDK/8階) | |||||||
![]() | 6.9万円 1万円 | なし なし | 1LDK 28.13m2 | 築8年 | 名鉄名古屋本線 山王駅(愛知) 徒歩10分 地下鉄鶴舞線 大須観音駅 徒歩14分 JR東海道本線 尾頭橋駅 徒歩17分 愛知県名古屋市中区松原 | 詳細を見る | |








