賃貸マンション
セジョリ東向島の賃貸物件情報(1SLDK/3階)
| 家賃 | 管理費等 | 敷金 | 礼金 | 間取り | 専有面積 |
|---|---|---|---|---|---|
| 17.8万円 | 2万円 | なし | なし | 1SLDK | 48.93m2 |
入居決定でお祝い金最大100,000円
- 保証金
- -
- 償却・敷引
- -
- 築年数
- 築2年
- 所在階
- 3階
- 向き
- 西
Point
まずはお問い合わせ!
不動産会社は街のプロ、あなたに合った物件がきっと見つかります。
提供:東京部屋貴族 (株)アズプラ(SUUMO経由)

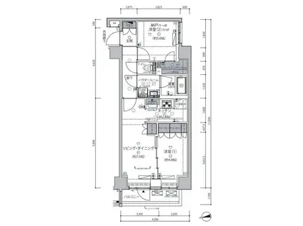
詳細情報 セジョリ東向島
物件紹介
セジョリ東向島は東武伊勢崎線東向島駅から徒歩7分にあり、駅近で通勤通学に便利なマンションです。
このお部屋は2階以上に位置しているので、通行人や周囲の住人からの視線が気になりにくく、防犯面でも安心。建物のエントランスはオートロックがついており、インターホンにはTVモニタもついているため、相手の顔を確認してから来客対応することができます。
室内には人気のウォークインクローゼットがありますので、たくさんの荷物も効率的に収納ができます。キッチンはシステムキッチン仕様になっていますので、お料理好きの方にもぴったり。バス・トイレは別なので、のんびりお風呂タイムも楽しめるでしょう。また、雨の日でも浴室乾燥機を使えば、お洗濯も問題ありません。
共用部には宅配ボックスが設定されているので、不在の時にも荷物を受け取ることができます。また、ペット飼育の相談ができますので、あなたの大切な家族の一員も快適に暮らせるか、ぜひ確認してみてください。
このお部屋は2階以上に位置しているので、通行人や周囲の住人からの視線が気になりにくく、防犯面でも安心。建物のエントランスはオートロックがついており、インターホンにはTVモニタもついているため、相手の顔を確認してから来客対応することができます。
室内には人気のウォークインクローゼットがありますので、たくさんの荷物も効率的に収納ができます。キッチンはシステムキッチン仕様になっていますので、お料理好きの方にもぴったり。バス・トイレは別なので、のんびりお風呂タイムも楽しめるでしょう。また、雨の日でも浴室乾燥機を使えば、お洗濯も問題ありません。
共用部には宅配ボックスが設定されているので、不在の時にも荷物を受け取ることができます。また、ペット飼育の相談ができますので、あなたの大切な家族の一員も快適に暮らせるか、ぜひ確認してみてください。
お金・契約の情報
※「-」と表示されているものは、実際は料金が発生するものもございます。詳細はお問い合わせください。
| 家賃 | 17.8万円 | 管理費・共益費 | 2万円 |
|---|---|---|---|
| 敷金 | なし | 礼金 | なし |
| 入居決定でお祝い金最大100,000円 | |||
| 保証金 | - | 償却・敷引 | - |
| 住宅保険料 | - | 更新料 | - |
| 保証会社利用 | 必須 | 保証会社名 | - |
| 保証会社費用 | - | 保証会社備考 | 保証会社利用必 初回保証委託料:月額賃料の50%、継続保証委託料:15000円/年 |
| 契約形態 | - | 契約期間 | - |
| 入居・引渡期間 | 即時 | 現況 | - |
| 入居可能条件 | ペット相談 | ||
| 契約備考 | お部屋探しは東京部屋貴族へ。お部屋探しはもちろん、ライフラインの手続きや鍵の手配、引っ越しまでの全てを一括対応。引っ越しはしたいけど、忙しくて中々お時間が取れないという方に大変喜ばれております。お客様にとって不要な物件は一切ご紹介せず、デメリットとなる情報は隠さずに正直にご提示。もう、いくつもの不動産屋物件情報サイトを確認する必要はございません。是非お電話を。〈お電話番号〉 合計6万円(内訳:室内清掃費用:60000円) 更新料新賃料(ヶ月):1.00ヶ月 1SLDK ペット相談 普通借家2年 損保【1.8万円2年】 バストイレ別、バルコニー、エアコン、クロゼット、TVインターホン、浴室乾燥機、オートロック、室内洗濯置、シューズボックス、システムキッチン、温水洗浄便座、洗面化粧台、宅配ボックス、即入居可、礼金不要、敷金不要、ペット相談、分譲賃貸、ウォークインクロゼット、保証人不要、保証金不要、築2年以内、2駅利用可、駅徒歩10分以内、都市ガス、敷金・礼金不要、初期費用カード決済可 | ||
部屋の情報
| 間取り | 1SLDK | 専有面積 | 48.93m2 |
|---|---|---|---|
| 所在階 / 向き | 3階 / 西 | バルコニー面積 | - |
| 水道 / ガス | - | ||
| 設備 | バス・トイレ別、2階以上、オートロック、テレビドアホン、宅配ボックス、浴室乾燥機、ウォークインクローゼット、システムキッチン、エアコン、温水洗浄便座、バルコニー、洗濯機:室内 | ||
| 当社物件ID | 159395554 | ||
建物の情報
| 建物名 | セジョリ東向島 | ||
|---|---|---|---|
| 所在地 | 東京都墨田区東向島 | ||
| 交通 | 東武伊勢崎線 東向島駅 徒歩7分 東武伊勢崎線 鐘ケ淵駅 徒歩12分 東武亀戸線 曳舟駅 徒歩14分 | ||
| 階数 | 6階建 | 総戸数 | 51戸 |
| 築年月 | 2025年02月 / 築2年 | エレベーター | - |
| 駐車場 | なし | バイク置き場 | - |
| 駐輪場 | - | 管理人/管理会社 | - |
| 周辺環境 | その他 LaLaテラス南千住(ショッピングセンター)まで2090m その他 東京ソラマチ(ショッピングセンター)まで2340m その他 業務スーパー墨田店(スーパー)まで220m その他 ライフ東向島店(スーパー)まで170m その他 セブンイレブン墨田1丁目大正通り店(コンビニ)まで170m その他 くすりの福太郎東向島店(ドラッグストア)まで370m | ||
| 建物種別 | マンション | 建物構造 | RC(鉄筋コンクリート) |
この部屋の取扱い不動産会社
| 会社名 | 東京部屋貴族 (株)アズプラ(SUUMO経由) | ||
|---|---|---|---|
| 所在地 | 東京都千代田区神田淡路町2-4 ユニオンビル2階 | 交通 | - |
| 営業時間 | 10時~21時 最終受付19時まで | 定休日 | 不定休 |
| 免許番号 | 東京都知事112636 | 取引態様 | 仲介 |
| 不動産会社管理番号 | 100482182300 | 当社管理番号 | 89 |
| 所属団体 | (公社)全日本不動産協会埼玉県本部会員 | ||
| 公正取引協議会 | (公社)首都圏不動産公正取引協議会加盟 | ||
| 取扱い物件情報 | 物件詳細へ | ||
※各種情報と現状に差異がある場合は、現状優先となります。問い合わせをすることで、より詳しい条件、情報を確認する事ができます。
提供:東京部屋貴族 (株)アズプラ(SUUMO経由)
この物件が気になったら掲載期限まであと11日
セジョリ東向島に条件(家賃・エリア)が近い物件一覧
| 写真 | 家賃 管理費等 | 敷金 礼金 | 間取り 専有面積 | 築年数 | 最寄り駅 所在地 | キープ | 詳細 |
|---|---|---|---|---|---|---|---|
マンション クリオ浅草ラ・モード(1LDK/4階) | |||||||
![]() | 11.9万円 1万円 | なし 11.9万円 | 1LDK 31.33m2 | 築16年 | つくばエクスプレス 浅草駅(つくばEXP) 徒歩3分 東京地下鉄日比谷線 入谷駅(東京) 徒歩10分 東京地下鉄銀座線 田原町駅(東京) 徒歩11分 東京都台東区西浅草3丁目 | 詳細を見る | |
マンション ドルチェ月島・弐番館(1K/10階) | |||||||
![]() | 12.8万円 1.1万円 | なし 12.8万円 | 1K 22.7m2 | 築23年 | 都営大江戸線 勝どき駅 徒歩4分 東京メトロ有楽町線 月島駅 徒歩6分 東京メトロ日比谷線 築地駅 徒歩20分 東京都中央区月島 | 詳細を見る | |
マンション ヴェルステージ茅場町(1K/5階) | |||||||
![]() | 11.8万円 1.1万円 | なし 11.8万円 | 1K 24.55m2 | 築27年 | 東京地下鉄日比谷線 茅場町駅 徒歩3分 東京地下鉄日比谷線 八丁堀駅(東京) 徒歩5分 東京地下鉄半蔵門線 水天宮前駅 徒歩13分 東京都中央区新川1丁目 | 詳細を見る | |
マンション GENOVIA本所吾妻橋SKYGARDEN(1K/1階) | |||||||
![]() | 11万円 1.5万円 | なし なし | 1K 25.57m2 | 築5年 | 東京都浅草線 本所吾妻橋駅 徒歩10分 東京都大江戸線 両国駅 徒歩12分 東京地下鉄銀座線 浅草駅(東武・都営・メトロ) 徒歩15分 東京都墨田区石原3丁目 | 詳細を見る | |
マンション プレール・ドゥーク大島(2LDK/2階) | |||||||
![]() | 23.3万円 1.1万円 | なし 23.3万円 | 2LDK 53.96m2 | 築2年 | 都営新宿線 東大島駅 徒歩6分 都営新宿線 大島駅(東京) 徒歩8分 JR総武線 亀戸駅 徒歩25分 東京都江東区大島 | 詳細を見る | |
マンション TRADIS秋葉原(1K/6階) | |||||||
![]() | 14.3万円 1万円 | なし なし | 1K 25.54m2 | 築1年 | 東京地下鉄日比谷線 秋葉原駅 徒歩8分 山手線 秋葉原駅 徒歩9分 東京都浅草線 浅草橋駅 徒歩12分 東京都台東区台東1丁目 | 詳細を見る | |
マンション プレール・ドゥーク木場親水公園(1K/2階) | |||||||
![]() | 10.9万円 1.1万円 | なし 10.9万円 | 1K 21.87m2 | 築20年 | 東京地下鉄東西線 木場駅 徒歩8分 東京都大江戸線 門前仲町駅 徒歩12分 東京地下鉄東西線 門前仲町駅 徒歩12分 東京都江東区木場3丁目 | 詳細を見る | |
マンション ファーストレジデンス(2DK/5階) | |||||||
![]() | 17.9万円 なし | 17.9万円 17.9万円 | 2DK 45m2 | 築33年 | 都営大江戸線 清澄白河駅 徒歩5分 東京メトロ半蔵門線 清澄白河駅 徒歩5分 都営新宿線 森下駅(東京) 徒歩10分 東京都江東区清澄 | 詳細を見る | |









