賃貸マンション
セジョリ東向島の賃貸物件情報(2LDK/2階)
| 家賃 | 管理費等 | 敷金 | 礼金 | 間取り | 専有面積 |
|---|---|---|---|---|---|
| 18万円 | 2万円 | なし | なし | 2LDK | 48.93m2 |
入居決定でお祝い金最大100,000円
- 保証金
- -
- 償却・敷引
- -
- 築年数
- 築2年
- 所在階
- 2階
- 向き
- 西
Point
バストイレ別や2口ガスコンロのシステムキッチンなど快適な水回りが自慢のお部屋です。浴室乾燥機や温水洗浄便座等、充実した設備がございます。防犯カメラやオートロック等で安心のセキュリティです。
提供:(株)ヴィックスリアルエステートリアルティ菊川店(SUUMO経由)

詳細情報 セジョリ東向島
物件紹介
セジョリ東向島は東武伊勢崎線東向島駅から徒歩5分にあり、駅近で通勤通学に便利なマンションです。
このお部屋は2階以上に位置しているので、通行人や周囲の住人からの視線が気になりにくく、防犯面でも安心。建物のエントランスはオートロックがついており、インターホンにはTVモニタもついているため、相手の顔を確認してから来客対応することができます。
おしゃれなデザイナーズ物件!人気の角部屋で周囲の居住者の生活音も気になりにくく、また、フローリングのお部屋なのでお掃除もラクラク。室内にはウォークインクローゼットがありますので、たくさんの荷物も効率的に収納ができます。キッチンはシステムキッチン仕様になっていますので、お料理好きの方にもぴったり。バス・トイレは別なので、のんびりお風呂タイムも楽しめるでしょう。また、雨の日でも浴室乾燥機を使えば、お洗濯も問題ありません。
通信設備面では、インターネットが無料で使えるので、月々の出費を抑えられるのも魅力です。また、BSアンテナ・CSアンテナがありCATVにも対応しているので、おうち時間も充実するでしょう(別途工事、BS・CS・CATVの契約料等が必要な場合あり)。
建物にはエレベーターがついているので、重い荷物があっても安心。共用部には宅配ボックスが設定されているので、不在の時にも荷物を受け取ることができます。また、ペット飼育の相談ができますので、あなたの大切な家族の一員も快適に暮らせるか、ぜひ確認してみてください。
このお部屋は2階以上に位置しているので、通行人や周囲の住人からの視線が気になりにくく、防犯面でも安心。建物のエントランスはオートロックがついており、インターホンにはTVモニタもついているため、相手の顔を確認してから来客対応することができます。
おしゃれなデザイナーズ物件!人気の角部屋で周囲の居住者の生活音も気になりにくく、また、フローリングのお部屋なのでお掃除もラクラク。室内にはウォークインクローゼットがありますので、たくさんの荷物も効率的に収納ができます。キッチンはシステムキッチン仕様になっていますので、お料理好きの方にもぴったり。バス・トイレは別なので、のんびりお風呂タイムも楽しめるでしょう。また、雨の日でも浴室乾燥機を使えば、お洗濯も問題ありません。
通信設備面では、インターネットが無料で使えるので、月々の出費を抑えられるのも魅力です。また、BSアンテナ・CSアンテナがありCATVにも対応しているので、おうち時間も充実するでしょう(別途工事、BS・CS・CATVの契約料等が必要な場合あり)。
建物にはエレベーターがついているので、重い荷物があっても安心。共用部には宅配ボックスが設定されているので、不在の時にも荷物を受け取ることができます。また、ペット飼育の相談ができますので、あなたの大切な家族の一員も快適に暮らせるか、ぜひ確認してみてください。
お金・契約の情報
※「-」と表示されているものは、実際は料金が発生するものもございます。詳細はお問い合わせください。
| 家賃 | 18万円 | 管理費・共益費 | 2万円 |
|---|---|---|---|
| 敷金 | なし | 礼金 | なし |
| 入居決定でお祝い金最大100,000円 | |||
| 保証金 | - | 償却・敷引 | - |
| 住宅保険料 | - | 更新料 | - |
| 保証会社利用 | 必須 | 保証会社名 | - |
| 保証会社費用 | - | 保証会社備考 | 保証会社利用必 初回保証料:50%、月次保証料:1% |
| 契約形態 | - | 契約期間 | - |
| 入居・引渡期間 | 即時 | 現況 | - |
| 契約備考 | 「錦糸町de部屋探し」株式会社リブリッチ錦糸町店は錦糸町駅から徒歩1分の楽天地ビル1Fにあります。楽天地ビルはPARCOや西友が入る大型の店舗です。カップルやファミリー、女性向けのお部屋を中心に多数の情報を取り揃えてお待ちしております。法人様や学生向けのお部屋も充実しておりますのでお気軽にご相談ください。各種クレジットカード利用可、契約金を分割に出来ます。 合計3.3万円(内訳:安心入居サポート1.65万円エアコン掃除代(1台)1.65万円) 更新料 新賃料1.00ヶ月分 室内清掃費用 49500円 2LDK 二人入居可 普通借家2年 損保【1.8万円2年】 バストイレ別、バルコニー、エアコン、ガスコンロ対応、クロゼット、フローリング、TVインターホン、浴室乾燥機、オートロック、室内洗濯置、シューズボックス、システムキッチン、角住戸、温水洗浄便座、脱衣所、エレベーター、洗面所独立、洗面化粧台、駐輪場、宅配ボックス、即入居可、礼金不要、敷金不要、3口以上コンロ、防犯カメラ、全居室洋室、保証人不要、全居室フローリング、エアコン2台、築2年以内、24時間換気システム、TV付浴室、クロゼット2ヶ所、2駅利用可、3駅以上利用可、駅徒歩5分以内、駅徒歩10分以内、敷地内ごみ置き場、都市ガス、敷金・礼金不要、初期費用カード決済可 | ||
部屋の情報
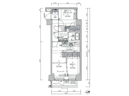
| 間取り | 2LDK | 専有面積 | 48.93m2 |
|---|---|---|---|
| 所在階 / 向き | 2階 / 西 | バルコニー面積 | - |
| 水道 / ガス | - | ||
| 設備 | バス・トイレ別、2階以上、オートロック、テレビドアホン、宅配ボックス、浴室乾燥機、システムキッチン、エアコン、エレベーター、温水洗浄便座、角部屋、バルコニー、フローリング、洗髪洗面化粧台、2口コンロ、コンロ:ガス、洗濯機:室内 | ||
| 当社物件ID | 159324049 | ||
建物の情報
| 建物名 | セジョリ東向島 | ||
|---|---|---|---|
| 所在地 | 東京都墨田区東向島 | ||
| 交通 | 東武伊勢崎線 東向島駅 徒歩5分 東武伊勢崎線 鐘ケ淵駅 徒歩12分 東武伊勢崎線 曳舟駅 徒歩16分 | ||
| 階数 | 6階建 | 総戸数 | - |
| 築年月 | 2025年02月 / 築2年 | エレベーター | あり |
| 駐車場 | なし | バイク置き場 | - |
| 駐輪場 | あり | 管理人/管理会社 | - |
| 周辺環境 | その他 セブン-イレブン墨田1丁目大正通り店(コンビニ)まで104m その他 セブンイレブン 墨田1丁目大正通り店(コンビニ)まで112m その他 ライフ 東向島店(スーパー)まで177m その他 東武博物館(その他)まで502m その他 業務スーパー 墨田店(スーパー)まで201m その他 長平(飲食店)まで75m | ||
| 建物種別 | マンション | 建物構造 | RC(鉄筋コンクリート) |
この部屋の取扱い不動産会社
| 会社名 | いい部屋ネット目黒駅前店(株)リブリッチ(SUUMO経由) | ||
|---|---|---|---|
| 所在地 | 東京都品川区上大崎2-12-1 野田ビル3階 | 交通 | - |
| 営業時間 | 10:00~18:00 | 定休日 | 水曜日 |
| 免許番号 | 国土交通大臣10580 | 取引態様 | 仲介 |
| 不動産会社管理番号 | 100502957282 | 当社管理番号 | 89 |
| 取扱い物件情報 | 物件詳細へ | ||
※各種情報と現状に差異がある場合は、現状優先となります。問い合わせをすることで、より詳しい条件、情報を確認する事ができます。
提供:いい部屋ネット目黒駅前店(株)リブリッチ(SUUMO経由)
この物件が気になったら掲載期限まであと10日
セジョリ東向島に条件(家賃・エリア)が近い物件一覧
| 写真 | 家賃 管理費等 | 敷金 礼金 | 間取り 専有面積 | 築年数 | 最寄り駅 所在地 | キープ | 詳細 |
|---|---|---|---|---|---|---|---|
マンション クレヴィスタ亀戸III(1K/4階) | |||||||
![]() | 12.5万円 1.1万円 | なし 12.5万円 | 1K 25.6m2 | 築7年 | 東武鉄道亀戸線 亀戸水神駅 徒歩2分 総武・中央緩行線 亀戸駅 徒歩9分 東武鉄道亀戸線 東あずま駅 徒歩12分 東京都江東区亀戸8丁目 | 詳細を見る | |
マンション クレストコート本所吾妻橋ノース 本所吾妻橋ノース(1DK/8階) | |||||||
![]() | 15.7万円 1.2万円 | 15.7万円 なし | 1DK 25.42m2 | 築1年 | 東京都浅草線 本所吾妻橋駅 徒歩2分 東京地下鉄銀座線 浅草駅(東武・都営・メトロ) 徒歩9分 東武伊勢崎・大師線 とうきょうスカイツリー駅 徒歩10分 東京都墨田区吾妻橋2丁目 | 詳細を見る | |
マンション ドルチェ月島・弐番館(1K/10階) | |||||||
![]() | 12.8万円 1.1万円 | なし 12.8万円 | 1K 22.7m2 | 築23年 | 東京都大江戸線 勝どき駅 徒歩4分 東京地下鉄有楽町線 月島駅 徒歩6分 東京地下鉄日比谷線 築地駅 徒歩20分 東京都中央区月島4丁目 | 詳細を見る | |
マンション ガリシア日本橋水天宮II(ワンルーム/6階) | |||||||
![]() | 14.4万円 1.1万円 | なし 14.4万円 | ワンルーム 25.61m2 | 築10年 | 東京地下鉄半蔵門線 水天宮前駅 徒歩3分 東京地下鉄日比谷線 人形町駅 徒歩11分 東京地下鉄東西線 茅場町駅 徒歩13分 東京都中央区日本橋箱崎町 | 詳細を見る | |
マンション クレストコート錦糸町(2LDK/4階) | |||||||
![]() | 20.1万円 1.8万円 | 20.1万円 なし | 2LDK 40.11m2 | 築2年 | 総武・中央緩行線 錦糸町駅 徒歩8分 東京地下鉄半蔵門線 錦糸町駅 徒歩9分 東京都墨田区亀沢4丁目 | 詳細を見る | |
マンション パークハビオ水天宮前(ワンルーム/2階) | |||||||
![]() | 19万円 1.5万円 | 19万円 なし | ワンルーム 40.02m2 | 築19年 | 東京地下鉄半蔵門線 水天宮前駅 徒歩3分 東京地下鉄日比谷線 人形町駅 徒歩7分 東京都新宿線 浜町駅 徒歩11分 東京都中央区日本橋蛎殻町2丁目 | 詳細を見る | |
一戸建て 東京都新宿線 大島駅(東京) 徒歩7分 築77年(1DK) | |||||||
![]() | 11.8万円 2万円 | 11.8万円 11.8万円 | 1DK 27.91m2 | 築77年 | 東京都新宿線 大島駅(東京) 徒歩7分 東京都新宿線 西大島駅 徒歩7分 総武・中央緩行線 亀戸駅 徒歩11分 東京都江東区大島3丁目 | 詳細を見る | |







