賃貸マンション
セルジュYS姫路の賃貸物件情報(4LDK/7階)
| 家賃 | 管理費等 | 敷金 | 礼金 | 間取り | 専有面積 |
|---|---|---|---|---|---|
| 65万円 | なし | なし | 120万円 | 4LDK | 185m2 |
入居決定でお祝い金最大100,000円
- 保証金
- -
- 償却・敷引
- -
- 築年数
- 築24年
- 所在階
- 7階
- 向き
- 東
Point
まとめてご案内可能です!オンライン内見OK♪初期費用はカードで分割支払もできます♪来客時駐車場料金負担致します!水曜日も営業しております♪初めてのお部屋探しでも安心!
提供:ピタットハウス姫路駅南口店(株)ライブデザイン(SUUMO経由)

詳細情報 セルジュYS姫路
物件紹介
セルジュYS姫路はJR山陽本線姫路駅から徒歩5分にあり、駅近で通勤通学に便利なマンションです。
このお部屋は2階以上に位置しているので、通行人や周囲の住人からの視線が気になりにくく、防犯面でも安心。建物のエントランスはオートロックがついており、インターホンにはTVモニタもついているため、相手の顔を確認してから来客対応することができます。
人気の角部屋で周囲の居住者の生活音も気になりにくく、また、フローリングのお部屋なのでお掃除もラクラク。室内にはウォークインクローゼットがありますので、たくさんの荷物も効率的に収納ができます。キッチンはシステムキッチン仕様になっていますので、お料理好きの方にもぴったり。バス・トイレは別なので、のんびりお風呂タイムも楽しめるでしょう。また、雨の日でも浴室乾燥機を使えば、お洗濯も問題ありません。
通信設備面では、インターネットが無料で使えるので、月々の出費を抑えられるのも魅力です。また、CATVにも対応しているので、おうち時間も充実するでしょう(別途工事、CATVの契約料等が必要な場合あり)。
建物にはエレベーターがついているので、重い荷物があっても安心。共用部には宅配ボックスが設定されているので、不在の時にも荷物を受け取ることができます。
このお部屋は2階以上に位置しているので、通行人や周囲の住人からの視線が気になりにくく、防犯面でも安心。建物のエントランスはオートロックがついており、インターホンにはTVモニタもついているため、相手の顔を確認してから来客対応することができます。
人気の角部屋で周囲の居住者の生活音も気になりにくく、また、フローリングのお部屋なのでお掃除もラクラク。室内にはウォークインクローゼットがありますので、たくさんの荷物も効率的に収納ができます。キッチンはシステムキッチン仕様になっていますので、お料理好きの方にもぴったり。バス・トイレは別なので、のんびりお風呂タイムも楽しめるでしょう。また、雨の日でも浴室乾燥機を使えば、お洗濯も問題ありません。
通信設備面では、インターネットが無料で使えるので、月々の出費を抑えられるのも魅力です。また、CATVにも対応しているので、おうち時間も充実するでしょう(別途工事、CATVの契約料等が必要な場合あり)。
建物にはエレベーターがついているので、重い荷物があっても安心。共用部には宅配ボックスが設定されているので、不在の時にも荷物を受け取ることができます。
お金・契約の情報
※「-」と表示されているものは、実際は料金が発生するものもございます。詳細はお問い合わせください。
| 家賃 | 65万円 | 管理費・共益費 | なし |
|---|---|---|---|
| 敷金 | なし | 礼金 | 120万円 |
| 入居決定でお祝い金最大100,000円 | |||
| 保証金 | - | 償却・敷引 | - |
| 住宅保険料 | - | 更新料 | - |
| 保証会社利用 | 利用可 | 保証会社名 | - |
| 保証会社費用 | - | 保証会社備考 | 保証会社利用可 保証人有:初回総賃料30%~50% 保証人無:初回総賃料80%~100%ともに更新料有(貸主、管理会社の希望により変動有) |
| 契約形態 | - | 契約期間 | - |
| 入居・引渡期間 | 即時 | 現況 | - |
| 契約備考 | 巡回管理/物件情報ページをご覧いただき誠にありがとうございます!!ポータルサイト等で募集中の物件は合わせて全て弊社でご紹介可能です!他社様でご紹介されているお部屋も弊社でご紹介の場合、ご契約条件を優遇できる可能性がございます!!対象物件は仲介手数料無料/賃料1カ月間無料/礼金0円などご相談可能です!お問い合わせは【TEL:】までお電話ください!!当日のご内見予約も可能です!! 4LDK 単身者可 普通借家2年 損保【1.5万円2年】 バストイレ別、バルコニー、エアコン、ガスコンロ対応、フローリング、シャワー付洗面台、TVインターホン、浴室乾燥機、オートロック、室内洗濯置、シューズボックス、システムキッチン、追焚機能浴室、角住戸、温水洗浄便座、脱衣所、エレベーター、洗面所独立、洗面化粧台、駐輪場、宅配ボックス、CATV、光ファイバー、即入居可、閑静な住宅地、2面採光、最上階、3口以上コンロ、対面式キッチン、ウォークインクロゼット、保証人不要、CATVインターネット、全居室フローリング、ガスレンジ付、2沿線利用可、駅まで平坦、ネット使用料不要、駐車場2台無料、浄水器、食器洗乾燥機、1フロア1住戸、トイレ2ヶ所、クロゼット2ヶ所、平坦地、両面バルコニー、アイランドキッチン、中庭、3駅以上利用可、駅前、駅徒歩5分以内、上階無し、敷地内ごみ置き場、専有面積30坪以上、プロパンガス、洗面所にドア、ワイドバルコニー、リノベーション、保証会社利用可、IT重説対応物件、初期費用カード決済可 | ||
部屋の情報
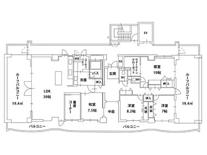
| 間取り | 4LDK | 専有面積 | 185m2 |
|---|---|---|---|
| 所在階 / 向き | 7階 / 東 | バルコニー面積 | - |
| 水道 / ガス | - | ||
| 設備 | バス・トイレ別、2階以上、オートロック、テレビドアホン、宅配ボックス、浴室乾燥機、ウォークインクローゼット、追い焚き、インターネット対応、システムキッチン、エアコン、エレベーター、温水洗浄便座、角部屋、バルコニー、フローリング、洗髪洗面化粧台、2口コンロ、コンロ:ガス、CATV、インターネット使用料無料、洗濯機:室内 | ||
| 当社物件ID | 151859555 | ||
建物の情報
| 建物名 | セルジュYS姫路 | ||
|---|---|---|---|
| 所在地 | 兵庫県姫路市南畝町 | ||
| 交通 | JR山陽本線 姫路駅 徒歩5分 山陽電鉄本線 山陽姫路駅 徒歩7分 山陽電鉄本線 手柄駅 徒歩10分 | ||
| 階数 | 7階建 | 総戸数 | - |
| 築年月 | 2003年03月 / 築24年 | エレベーター | あり |
| 駐車場 | 空有 駐2台可 | バイク置き場 | - |
| 駐輪場 | あり | 管理人/管理会社 | - |
| 周辺環境 | その他 マックスバリュ イオンタウン姫路店(スーパー)まで369m その他 ローソン 姫路東延末二丁目店(コンビニ)まで680m その他 但馬信用金庫 延末支店(銀行)まで558m その他 兵庫信用金庫 姫路中央支店(銀行)まで665m その他 姫路情報システム専門学校(その他)まで586m その他 淡陽信用組合 姫路支店(銀行)まで538m | ||
| 建物種別 | マンション | 建物構造 | RC(鉄筋コンクリート) |
この部屋の取扱い不動産会社
| 会社名 | ピタットハウス垂水店(株)ライブデザイン兵庫(SUUMO経由) | ||
|---|---|---|---|
| 所在地 | 兵庫県神戸市垂水区宮本町 3-13 1階 | 交通 | - |
| 営業時間 | 09:00~18:00 | 定休日 | - |
| 免許番号 | 兵庫県知事12246 | 取引態様 | 仲介 |
| 不動産会社管理番号 | 100433424540 | 当社管理番号 | 89 |
| 所属団体 | (公社)全日本不動産協会兵庫県本部会員 | ||
| 公正取引協議会 | (公社)近畿地区不動産公正取引協議会加盟 | ||
| 取扱い物件情報 | 物件詳細へ | ||
※各種情報と現状に差異がある場合は、現状優先となります。問い合わせをすることで、より詳しい条件、情報を確認する事ができます。
提供:ピタットハウス垂水店(株)ライブデザイン兵庫(SUUMO経由)
この物件が気になったら掲載期限まであと11日
セルジュYS姫路に条件(家賃・エリア)が近い物件一覧
| 写真 | 家賃 管理費等 | 敷金 礼金 | 間取り 専有面積 | 築年数 | 最寄り駅 所在地 | キープ | 詳細 |
|---|---|---|---|---|---|---|---|
マンション 姫路ザ・レジデンス(4LDK/14階) | |||||||
![]() | 45万円 4万円 | 45万円 45万円 | 4LDK 131.58m2 | 築8年 | 山陽新幹線 姫路駅 徒歩5分 JR山陽本線 姫路駅 徒歩5分 兵庫県姫路市東駅前町 | 詳細を見る | |

