賃貸マンション
コンフォリア・リヴ南六郷の賃貸物件情報(1K/2階)
| 家賃 | 管理費等 | 敷金 | 礼金 | 間取り | 専有面積 |
|---|---|---|---|---|---|
| 11.7万円 | 8,000円 | 11.7万円 | なし | 1K | 25.2m2 |
入居決定でお祝い金最大100,000円
- 保証金
- -
- 償却・敷引
- -
- 築年数
- 新築
- 所在階
- 2階
- 向き
- 北東
Point
まずはお問い合わせ!
不動産会社は街のプロ、あなたに合った物件がきっと見つかります。
提供:センチュリー21(株)トーコー開発(SUUMO経由)

詳細情報 コンフォリア・リヴ南六郷
物件紹介
コンフォリア・リヴ南六郷は京急本線雑色駅から徒歩10分にあり、駅近で通勤通学に便利なマンションです。
このお部屋は2階以上に位置しているので、通行人や周囲の住人からの視線が気になりにくく、防犯面でも安心。建物のエントランスはオートロックがついており、インターホンにはTVモニタもついているため、相手の顔を確認してから来客対応することができます。
フローリングのお部屋なのでお掃除もラクラク。キッチンはシステムキッチン仕様になっていますので、お料理好きの方にもぴったり。バス・トイレは別なので、のんびりお風呂タイムも楽しめるでしょう。また、雨の日でも浴室乾燥機を使えば、お洗濯も問題ありません。
通信設備面では、インターネットが無料で使えるので、月々の出費を抑えられるのも魅力です。また、BSアンテナ・CSアンテナもありますので、おうち時間も充実するでしょう(別途工事、BS・CSの契約料等が必要な場合あり)。
建物にはエレベーターがついているので、重い荷物があっても安心。共用部には宅配ボックスが設定されているので、不在の時にも荷物を受け取ることができます。また、ペット飼育の相談ができますので、あなたの大切な家族の一員も快適に暮らせるか、ぜひ確認してみてください。
このお部屋は2階以上に位置しているので、通行人や周囲の住人からの視線が気になりにくく、防犯面でも安心。建物のエントランスはオートロックがついており、インターホンにはTVモニタもついているため、相手の顔を確認してから来客対応することができます。
フローリングのお部屋なのでお掃除もラクラク。キッチンはシステムキッチン仕様になっていますので、お料理好きの方にもぴったり。バス・トイレは別なので、のんびりお風呂タイムも楽しめるでしょう。また、雨の日でも浴室乾燥機を使えば、お洗濯も問題ありません。
通信設備面では、インターネットが無料で使えるので、月々の出費を抑えられるのも魅力です。また、BSアンテナ・CSアンテナもありますので、おうち時間も充実するでしょう(別途工事、BS・CSの契約料等が必要な場合あり)。
建物にはエレベーターがついているので、重い荷物があっても安心。共用部には宅配ボックスが設定されているので、不在の時にも荷物を受け取ることができます。また、ペット飼育の相談ができますので、あなたの大切な家族の一員も快適に暮らせるか、ぜひ確認してみてください。
お金・契約の情報
※「-」と表示されているものは、実際は料金が発生するものもございます。詳細はお問い合わせください。
| 家賃 | 11.7万円 | 管理費・共益費 | 8,000円 |
|---|---|---|---|
| 敷金 | 11.7万円 | 礼金 | なし |
| 入居決定でお祝い金最大100,000円 | |||
| 保証金 | - | 償却・敷引 | - |
| 住宅保険料 | 1円 | 更新料 | - |
| 保証会社利用 | 必須 | 保証会社名 | エポスカード |
| 保証会社費用 | - | 保証会社備考 | 保証料:賃料等の50%(最低2万)、月額保証料:賃料等の1%(更新料無) |
| 契約形態 | - | 契約期間 | 2年 |
| 入居・引渡期間 | 2026年04月上旬 | 現況 | 未完成 |
| 契約備考 | 清掃費:38500円(退去時請求).エアコン清掃費:11000円(退去時請求) その他設備/条件:室内洗濯機置き場、ごみ出し24時間OK、防犯カメラ、シューズボックス | ||
部屋の情報
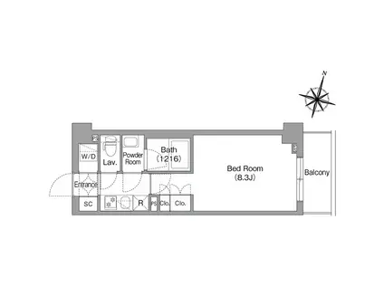
| 間取り | 1K | 専有面積 | 25.2m2 |
|---|---|---|---|
| 間取り詳細 | 洋室(8.3帖) | ||
| 所在階 / 向き | 2階 / 北東 | バルコニー面積 | - |
| 水道 / ガス | - | ||
| 設備 | バス・トイレ別、オートロック、テレビドアホン、宅配ボックス、浴室乾燥機、エアコン、エレベーター、温水洗浄便座、トランクルーム、CSアンテナ、BSアンテナ、インターネット使用料無料 | ||
| 当社物件ID | 160432976 | ||
建物の情報
| 建物名 | コンフォリア・リヴ南六郷 | ||
|---|---|---|---|
| 所在地 | 東京都大田区南六郷3丁目 | ||
| 交通 | 京浜急行電鉄本線 雑色駅 徒歩10分 京浜東北・根岸線 蒲田駅 バス乗車時間:20分 六郷小学校バス停で下車 徒歩3分 | ||
| 階数 | 6階建 | 総戸数 | 61戸 |
| 築年月 | 2026年04月 / 新築 | エレベーター | あり |
| 駐車場 | なし | バイク置き場 | あり |
| 駐輪場 | あり | 管理人/管理会社 | - |
| 周辺環境 | その他 ドラッグストア その他 公園 その他 銀行 その他 * | ||
| 建物種別 | マンション | 建物構造 | RC(鉄筋コンクリート) |
この部屋の取扱い不動産会社
| 会社名 | ハウスコム西東京株式会社 蒲田店 | ||
|---|---|---|---|
| 所在地 | 東京都大田区5-8コパンビル1階 | 交通 | - |
| 営業時間 | 10:00~18:00 | 定休日 | - |
| 免許番号 | 東京都知事(1)第108225号 | 取引態様 | 仲介 |
| 不動産会社管理番号 | HC5-5387973-205-0099 | 当社管理番号 | 468 |
| 所属団体 | 、 | ||
| 取扱い物件情報 | 物件詳細へ | ||
※各種情報と現状に差異がある場合は、現状優先となります。問い合わせをすることで、より詳しい条件、情報を確認する事ができます。
提供:ハウスコム西東京株式会社 蒲田店
この物件が気になったら掲載期限まであと4日
コンフォリア・リヴ南六郷の空き部屋一覧
全部で24の空き部屋があります。
コンフォリア・リヴ南六郷に条件(家賃・エリア)が近い物件一覧
| 写真 | 家賃 管理費等 | 敷金 礼金 | 間取り 専有面積 | 築年数 | 最寄り駅 所在地 | キープ | 詳細 |
|---|---|---|---|---|---|---|---|
アパート フローリア(1LDK/2階) | |||||||
![]() | 14.1万円 3,000円 | 14.1万円 14.1万円 | 1LDK 38.11m2 | 築11年 | JR横須賀線 西大井駅 徒歩6分 東急大井町線 下神明駅 徒歩10分 JR京浜東北線 大井町駅 徒歩13分 東京都品川区西大井 | 詳細を見る | |
タウンハウス 大田菜園長屋(2LDK) | |||||||
![]() | 15.4万円 5,000円 | 15.4万円 23.1万円 | 2LDK 52.17m2 | 築10年 | 京浜急行電鉄本線 雑色駅 徒歩8分 京浜急行電鉄本線 六郷土手駅 徒歩13分 東京都大田区東六郷3丁目 | 詳細を見る | |
マンション 本間ビル(3LDK/4階) | |||||||
![]() | 18.4万円 5,000円 | 18.4万円 なし | 3LDK 75m2 | 築47年 | 京浜急行電鉄本線 京急蒲田駅 徒歩5分 京浜急行電鉄空港線 糀谷駅 徒歩10分 東京都大田区南蒲田1丁目 | 詳細を見る | |
マンション アズ亀戸レジデンス(ワンルーム/1階) | |||||||
![]() | 18万円 5,000円 | 36万円 なし | ワンルーム 31.27m2 | 築22年 | JR総武線 亀戸駅 徒歩6分 東武亀戸線 亀戸水神駅 徒歩8分 都営新宿線 大島駅(東京) 徒歩9分 東京都江東区亀戸 | 詳細を見る | |
マンション SEED JUST B-BASE COAST(1LDK/2階) | |||||||
![]() | 9.9万円 1.5万円 | 9.9万円 9.9万円 | 1LDK 25.41m2 | 築1年 | 東京モノレール羽田 昭和島駅 徒歩11分 京浜急行電鉄本線 梅屋敷駅(東京) 徒歩19分 東京都大田区大森南4丁目 | 詳細を見る | |
マンション クレヴィスタ亀戸IV(1K/10階) | |||||||
![]() | 13.2万円 1.1万円 | なし 13.2万円 | 1K 25.56m2 | 築6年 | 総武・中央緩行線 亀戸駅 徒歩4分 東武鉄道亀戸線 亀戸駅 徒歩4分 総武本線 錦糸町駅 徒歩12分 東京都江東区亀戸2丁目 | 詳細を見る | |







