賃貸マンション
コンフォリア・リヴ南六郷の賃貸物件情報(1K/4階)
| 家賃 | 管理費等 | 敷金 | 礼金 | 間取り | 専有面積 |
|---|---|---|---|---|---|
| 12.1万円 | 8,000円 | 12.1万円 | なし | 1K | 25.2m2 |
入居決定でお祝い金最大100,000円
Point
■新築■京急本線 雑色駅徒歩10分!
提供:アパマンショップ関内駅前店

詳細情報 コンフォリア・リヴ南六郷
物件紹介
コンフォリア・リヴ南六郷は京急本線雑色駅から徒歩9分にあり、駅近で通勤通学に便利なマンションです。
このお部屋は2階以上に位置しているので、通行人や周囲の住人からの視線が気になりにくく、防犯面でも安心。建物のエントランスはオートロックがついており、インターホンにはTVモニタもついているため、相手の顔を確認してから来客対応することができます。
人気の角部屋で周囲の居住者の生活音も気になりにくく、また、フローリングのお部屋なのでお掃除もラクラク。室内にはウォークインクローゼットがありますので、たくさんの荷物も効率的に収納ができます。キッチンはシステムキッチン仕様になっていますので、お料理好きの方にもぴったり。バス・トイレは別なので、のんびりお風呂タイムも楽しめるでしょう。また、雨の日でも浴室乾燥機を使えば、お洗濯も問題ありません。
通信設備面では、インターネットが無料で使えるので、月々の出費を抑えられるのも魅力です。また、BSアンテナ・CSアンテナもありますので、おうち時間も充実するでしょう(別途工事、BS・CSの契約料等が必要な場合あり)。
建物にはエレベーターがついているので、重い荷物があっても安心。共用部には宅配ボックスが設定されているので、不在の時にも荷物を受け取ることができます。また、ペット飼育の相談ができますので、あなたの大切な家族の一員も快適に暮らせるか、ぜひ確認してみてください。
コンビニまで徒歩12分の場所にあり、日用品や食料品のお買い物にも便利です。
このお部屋は2階以上に位置しているので、通行人や周囲の住人からの視線が気になりにくく、防犯面でも安心。建物のエントランスはオートロックがついており、インターホンにはTVモニタもついているため、相手の顔を確認してから来客対応することができます。
人気の角部屋で周囲の居住者の生活音も気になりにくく、また、フローリングのお部屋なのでお掃除もラクラク。室内にはウォークインクローゼットがありますので、たくさんの荷物も効率的に収納ができます。キッチンはシステムキッチン仕様になっていますので、お料理好きの方にもぴったり。バス・トイレは別なので、のんびりお風呂タイムも楽しめるでしょう。また、雨の日でも浴室乾燥機を使えば、お洗濯も問題ありません。
通信設備面では、インターネットが無料で使えるので、月々の出費を抑えられるのも魅力です。また、BSアンテナ・CSアンテナもありますので、おうち時間も充実するでしょう(別途工事、BS・CSの契約料等が必要な場合あり)。
建物にはエレベーターがついているので、重い荷物があっても安心。共用部には宅配ボックスが設定されているので、不在の時にも荷物を受け取ることができます。また、ペット飼育の相談ができますので、あなたの大切な家族の一員も快適に暮らせるか、ぜひ確認してみてください。
コンビニまで徒歩12分の場所にあり、日用品や食料品のお買い物にも便利です。
お金・契約の情報
※「-」と表示されているものは、実際は料金が発生するものもございます。詳細はお問い合わせください。
| 家賃 | 12.1万円 | 管理費・共益費 | 8,000円 |
|---|---|---|---|
| 敷金 | 12.1万円 | 礼金 | なし |
| 入居決定でお祝い金最大100,000円 | |||
| 保証金 | - | 償却・敷引 | - |
| 住宅保険料 | 1.655万円(2年) | 更新料 | - |
| 保証会社利用 | 必須 | 保証会社名 | エポスカード(RP) |
| 保証会社費用 | - | 保証会社備考 | 保証料:賃料等の50%(最低2万)、月額保証料:賃料等の1%(更新料無) |
| 契約形態 | - | 契約期間 | 2年 |
| 入居・引渡期間 | 2026年04月上旬 | 現況 | - |
| 契約備考 | 敷金積み増し:ペット飼育 2.00カ月、小型犬:可、大型犬:不可、猫:可、その他:小型犬1匹又は猫2匹 エアコン清掃費 11000円/清掃費 38500円 | ||
部屋の情報
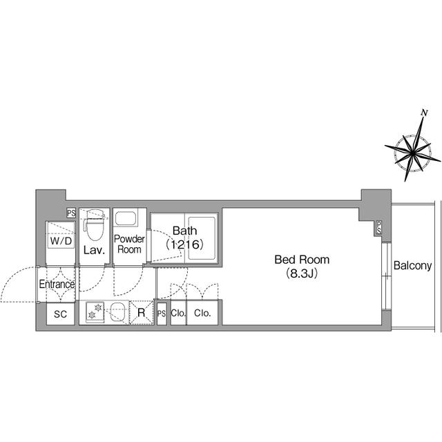
| 間取り | 1K | 専有面積 | 25.2m2 |
|---|---|---|---|
| 間取り詳細 | 洋室(8.3帖) | ||
| 所在階 / 向き | 4階 / 北東 | バルコニー面積 | - |
| 水道 / ガス | - | ||
| 設備 | バス・トイレ別、オートロック、テレビドアホン、宅配ボックス、浴室乾燥機、エレベーター、CSアンテナ、BSアンテナ、洗濯機:室内 | ||
| 当社物件ID | 160548959 | ||
建物の情報
| 建物名 | コンフォリア・リヴ南六郷 | ||
|---|---|---|---|
| 所在地 | 東京都大田区南六郷3丁目 | ||
| 交通 | 京浜急行電鉄本線 雑色駅 徒歩10分 | ||
| 階数 | 6階建 | 総戸数 | 61戸 |
| 築年月 | 2026年04月 / 新築 | エレベーター | あり |
| 駐車場 | - | バイク置き場 | - |
| 駐輪場 | あり | 管理人/管理会社 | - |
| 建物種別 | マンション | 建物構造 | RC(鉄筋コンクリート) |
この部屋の取扱い不動産会社
| 会社名 | アパマンショップ新横浜店 | ||
|---|---|---|---|
| 所在地 | 神奈川県横浜市港北区新横浜3丁目 6-1新横浜SRビル8階 | 交通 | 横浜線新横浜から徒歩1分 |
| 営業時間 | 10:00〜19:00 | 定休日 | - |
| 免許番号 | 神奈川県知事(10)13668 | 取引態様 | 仲介 |
| 不動産会社管理番号 | 112140410 | 当社管理番号 | 4 |
| 所属団体 | (公社)神奈川県宅地建物取引業協会 | ||
| 公正取引協議会 | (公社) 首都圏不動産公正取引協議会加盟 | ||
| 取扱い物件情報 | 物件詳細へ | ||
※各種情報と現状に差異がある場合は、現状優先となります。問い合わせをすることで、より詳しい条件、情報を確認する事ができます。
提供:アパマンショップ新横浜店
この物件が気になったら掲載期限まであと12日
コンフォリア・リヴ南六郷の空き部屋一覧
全部で50の空き部屋があります。
コンフォリア・リヴ南六郷に条件(家賃・エリア)が近い物件一覧
| 写真 | 家賃 管理費等 | 敷金 礼金 | 間取り 専有面積 | 築年数 | 最寄り駅 所在地 | キープ | 詳細 |
|---|---|---|---|---|---|---|---|
マンション グローバルK(ワンルーム/7階) | |||||||
![]() | 9.9万円 1万円 | なし なし | ワンルーム 20.94m2 | 築25年 | 都営新宿線 大島駅(東京) 徒歩8分 JR総武線 亀戸駅 徒歩11分 東京都江東区亀戸 | 詳細を見る | |
マンション クレヴィスタ亀戸V(1K/6階) | |||||||
![]() | 13.1万円 1.1万円 | なし 13.1万円 | 1K 25.41m2 | 築6年 | 東武亀戸線 亀戸水神駅 徒歩2分 東武亀戸線 亀戸駅 徒歩12分 東武亀戸線 東あずま駅 徒歩12分 東京都江東区亀戸 | 詳細を見る | |
マンション グランディール(1K/4階) | |||||||
![]() | 9万円 5,000円 | 9万円 18万円 | 1K 25.02m2 | 築22年 | 京急本線 大森町駅 徒歩5分 京急本線 梅屋敷駅(東京) 徒歩9分 京急本線 平和島駅 徒歩15分 東京都大田区大森中 | 詳細を見る | |
マンション ARKMARK水天宮前I(1DK/3階) | |||||||
![]() | 13.2万円 1.5万円 | なし なし | 1DK 25.35m2 | 築5年 | 東京メトロ半蔵門線 水天宮前駅 徒歩9分 東京メトロ東西線 門前仲町駅 徒歩9分 東京メトロ日比谷線 茅場町駅 徒歩13分 東京都江東区佐賀 | 詳細を見る | |
マンション ロサルバ大森(2DK/4階) | |||||||
![]() | 15.6万円 7,000円 | 15.6万円 31.2万円 | 2DK 50.48m2 | 築23年 | 京浜急行電鉄本線 大森町駅 徒歩8分 京浜急行電鉄本線 梅屋敷駅(東京) 徒歩8分 東京都大田区大森西3丁目 | 詳細を見る | |
マンション エスティメゾン豊洲レジデンスC棟(1LDK/4階) | |||||||
![]() | 17万円 1万円 | 17万円 17万円 | 1LDK 38.62m2 | 築19年 | 東京メトロ有楽町線 豊洲駅 徒歩5分 JR京葉線 越中島駅 徒歩17分 東京メトロ東西線 門前仲町駅 徒歩25分 東京都江東区豊洲 | 詳細を見る | |
マンション GENOVIA東陽町GREEN VEIL(1K/6階) | |||||||
![]() | 10.5万円 1万円 | 10.5万円 10.5万円 | 1K 26.1m2 | 築13年 | 東京メトロ東西線 東陽町駅 徒歩7分 東京メトロ東西線 木場駅 徒歩8分 JR京葉線 潮見駅 徒歩26分 東京都江東区東陽 | 詳細を見る | |
マンション シェモア加瀬(2K/3階) | |||||||
![]() | 10.2万円 4,000円 | 10.2万円 なし | 2K 34m2 | 築22年 | 京急本線 梅屋敷駅(東京) 徒歩5分 京急本線 大森町駅 徒歩10分 京急本線 京急蒲田駅 徒歩18分 東京都大田区大森中 | 詳細を見る | |








