賃貸マンション
サニープレイス西芦屋2号館の賃貸物件情報(3LDK/7階)
| 家賃 | 管理費等 | 敷金 | 礼金 | 間取り | 専有面積 |
|---|---|---|---|---|---|
| 12.5万円 | 8,000円 | なし | 25万円 | 3LDK | 75.6m2 |
入居決定でお祝い金最大100,000円
- 保証金
- -
- 償却・敷引
- -
- 築年数
- 築15年
- 所在階
- 7階
- 向き
- 南
Point
ぜひ一度見ていただきたい、「サニープレイス西芦屋2号館」です。神戸市立本庄中学校が徒歩19分で通学にも便利です。こちらは防犯カメラ付きのマンションなので、安心した生活が送れます。引っ越し先が神戸市東灘区へと決まったら、住まい探しを始めましょう。CHINTAI ROOM 六甲本店 キュリアでは、お客様
提供:センチュリー21(株)リライフ神戸駅前店(SUUMO経由)

詳細情報 サニープレイス西芦屋2号館
物件紹介
サニープレイス西芦屋2号館は阪神本線深江駅から徒歩15分にあるマンションです。
このお部屋は2階以上に位置しているので、通行人や周囲の住人からの視線が気になりにくく、防犯面でも安心。建物のエントランスはオートロックがついており、インターホンにはTVモニタもついているため、相手の顔を確認してから来客対応することができます。
こちらは楽器相談が可能な物件。楽器演奏をお考えの方はぜひ相談してみてください。人気の南向き・フローリングのお部屋。室内にはウォークインクローゼットがありますので、たくさんの荷物も効率的に収納ができます。キッチンはシステムキッチン仕様になっていますので、お料理好きの方にもぴったり。バス・トイレは別なので、のんびりお風呂タイムも楽しめるでしょう。また、雨の日でも浴室乾燥機を使えば、お洗濯も問題ありません。
通信設備面では、インターネット接続が可能です。また、BSアンテナ・CSアンテナがありCATVにも対応しているので、おうち時間も充実するでしょう(別途工事、契約料が必要な場合あり)。
建物にはエレベーターがついているので、重い荷物があっても安心。共用部には宅配ボックスが設定されているので、不在の時にも荷物を受け取ることができます。
このお部屋は2階以上に位置しているので、通行人や周囲の住人からの視線が気になりにくく、防犯面でも安心。建物のエントランスはオートロックがついており、インターホンにはTVモニタもついているため、相手の顔を確認してから来客対応することができます。
こちらは楽器相談が可能な物件。楽器演奏をお考えの方はぜひ相談してみてください。人気の南向き・フローリングのお部屋。室内にはウォークインクローゼットがありますので、たくさんの荷物も効率的に収納ができます。キッチンはシステムキッチン仕様になっていますので、お料理好きの方にもぴったり。バス・トイレは別なので、のんびりお風呂タイムも楽しめるでしょう。また、雨の日でも浴室乾燥機を使えば、お洗濯も問題ありません。
通信設備面では、インターネット接続が可能です。また、BSアンテナ・CSアンテナがありCATVにも対応しているので、おうち時間も充実するでしょう(別途工事、契約料が必要な場合あり)。
建物にはエレベーターがついているので、重い荷物があっても安心。共用部には宅配ボックスが設定されているので、不在の時にも荷物を受け取ることができます。
お金・契約の情報
※「-」と表示されているものは、実際は料金が発生するものもございます。詳細はお問い合わせください。
| 家賃 | 12.5万円 | 管理費・共益費 | 8,000円 |
|---|---|---|---|
| 敷金 | なし | 礼金 | 25万円 |
| 入居決定でお祝い金最大100,000円 | |||
| 保証金 | - | 償却・敷引 | - |
| 住宅保険料 | 住宅保険料あり(2年) | 更新料 | - |
| 保証会社利用 | 必須 | 保証会社名 | - |
| 保証会社費用 | - | 保証会社備考 | お問合せ下さい |
| 契約形態 | - | 契約期間 | 2年 |
| 入居・引渡期間 | 即時 | 現況 | 空室 |
| 入居可能条件 | 2人入居可、高齢者可、学生可 | ||
| 契約備考 | 徒歩19分の距離に神戸市立本庄中学校があるのも魅力。セキュリティ面は、TVインターホン・オートロックなどを設置しているので安全面でも優れております。二口コンロが付いている物件です。CHINTAI ROOM 六甲本店 キュリアは、多種多様な賃貸情報を取り扱っております。神戸市東灘区で住まい探しをする場合には、お気軽にお声かけ下さい。 | ||
部屋の情報
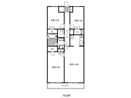
| 間取り | 3LDK | 専有面積 | 75.6m2 |
|---|---|---|---|
| 間取り詳細 | LDK(14.8帖)、洋室(8.4帖)、洋室(5.4帖)、洋室(5.2帖) | ||
| 所在階 / 向き | 7階 / 南 | バルコニー面積 | - |
| 水道 / ガス | 水道【公営】 | ||
| 設備 | バス・トイレ別、オートロック、テレビドアホン、宅配ボックス、浴室乾燥機、光ファイバー対応、システムキッチン、エアコン、エレベーター、温水洗浄便座、バルコニー、フローリング、洗髪洗面化粧台、オール電化、2口コンロ、コンロ:IH、CATV、CSアンテナ、BSアンテナ、シャワー、給湯、洗濯機:室内 | ||
| 当社物件ID | 17099331 | ||
建物の情報
| 建物名 | サニープレイス西芦屋2号館 | ||
|---|---|---|---|
| 所在地 | 兵庫県神戸市東灘区深江南町1丁目 2-10 | ||
| 交通 | 阪神電鉄本線 芦屋駅(阪神) 徒歩15分 東海道本線 甲南山手駅 徒歩22分 | ||
| 階数 | 10階建 | 総戸数 | - |
| 築年月 | 2011年06月 / 築15年 | エレベーター | あり |
| 駐車場 | 空有 5,400円/月 | バイク置き場 | あり |
| 駐輪場 | あり | 管理人/管理会社 | - |
| 周辺環境 | 販売店 徒歩18分(1421m) 中学校 芦屋市立潮見中学校 徒歩29分(2307m) 小学校 芦屋市立精道小学校 徒歩18分(1380m) | ||
| 建物種別 | マンション | 建物構造 | RC(鉄筋コンクリート) |
この部屋の取扱い不動産会社
| 会社名 | CHINTAI ROOM 六甲本店 | ||
|---|---|---|---|
| 所在地 | 兵庫県 神戸市灘区森後町1丁目4番10号 フレグランス六甲1F | 交通 | JR東海道本線「六甲道駅」徒歩1分 |
| 営業時間 | 10:00-19:30 | 定休日 | なし |
| 免許番号 | 兵庫県知事(2)第11891号 | 取引態様 | 仲介 |
| 不動産会社管理番号 | 1873955 | 当社管理番号 | 377 |
| 取扱い物件情報 | 物件詳細へ | ||
※各種情報と現状に差異がある場合は、現状優先となります。問い合わせをすることで、より詳しい条件、情報を確認する事ができます。
提供:CHINTAI ROOM 六甲本店
この物件が気になったら掲載期限まであと3日
サニープレイス西芦屋2号館に条件(家賃・エリア)が近い物件一覧
| 写真 | 家賃 管理費等 | 敷金 礼金 | 間取り 専有面積 | 築年数 | 最寄り駅 所在地 | キープ | 詳細 |
|---|---|---|---|---|---|---|---|
アパート ヒカルサ稲美天満Ⅰ(1LDK/1階) | |||||||
![]() | 7.55万円 3,900円 | なし 7.55万円 | 1LDK 44.7m2 | 築1年 | 兵庫県加古郡稲美町六分一 | 詳細を見る | |
一戸建て 神戸電鉄粟生線 広野ゴルフ場前駅 徒歩10分 築29年(4LDK) | |||||||
![]() | 8万円 なし | なし 16万円 | 4LDK 94.39m2 | 築29年 | 神戸電鉄粟生線 広野ゴルフ場前駅 徒歩10分 神戸電鉄粟生線 緑が丘駅(兵庫) 徒歩19分 神戸電鉄粟生線 志染駅 徒歩20分 兵庫県三木市志染町広野6丁目 | 詳細を見る | |
一戸建て 神戸電鉄粟生線 志染駅 徒歩5分 築16年(4LDK) | |||||||
![]() | 12.5万円 4,000円 | 25万円 12.5万円 | 4LDK 102.68m2 | 築16年 | 神戸電鉄粟生線 志染駅 徒歩5分 神戸電鉄粟生線 恵比須駅 徒歩29分 神戸電鉄粟生線 広野ゴルフ場前駅 徒歩30分 兵庫県三木市志染町西自由が丘1丁目 | 詳細を見る | |
アパート サンフラワー(2LDK/3階) | |||||||
![]() | 8.4万円 3,000円 | なし 8.4万円 | 2LDK 58.06m2 | 築1年 | 山陽電鉄本線 東二見駅 徒歩13分 山陽電鉄本線 西二見駅 徒歩17分 兵庫県明石市二見町西二見 | 詳細を見る | |
アパート モダンパレス(2LDK/2階) | |||||||
![]() | 12.35万円 3,000円 | なし 14万円 | 2LDK 59.58m2 | 築1年 | JR山陽本線 大久保駅(兵庫) 徒歩12分 兵庫県明石市大久保町大窪 | 詳細を見る | |
マンション SHAMAISON MIMOSA OKUBO(2LDK/1階) | |||||||
![]() | 13.6万円 9,500円 | 5万円 なし | 2LDK 64.75m2 | 築1年 | JR山陽本線 大久保駅(兵庫) 徒歩17分 山陽電鉄本線 中八木駅 徒歩35分 山陽電鉄本線 江井ケ島駅 徒歩41分 兵庫県明石市大久保町大窪 | 詳細を見る | |
アパート ヒカルサ稲美天満Ⅱ(1LDK/1階) | |||||||
![]() | 7.65万円 3,900円 | なし 7.65万円 | 1LDK 44.7m2 | 築1年 | 兵庫県加古郡稲美町六分一 | 詳細を見る | |
アパート ペルル5(1LDK/1階) | |||||||
![]() | 7.6万円 4,500円 | 7.6万円 なし | 1LDK 42.5m2 | 築1年 | 山陽電気鉄道本線 藤江駅 徒歩5分 山陽本線 西明石駅 徒歩20分 山陽電気鉄道本線 中八木駅 徒歩20分 兵庫県明石市藤江 | 詳細を見る | |






