賃貸マンション
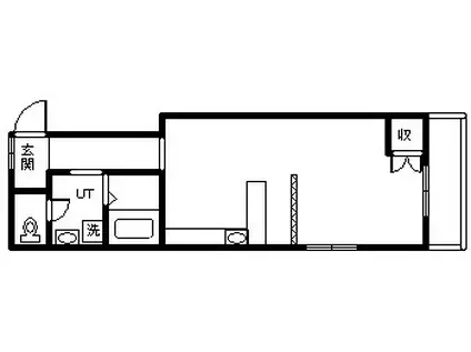
ニューフロンティア永山の賃貸物件情報(1DK/4階)
| 家賃 | 管理費等 | 敷金 | 礼金 | 間取り | 専有面積 |
|---|---|---|---|---|---|
| 3.4万円 | 6,000円 | なし | なし | 1DK | 31m2 |
入居決定でお祝い金最大100,000円
- 保証金
- -
- 償却・敷引
- -
- 築年数
- 築30年
- 所在階
- 4階
- 向き
- 南西
Point
灯油暖房でメーター式なので、灯油は使用した分だけのお支払いで経済的!!室内大規模修繕しており、美室!!インターネット使用料無料の鉄筋MSです☆
提供:ハウスメイトネットワーク旭川店(株)キュービック不動産(SUUMO経由)

詳細情報 ニューフロンティア永山
物件紹介
ニューフロンティア永山はJR宗谷本線永山駅から徒歩4分にあり、駅近で通勤通学に便利なマンションです。
このお部屋は2階以上に位置しているので、通行人や周囲の住人からの視線が気になりにくく、防犯面でも安心です。
人気の南向きのお部屋。また、フローリングなのでお掃除もラクラク。バス・トイレ別の仕様で、のんびりお風呂タイムも楽しめます。
通信設備面では、インターネットが無料で使えるので、月々の出費を抑えられるのも魅力です(別途工事等が必要な場合あり)。
ペット飼育の相談ができますので、あなたの大切な家族の一員も快適に暮らせるか、ぜひ確認してみてください。
このお部屋は2階以上に位置しているので、通行人や周囲の住人からの視線が気になりにくく、防犯面でも安心です。
人気の南向きのお部屋。また、フローリングなのでお掃除もラクラク。バス・トイレ別の仕様で、のんびりお風呂タイムも楽しめます。
通信設備面では、インターネットが無料で使えるので、月々の出費を抑えられるのも魅力です(別途工事等が必要な場合あり)。
ペット飼育の相談ができますので、あなたの大切な家族の一員も快適に暮らせるか、ぜひ確認してみてください。
お金・契約の情報
※「-」と表示されているものは、実際は料金が発生するものもございます。詳細はお問い合わせください。
| 家賃 | 3.4万円 | 管理費・共益費 | 6,000円 |
|---|---|---|---|
| 敷金 | なし | 礼金 | なし |
| 入居決定でお祝い金最大100,000円 | |||
| 保証金 | - | 償却・敷引 | - |
| 住宅保険料 | - | 更新料 | - |
| 保証会社利用 | 必須 | 保証会社名 | リクルートフォレントインシュア |
| 保証会社費用 | - | 保証会社備考 | オリコフォレントインシュア利用必 初回保証料50%、年間更新料15,000円(税別)、月額保証料1.5% |
| 契約形態 | - | 契約期間 | - |
| 入居・引渡期間 | - | 現況 | - |
| 入居可能条件 | ペット相談 | ||
| 契約備考 | 保証会社利用必須、高齢者相談、ペット相談(ペット飼育時:礼金1ヶ月) 合計5.5万円(内訳:水廻り清掃料(税別)2.5万円、鍵交換費(税別)3.0万円) 暖房器具保守点検料(税別)(退去時)20000円、エアコン分解清掃料(税別)(退去時)10000円、定額水道料(毎月)3000円、安心入居サポート(税別)(毎月)1200円 1DK 単身者可/二人入居可/子供可/ペット相談/ルームシェア相談 普通借家2年 損保【2万円2年】 バストイレ別、バルコニー、ガスコンロ対応、フローリング、シャワー付洗面台、室内洗濯置、シューズボックス、脱衣所、洗面所独立、洗面化粧台、駐輪場、独立型キッチン、ペット相談、照明付、灯油暖房、保証人不要、単身者相談、二人入居相談、玄関ホール、ネット使用料不要、ルームシェア相談、駅徒歩5分以内、平面駐車場、南西向き、当社管理物件、プロパンガス、玄関収納、敷金・礼金不要、初期費用カード決済可、全室照明付 入居日:'26年3月下旬 | ||
部屋の情報
| 間取り | 1DK | 専有面積 | 31m2 |
|---|---|---|---|
| 所在階 / 向き | 4階 / 南西 | バルコニー面積 | - |
| 水道 / ガス | - | ||
| 設備 | バス・トイレ別、2階以上、インターネット対応、南向き、バルコニー、フローリング、洗髪洗面化粧台、コンロ:ガス、インターネット使用料無料、洗濯機:室内 | ||
| 当社物件ID | 21569802 | ||
建物の情報
| 建物名 | ニューフロンティア永山 | ||
|---|---|---|---|
| 所在地 | 北海道旭川市永山三条 | ||
| 交通 | JR宗谷本線 永山駅 徒歩4分 JR函館本線 旭川駅 車で25分 JR石北本線 南永山駅 車で13分 | ||
| 階数 | 4階建 | 総戸数 | - |
| 築年月 | 1996年03月 / 築30年 | エレベーター | - |
| 駐車場 | 空有 3000円 | バイク置き場 | - |
| 駐輪場 | あり | 管理人/管理会社 | - |
| 周辺環境 | その他 ツルハ(ドラッグストア)まで500m | ||
| 建物種別 | マンション | 建物構造 | RC(鉄筋コンクリート) |
この部屋の取扱い不動産会社
| 会社名 | ハウスメイトネットワーク旭川店(株)キュービック不動産(SUUMO経由) | ||
|---|---|---|---|
| 所在地 | 北海道旭川市旭町二条9-128-15 | 交通 | - |
| 営業時間 | 9:30~17:00 | 定休日 | 6月~11月日曜定休日 |
| 免許番号 | 北海道知事上川1176 | 取引態様 | 仲介 |
| 不動産会社管理番号 | 100485701445 | 当社管理番号 | 89 |
| 所属団体 | (公社)北海道宅地建物取引業協会会員 | ||
| 公正取引協議会 | (一社)北海道不動産公正取引協議会加盟 | ||
| 取扱い物件情報 | 物件詳細へ | ||
※各種情報と現状に差異がある場合は、現状優先となります。問い合わせをすることで、より詳しい条件、情報を確認する事ができます。
提供:ハウスメイトネットワーク旭川店(株)キュービック不動産(SUUMO経由)
この物件が気になったら掲載期限まであと10日
ニューフロンティア永山に条件(家賃・エリア)が近い物件一覧
| 写真 | 家賃 管理費等 | 敷金 礼金 | 間取り 専有面積 | 築年数 | 最寄り駅 所在地 | キープ | 詳細 |
|---|---|---|---|---|---|---|---|
アパート エーコーパティオス(2LDK/1階) | |||||||
![]() | 4.5万円 なし | なし なし | 2LDK 50.4m2 | 築28年 | JR函館本線 旭川駅 徒歩31分 JR函館本線 近文駅 徒歩43分 JR石北本線 旭川四条駅 徒歩45分 北海道旭川市亀吉一条 | 詳細を見る | |
アパート オーベルジュ10(1LDK/2階) | |||||||
![]() | 3万円 2,000円 | 3万円 なし | 1LDK 31.19m2 | 築32年 | 宗谷本線 永山駅 徒歩10分 北海道旭川市永山三条20丁目 | 詳細を見る | |
アパート コーポシルクライト(1LDK/1階) | |||||||
![]() | 2.8万円 2,000円 | なし なし | 1LDK 31.18m2 | 築38年 | 北海道旭川市東光九条 | 詳細を見る | |
アパート アルハンブラ(ワンルーム/1階) | |||||||
![]() | 2.8万円 なし | 2.8万円 なし | ワンルーム 21.87m2 | 築37年 | JR函館本線 旭川駅 徒歩40分 JR富良野線 旭川駅 徒歩40分 JR宗谷本線 旭川駅 徒歩40分 北海道旭川市川端町三条 | 詳細を見る | |
アパート 第2・3シュロス(ワンルーム/2階) | |||||||
![]() | 2.5万円 なし | 2.5万円 なし | ワンルーム 12.85m2 | 築42年 | JR石北本線 新旭川駅 徒歩14分 JR函館本線 旭川駅 徒歩47分 北海道旭川市東五条 | 詳細を見る | |
アパート 北都ハイツ(3DK/2階) | |||||||
![]() | 3.1万円 なし | 3.1万円 なし | 3DK 54.27m2 | 築47年 | JR函館本線 近文駅 徒歩56分 JR富良野線 旭川駅 徒歩63分 北海道旭川市忠和三条 | 詳細を見る | |
アパート レオパレス芽生ステラ(1K/2階) | |||||||
![]() | 4.6万円 4,000円 | なし 4.6万円 | 1K 23.18m2 | 築23年 | 北海道深川市文光町 | 詳細を見る | |
アパート 富コーポ(2LDK/2階) | |||||||
![]() | 3.6万円 なし | 3.6万円 なし | 2LDK 52.85m2 | 築38年 | 石北本線 旭川四条駅 徒歩43分 北海道旭川市東光八条4丁目 | 詳細を見る | |









