賃貸マンション
GRAN PASEO 蔵前IIの賃貸物件情報(2LDK/13階)
| 家賃 | 管理費等 | 敷金 | 礼金 | 間取り | 専有面積 |
|---|---|---|---|---|---|
| 22.2万円 | 1.2万円 | なし | なし | 2LDK | 40.21m2 |
入居決定でお祝い金最大100,000円
- 保証金
- -
- 償却・敷引
- -
- 築年数
- 築1年
- 所在階
- 13階
- 向き
- 南東
- 交通
- 都営大江戸線 蔵前駅 徒歩1分
東京メトロ銀座線 田原町駅(東京) 徒歩10分
都営浅草線 浅草駅(東武・都営・メトロ) 徒歩10分
- 所在地
- 東京都台東区蔵前
GRAN PASEO 蔵前II
[地図を表示]
Point
オンライン内見・契約実施中!初期費用クレカ決済もご相談ください!お部屋探しはピアホームにお任せください♪
提供:SEG(株)PeerHome新橋店(SUUMO経由)

詳細情報 GRAN PASEO 蔵前II
物件紹介
GRAN PASEO 蔵前IIは都営大江戸線蔵前駅から徒歩1分にあり、駅近で通勤通学に便利なマンションです。
このお部屋は2階以上に位置しているので、通行人や周囲の住人からの視線が気になりにくく、防犯面でも安心。建物のエントランスはオートロックがついており、インターホンにはTVモニタもついているため、相手の顔を確認してから来客対応することができます。
人気の南向き・フローリングのお部屋。角部屋でもあるため、周囲の居住者の生活音も気になりにくい場所です。キッチンはシステムキッチン仕様になっていますので、お料理好きの方にもぴったり。バス・トイレは別なので、のんびりお風呂タイムも楽しめるでしょう。また、雨の日でも浴室乾燥機を使えば、お洗濯も問題ありません。
通信設備面では、インターネットが無料で使えるので、月々の出費を抑えられるのも魅力です。また、BSアンテナ・CSアンテナがありCATVにも対応しているので、おうち時間も充実するでしょう(別途工事、BS・CS・CATVの契約料等が必要な場合あり)。
建物にはエレベーターがついているので、重い荷物があっても安心。共用部には宅配ボックスが設定されているので、不在の時にも荷物を受け取ることができます。
このお部屋は2階以上に位置しているので、通行人や周囲の住人からの視線が気になりにくく、防犯面でも安心。建物のエントランスはオートロックがついており、インターホンにはTVモニタもついているため、相手の顔を確認してから来客対応することができます。
人気の南向き・フローリングのお部屋。角部屋でもあるため、周囲の居住者の生活音も気になりにくい場所です。キッチンはシステムキッチン仕様になっていますので、お料理好きの方にもぴったり。バス・トイレは別なので、のんびりお風呂タイムも楽しめるでしょう。また、雨の日でも浴室乾燥機を使えば、お洗濯も問題ありません。
通信設備面では、インターネットが無料で使えるので、月々の出費を抑えられるのも魅力です。また、BSアンテナ・CSアンテナがありCATVにも対応しているので、おうち時間も充実するでしょう(別途工事、BS・CS・CATVの契約料等が必要な場合あり)。
建物にはエレベーターがついているので、重い荷物があっても安心。共用部には宅配ボックスが設定されているので、不在の時にも荷物を受け取ることができます。
お金・契約の情報
※「-」と表示されているものは、実際は料金が発生するものもございます。詳細はお問い合わせください。
| 家賃 | 22.2万円 | 管理費・共益費 | 1.2万円 |
|---|---|---|---|
| 敷金 | なし | 礼金 | なし |
| フリーレント | あり | ||
| 入居決定でお祝い金最大100,000円 | |||
| 保証金 | - | 償却・敷引 | - |
| 住宅保険料 | - | 更新料 | - |
| 保証会社利用 | 必須 | 保証会社名 | - |
| 保証会社費用 | - | 保証会社備考 | 保証会社利用必 【ジェイリース】初回保証料:月額賃料等の50% 月額保証料1100円 |
| 契約形態 | - | 契約期間 | - |
| 入居・引渡期間 | 即時 | 現況 | - |
| 契約備考 | 未入居/※2年未満解約時、賃料等2か月分の違約金有※同タイプ・別階の内観写真を掲載している場合があります。図面と現況が異なる場合は現況を優先いたします。 合計2.56万円(内訳:安心サポート:22000円/2年町会費:3600円/2年) 駐輪場:330円/月バイク:5500円/月退去時清掃費:66000円エアコン清掃費:16500円/台 2LDK 二人入居可 損保【2.3万円2年】 バストイレ別、バルコニー、エアコン、ガスコンロ対応、クロゼット、フローリング、TVインターホン、浴室乾燥機、オートロック、室内洗濯置、陽当り良好、シューズボックス、システムキッチン、追焚機能浴室、角住戸、温水洗浄便座、エレベーター、洗面所独立、2口コンロ、駐輪場、宅配ボックス、光ファイバー、3口以上コンロ、防犯カメラ、オートバス、保証人不要、東南角住戸、二人入居相談、バイク置場、全居室フローリング、エアコン2台、CS、ネット使用料不要、フリーレント、南面2室、南面リビング、敷地内ごみ置き場、東南向き、都市ガス、南面バルコニー、BS、初期費用カード決済可 | ||
部屋の情報
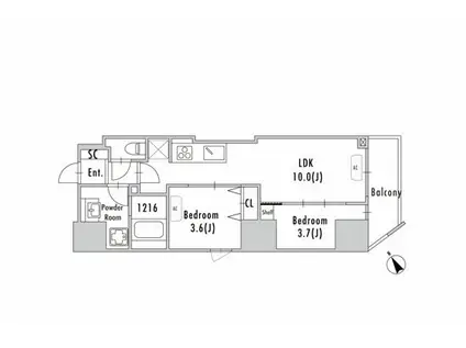
| 間取り | 2LDK | 専有面積 | 40.21m2 |
|---|---|---|---|
| 所在階 / 向き | 13階 / 南東 | バルコニー面積 | - |
| 水道 / ガス | - | ||
| 設備 | バス・トイレ別、2階以上、オートロック、テレビドアホン、宅配ボックス、浴室乾燥機、追い焚き、インターネット対応、システムキッチン、エアコン、エレベーター、温水洗浄便座、南向き、角部屋、バルコニー、フローリング、洗髪洗面化粧台、2口コンロ、コンロ:ガス、CSアンテナ、BSアンテナ、インターネット使用料無料、洗濯機:室内 | ||
| 当社物件ID | 159124437 | ||
建物の情報
| 建物名 | GRAN PASEO 蔵前II | ||
|---|---|---|---|
| 所在地 | 東京都台東区蔵前 | ||
| 交通 | 都営大江戸線 蔵前駅 徒歩1分 東京メトロ銀座線 田原町駅(東京) 徒歩10分 都営浅草線 浅草駅(東武・都営・メトロ) 徒歩10分 | ||
| 階数 | 14階建 | 総戸数 | - |
| 築年月 | 2025年06月 / 築1年 | エレベーター | あり |
| 駐車場 | 近隣 50m50000円 | バイク置き場 | あり |
| 駐輪場 | あり | 管理人/管理会社 | - |
| 周辺環境 | その他 セブン-イレブン 墨田本所1丁目清澄通り店(コンビニ)まで507m その他 ライフ新御徒町店(スーパー)まで677m その他 同愛記念病院(病院)まで640m その他 蔵前小学校(小学校)まで297m その他 浅草中学校(中学校)まで622m | ||
| 建物種別 | マンション | 建物構造 | RC(鉄筋コンクリート) |
この部屋の取扱い不動産会社
| 会社名 | ピアホーム広尾駅前店(株)PH.C(SUUMO経由) | ||
|---|---|---|---|
| 所在地 | 東京都港区南麻布5-15-11広尾セオハウス2階 | 交通 | - |
| 営業時間 | 9:00~18:30 | 定休日 | 無し |
| 免許番号 | 東京都知事106525 | 取引態様 | 仲介 |
| 不動産会社管理番号 | 100466673801 | 当社管理番号 | 89 |
| 所属団体 | (公社)東京都宅地建物取引業協会会員 | ||
| 公正取引協議会 | (公社)首都圏不動産公正取引協議会加盟 | ||
| 取扱い物件情報 | 物件詳細へ | ||
※各種情報と現状に差異がある場合は、現状優先となります。問い合わせをすることで、より詳しい条件、情報を確認する事ができます。
提供:ピアホーム広尾駅前店(株)PH.C(SUUMO経由)
この物件が気になったら掲載期限まであと11日
GRAN PASEO 蔵前IIに条件(家賃・エリア)が近い物件一覧
| 写真 | 家賃 管理費等 | 敷金 礼金 | 間取り 専有面積 | 築年数 | 最寄り駅 所在地 | キープ | 詳細 |
|---|---|---|---|---|---|---|---|
マンション あやめガーデン(2K/10階) | |||||||
![]() | 17.5万円 1万円 | 17.5万円 17.5万円 | 2K 42.26m2 | 築13年 | 東京メトロ日比谷線 築地駅 徒歩1分 東京メトロ有楽町線 新富町駅(東京) 徒歩6分 東京メトロ日比谷線 東銀座駅 徒歩6分 東京都中央区築地 | 詳細を見る | |
マンション WHARF森下(1K/4階) | |||||||
![]() | 14.8万円 1万円 | 14.8万円 なし | 1K 26.84m2 | 築12年 | 東京都大江戸線 森下駅(東京) 徒歩3分 東京都墨田区菊川1丁目 | 詳細を見る | |
マンション ラグゼナ平井ノース(2LDK/3階) | |||||||
![]() | 22.3万円 1万円 | なし なし | 2LDK 53.64m2 | 築1年 | 東武亀戸線 東あずま駅 徒歩10分 JR総武線 平井駅(東京) 徒歩12分 京成押上線 京成曳舟駅 徒歩27分 東京都墨田区立花 | 詳細を見る | |
マンション レジディア月島II(1K/2階) | |||||||
![]() | 14.2万円 1.5万円 | なし なし | 1K 25.12m2 | 築20年 | 東京メトロ有楽町線 月島駅 徒歩1分 都営大江戸線 月島駅 徒歩1分 都営大江戸線 勝どき駅 徒歩11分 東京都中央区月島 | 詳細を見る | |
マンション SAION町屋(2LDK/14階) | |||||||
![]() | 21.8万円 2万円 | 21.8万円 なし | 2LDK 50.23m2 | 築4年 | 東京地下鉄千代田線 町屋駅 徒歩3分 東京都荒川区荒川6丁目 | 詳細を見る | |
マンション サンウッド東日本橋フラッツ(1LDK/3階) | |||||||
![]() | 18万円 9,000円 | 18万円 18万円 | 1LDK 39.93m2 | 築10年 | JR総武線快速 馬喰町駅 徒歩1分 都営浅草線 東日本橋駅 徒歩3分 都営新宿線 馬喰横山駅 徒歩3分 東京都中央区日本橋横山町 | 詳細を見る | |
マンション アーバネックス菊川(2LDK/3階) | |||||||
![]() | 20.5万円 1.5万円 | 20.5万円 なし | 2LDK 40.56m2 | 築7年 | 都営新宿線 菊川駅(東京) 徒歩7分 東京都墨田区立川 | 詳細を見る | |
マンション ミリア・レジデンス両国II(1LDK/2階) | |||||||
![]() | 16万円 2万円 | なし なし | 1LDK 30.01m2 | 築4年 | JR総武線 両国駅 徒歩5分 都営大江戸線 両国駅 徒歩7分 都営大江戸線 森下駅(東京) 徒歩10分 東京都墨田区両国 | 詳細を見る | |


/105x80-f1-q70-wp1)





