賃貸マンション
コンフォリア・リヴ文京護国寺の賃貸物件情報(2LDK/1階)
| 家賃 | 管理費等 | 敷金 | 礼金 | 間取り | 専有面積 |
|---|---|---|---|---|---|
| 29.6万円 | 2万円 | 29.6万円 | なし | 2LDK | 52.8m2 |
入居決定でお祝い金最大100,000円
Point
◆礼金0カ月◆フリーレント1ヶ月※賃料のみ
提供:アパマンショップ東陽町店

詳細情報 コンフォリア・リヴ文京護国寺
物件紹介
コンフォリア・リヴ文京護国寺は東京地下鉄有楽町線護国寺駅から徒歩4分にあり、駅近で通勤通学に便利なマンションです。
このお部屋は2階以上に位置しているので、通行人や周囲の住人からの視線が気になりにくく、防犯面でも安心。建物のエントランスはオートロックがついており、インターホンにはTVモニタもついているため、相手の顔を確認してから来客対応することができます。
おしゃれなデザイナーズ物件!人気の南向き・フローリングのお部屋。角部屋でもあるため、周囲の居住者の生活音も気になりにくい場所です。室内にはウォークインクローゼットがありますので、たくさんの荷物も効率的に収納ができます。キッチンはシステムキッチン仕様になっていますので、お料理好きの方にもぴったり。バス・トイレは別なので、のんびりお風呂タイムも楽しめるでしょう。また、雨の日でも浴室乾燥機を使えば、お洗濯も問題ありません。
通信設備面では、インターネットが無料で使えるので、月々の出費を抑えられるのも魅力です。また、BSアンテナ・CSアンテナがありCATVにも対応しているので、おうち時間も充実するでしょう(別途工事、BS・CS・CATVの契約料等が必要な場合あり)。
床暖房があり、冬も足元から暖かく快適に過ごすことができます。建物にはエレベーターがついているので、重い荷物があっても安心。共用部には宅配ボックスが設定されているので、不在の時にも荷物を受け取ることができます。また、ペット飼育の相談ができますので、あなたの大切な家族の一員も快適に暮らせるか、ぜひ確認してみてください。
このお部屋は2階以上に位置しているので、通行人や周囲の住人からの視線が気になりにくく、防犯面でも安心。建物のエントランスはオートロックがついており、インターホンにはTVモニタもついているため、相手の顔を確認してから来客対応することができます。
おしゃれなデザイナーズ物件!人気の南向き・フローリングのお部屋。角部屋でもあるため、周囲の居住者の生活音も気になりにくい場所です。室内にはウォークインクローゼットがありますので、たくさんの荷物も効率的に収納ができます。キッチンはシステムキッチン仕様になっていますので、お料理好きの方にもぴったり。バス・トイレは別なので、のんびりお風呂タイムも楽しめるでしょう。また、雨の日でも浴室乾燥機を使えば、お洗濯も問題ありません。
通信設備面では、インターネットが無料で使えるので、月々の出費を抑えられるのも魅力です。また、BSアンテナ・CSアンテナがありCATVにも対応しているので、おうち時間も充実するでしょう(別途工事、BS・CS・CATVの契約料等が必要な場合あり)。
床暖房があり、冬も足元から暖かく快適に過ごすことができます。建物にはエレベーターがついているので、重い荷物があっても安心。共用部には宅配ボックスが設定されているので、不在の時にも荷物を受け取ることができます。また、ペット飼育の相談ができますので、あなたの大切な家族の一員も快適に暮らせるか、ぜひ確認してみてください。
お金・契約の情報
※「-」と表示されているものは、実際は料金が発生するものもございます。詳細はお問い合わせください。
| 家賃 | 29.6万円 | 管理費・共益費 | 2万円 |
|---|---|---|---|
| 敷金 | 29.6万円 | 礼金 | なし |
| 入居決定でお祝い金最大100,000円 | |||
| 保証金 | - | 償却・敷引 | - |
| 住宅保険料 | 1.655万円(2年) | 更新料 | - |
| 保証会社利用 | 必須 | 保証会社名 | エポスカード(RP) |
| 保証会社費用 | - | 保証会社備考 | 保証料:賃料等の50%(最低2万)、月額保証料:賃料等の1%(更新料無) |
| 契約形態 | - | 契約期間 | 2年 |
| 入居・引渡期間 | 相談 | 現況 | - |
| 入居可能条件 | ペット可 | ||
| 契約備考 | 敷金積み増し:ペット飼育 2.00カ月、小型犬:可、大型犬:不可、猫:可、その他:小型犬1匹又は猫2匹迄 清掃費 80080円/エアコン清掃費 66000円 | ||
部屋の情報
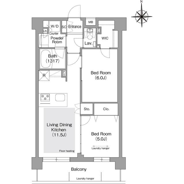
| 間取り | 2LDK | 専有面積 | 52.8m2 |
|---|---|---|---|
| 間取り詳細 | LDK(11.5帖)、洋室(6帖)、洋室(5帖) | ||
| 所在階 / 向き | 1階 / 南 | バルコニー面積 | - |
| 水道 / ガス | - | ||
| 設備 | テレビドアホン、宅配ボックス、浴室乾燥機、ウォークインクローゼット、追い焚き、システムキッチン、エレベーター、床暖房、BSアンテナ | ||
| 当社物件ID | 159396597 | ||
建物の情報
| 建物名 | コンフォリア・リヴ文京護国寺 | ||
|---|---|---|---|
| 所在地 | 東京都文京区目白台3丁目 | ||
| 交通 | 東京地下鉄有楽町線 護国寺駅 徒歩5分 | ||
| 階数 | 5階建 | 総戸数 | 66戸 |
| 築年月 | 2025年12月 / 築1年 | エレベーター | あり |
| 駐車場 | - | バイク置き場 | - |
| 駐輪場 | あり | 管理人/管理会社 | - |
| 建物種別 | マンション | 建物構造 | RC(鉄筋コンクリート) |
この部屋の取扱い不動産会社
| 会社名 | アパマンショップ練馬駅前店 | ||
|---|---|---|---|
| 所在地 | 東京都練馬区練馬1丁目 18−1リズムビル1F | 交通 | 西武池袋・豊島線練馬から徒歩1分 |
| 営業時間 | 10:00〜19:00(現地待ち合わせもご相談下さい♪) | 定休日 | - |
| 免許番号 | 東京都知事(3)96635 | 取引態様 | 仲介 |
| 不動産会社管理番号 | 1000784812 | 当社管理番号 | 4 |
| 所属団体 | (公社)東京都宅地建物取引業協会 | ||
| 公正取引協議会 | (公社) 首都圏不動産公正取引協議会加盟 | ||
| 取扱い物件情報 | 物件詳細へ | ||
※各種情報と現状に差異がある場合は、現状優先となります。問い合わせをすることで、より詳しい条件、情報を確認する事ができます。
提供:アパマンショップ練馬駅前店
この物件が気になったら掲載期限まであと13日
コンフォリア・リヴ文京護国寺の空き部屋一覧
全部で51の空き部屋があります。
コンフォリア・リヴ文京護国寺に条件(家賃・エリア)が近い物件一覧
| 写真 | 家賃 管理費等 | 敷金 礼金 | 間取り 専有面積 | 築年数 | 最寄り駅 所在地 | キープ | 詳細 |
|---|---|---|---|---|---|---|---|
マンション GRAN PASEO上野御徒町(2LDK/6階) | |||||||
![]() | 26万円 2万円 | なし なし | 2LDK 48.76m2 | 築1年 | 都営大江戸線 新御徒町駅 徒歩6分 JR山手線 御徒町駅 徒歩12分 東京メトロ銀座線 末広町駅(東京) 徒歩13分 東京都台東区台東 | 詳細を見る | |
マンション センテニアル王子神谷(2LDK/11階) | |||||||
![]() | 18.85万円 8,500円 | 18.85万円 18.85万円 | 2LDK 50.67m2 | 築17年 | 東京メトロ南北線 王子神谷駅 徒歩2分 JR京浜東北線 東十条駅 徒歩12分 JR京浜東北線 赤羽駅 徒歩26分 東京都北区神谷 | 詳細を見る | |
マンション CREATIF池袋(1LDK/4階) | |||||||
![]() | 18.6万円 1万円 | なし なし | 1LDK 37.35m2 | 築2年 | 西武池袋・豊島線 椎名町駅 徒歩9分 東京都豊島区目白4丁目 | 詳細を見る | |
マンション S-RESIDENCE新御徒町イースト(1LDK/5階) | |||||||
![]() | 19.5万円 1.8万円 | なし 19.5万円 | 1LDK 41.94m2 | 築8年 | 都営大江戸線 新御徒町駅 徒歩3分 都営浅草線 蔵前駅 徒歩10分 JR総武線 浅草橋駅 徒歩12分 東京都台東区小島 | 詳細を見る | |
マンション プレミスト文京千石(2LDK/3階) | |||||||
![]() | 30万円 1万円 | 30万円 30万円 | 2LDK 62.35m2 | 築5年 | 東京地下鉄丸ノ内線 新大塚駅 徒歩10分 東京都文京区千石3丁目 | 詳細を見る | |
マンション ザ・パークハビオ本郷菊坂(1LDK/3階) | |||||||
![]() | 24.5万円 1.5万円 | 24.5万円 なし | 1LDK 41.94m2 | 築5年 | 東京メトロ丸ノ内線 本郷三丁目駅 徒歩3分 都営大江戸線 春日駅(東京) 徒歩10分 東京メトロ丸ノ内線 後楽園駅 徒歩14分 東京都文京区本郷 | 詳細を見る | |
マンション ALIVIS東日暮里(1LDK/3階) | |||||||
![]() | 20.3万円 1.5万円 | なし なし | 1LDK 40.11m2 | 築1年 | JR常磐線 三河島駅 徒歩7分 JR山手線 日暮里駅 徒歩8分 JR山手線 西日暮里駅 徒歩10分 東京都荒川区東日暮里 | 詳細を見る | |
マンション 文京グリーンコート ビュータワー本駒込B(1LDK/12階) | |||||||
![]() | 21万円 1.5万円 | 21万円 21万円 | 1LDK 60.63m2 | 築29年 | 都営三田線 千石駅 徒歩4分 東京メトロ南北線 本駒込駅 徒歩12分 JR山手線 巣鴨駅 徒歩16分 東京都文京区本駒込 | 詳細を見る | |








