賃貸マンション
GENOVIA二子新地の賃貸物件情報(1K/1階)
| 家賃 | 管理費等 | 敷金 | 礼金 | 間取り | 専有面積 |
|---|---|---|---|---|---|
| 11.9万円 | 1万円 | なし | なし | 1K | 25.35m2 |
入居決定でお祝い金最大100,000円
- 保証金
- -
- 償却・敷引
- -
- 築年数
- 新築(築1年)
- 所在階
- 1階
- 向き
- -
Point
まずはお問い合わせ!
不動産会社は街のプロ、あなたに合った物件がきっと見つかります。
提供:ハウスコム東神奈川株式会社 溝の口店

詳細情報 GENOVIA二子新地
物件紹介
GENOVIA二子新地は東急田園都市線二子新地駅から徒歩5分にあり、駅近で通勤通学に便利なマンションです。
建物のエントランスはオートロックがついており、インターホンにはTVモニタもついているため、相手の顔を確認してから来客対応することができます。
フローリングのお部屋なのでお掃除もラクラク。キッチンはシステムキッチン仕様になっていますので、お料理好きの方にもぴったり。バス・トイレは別なので、のんびりお風呂タイムも楽しめるでしょう。また、雨の日でも浴室乾燥機を使えば、お洗濯も問題ありません。
建物にはエレベーターがついているので、重い荷物があっても安心。共用部には宅配ボックスが設定されているので、不在の時にも荷物を受け取ることができます。また、ペット飼育の相談ができますので、あなたの大切な家族の一員も快適に暮らせるか、ぜひ確認してみてください。
建物のエントランスはオートロックがついており、インターホンにはTVモニタもついているため、相手の顔を確認してから来客対応することができます。
フローリングのお部屋なのでお掃除もラクラク。キッチンはシステムキッチン仕様になっていますので、お料理好きの方にもぴったり。バス・トイレは別なので、のんびりお風呂タイムも楽しめるでしょう。また、雨の日でも浴室乾燥機を使えば、お洗濯も問題ありません。
建物にはエレベーターがついているので、重い荷物があっても安心。共用部には宅配ボックスが設定されているので、不在の時にも荷物を受け取ることができます。また、ペット飼育の相談ができますので、あなたの大切な家族の一員も快適に暮らせるか、ぜひ確認してみてください。
お金・契約の情報
※「-」と表示されているものは、実際は料金が発生するものもございます。詳細はお問い合わせください。
| 家賃 | 11.9万円 | 管理費・共益費 | 1万円 |
|---|---|---|---|
| 敷金 | なし | 礼金 | なし |
| 入居決定でお祝い金最大100,000円 | |||
| 保証金 | - | 償却・敷引 | - |
| 住宅保険料 | 1円 | 更新料 | - |
| その他費用 | 契約事務手数料:1.1万円、11000円:、外国籍サポートプラン:1.08万円 | ||
| 保証会社利用 | 必須 | 保証会社名 | - |
| 保証会社費用 | - | 保証会社備考 | ルームバンクインシュア 一番手「RBI」初回保証料:40%(ペット飼育時60%) 外国籍:100%+外国籍サポート年間10,800円 (※審査により変更有・要確認) 外国籍家賃:クレカQR決 |
| 契約形態 | - | 契約期間 | 2年 |
| 入居・引渡期間 | 即時 | 現況 | - |
| 入居可能条件 | 2人入居可、ペット可 | ||
| 契約備考 | その他設備/条件:室内洗濯機置き場、独立洗面台、防犯カメラ、ルームシェア可、クローゼット | ||
部屋の情報
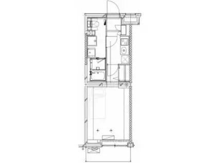
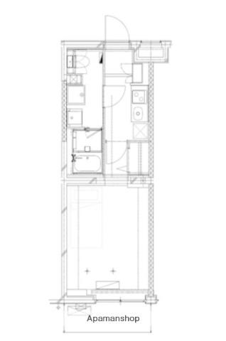
| 間取り | 1K | 専有面積 | 25.35m2 |
|---|---|---|---|
| 間取り詳細 | 洋室(8帖) | ||
| 所在階 / 向き | 1階 / - | バルコニー面積 | - |
| 水道 / ガス | ガス【都市】 | ||
| 設備 | バス・トイレ別、オートロック、テレビドアホン、宅配ボックス、浴室乾燥機、システムキッチン、エアコン、エレベーター、温水洗浄便座、バルコニー、フローリング、シャワー、給湯 | ||
| 当社物件ID | 159992962 | ||
建物の情報
| 建物名 | GENOVIA二子新地 | ||
|---|---|---|---|
| 所在地 | 神奈川県川崎市高津区瀬田 | ||
| 交通 | 東急田園都市線 二子新地駅 徒歩5分 東急田園都市線 高津駅(神奈川) 徒歩11分 | ||
| 階数 | 5階建 | 総戸数 | - |
| 築年月 | 2025年11月 / 新築(築1年) | エレベーター | あり |
| 駐車場 | - | バイク置き場 | - |
| 駐輪場 | - | 管理人/管理会社 | - |
| 周辺環境 | その他 ドラッグストア その他 公園 その他 銀行 その他 * | ||
| 建物種別 | マンション | 建物構造 | RC(鉄筋コンクリート) |
この部屋の取扱い不動産会社
| 会社名 | ハウスコム東神奈川株式会社 溝の口店 | ||
|---|---|---|---|
| 所在地 | 神奈川県川崎市高津区8-1溝ノ口丸広ビル1階 | 交通 | - |
| 営業時間 | 10:00~18:00 | 定休日 | - |
| 免許番号 | 神奈川県知事(1)第31769号 | 取引態様 | 仲介 |
| 不動産会社管理番号 | HC4-5273802-0114-0073 | 当社管理番号 | 468 |
| 所属団体 | 、 | ||
| 取扱い物件情報 | 物件詳細へ | ||
※各種情報と現状に差異がある場合は、現状優先となります。問い合わせをすることで、より詳しい条件、情報を確認する事ができます。
提供:ハウスコム東神奈川株式会社 溝の口店
この物件が気になったら掲載期限まであと4日
GENOVIA二子新地の空き部屋一覧
全部で100の空き部屋があります。
GENOVIA二子新地に条件(家賃・エリア)が近い物件一覧
| 写真 | 家賃 管理費等 | 敷金 礼金 | 間取り 専有面積 | 築年数 | 最寄り駅 所在地 | キープ | 詳細 |
|---|---|---|---|---|---|---|---|
マンション リヴィエールプラス(1K/7階) | |||||||
![]() | 8.8万円 5,800円 | なし 8.8万円 | 1K 32.14m2 | 築12年 | ブルーライン 阪東橋駅 徒歩8分 ブルーライン 伊勢佐木長者町駅 徒歩13分 JR京浜東北線 関内駅 徒歩20分 神奈川県横浜市南区浦舟町 | 詳細を見る | |
マンション ウエストパークヒルズ(3LDK/3階) | |||||||
![]() | 12.5万円 7,000円 | なし なし | 3LDK 65.76m2 | 築30年 | 東急田園都市線 江田駅(神奈川) 徒歩14分 東急田園都市線 市が尾駅 徒歩18分 神奈川県横浜市青葉区荏田西2丁目 | 詳細を見る | |
アパート グランデュール南太田(2K/2階) | |||||||
![]() | 7.8万円 2,000円 | 7.8万円 7.8万円 | 2K 35m2 | 築36年 | 京急本線 南太田駅 徒歩14分 JR横須賀線 保土ケ谷駅 徒歩16分 ブルーライン 吉野町駅 徒歩17分 神奈川県横浜市南区清水ケ丘 | 詳細を見る | |
マンション レオパレスLUMIERE(1K/2階) | |||||||
![]() | 8.4万円 5,500円 | なし 8.4万円 | 1K 19.87m2 | 築25年 | グリーンライン 高田駅(神奈川) 徒歩4分 東急東横線 綱島駅 徒歩24分 神奈川県横浜市港北区高田東 | 詳細を見る | |
マンション グリーンステージいぶき野I(2LDK/2階) | |||||||
![]() | 7.5万円 5,000円 | 7.5万円 7.5万円 | 2LDK 59.4m2 | 築39年 | 東急田園都市線 長津田駅 徒歩15分 JR横浜線 長津田駅 徒歩15分 神奈川県横浜市緑区いぶき野 | 詳細を見る | |
マンション ルシエール梶ヶ谷(3DK/1階) | |||||||
![]() | 11.2万円 なし | 11.2万円 なし | 3DK 54.59m2 | 築39年 | 東急田園都市線 梶が谷駅 徒歩12分 JR南武線 武蔵溝ノ口駅 徒歩19分 東急田園都市線 溝の口駅 徒歩19分 神奈川県川崎市高津区末長 | 詳細を見る | |
一戸建て 東急新横浜線 日吉駅(神奈川) 徒歩19分 築36年(4LDK) | |||||||
![]() | 15.8万円 なし | 15.8万円 15.8万円 | 4LDK 88.78m2 | 築36年 | 東急新横浜線 日吉駅(神奈川) 徒歩19分 神奈川県横浜市港北区日吉7丁目 | 詳細を見る | |
マンション ルフレプレミアム横浜リーヴァ(1K/6階) | |||||||
![]() | 9.1万円 2万円 | 9.1万円 9.1万円 | 1K 21.96m2 | 築1年 | 京浜急行電鉄本線 京急鶴見駅 徒歩2分 京浜東北・根岸線 鶴見駅 徒歩5分 神奈川県横浜市鶴見区鶴見中央4丁目 | 詳細を見る | |









