賃貸マンション
ビレッジハウス森2号棟の賃貸物件情報(3DK/1階)
| 家賃 | 管理費等 | 敷金 | 礼金 | 間取り | 専有面積 |
|---|---|---|---|---|---|
| 5.04万円 | なし | なし | なし | 3DK | 53.08m2 |
入居決定でお祝い金最大100,000円
Point
★ご自宅でもビデオ通話による内覧が可能です★お気軽にどうぞ★
提供:ビレッジハウス住まい相談センター

詳細情報 ビレッジハウス森2号棟
物件紹介
ビレッジハウス森2号棟は天竜浜名湖鉄道森町病院前駅から徒歩6分にあり、駅近で通勤通学に便利なマンションです。
人気の南向きのお部屋。バス・トイレ別の仕様で、のんびりお風呂タイムも楽しめます。
通信設備面では、インターネット接続が可能です(別途工事、契約料が必要な場合あり)。
ペット飼育の相談ができますので、あなたの大切な家族の一員も快適に暮らせるか、ぜひ確認してみてください。
人気の南向きのお部屋。バス・トイレ別の仕様で、のんびりお風呂タイムも楽しめます。
通信設備面では、インターネット接続が可能です(別途工事、契約料が必要な場合あり)。
ペット飼育の相談ができますので、あなたの大切な家族の一員も快適に暮らせるか、ぜひ確認してみてください。
お金・契約の情報
※「-」と表示されているものは、実際は料金が発生するものもございます。詳細はお問い合わせください。
| 家賃 | 5.04万円 | 管理費・共益費 | なし |
|---|---|---|---|
| 敷金 | なし | 礼金 | なし |
| 入居決定でお祝い金最大100,000円 | |||
| 保証金 | - | 償却・敷引 | - |
| 住宅保険料 | 1万円(2年) | 更新料 | - |
| 契約形態 | - | 契約期間 | 2年 |
| 入居・引渡期間 | 相談 | 現況 | - |
| 入居可能条件 | 2人入居可、ペット可 | ||
| 契約備考 | 保証人・保証会社不要(審査によって連帯保証人が必要の場合あり) 短期解約違約金あり。1年未満の解約で賃料3ヶ月分。2年未満の解約で賃料2ヶ月分。 鍵交換代は貸主負担。 | ||
部屋の情報
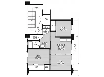
| 間取り | 3DK | 専有面積 | 53.08m2 |
|---|---|---|---|
| 所在階 / 向き | 1階 / 南 | バルコニー面積 | - |
| 水道 / ガス | ガス【プロパン】 | ||
| 設備 | インターネット対応、洗濯機:室内 | ||
| 当社物件ID | 25971864 | ||
建物の情報
| 建物名 | ビレッジハウス森2号棟 | ||
|---|---|---|---|
| 所在地 | 静岡県周智郡森町森 | ||
| 交通 | 天竜浜名湖鉄道 森町病院前駅 徒歩7分 | ||
| 階数 | 5階建 | 総戸数 | 30戸 |
| 築年月 | 1989年02月 / 築37年 | エレベーター | - |
| 駐車場 | 空有 3,300円/月 | バイク置き場 | - |
| 駐輪場 | - | 管理人/管理会社 | - |
| 建物種別 | マンション | 建物構造 | RC(鉄筋コンクリート) |
この部屋の取扱い不動産会社
| 会社名 | アパマンショップ浜松浜北店 | ||
|---|---|---|---|
| 所在地 | 2041 | 交通 | 遠州鉄道美薗中央公園から徒歩2分 |
| 営業時間 | 10:00〜18:00(時間外もお気軽にご予約下さい!) | 定休日 | 水曜日 |
| 免許番号 | 静岡県知事(3)13504 | 取引態様 | 仲介 |
| 不動産会社管理番号 | 80330470 | 当社管理番号 | 4 |
| 所属団体 | (公社)静岡県宅地建物取引業協会 | ||
| 公正取引協議会 | 東海不動産公正取引協議会加盟 | ||
| 取扱い物件情報 | 物件詳細へ | ||
※各種情報と現状に差異がある場合は、現状優先となります。問い合わせをすることで、より詳しい条件、情報を確認する事ができます。
提供:アパマンショップ浜松浜北店
この物件が気になったら掲載期限まであと7日
ビレッジハウス森2号棟に条件(家賃・エリア)が近い物件一覧
| 写真 | 家賃 管理費等 | 敷金 礼金 | 間取り 専有面積 | 築年数 | 最寄り駅 所在地 | キープ | 詳細 |
|---|---|---|---|---|---|---|---|
アパート センチュリーレジデンスV(1LDK/2階) | |||||||
![]() | 5.3万円 3,000円 | なし なし | 1LDK 40.33m2 | 築25年 | 静岡県磐田市見付 | 詳細を見る | |
マンション サニーコート(2LDK/3階) | |||||||
![]() | 6.6万円 3,000円 | なし なし | 2LDK 59.56m2 | 築23年 | JR東海道本線 御厨駅(静岡) 徒歩28分 静岡県磐田市三ケ野台 | 詳細を見る | |
マンション グリーンヒル(1LDK/1階) | |||||||
![]() | 6.2万円 3,000円 | なし なし | 1LDK 46.13m2 | 築16年 | 東海道本線 愛野駅(静岡) 徒歩3分 静岡県袋井市愛野南1丁目 | 詳細を見る | |
マンション ラフォーレ見付(2LDK/3階) | |||||||
![]() | 5.6万円 3,000円 | なし なし | 2LDK 50.05m2 | 築33年 | 静岡県磐田市見付 | 詳細を見る | |
マンション アネーロ(2LDK/2階) | |||||||
![]() | 5.9万円 3,000円 | なし なし | 2LDK 56.84m2 | 築20年 | 静岡県磐田市千手堂 | 詳細を見る | |
アパート センチュリーレジデンスII(2LDK/2階) | |||||||
![]() | 5.3万円 3,000円 | なし なし | 2LDK 49.85m2 | 築25年 | JR東海道本線 磐田駅 徒歩45分 JR東海道本線 御厨駅(静岡) 徒歩53分 静岡県磐田市見付 | 詳細を見る | |
マンション アンシャンテ(2LDK/2階) | |||||||
![]() | 6.5万円 3,500円 | なし なし | 2LDK 58.09m2 | 築22年 | 東海道本線 豊田町駅 徒歩40分 静岡県磐田市千手堂 | 詳細を見る | |








