賃貸マンション
レジディア目白の賃貸物件情報(3LDK/9階)
| 家賃 | 管理費等 | 敷金 | 礼金 | 間取り | 専有面積 |
|---|---|---|---|---|---|
| 31万円 | 1.5万円 | 31万円 | 31万円 | 3LDK | 77.87m2 |
入居決定でお祝い金最大100,000円
- 保証金
- -
- 償却・敷引
- -
- 築年数
- 築27年
- 所在階
- 9階
- 向き
- 南
- 交通
- 東京地下鉄副都心線 雑司が谷駅(東京メトロ) 徒歩6分
- 所在地
- 東京都豊島区高田2丁目
レジディア目白
[地図を表示]
Point
まずはお問い合わせ!
不動産会社は街のプロ、あなたに合った物件がきっと見つかります。
提供:アパマンショップ東中野店

詳細情報 レジディア目白
物件紹介
レジディア目白は東京都荒川線学習院下駅から徒歩2分にあり、駅近で通勤通学に便利なマンションです。
このお部屋は2階以上に位置しているので、通行人や周囲の住人からの視線が気になりにくく、防犯面でも安心。建物のエントランスはオートロックがついており、インターホンにはTVモニタもついているため、相手の顔を確認してから来客対応することができます。
おしゃれなデザイナーズ物件!人気の南向きのお部屋。また、フローリングなのでお掃除もラクラク。キッチンはシステムキッチン仕様になっていますので、お料理好きの方にもぴったり。バス・トイレは別なので、のんびりお風呂タイムも楽しめるでしょう。また、雨の日でも浴室乾燥機を使えば、お洗濯も問題ありません。
通信設備面では、インターネット接続が可能です。また、BSアンテナ・CSアンテナがありCATVにも対応しているので、おうち時間も充実するでしょう(別途工事、契約料が必要な場合あり)。
建物にはエレベーターがついているので、重い荷物があっても安心。共用部には宅配ボックスが設定されているので、不在の時にも荷物を受け取ることができます。
このお部屋は2階以上に位置しているので、通行人や周囲の住人からの視線が気になりにくく、防犯面でも安心。建物のエントランスはオートロックがついており、インターホンにはTVモニタもついているため、相手の顔を確認してから来客対応することができます。
おしゃれなデザイナーズ物件!人気の南向きのお部屋。また、フローリングなのでお掃除もラクラク。キッチンはシステムキッチン仕様になっていますので、お料理好きの方にもぴったり。バス・トイレは別なので、のんびりお風呂タイムも楽しめるでしょう。また、雨の日でも浴室乾燥機を使えば、お洗濯も問題ありません。
通信設備面では、インターネット接続が可能です。また、BSアンテナ・CSアンテナがありCATVにも対応しているので、おうち時間も充実するでしょう(別途工事、契約料が必要な場合あり)。
建物にはエレベーターがついているので、重い荷物があっても安心。共用部には宅配ボックスが設定されているので、不在の時にも荷物を受け取ることができます。
お金・契約の情報
※「-」と表示されているものは、実際は料金が発生するものもございます。詳細はお問い合わせください。
| 家賃 | 31万円 | 管理費・共益費 | 1.5万円 |
|---|---|---|---|
| 敷金 | 31万円 | 礼金 | 31万円 |
| 入居決定でお祝い金最大100,000円 | |||
| 保証金 | - | 償却・敷引 | - |
| 住宅保険料 | 2.15万円(2年) | 更新料 | - |
| 保証会社利用 | 必須 | 保証会社名 | 【IRS③】IUCレジデンシャルサポート |
| 保証会社費用 | - | 保証会社備考 | 初回契約時:40%、更新時:10,000円、月額:1,000円 |
| 契約形態 | - | 契約期間 | 2年 |
| 入居・引渡期間 | 2026年02月上旬 | 現況 | - |
| 契約備考 | バイク置場(空有):月額8,800円 駐輪場(空有):月額330円 ※1年未満解約時、賃料1ヶ月分の違約金有り※保証会社利用必須※大手法人契約の場合は敷金2ヶ月※セカンドハウス利用不可 鍵交換費用 22000円 | ||
部屋の情報
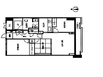
| 間取り | 3LDK | 専有面積 | 77.87m2 |
|---|---|---|---|
| 所在階 / 向き | 9階 / 南 | バルコニー面積 | - |
| 水道 / ガス | - | ||
| 設備 | バス・トイレ別、オートロック、テレビドアホン、宅配ボックス、浴室乾燥機、システムキッチン、エレベーター、バルコニー、フローリング、CATV | ||
| 当社物件ID | 10434157 | ||
建物の情報
| 建物名 | レジディア目白 | ||
|---|---|---|---|
| 所在地 | 東京都豊島区高田2丁目 | ||
| 交通 | 東京地下鉄副都心線 雑司が谷駅(東京メトロ) 徒歩6分 | ||
| 階数 | 10階建 | 総戸数 | 162戸 |
| 築年月 | 1999年02月 / 築27年 | エレベーター | あり |
| 駐車場 | - | バイク置き場 | あり |
| 駐輪場 | あり | 管理人/管理会社 | - |
| 周辺環境 | その他 東池袋駅 徒歩19分(1516m) その他 護国寺駅 徒歩21分(1608m) その他 新大塚駅 徒歩30分(2371m) その他 江戸川橋駅 徒歩27分(2159m) その他 茗荷谷駅 徒歩33分(2619m) その他 大塚駅 徒歩34分(2668m) その他 千石駅 徒歩45分(3528m) その他 巣鴨駅 徒歩49分(3888m) | ||
| 建物種別 | マンション | 建物構造 | SRC(鉄骨鉄筋コンクリート) |
この部屋の取扱い不動産会社
| 会社名 | アパマンショップ茗荷谷店 | ||
|---|---|---|---|
| 所在地 | 東京都文京区小石川5丁目 5-6羽鳥ビル3階 | 交通 | 東京地下鉄丸ノ内線茗荷谷から徒歩1分 |
| 営業時間 | 10:00〜19:00(改札出て、すぐ近くにございます) | 定休日 | 水曜日 |
| 免許番号 | 国土交通大臣(5)6971 | 取引態様 | 仲介 |
| 不動産会社管理番号 | 111468062 | 当社管理番号 | 4 |
| 所属団体 | (公社)東京都宅地建物取引業協会 | ||
| 公正取引協議会 | (公社) 首都圏不動産公正取引協議会加盟 | ||
| 取扱い物件情報 | 物件詳細へ | ||
※各種情報と現状に差異がある場合は、現状優先となります。問い合わせをすることで、より詳しい条件、情報を確認する事ができます。
提供:アパマンショップ茗荷谷店
この物件が気になったら掲載期限まであと2日
レジディア目白に条件(家賃・エリア)が近い物件一覧
| 写真 | 家賃 管理費等 | 敷金 礼金 | 間取り 専有面積 | 築年数 | 最寄り駅 所在地 | キープ | 詳細 |
|---|---|---|---|---|---|---|---|
マンション PRIME URBAN 東中野 COURT(1LDK/1階) | |||||||
![]() | 20.6万円 1.3万円 | 20.6万円 20.6万円 | 1LDK 44.31m2 | 築17年 | 東京メトロ東西線 落合駅 徒歩8分 JR中央線 東中野駅 徒歩10分 都営大江戸線 東中野駅 徒歩13分 東京都新宿区北新宿 | 詳細を見る | |
マンション プラウドフラット四谷三丁目(1LDK/13階) | |||||||
![]() | 28.3万円 1.7万円 | 28.3万円 なし | 1LDK 43.39m2 | 築1年 | 東京メトロ丸ノ内線 四谷三丁目駅 徒歩1分 都営新宿線 曙橋駅 徒歩8分 JR中央線 信濃町駅 徒歩11分 東京都新宿区四谷 | 詳細を見る | |
マンション メゾンカルム中落合サウス(2LDK/3階) | |||||||
![]() | 21.4万円 1.5万円 | 21.4万円 なし | 2LDK 64.42m2 | 築36年 | 西武新宿線 下落合駅(東京) 徒歩6分 都営大江戸線 中井駅 徒歩11分 東京都新宿区中落合 | 詳細を見る | |
マンション ルレーヴ中野坂上(2LDK/2階) | |||||||
![]() | 27.5万円 2万円 | 27.5万円 なし | 2LDK 74.35m2 | 築38年 | 東京メトロ丸ノ内線 中野坂上駅 徒歩12分 都営大江戸線 東中野駅 徒歩14分 東京メトロ東西線 中野駅(東京) 徒歩17分 東京都中野区中央 | 詳細を見る | |
マンション S-RESIDENCE新宿早稲田AVELIS(1LDK/2階) | |||||||
![]() | 21.8万円 1.5万円 | なし なし | 1LDK 39.79m2 | 築1年 | 東京地下鉄東西線 早稲田駅(メトロ) 徒歩8分 東京地下鉄有楽町線 江戸川橋駅 徒歩10分 東京都新宿区早稲田鶴巻町 | 詳細を見る | |
マンション MYRIA RESIDENCE KOMAGOME(1LDK/4階) | |||||||
![]() | 18.7万円 2万円 | なし なし | 1LDK 40.7m2 | 築5年 | JR山手線 駒込駅 徒歩7分 JR京浜東北線 上中里駅 徒歩8分 東京メトロ南北線 西ケ原駅 徒歩9分 東京都北区西ケ原 | 詳細を見る | |
マンション ジオ西新宿ツインレジデンス ウエスト棟(2LDK/6階) | |||||||
![]() | 25万円 2万円 | 50万円 25万円 | 2LDK 55.83m2 | 築14年 | 東京メトロ丸ノ内線 西新宿駅 徒歩5分 JR山手線 新宿駅 徒歩9分 東京都新宿区北新宿 | 詳細を見る | |







