賃貸マンション
ACCESS湘南平塚の賃貸物件情報(1K/9階)
| 家賃 | 管理費等 | 敷金 | 礼金 | 間取り | 専有面積 |
|---|---|---|---|---|---|
| 7.3万円 | 1.5万円 | なし | なし | 1K | 27.83m2 |
入居決定でお祝い金最大100,000円
- 保証金
- -
- 償却・敷引
- -
- 築年数
- 築19年
- 所在階
- 9階
- 向き
- 東
Point
★コチラのお部屋が気になったお客様はお気軽にお問合せくださいませ★専門スタッフが詳細情報をご案内させていただきます!もちろん、他の物件もまとめてご紹介可能です!
提供:(株)タウンハウジング神奈川 藤沢店(SUUMO経由)

詳細情報 ACCESS湘南平塚
物件紹介
ACCESS湘南平塚はJR東海道本線平塚駅から徒歩5分にあり、駅近で通勤通学に便利なマンションです。
このお部屋は2階以上に位置しているので通行人や周囲の住人からの視線が気になりにくく、建物のエントランスはオートロックがついているので防犯性が高くなっています。
フローリングのお部屋なのでお掃除もラクラク。キッチンはシステムキッチン仕様になっていますので、お料理好きの方にもぴったり。バス・トイレは別なので、のんびりお風呂タイムも楽しめるでしょう。また、雨の日でも浴室乾燥機を使えば、お洗濯も問題ありません。
通信設備面では、インターネットが無料で使えるので、月々の出費を抑えられるのも魅力です。また、BSアンテナ・CSアンテナもありますので、おうち時間も充実するでしょう(別途工事、BS・CSの契約料等が必要な場合あり)。
建物にはエレベーターがついているので、重い荷物があっても安心。共用部には宅配ボックスが設定されているので、不在の時にも荷物を受け取ることができます。
このお部屋は2階以上に位置しているので通行人や周囲の住人からの視線が気になりにくく、建物のエントランスはオートロックがついているので防犯性が高くなっています。
フローリングのお部屋なのでお掃除もラクラク。キッチンはシステムキッチン仕様になっていますので、お料理好きの方にもぴったり。バス・トイレは別なので、のんびりお風呂タイムも楽しめるでしょう。また、雨の日でも浴室乾燥機を使えば、お洗濯も問題ありません。
通信設備面では、インターネットが無料で使えるので、月々の出費を抑えられるのも魅力です。また、BSアンテナ・CSアンテナもありますので、おうち時間も充実するでしょう(別途工事、BS・CSの契約料等が必要な場合あり)。
建物にはエレベーターがついているので、重い荷物があっても安心。共用部には宅配ボックスが設定されているので、不在の時にも荷物を受け取ることができます。
お金・契約の情報
※「-」と表示されているものは、実際は料金が発生するものもございます。詳細はお問い合わせください。
| 家賃 | 7.3万円 | 管理費・共益費 | 1.5万円 |
|---|---|---|---|
| 敷金 | なし | 礼金 | なし |
| 入居決定でお祝い金最大100,000円 | |||
| 保証金 | - | 償却・敷引 | - |
| 住宅保険料 | - | 更新料 | - |
| 保証会社利用 | 必須 | 保証会社名 | - |
| 保証会社費用 | - | 保証会社備考 | 保証会社利用必 賃貸保証料:0.40ヶ月 初回40% 月額1% 他保証会社あり |
| 契約形態 | - | 契約期間 | - |
| 入居・引渡期間 | 即時 | 現況 | - |
| 契約備考 | 創業46年!首都圏を中心に直営139店舗以上!全国トップレベルの仲介件数!専門スタッフがお客様にピッタリのお部屋をご提案します!LINE、ZOOM等、様々なご案内に対応しておりますので遠方のお客様もお気軽にお問合せください。へーベルメゾンやシャーメゾンなどハウスメーカー様のお部屋も専任で取り扱っております。『ひとを、まちを、もっと豊かに。』湘南エリアのお部屋探しはタウンハウジングへ♪ 合計2.75万円(内訳:鍵交換代:27500円) 更新料旧賃料(ヶ月):1.00ヶ月 1K 二人入居可 普通借家2年 損保【2.2万円2年】 バストイレ別、バルコニー、エアコン、フローリング、浴室乾燥機、オートロック、室内洗濯置、システムキッチン、温水洗浄便座、エレベーター、洗面所独立、2口コンロ、駐輪場、宅配ボックス、外壁タイル張り、即入居可、礼金不要、BS・CS、敷金不要、防犯カメラ、IHクッキングヒーター、二人入居相談、全居室フローリング、ネット使用料不要、保証金不要、エレベーター2基、駅徒歩5分以内、敷金・礼金不要、IT重説対応物件、初期費用カード決済可 | ||
部屋の情報
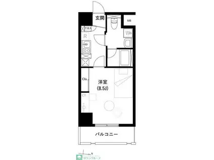
| 間取り | 1K | 専有面積 | 27.83m2 |
|---|---|---|---|
| 所在階 / 向き | 9階 / 東 | バルコニー面積 | - |
| 水道 / ガス | - | ||
| 設備 | バス・トイレ別、2階以上、オートロック、宅配ボックス、浴室乾燥機、インターネット対応、システムキッチン、エアコン、エレベーター、温水洗浄便座、バルコニー、フローリング、洗髪洗面化粧台、2口コンロ、コンロ:IH、CSアンテナ、BSアンテナ、インターネット使用料無料、洗濯機:室内 | ||
| 当社物件ID | 159440092 | ||
建物の情報
| 建物名 | ACCESS湘南平塚 | ||
|---|---|---|---|
| 所在地 | 神奈川県平塚市明石町 | ||
| 交通 | JR東海道本線 平塚駅 徒歩5分 JR東海道本線 大磯駅 車で12分 JR相模線 茅ケ崎駅 車で22分 | ||
| 階数 | 14階建 | 総戸数 | 98戸 |
| 築年月 | 2007年08月 / 築19年 | エレベーター | あり |
| 駐車場 | 空有 22000円 | バイク置き場 | - |
| 駐輪場 | あり | 管理人/管理会社 | - |
| 周辺環境 | その他 ハニーズ平塚ユーユー本館店(ショッピングセンター)まで280m その他 ららぽーと平塚(ショッピングセンター)まで990m その他 オリンピック 平塚店(ショッピングセンター)まで1220m | ||
| 建物種別 | マンション | 建物構造 | RC(鉄筋コンクリート) |
この部屋の取扱い不動産会社
| 会社名 | (株)タウンハウジング神奈川 平塚店(SUUMO経由) | ||
|---|---|---|---|
| 所在地 | 神奈川県平塚市明石町 1-34 柏木ビル1階 | 交通 | - |
| 営業時間 | AM10:00~PM7:00 | 定休日 | 水曜日 |
| 免許番号 | 国土交通大臣9928 | 取引態様 | 仲介 |
| 不動産会社管理番号 | 100470733599 | 当社管理番号 | 89 |
| 所属団体 | (公社)神奈川県宅地建物取引業協会会員 | ||
| 公正取引協議会 | (公社)首都圏不動産公正取引協議会加盟 | ||
| 取扱い物件情報 | 物件詳細へ | ||
※各種情報と現状に差異がある場合は、現状優先となります。問い合わせをすることで、より詳しい条件、情報を確認する事ができます。
提供:(株)タウンハウジング神奈川 平塚店(SUUMO経由)
この物件が気になったら掲載期限まであと10日
ACCESS湘南平塚の空き部屋一覧
全部で24の空き部屋があります。
ACCESS湘南平塚に条件(家賃・エリア)が近い物件一覧
| 写真 | 家賃 管理費等 | 敷金 礼金 | 間取り 専有面積 | 築年数 | 最寄り駅 所在地 | キープ | 詳細 |
|---|---|---|---|---|---|---|---|
テラスハウス MELDIA茅ヶ崎(1LDK) | |||||||
![]() | 11.8万円 8,000円 | なし なし | 1LDK 52.27m2 | 築1年 | 東海道本線 茅ケ崎駅 徒歩25分 神奈川県茅ヶ崎市松が丘2丁目 | 詳細を見る | |
アパート ファーストライフ板戸II(3DK/1階) | |||||||
![]() | 5.5万円 なし | 11万円 なし | 3DK 56.08m2 | 築38年 | 小田急小田原線 伊勢原駅 徒歩20分 小田急小田原線 鶴巻温泉駅 徒歩40分 小田急小田原線 東海大学前駅 徒歩57分 神奈川県伊勢原市板戸 | 詳細を見る | |
アパート コーポ ミツハシ(3DK/2階) | |||||||
![]() | 6万円 なし | 12万円 なし | 3DK 49.48m2 | 築40年 | 神奈川県厚木市下荻野 | 詳細を見る | |
マンション エクセルI(1K/2階) | |||||||
![]() | 5.1万円 5,000円 | なし 5.1万円 | 1K 23.24m2 | 築26年 | 小田急電鉄小田原線 東海大学前駅 徒歩10分 神奈川県秦野市南矢名 | 詳細を見る | |
アパート CASA小原台(1K/2階) | |||||||
![]() | 5万円 2,000円 | なし なし | 1K 19.87m2 | 築23年 | 小田急電鉄小田原線 秦野駅 徒歩13分 神奈川県秦野市尾尻 | 詳細を見る | |
テラスハウス ホープメゾン(2LDK) | |||||||
![]() | 8.5万円 3,000円 | なし 8.5万円 | 2LDK 60.65m2 | 築2年 | 神奈川県平塚市片岡 | 詳細を見る | |
アパート コーポ宮田D(2DK/1階) | |||||||
![]() | 5万円 なし | なし なし | 2DK 38.94m2 | 築33年 | 神奈川県平塚市南金目 | 詳細を見る | |
アパート レオパレスベルヴィル湘南(1K/2階) | |||||||
![]() | 6.4万円 5,000円 | なし 6.4万円 | 1K 23.18m2 | 築27年 | 相模線 北茅ケ崎駅 徒歩23分 神奈川県茅ヶ崎市室田茅ケ崎市室田2丁目 | 詳細を見る | |








